Apartament modern cu terasa si curte–locuinta ideala, Eroii Revolutiei

240.000 € + TVA

Eroii Revoluției, București

Nr. cam.:
2
Sup. utilă:
56,2 mp
Etaj:
Parter / 3
An constr.:
2025 (În construcție)
  • • Comision 0%
  • • Locație aproximativă

Descriere apartament

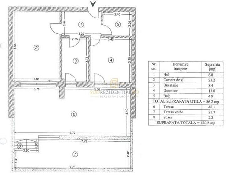
Va propunem spre vanzare un apartament cu 2 camere, situat la parterul unui imobil modern, ideal pentru cei care cauta un spatiu generos si confortabil. Proprietatea face parte dintr-un ansamblu rezidential exclusivist din Sector 4, Bucuresti, situat in apropierea celor mai importante puncte de interes din zona. Apartamentul are o suprafata utila de 56.2 mp, la care se adauga o terasa de 40.1 mp si o curte privata de 21.7 mp, perfecte pentru relaxare si petrecerea timpului liber. Spatiul interior este compartimentat eficient, oferind urmatoarele incaperi: - Hol: 6.8 mp - Camera de zi: 23.2 mp - Bucatarie: 8.4 mp - Dormitor: 13 mp - Baie: 4.8 mp Apartamentul este livrat complet finisat, cu materiale premium, cum ar fi: parchet laminat de inalta calitate, gresie si faianta moderna in baie si bucatarie, usi interioare din MDF si tamplarie PVC cu geam tripan. Sistemul de incalzire este asigurat de o centrala termica proprie, iar izolatia peretilor asigura un consum redus de energie. Beneficii suplimentare: - Terasa si curte privata amenajata cu spatiu verde. - Locatie excelenta, aproape de mijloace de transport in comun, scoli, magazine si parcuri (Tineretului, Oraselul Copiilor, Carol). - Posibilitate de achizitie loc de parcare. Imobilul face parte dintr-un ansamblu rezidential modern, situat intr-o zona in plina dezvoltare din Sector 4, Bucuresti. Locatia ofera acces rapid la: - Parcuri si spatii verzi: la cateva minute distanta de zone de relaxare si agrement precum Parcul Carol I si Parcul Tineretului - Centre comerciale: in apropiere de supermarketuri, hipermarketuri si mall-uri pentru shopping rapid - Transport public: statii STB si acces facil catre metrou (statia Eroii Revolutiei) pentru deplasare rapida in oras - Scoli si gradinite: unitati de invatamant in proximitate, ideale pentru familii cu copii - Restaurante si cafenele: diverse optiuni pentru a petrece timpul liber intr-un cadru placut Ansamblul rezidential dispune de acces securizat, locuri de parcare si spatii verzi amenajate, oferind un stil de viata modern si confortabil.
Citește mai mult Citește mai puțin
Confort 1 Decomandat Nemobilat Aer condiționat Centrală proprie Încălzire prin pardoseală

Detalii apartament

ID anunț: X53U100F3 Copiat! 251047508 Copiat!
Actualizat în: 03 Ianuarie 2026
Suprafață construită: 66 mp
Nr. bucătării: 1
Nr. băi: 1
Structură rezistență: Beton
Tip imobil: Bloc de apartamente
Regim înălțime: S+P+3E
Nr. terase: 1

Utilități

Destinație
Birouri Rezidențial
Pereți
Faianță Vopsea lavabilă
Podele
Gresie Parchet
Ușă intrare
Metal
Uși interior
Lemn
Izolații termice
Exterior
Ferestre cu geam termopan
PVC
Contorizare
Apometre Contor căldură Contor gaz
Alte spații utile
Terasă
Facilități imobil
Lift Videointerfon
Utilități
Curent Apă Canalizare Gaze
Internet
Cablu
Amenajare străzi
Iluminat stradal Mijloace de transport în comun Asfaltate
Comision
0%

Disponibilitate proprietate:

03.2025

Puncte de interes

Mijloace transport
tram-station
Sura Mare
Stații tramvai aprox. 104 m
bus-station
Statia Sura Mare, linia 323, N107, 7, 25, 1
Stații autobuz aprox. 110 m
tram-station
Sura Mare (Coborare)
Stații tramvai aprox. 110 m
metro-station
Eroii Revolutiei (M2)
Stații metrou aprox. 420 m
Școală
school
Institutul Teologic Catolic "Sf. Iosif" (en)
Școli aprox. 250 m
school
Colegiul romano-catolic Sfantul Iosif
Școli aprox. 250 m
kindergarten
Ursuletul de Plus - Gradinita de vara&afterschool
Gradinițe aprox. 487 m
university
Academie de Studii Postuniversitare - Politie
Universități aprox. 1402 m
Recreere
supermarket
BILLA - Eroii Revolutiei
Supermarket aprox. 139 m
public-square
Piata Eroii Revolutiei (en)
Piețe publice aprox. 460 m
sports-ground
Teren sportiv
Terenuri sport aprox. 573 m
park
Parc
Parcuri aprox. 645 m

Detalii despre preț și costuri

Prețul pe piață

Preț cerut: 240.000 €

Preț min. zonă 59.000 €
Preț max. zonă 137.900 €

i

Proprietate cu prețul cerut în afara intervalului mai multe...

Posibile explicații pentru faptul că prețul proprietății este peste cel maxim: imobil nou cu suprafață mare, are dotări și finisaje de lux.
Bine de știut: prețul unei proprietăți este influențat și de alte caracteristici, cum ar fi: vechime, localizare, vecinătăți, suprafață, compartimentare, amenajări, dotări, etc.

Costuri cu achiziția

Fără credit
12.868 RON
Credit ipotecar
15.213 RON
Noua casă
1.619 RON+ taxe notariale

i

Costuri adiționale mai puțin știute la achiziție: taxe notariale, comisioane etc.

Proprietăți recomandate

Detalii de contact

SUD REZIDENTIAL

Sudrezidential

3.89(12 review-uri)

SUD REZIDENTIAL
PRO

Abonează-te la newsletter să fii primul care primește cele mai noi recomandări de proprietăți și sfaturi de la experți.

CONTACT

Creează alertă

Salvează căutarea ca să primești pe email ultimele anunțuri publicate

Apartamente cu 2 camere de vânzare în zona Eroii Revoluției, Sector 4