Apartament cu 3 camere, terasa si curte generoasa, acces rapid Eroii Revolutiei

265.000 € + TVA

Eroii Revoluției, București

Nr. cam.:
3
Sup. utilă:
77,7 mp
Etaj:
Parter / 3
An constr.:
2025 (În construcție)
  • • Comision 0%
  • • Locație aproximativă

Descriere apartament

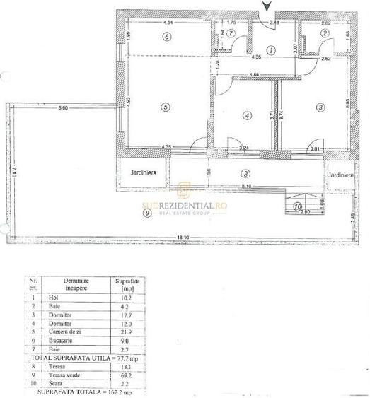
Daca iti doresti un apartament modern cu un spatiu exterior generos, aceasta locuinta de 77.7 mp utili este alegerea perfecta. Situat la parterul unui imobil nou, apartamentul beneficiaza de o terasa de 13.1 mp si o curte privata de 69.2 mp, oferindu-ti astfel un stil de viata relaxat, departe de agitatia urbana. Compartimentarea inteligenta a apartamentului include: - Living generos + bucatarie 30.9 mp - Dormitor principal de 17.7 mp cu baie de 4.2 mp - Al doilea dormitor de 12 mp - Baie 2.7 mp, echipata cu finisaje premium - Hol de acces de 10.2 mp, cu posibilitati ample de depozitare - Terasa si curte privata, ideale pentru relaxare in aer liber sau amenajarea unui spatiu de joaca pentru copii. Acest apartament nu este doar despre spatiul interior, ci si despre facilitatile premium ale ansamblului: - Acces securizat, monitorizare video si sistem de control al intrarilor. - Locuri de parcare disponibile atat subteran, cat si suprateran. - Zone verzi si spatii de relaxare, special gandite pentru confortul locatarilor. - Cladire construita cu materiale de calitate superioara, incluzand izolatie cu vata bazaltica si caramida Porotherm. - Sistem de incalzire prin pardoseala, pentru un confort termic optim. Vecinatati si accesibilitate: Imobilul este situat intr-o zona cu infrastructura moderna, facilitand accesul rapid catre principalele puncte de interes din Sector 4: Transport in comun: - Metrou Eroii Revolutiei la 10 minute de mers pe jos. - Statii STB la 2 minute pietonal, cu linii ce asigura conexiuni rapide spre centrul orasului. - Tramvaiele 7, 19, 25, ideale pentru deplasari rapide in Bucuresti. Centre comerciale si piete: - Piata Progresul, modernizata recent, ideala pentru cumparaturi zilnice. - Zone comerciale precum Carrefour, Kaufland, Lidl, Mega Image, situate in apropiere. Unitati de invatamant si sanatate: - Scoli si gradinite aflate la distante accesibile, potrivite pentru familiile cu copii. - Spitale si clinici private in imediata proximitate, asigurand servicii medicale de calitate. Parcuri si zone de recreere: - Parcul Tineretului si Oraselul Copiilor la cateva minute distanta, perfecte pentru plimbari si activitati in aer liber. - Acces facil catre sali de fitness, piscine si terenuri de sport. Pentru detalii suplimentare si programari pentru vizionare, nu ezitati sa ne contactati! In pretul afisat nu este inclusa cota de TVA.
Citește mai mult Citește mai puțin
Confort 1 Nemobilat Curte Aer condiționat Centrală proprie Încălzire prin pardoseală

Detalii apartament

ID anunț: X53U100LS Copiat! 254390808 Copiat!
Actualizat în: 02 Ianuarie 2026
Suprafață construită: 88.5 mp
Nr. bucătării: 1
Nr. băi: 2
Structură rezistență: Beton
Tip imobil: Bloc de apartamente
Regim înălțime: S+P+3E
Nr. terase: 1

Utilități

Destinație
Birouri Rezidențial
Pereți
Faianță Vopsea lavabilă
Podele
Gresie Parchet
Ușă intrare
Metal
Uși interior
Lemn
Izolații termice
Exterior
Ferestre cu geam termopan
PVC
Contorizare
Apometre Contor căldură Contor gaz
Alte spații utile
Terasă
Facilități imobil
Lift Videointerfon
Utilități
Curent Apă Canalizare Gaze
Internet
Cablu
Amenajare străzi
Iluminat stradal Mijloace de transport în comun Asfaltate
Comision
0%

Disponibilitate proprietate:

03.2025

Puncte de interes

Mijloace transport
bus-station
Statia Muzeul Bacovia, linia 323, N107, 7,25
Stații autobuz aprox. 319 m
bus-station
Statia Piata Progresul, linia 323, N107,7,25
Stații autobuz aprox. 406 m
tram-station
Sura Mare
Stații tramvai aprox. 531 m
metro-station
Eroii Revolutiei (M2)
Stații metrou aprox. 888 m
Școală
school
cresa giurgiului
Școli aprox. 128 m
school
gradinita
Școli aprox. 133 m
kindergarten
Gradinita Alba ca Zapada si Piticii
Gradinițe aprox. 252 m
university
Academie de Studii Postuniversitare - Politie
Universități aprox. 1359 m
Recreere
supermarket
Mega Image
Supermarket aprox. 247 m
park
Playground Livada
Parcuri aprox. 349 m
sports-ground
Sala de Sport
Terenuri sport aprox. 417 m
public-square
Piata Eroii Revolutiei (en)
Piețe publice aprox. 932 m

Detalii despre preț și costuri

Prețul pe piață

Preț cerut: 265.000 €

Preț min. zonă 84.000 €
Preț max. zonă 219.000 €

i

Proprietate cu prețul cerut în afara intervalului mai multe...

Posibile explicații pentru faptul că prețul proprietății este peste cel maxim: imobil nou cu suprafață mare, are dotări și finisaje de lux.
Bine de știut: prețul unei proprietăți este influențat și de alte caracteristici, cum ar fi: vechime, localizare, vecinătăți, suprafață, compartimentare, amenajări, dotări, etc.

Costuri cu achiziția

Fără credit
13.915 RON
Credit ipotecar
16.389 RON
Noua casă
1.775 RON+ taxe notariale

i

Costuri adiționale mai puțin știute la achiziție: taxe notariale, comisioane etc.

Proprietăți recomandate

Detalii de contact

SUD REZIDENTIAL

Sudrezidential

3.89(12 review-uri)

SUD REZIDENTIAL
PRO

Abonează-te la newsletter să fii primul care primește cele mai noi recomandări de proprietăți și sfaturi de la experți.

CONTACT

Creează alertă

Salvează căutarea ca să primești pe email ultimele anunțuri publicate

Apartamente cu 3 camere de vânzare în zona Eroii Revoluției, Sector 4