ID 2C118
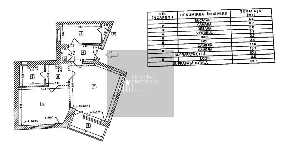
Va propunem spre vanzare un apartament de 2 camere, 54mp utili, spatios si bine compartimentat, la cateva minute de mers pe jos Statia de metrou Timpuri Noi si Statia de metrou Tineretului.
Apartamentul este renovat in luna ianuarie, s-au schimbat instalatiile electrice si sanitare.
Blocul se afla in apropierea intersectiei dintre strada Tohani cu Strada Viorele, o zona este deosebit de frumoasa, zona selecta.
Blocul din 1978, scara de bloc curata, vecini linistiti, civilizati.
Acces in Parcul Tineretului la cateva minute de scara blocului, peste cateva strazi acces in Parcul Carol.
In apropiere Colegiul Sincai, Universitatea Titu Maiorescu, Universitatea Dimitrie Cantemir.
Gradinite si scoli in imediata apropiere, magazine si supermarketuri.
La cateva minute Palatul Copiilor cu activități si spectacole pentru copii de toate varstele.
Linii de tramvai, de autobuz si de troleibuz în apropierea blocului.
Detalii apartament:
• Suprafata 54 mp utili
• Camere: 2 camere
• Renovat acum 2026, instalatii electrice si sanitare schimbate
• Etaj: 10 bloc solid, din beton, construit 1978
• Parcuri si zone verzi pentru relaxare în apropiere
• Acces rapid la centre comerciale
Locatia centrala il face potrivit si pentru uz comercial - spatiu birouri, sediu firma, inchiriere in regim hotelier.
Nu ratati ocazia de a cumpara acest apartament unic într-o zona deosebita, cu toate facilitatile la îndemana !
Pentru mai multe detalii : Agentia Imobiliara – Ramiro Imob –
77%dintre proprietățile similare ca zonă și nr. camere au prețul cerutmai mare.
mai multe...
Bine de știut: prețul unei proprietăți este influențat și de alte caracteristici, cum ar fi: vechime, localizare, vecinătăți, suprafață, compartimentare, amenajări, dotări, etc.
mai puțin...
Costuri cu achiziția
Fără credit
6.983 RON
Credit ipotecar
8.600 RON
Noua casă
746 RON+ taxe notariale
i
Costuri adiționale mai puțin știute la achiziție: taxe notariale, comisioane etc.
Calculul ipotecarului
Proprietăți similare
129.900 €
București, Tineretului
2 camere
60 mp
Etaj 7 / 8
129.800 €
București, Tineretului
2 camere
61 mp
Etaj 7
109.900 €
București, Tineretului
2 camere
46 mp
Etaj 10 / 10
Detalii de contact
Acestă agenție te poate ajuta să obții o soluție de finanțare potrivită nevoilor tale. Solicită-i informații suplimentare.
Sediul central - Timișoara
Bulevardul Victor Babeș nr. 2, 300230, Timișoara, România
Tel: +40.374.40.44.98 / Fax: +40.256.401.179
Email: suport@imobiliare.ro
Luni - Vineri 08:00 - 20:00
Punct de lucru - București: Iride Business Park, Bld. Dimitrie
Pompeiu 9-9A, Clădirea B2B,
020335, Sector 2, București, România
CONTACT
Sediul central - Timișoara
Bulevardul Victor Babeș nr. 2, 300230, Timișoara, România
Tel: +40.374.40.44.98 / Fax: +40.256.401.179
Email: suport@imobiliare.ro
Luni - Vineri 08:00 - 20:00
Punct de lucru - București: Iride Business Park, Bld. Dimitrie
Pompeiu 9-9A, Clădirea B2B,
020335, Sector 2, București, România
Statia Bd. Tineretului / Soseaua Mihai Bravu, linia 133, 223, 312, 313, 381, 634, N105
aprox.
1065 m
Statia Pod Mihai Bravu, linia 223, 124
aprox.
1098 m
Mihai Bravu
aprox.
1238 m
Statia Costache Stamate, linia 312, 313, 381, 634, N105
aprox.
1310 m
Statia Parcul Carol I linii : 232, 7, 23, 27, 47
aprox.
1326 m
Statia Parcul Carol I, linia 232, 7, 23, 27, 47
aprox.
1351 m
statia Gramont, linia 7, 23, 27, 47
aprox.
1433 m
Metrorex. StațiaTimpuri Noi (M1),(M3)(1979)
aprox.
411 m
Timpuri Noi
aprox.
421 m
Tineretului (M2)
aprox.
466 m
Statia Metrou Tineretului(M2)Metrorex
aprox.
478 m
Metrorex. Stația Tineretului (M2)(1986)
aprox.
528 m
Metrorex. Stația Mihai Bravu (M1) , (M3).
aprox.
1195 m
Metrorex. Stația Mihai Bravu (M1) , (M3)(1981)
aprox.
1264 m
Metrorex. Stația Mihai Bravu (M1) , (M3).
aprox.
1338 m
Metrorex. Stația Eroii Revoluției (M2)(1986)
aprox.
1528 m
Statia Eroii Revolutiei, M2
aprox.
1551 m
Eroii Revolutiei (M2)
aprox.
1561 m
Metrorex. Stația Piața Unirii 1 (M1),(M3)(1979)
aprox.
1601 m
Piata Unirii 2
aprox.
1640 m
Metrorex. Stația Constantin Brâncoveanu (M2)(1988)
aprox.
1642 m
Metrorex. Stația Piața Unirii 2 (M2)(1986)
aprox.
1665 m
Gradinita (progr. prelungit) Aleea Borcea - Str. Ruginoasa
aprox.
141 m
Gradinita "Scufita Rosie"
aprox.
580 m
Gradinita cu program prelungit Copiii Soarelui
aprox.
810 m
Gradinita de Copii nr.30 "Copiii soarelui
aprox.
880 m
Gradinita de copii nr.161
aprox.
1022 m
Gradinita Barba Cot
aprox.
1089 m
Gradinita Kogaion
aprox.
1119 m
Gradinita
aprox.
1207 m
Cresa Micii Poznasi
aprox.
1307 m
Gradinita Plusica
aprox.
1340 m
Gradinita Pisicel
aprox.
1400 m
GRĂDINIȚA DE COPII NR. 168
aprox.
1538 m
Gradinita cu orar prelungit nr. 168
aprox.
1538 m
Gradinita nr. 224
aprox.
1571 m
Gradinita nr.224, "Vestitorii Primaverii"
aprox.
1577 m
Universitatea "Nicolae Titulescu" - Bucuresti
aprox.
303 m
Universitatea Nicolae Titulescu
aprox.
305 m
Universitatea "Titu Maiorescu"
aprox.
307 m
Universitatea Titu Maiorescu
aprox.
307 m
Universitatea Titu Maiorescu - Corp M
aprox.
356 m
Universitatea Crestina "Dimitrie Cantemir"
aprox.
374 m
Universitatea Titu Maiorescu - Rectorat
aprox.
435 m
Academia de Studii Economice
aprox.
1330 m
Academia de Studii Economice: Facultatea de Management - Administratie Publica
aprox.
1334 m
Facultatea de Teologie Ortodoxa
aprox.
1429 m
Institutul Bancar Român
aprox.
1548 m
Academia Tehnica Militara
aprox.
1980 m
Liceul Petru Rares
aprox.
382 m
Liceul Teologic Penticostal "Emanuel"
aprox.
563 m
Scoala nr.79 "Academician Nicolae Teodorescu"
aprox.
635 m
scoala populara de arta
aprox.
665 m
B.C.A. (en)
aprox.
672 m
Colegiul National "Ion Creanga"
aprox.
672 m
Scoala de Arta
aprox.
674 m
Palatul National al Copiilor
aprox.
762 m
Școala 81
aprox.
765 m
Scoala generala nr. 81
aprox.
781 m
Scoala Generala nr.81
aprox.
781 m
Gradinita Aniela
aprox.
808 m
Scoala 100 Andrei Saguna
aprox.
967 m
Scoala Nr. 95
aprox.
1028 m
Scoala nr 95
aprox.
1028 m
Profi Non-Stop Vacaresti
aprox.
302 m
Penny Market
aprox.
321 m
Mega Image
aprox.
333 m
Mega Image
aprox.
384 m
Giulio Pantofi la comanda
aprox.
474 m
Mega Image
aprox.
597 m
Nerva Center
aprox.
698 m
Mega Image - Apahida
aprox.
735 m
Supermarket Fonzi
aprox.
886 m
Supermarket Sinbad
aprox.
904 m
MGV Green Expres
aprox.
905 m
Mega Image (en)
aprox.
940 m
MGV Supermarket Zeno
aprox.
985 m
ClicMarket
aprox.
989 m
Shop & Go
aprox.
1027 m
Bucharest, Calea Vitan nr. 8, Bl V51, near VITAN Mall
aprox.
1372 m
Parcare
aprox.
275 m
Parcare privata
aprox.
388 m
Parcare
aprox.
417 m
Parcare
aprox.
446 m
Parcare
aprox.
567 m
Parcare
aprox.
618 m
Parcare
aprox.
681 m
Parcare
aprox.
698 m
Parcare
aprox.
727 m
Parcare
aprox.
734 m
Parcare
aprox.
736 m
Parcare
aprox.
756 m
Parcare privata
aprox.
779 m
Parcare
aprox.
797 m
Parcare
aprox.
814 m
Parc
aprox.
81 m
Parc
aprox.
223 m
Park
aprox.
246 m
Parc
aprox.
364 m
Fantanile - Parc Tineretului
aprox.
488 m
Parc
aprox.
491 m
Park (en)
aprox.
500 m
Parc
aprox.
566 m
Parcul Tineretului
aprox.
846 m
Parcul Tineretului
aprox.
847 m
Parc
aprox.
849 m
Parculet (en)
aprox.
862 m
Parc
aprox.
869 m
Parc
aprox.
879 m
Parc
aprox.
898 m
Teren sportiv
aprox.
256 m
Teren sportiv
aprox.
293 m
Teren sportiv
aprox.
320 m
Teren sportiv
aprox.
620 m
Teren sportiv
aprox.
632 m
Teren sportiv
aprox.
642 m
Teren sportiv
aprox.
645 m
Teren sportiv
aprox.
676 m
Teren sportiv
aprox.
686 m
Teren sportiv
aprox.
699 m
Teren sportiv
aprox.
809 m
Teren sportiv
aprox.
867 m
Skate Park Tineretului
aprox.
916 m
Teren sportiv
aprox.
1021 m
Teren sportiv
aprox.
1025 m
Piata Bucur
aprox.
878 m
Piata Bibescu
aprox.
1518 m
Piata Eroii Revolutiei (en)
aprox.
1524 m
Piața Regina Maria
aprox.
1823 m
Piața Sfântul Anton
aprox.
1901 m
Piata Timpului
aprox.
1951 m
Farmacia Eliana
aprox.
162 m
Catena
aprox.
272 m
Leni Farm
aprox.
280 m
Help Net Farma
aprox.
289 m
Farmacia Belladonna 17
aprox.
301 m
Farmacia Bucuresti Tehnoplus Farm
aprox.
305 m
2na
aprox.
351 m
Farmacia Belladonna 63
aprox.
376 m
Orbit 93
aprox.
471 m
Farmacia 50
aprox.
605 m
micaplant
aprox.
674 m
Tinos-Farm
aprox.
696 m
Farmacia Farmadex
aprox.
953 m
Help Net
aprox.
969 m
Alma Farm Com 95
aprox.
1020 m
Biostom Bucuresti
aprox.
409 m
Eurodent
aprox.
431 m
Life Med
aprox.
550 m
Spitalul de dermato-venerologie "Prof. Dr. Scarlat Longhin" (ABANDONAT)
aprox.
657 m
Zerlendi
aprox.
803 m
Plastic Surgery Clinic (en)
aprox.
840 m
Maternitatea Bucur
aprox.
901 m
Europe EYE Hospital (en)
aprox.
902 m
Europe Eye
aprox.
902 m
Medicover (en)
aprox.
935 m
Clinica Polisano
aprox.
996 m
SYNEVO
aprox.
1128 m
Policlinica
aprox.
1137 m
Clinica Audionova
aprox.
1140 m
Oftapro
aprox.
1242 m
Restaurant De Cartier
aprox.
79 m
De Cartier
aprox.
79 m
Restaurant Rustic
aprox.
92 m
Restaurant Contesa
aprox.
194 m
Sare si Piper - Salt 'n Pepper
aprox.
214 m
Restaurant Sare si Piper
aprox.
220 m
Creative Food
aprox.
311 m
Restaurant Timpuri Noi + Autoservirea
aprox.
328 m
Pizza Zoom
aprox.
335 m
Bellini
aprox.
380 m
Restaurantul La Misto
aprox.
395 m
La Calinescu Taverna
aprox.
395 m
Thalia Tineretului
aprox.
404 m
Mauve Coffee
aprox.
421 m
Restaurant Bucur
aprox.
487 m
Cafe Boulevard
aprox.
260 m
Quartier
aprox.
607 m
Cafe Torino
aprox.
1037 m
Maroon Caffe
aprox.
1091 m
Zebra Caffe
aprox.
1127 m
gloria jeans coffee
aprox.
1358 m
Sfera caffe
aprox.
1398 m
Kahve Dunyasi
aprox.
1441 m
Bistro 33 Cafe
aprox.
1490 m
Starbucks
aprox.
1554 m
Angel Cafe
aprox.
1646 m
The Godfather
aprox.
1653 m
Dalidana
aprox.
1683 m
Miau
aprox.
1717 m
Cofetaria Raisa
aprox.
1718 m
Forno d'oro
aprox.
450 m
Kaffa Pub
aprox.
867 m
The 1st Pub
aprox.
1009 m
The Temple
aprox.
1011 m
Carol Cafe
aprox.
1253 m
Long Fong
aprox.
1394 m
Club Fabrica
aprox.
1421 m
The Harp
aprox.
1439 m
Roof
aprox.
1453 m
Beraria Berestoika
aprox.
1533 m
Pizzeria Classic
aprox.
1538 m
Jukebox
aprox.
1861 m
Atelierul Mecanic
aprox.
1972 m
The Bankers
aprox.
1983 m
Pe baricade
aprox.
1263 m
Club Expirat
aprox.
1400 m
Nargila Grill&Bar
aprox.
1456 m
Bar
aprox.
1480 m
Terasa Ancor
aprox.
1676 m
BarFly
aprox.
1706 m
Braserie Cosbuc
aprox.
1777 m
Network Lounge
aprox.
1912 m
Vecchio
aprox.
1944 m
City Grill Covaci
aprox.
1951 m
True Social Club
aprox.
1957 m
B Bar
aprox.
1959 m
Pure
aprox.
1976 m
Big Mamou
aprox.
1980 m
Up Club
aprox.
1991 m
UniCredit Bank - Ag. Norilor
aprox.
150 m
Banca Țiriac
aprox.
154 m
Raiffeisen Bank
aprox.
321 m
Sucursala BCR Gheorghe Sincai
aprox.
334 m
Banca Transilvania - Ag. Tineretului
aprox.
369 m
Sucursala ING Bank (en)
aprox.
373 m
ING Tineretului
aprox.
383 m
BCR
aprox.
383 m
BRD Sincai
aprox.
393 m
Banca Carpatica
aprox.
517 m
Sucursala CEC Bank Timpuri Noi (en)
aprox.
569 m
Piraeus Bank
aprox.
762 m
Pireus Bank
aprox.
763 m
BRD Nerva Traian
aprox.
830 m
Banca Raiffeisen
aprox.
912 m
Dacă te vei muta în acest cartier, vei avea la dispoziție două stații de metrou care îți vor face călătoriile prin oraș mult mai ușoare și mai rapide. Este vorba despre Tineretului, stație situată pe magistrala 2 Berceni - Pipera, și despre Timpuri Noi, de unde poți lua metroul atât pentru a te deplasa pe ruta magistralei 1 Dristor - Pantelimon, cât și pe M2 Preciziei - Anghel Saligny. De la Tineretului ajungi, de exemplu, la Piața Universității în 5 minute și în Pipera în circa 15 minute. Alte mijloace de transport în comun care traversează zona de care ești interesat sunt tramvaiul 19, cu care poți să mergi către sud-estul orașului (Titan - Pallady), autobuzul 133 care îți oferă o legătură directă cu Piața Romană și troleibuzul 74 care ajunge la Piața Unirii.
Trei universități private își au sediul în această zonă, în imediata vecinătate a stației de metrou Timpuri Noi. Este vorba despre Universitatea "Titu Maiorescu", Universitatea "Nicolae Titulescu" și Universitatea Creștină "Dimitrie Cantemir". Alături de acestea este situat și Căminul Studențesc "Nicolae Titulescu". Unul dintre cele mai renumite licee din București poate fi găsit tot în această zonă. Colegiul Național "Gheorghe Șincai" se află lângă stația de metrou Tineretului. Caută pe hartă care vor fi cele mai apropiate instituții de învățământ de viitoarea ta locuință.
Multe dintre blocurile din această zonă dispun de spații comerciale la parter, deci chiar și atunci când vrei să faci doar câteva cumpărături rapide vei avea destul de multe opțiuni în apropiere. Poți cumpăra fructe și legume din Piața Norilor, aflată la doi pași de stația de metrou Tineretului, sau din Piața Timpuri Noi, situată lângă clădirea Universității "Titu Maiorescu". În vecinătatea acesteia vei găsi și un supermarket Profi. Chiar lângă Pasajul Mihai Bravu vei avea la dispoziție un magazin Lidl. Ajungi, totodată, rapid din zona Tineretului - Timpuri Noi la trei mall-uri: Sun Plaza, București Mall și ParkLake. La fel, în doar câteva minute ești cu mașina în centru. Consultă harta și vezi unde găsești cel mai apropiat magazin de viitoarea ta locuință.
O parcare publică cu câteva sute de locuri, dar și stații de încărcare pentru autovehiculele electrice este amplasată chiar lângă Palatul Național al Copiilor. Tot în apropiere, lângă Sala Polivalentă, ai câteva locuri de parcare la dispoziție, dacă ajungi la parc cu mașina. Îți recomandăm, totodată, să apelezi la Direcția Mobilitate Urbană Sector 4 dacă vei dori să închiriezi un loc de parcare în apropierea viitoarei tale locuințe. Un alt lucru pe care e bine să îl știi este că intersecția dintre Calea Șerban Vodă și bulevardele Tineretului, Gheorghe Șincai și Dimitrie Cantemir este una dintre cele mai aglomerate din zonă, în special la orele de vârf.
Zona Tineretului-Timpuri Noi îți oferă numeroase opțiuni de petrecere a timpului liber și poate fi ideală dacă ai copii. Vei avea la doi pași de casă Parcul Tineretului unde aceștia se pot plimba cu rolele sau cu bicicleta. Îi poți duce, totodată, la joacă în spațiile special amenajate pentru ei din Orășelul Copiilor. În zonă vei găsi un club cu terenuri de tenis, restaurant și piscină aflat vis-a-vis de Sala Polivalentă unde sunt organizate periodic târguri și diferite evenimente culturale și sportive. Palatul Național al Copiilor trebuie menționat fiind reprezentativ pentru acest cartier. Aici îți poți înscrie micuțul la diferite cluburi. În incinta sa funcționează și Teatrul Stela Popescu, iar lângă el, spre Pasajul Mihai Bravu vei găsi Parcul Lumea Copiilor. Acesta din urmă cuprinde mai multe terenuri sportive și chiar și o pistă de karting. Parcul Carol se află și el în apropiere. Aici vei găsi Arenele Romane, unde se organizează periodic concerte. Ajungi foarte rapid și în Parcul Natural Văcărești, dacă vrei să evadezi în natură câteva ore sau să te plimbi cu bicicleta. În zona Tineretului ai la dispoziție câteva restaurante și cafenele, iar pentru mai multă diversitate poți oricând să dai o fugă în Centrul Vechi al orașului. Dacă te vei muta aici, vei ajunge rapid la trei mall-uri - Sun Plaza, București Mall, ParkLake - și la centrul comercial Unirea Shopping Center. Află unde sunt localizate toate acestea de pe hartă.
La doi pași de Bulevardului Mărășești este localizată Maternitatea Bucur, iar unul dintre cele mai apropiate spitale private la care vei avea acces dacă te muți în zona Tineretului - Timpuri Noi este Monza Metropolitan Hospital de pe Calea Șerban Vodă. Institutul de Pneumologie Marius Nasta IV și Policlinica cu Plată nr. 3 pot fi găsite și ele în vecinătatea Parcului Tineretului. Consultă harta pentru a vedea ce alte unități sanitare sunt disponibile în zonă și în apropiere.
Ai la dispoziție câteva restaurante și terase pe principalele artere de circulație din zonă. Pe Bulevardul Dimitrie Cantemir găsești o cofetărie și una dintre cele mai apreciate shaormerii din oraș, pe Bulevardul Gheorghe Șincai o serie de cafenele, iar pe Calea Văcărești câteva restaurante. Poți lua o gustare și în cadrul proiectului dezvoltat de Vastit vis-a-vis de stația de metrou Timpuri Noi. Alte câteva opțiuni găsești și pe Strada Nerva Traian din apropiere. Mici terase pot fi găsite și în zona parcurilor la care ai acces în apropierea casei tale, iar dacă ai poftă de fast food poți să mergi la drive through-ul McDonald"™s situat lângă intrarea în Orășelul Copiilor sau la food court-ul din Sun Plaza. Ajungi în doar câteva minute cu mașina și la mall-urile ParkLake sau București Mall pentru o sesiune de shopping urmată de o gustare, iar dacă vrei mai multă diversitate poți să mergi, chiar și cu mijloacele de transport în comun, până în centrul orașului. Durează foarte puțin și vei găsi cu siguranță ceva pe gustul tău. Consultă harta și află ce restaurante, terase și fast food-uri ai lângă viitoarea ta locuință din zona Tineretului - Timpuri Noi.
Ai la dispoziție mai multe ATM-uri și sucursale bancare în intersecția aflată lângă Colegiul Național "Gh. Șincai" - ING, BRD, Raiffeisen Bank. La doi pași găsești și o Banca Transilvania. Consultă pe hartă și află unde se află cel mai apropiat bancomat de locuința ta.
Înainte să pleci...
Ești sigur că ai văzut și aceste proprietăți?
129.900 €
București, Tineretului
2 camere
60 mp
Etaj 7 / 8
129.800 €
București, Tineretului
2 camere
61 mp
Etaj 7
109.900 €
București, Tineretului
2 camere
46 mp
Etaj 10 / 10
Creează alertă
Salvează căutarea ca să primești pe email ultimele anunțuri publicate
Apartamente cu 2 camere de vânzare în zona Tineretului, Sector 4
Cere detalii prin email
*
*
*
*
Detaliile tale de contact vor fi partajate cu Ramiro Imob
Statistici proprietate
Apartamente 2 camere de vânzare
- București
- Zona Tineretului
Asigurare de viață/lună Costul este variabil. În funcție de banca aleasă, procentul variază între 0.0259% și 0.035% din soldul creditului.
Costuri cu achiziția8.600 RON
Comision agenție Întreabă agenţia
Onorariu notarial6.075 RON
Taxă întabulare OCPI908 RON
Autentificare contract credit1.617 RON
Preț de achiziție605.637 RON
Preț locuință605.637 RON
TVA 0%Inclus în prețul cerut
Preț de achiziție605.637 RON
Preț locuință605.637 RON
TVA 0%
Inclus în prețul cerut
Avans minim90.846 RON
Credit pe 30 de ani514.792 RON
Cost achitat în prima lună
Taxa evaluare imobil(până la)
575 RON
Rata lunară (variabilă)3.617 RON
Depozit colateral10.851 RON
Comision de garantare FNGCIMM50 RON
Asigurare anuală imobil606 RON
Poliță PAD130 RON
Tarif arhivă electronică102 RON
Costuri adiționale746 RON + taxe notariale
Asigurare viață și complexă (opțională)Costul este variabil. În funcție de banca aleasă, procentul variază între 0.0259% și 0.035% din soldul creditului
Onorariu notarialconform tarif notarial
Taxă întabulare OCPI746 RON
i
Toate valorile de mai sus sunt estimative și nu reprezintă în mod obligatoriu costurile exacte pe care le veți primi de la companiile/instituțiile prin care veți încheia tranzacția.