3

Apartament 3 camere | Bloc nou | Calea 13 Septembrie | Metrou Icomision 0

256.640 € + TVA

13 Septembrie, București

Nr. cam.:
3
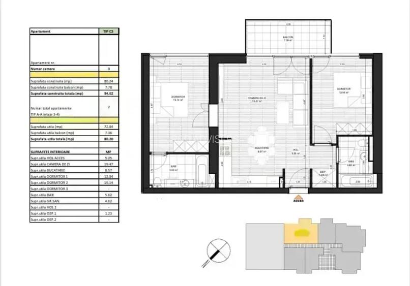
Sup. utilă:
73 mp
Etaj:
4 / 11
An constr.:
2024 (Finalizată)
  • • Locație exactă

Descriere apartament

Da-ne voie sa ne prezentam! Suntem o echipa de dezvoltare imobiliara curajoasa, unita prin acelasi ideal, acela de a oferi oamenilor oportunitatea de a investi in locuinte trainice si confortabile adaptate nevoilor contemporane! Un reper de localizare al ansamblului Best Residence este Hotelul Marriott care se afla la aproximativ 100m distanta. Este situat in inima orasului, intr-o zona istorica, de interes national, financiar si cultural ce cuprinde colosalul Palat al Parlamentului, Muzeul National de Arta Contemporana ,Gradina Botanica si Ministerul Apararii Nationale. In imediata apropiere se afla parcul Izvor, Afi Palace Cotroceni, centre comerciale, sali de fitness, unitati medicale, institutii bancare si de invatamant. Ca si mijloace de transport, avem statia de metrou Academia Militara la 0,5 km distanta iar statia de RATB se afla la 1 minut de mers pe jos. Este cu siguranta o zona care satisface cerintele celor mai pretentiosi cumparatori! In viziunea noastra, o locuinta trebuie sa treaca testul timpului, sa devina un punct de reper pentru generatii la rand. De aceea, pentru a ne asigura de calitatea lucrarilor, am cooptat ca partener o respectabila si profesionista companie de constructii, Conarg Ag, cu un portofoliu considerabil, iar pe partea de infrastructura am ales compania Apolodor cu o vasta experienta acumulata in cei peste 28 ani pe piata constructiilor din Romania. De asemenea, Best Residence va pune la dispozitie finisaje de lux oferite de furnizori consacrati, lideri la nivel international in materiale de calitate si confort: Tamplarie exterioara din aluminiu cu geam termopan; Obiecte santinare: gresie, faianta; Unitate aer conditionat de tip multisplit cu convectoare incastrate; Parchet de calitate superioara; Usile interoare Filomuro; Sistem de incalzire prin pardoseala; Fatada ventilata; Pereti din caramida Porotherm; Izolatia blocului va fi compusa din vata bazaltica de 10; Sistem de supraveghere video si paza; Apartamente luminoase cu vedere panoramica; 2Lifturi; 2Centrale bloc. Pret : 256640€ + TVA Loc de parcare inclus in pret Pozele sunt cu titlu de prezentare. Pentru mai multe informatii sau pentru a programa o vizionare va rugam sa ne contactati! Oana Sipoteanu VAUNT ID: 108150
Citește mai mult Citește mai puțin
Confort lux Decomandat Nemobilat 1 Balcon / Terasă / Logie Aer condiționat Centrală imobil Încălzire prin pardoseală Beci 1 Parcare Bine întreținut (Bună)

Detalii apartament

ID anunț: X7QH2007S Copiat! 274341397 Copiat!
Actualizat în: 22 Ianuarie 2026
Suprafață utilă totală: 73 mp
Suprafață construită: 86 mp
Nr. bucătării: 1
Nr. băi: 2
Structură rezistență: Beton
Tip imobil: Bloc de apartamente
Regim înălțime: S+P+11E

Utilități

Destinație
Rezidențial Comercial
Pereți
Vopsea lavabilă Faianță
Podele
Gresie Marmură
Ușă intrare
Parchet Metal
Ferestre cu geam termopan
Aluminiu Lemn
Contorizare
Apometre Contor căldură Contor gaz
Diverse
Senzor de fum Telecomandă poartă garaj Telecomandă poartă acces auto
Alte spații utile
WC Serviciu Debara
Facilități imobil
Videointerfon Interfon Lift
Utilități
Gaze CATV Curent Apă Canalizare
Internet
Fibră optică Cablu Wireless
Servicii imobil
Administrare Pază Supraveghere video
Amenajare străzi
Iluminat stradal Mijloace de transport în comun Asfaltate Betonate

Certificat energetic:

Clasa energetică: A

Puncte de interes

Mijloace transport
bus-station
statia Soseaua Pandurilor, linia 385, 136, N121, N122, 226, 122
Stații autobuz aprox. 96 m
tram-station
Statie RATB
Stații tramvai aprox. 313 m
metro-station
Academia Militară (M5)
Stații metrou aprox. 1077 m
trolleybus-station
Statia Piata Operei, linia 61,69,90,91
Stații troleibuz aprox. 1158 m
Școală
school
Scoala Nr. 115
Școli aprox. 364 m
school
Scoala nr 115
Școli aprox. 377 m
kindergarten
Gradinita Adnan
Gradinițe aprox. 524 m
university
Universitatea Nationala de Aparare "Carol I"
Universități aprox. 803 m
Recreere
park
Parc
Parcuri aprox. 68 m
public-square
Jose Rizal Square (en)
Piețe publice aprox. 107 m
supermarket
Carrefour express
Supermarket aprox. 322 m
sports-ground
Teren sportiv
Terenuri sport aprox. 323 m

Detalii despre preț și costuri

Prețul pe piață

Preț cerut: 256.640 €

Preț min. zonă 109.000 €
Preț max. zonă 306.000 €

98% dintre proprietățile similare ca zonă și nr. camere au prețul cerut mai mic. mai multe...

Bine de știut: prețul unei proprietăți este influențat și de alte caracteristici, cum ar fi: vechime, localizare, vecinătăți, suprafață, compartimentare, amenajări, dotări, etc. mai puțin...

Costuri cu achiziția

Fără credit
13.560 RON
Credit ipotecar
15.991 RON
Noua casă
1.722 RON+ taxe notariale

i

Costuri adiționale mai puțin știute la achiziție: taxe notariale, comisioane etc.

Proprietăți recomandate

Detalii de contact

R&D ADVISERS

Oana Sipoteanu Project Manager

4.33(9 review-uri)

R&D ADVISERS
PRO

Abonează-te la newsletter să fii primul care primește cele mai noi recomandări de proprietăți și sfaturi de la experți.

CONTACT

Creează alertă

Salvează căutarea ca să primești pe email ultimele anunțuri publicate

Apartamente noi cu 3 camere de vânzare în zona 13 Septembrie, Sector 5