3 camere | Dr Taberei – Vlădeasa | 63 mp | Etaj 3 | Bloc reabilitat

143.000 €

Drumul Taberei, București

Nr. cam.:
3
Sup. utilă:
63 mp
Etaj:
3 / 10
Tip prop.:
Bloc de apartamente
  • • Locație aproximativă

Descriere apartament

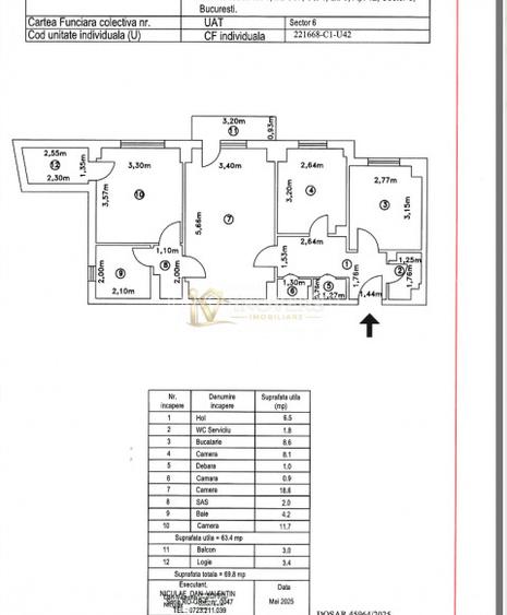
INOVERS IMOBILIARE vă prezintă s pre vânzare un apartament cu 3 camere, situat în zona Dr Taberei, pe Strada Vlădeasa, într-o zonă liniștită și bine conectată la principalele puncte de interes din Sectorul 6. Apartamentul este amplasat la etajul 3 din 10 al unui imobil construit în 1983, recent reabilitat termic, și are o suprafață utilă de 63,4 mp, respectiv 69,8 mp cu balcoane. Locuința este semidecomandată, bine întreținută și oferă un spațiu confortabil, potrivit atât pentru o familie, cât și pentru investiție. Caracteristici principale: 3 camere etaj 3 din 10 63,4 mp utili 69,8 mp cu balcoane bloc reabilitat termic apartament bine întreținut Zona oferă numeroase avantaje, fiind ideală pentru familii: aproximativ 17 minute de mers pe jos până la metrou Tudor Vladimirescu stația de tramvai 41 în apropiere acces rapid către școli, grădinițe și magazine zonă liniștită cu multiple facilități în apropiere Datorită poziționării și compartimentării, apartamentul reprezintă o alegere excelentă atât pentru locuință proprie, cât și pentru investiție. Pentru mai multe informații sau pentru programarea unei vizionări, vă stăm la dispoziție. INOVERS IMOBILIARE Pentru mai multe detalii sau programarea unei vizionări, echipa Inovers Imobiliare vă stă la dispoziție ! Informații suplimentare Informațiile prezentate au caracter orientativ și sunt preluate de la proprietar. Se acceptă orice modalitate de plată: cash sau credit ipotecar. Pentru mai multe detalii sau pentru programarea unei vizionări, nu ezitați să mă contactați folosind codul unic de proprietate : P250941 Va aștept cu drag la vizionare! 📞 📧 🌐
Citește mai mult Citește mai puțin
Confort 1 Semidecomandat 2 Balcoane / Terase / Logii Aer condiționat Calorifere Termoficare

Detalii apartament

ID anunț: XGEU0000A Copiat! 275292180 Copiat!
Actualizat în: 16 Martie 2026
Suprafață construită: 90 mp
Nr. bucătării: 1
Nr. băi: 2
Regim înălțime: P+10E

Utilități

Ușă intrare
Lemn
Uși interior
Lemn
Ferestre cu geam termopan
PVC
Contorizare
Apometre
Alte spații utile
WC Serviciu
Facilități imobil
Interfon Lift
Utilități
Curent Apă Canalizare Gaze
Servicii imobil
Supraveghere video
Amenajare străzi
Asfaltate Iluminat stradal Mijloace de transport în comun

Puncte de interes

Mijloace transport
bus-station
RATB Ghencea, linia 126, 173, 185, 302, 385, 221, N122, 41, 47
Stații autobuz aprox. 89 m
tram-station
Ghencea
Stații tramvai aprox. 113 m
trolleybus-station
Statia RATB Favorit, linia troleibuz 69,71 si linia autobuz 126
Stații troleibuz aprox. 852 m
metro-station
Stația de metrou "Tudor Vladimirescu"
Stații metrou aprox. 912 m
Școală
school
Scoala Nr. 59 Dimitrie Sturdza
Școli aprox. 237 m
school
Scoala Nr. 311
Școli aprox. 257 m
kindergarten
Gradinita de copii nr. 111
Gradinițe aprox. 835 m
kindergarten
Grădiniță copii nr 87 Spiridusii
Gradinițe aprox. 1049 m
Recreere
park
Parc
Parcuri aprox. 82 m
supermarket
Profi
Supermarket aprox. 172 m
sports-ground
Teren sportiv
Terenuri sport aprox. 372 m
restaurant
Hanul Drumetului
Restaurant aprox. 413 m

Detalii despre preț și costuri

Prețul pe piață

Preț cerut: 143.000 €

Preț min. zonă 78.000 €
Preț max. zonă 239.900 €

81% dintre proprietățile similare ca zonă și nr. camere au prețul cerut mai mic. mai multe...

Bine de știut: prețul unei proprietăți este influențat și de alte caracteristici, cum ar fi: vechime, localizare, vecinătăți, suprafață, compartimentare, amenajări, dotări, etc. mai puțin...

Costuri cu achiziția

Fără credit
7.811 RON
Credit ipotecar
9.531 RON
Noua casă
869 RON+ taxe notariale

i

Costuri adiționale mai puțin știute la achiziție: taxe notariale, comisioane etc.

Proprietăți similare

Apartament cu 2 camere semidecomandat în Drumul Taberei
136.500 €
București, Drumul Taberei
2 camere
51 mp
Etaj 5
Apartament cu 3 camere semidecomandat, mobilat în Drumul Taberei
143.000 €
București, Drumul Taberei
3 camere
70 mp
Etaj 3
Apartament cu 4 camere decomandat în Drumul Taberei
152.000 € + TVA
București, Drumul Taberei
4 camere
95,38 mp
Etaj 3 / 11

Detalii de contact

Inovers Imobiliare

Cosmin Corbeanu

Inovers Imobiliare

Abonează-te la newsletter să fii primul care primește cele mai noi recomandări de proprietăți și sfaturi de la experți.

CONTACT

Creează alertă

Salvează căutarea ca să primești pe email ultimele anunțuri publicate

Apartamente cu 3 camere de vânzare în zona Drumul Taberei, Sector 6