2 camere Lujerului | In renovare |

124.999 €

Lujerului, București

Nr. cam.:
2
Sup. utilă:
52,43 mp
Etaj:
7 / 10
An constr.:
1978 (Finalizată)
  • • Locație aproximativă

Descriere apartament

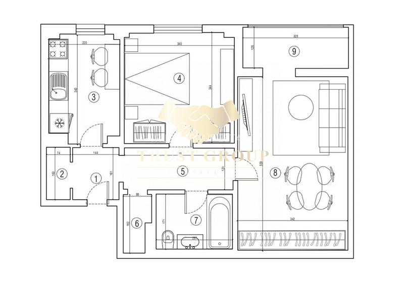
Va propunem spre vanzare un apartament de 2 camere decomandat, cu o suprafata totala de 53mp, situat la etajul 7 al unui imobil construit in 1978, amplasat intr-o zona foarte bine conectata, in apropiere de statia de metrou Lujerului. Apartamentul se afla in plin proces de renovare totala, lucrarile fiind realizate pentru a oferi viitorilor proprietari o locuinta moderna, confortabila si pregatita pentru mutare imediata. Lucrarile de renovare includ: Instalatii electrice si sanitare complet schimbate Pereti refacuti cu glet nou si finisaj cu lavabila Usi interioare noi si usa de intrare noua Ferestre cu geam termopan Finisaje moderne – gresie, faianta si parchet Un avantaj important este faptul ca viitorii proprietari isi pot alege finisajele, avand astfel posibilitatea de a personaliza apartamentul dupa propriul stil si preferinte. La finalizarea lucrarilor, locuinta se va preda complet renovata, la cheie, oferind confortul unei proprietati moderne intr-un bloc reabilitat termic. Locatie excelenta: Apartamentul beneficiaza de acces rapid catre metrou, transport public, supermarketuri, centre comerciale, restaurante si alte facilitati urbane, ceea ce il face potrivit atat pentru locuinta personala, cat si pentru investitie. Imaginile prezentate sunt randari ale proiectului de design interior, menite sa ilustreze modul in care va arata apartamentul dupa finalizarea renovarii.
Citește mai mult Citește mai puțin
Confort 1 Decomandat 1 Balcon / Terasă / Logie Calorifere Termoficare Renovat

Detalii apartament

ID anunț: XC452017T Copiat! 275229985 Copiat!
Actualizat în: 09 Martie 2026
Suprafață construită: 52.43 mp
Nr. bucătării: 1
Nr. băi: 1
Tip imobil: Bloc de apartamente
Regim înălțime: P+10E

Utilități

Destinație
Rezidențial
Utilități
Curent Apă Canalizare Gaze
Comision
standard

Disponibilitate proprietate:

imediat

Puncte de interes

Mijloace transport
bus-station
Statie 137, 138 (en)
Stații autobuz aprox. 194 m
tram-station
Romancierilor
Stații tramvai aprox. 217 m
metro-station
Romancierilor (M5)
Stații metrou aprox. 577 m
trolleybus-station
statia Piața Gorjului: 61, 62
Stații troleibuz aprox. 637 m
Școală
school
Colegiul Tehnic de Posta si Telecomunicatii Gheorghe Airinei
Școli aprox. 404 m
school
Coelgiul tehnic de posta si telecomunicatii Gheorghe Airinei
Școli aprox. 415 m
kindergarten
Cresa
Gradinițe aprox. 754 m
university
Colegiu Penticostal
Universități aprox. 1875 m
Recreere
supermarket
Megaimage
Supermarket aprox. 271 m
restaurant
Bella Pizza
Restaurant aprox. 465 m
park
Loc de joaca
Parcuri aprox. 530 m
sports-ground
Baza Sportiva Givova
Terenuri sport aprox. 705 m

Detalii despre preț și costuri

Prețul pe piață

Preț cerut: 124.999 €

Preț min. zonă 56.998 €
Preț max. zonă 190.400 €

66% dintre proprietățile similare ca zonă și nr. camere au prețul cerut mai mic. mai multe...

Bine de știut: prețul unei proprietăți este influențat și de alte caracteristici, cum ar fi: vechime, localizare, vecinătăți, suprafață, compartimentare, amenajări, dotări, etc. mai puțin...

Costuri cu achiziția

Fără credit
7.196 RON
Credit ipotecar
8.839 RON
Noua casă
777 RON+ taxe notariale

i

Costuri adiționale mai puțin știute la achiziție: taxe notariale, comisioane etc.

Proprietăți similare

Apartament cu 3 camere în Lujerului
136.000 €
București, Lujerului
3 camere
69 mp
Etaj 7 / 8
Apartament cu 2 camere semidecomandat în Lujerului
129.000 €
București, Lujerului
2 camere
60 mp
Etaj 8 / 8
Apartament cu 3 camere semidecomandat în Lujerului
122.000 €
București, Lujerului
3 camere
70 mp
Etaj 9 / 9

Detalii de contact

TRUST GROUP ESTATE

Mihai Vladia Senior Consultant Imobiliar

4.63(13 review-uri)

TRUST GROUP ESTATE
PRO

Abonează-te la newsletter să fii primul care primește cele mai noi recomandări de proprietăți și sfaturi de la experți.

CONTACT

Creează alertă

Salvează căutarea ca să primești pe email ultimele anunțuri publicate

Apartamente cu 2 camere de vânzare în zona Lujerului, Sector 6