3

Apartament 2 camere bloc finalizat - Militari Residence

66.500 €

Militari, București

Nr. cam.:
2
Sup. utilă:
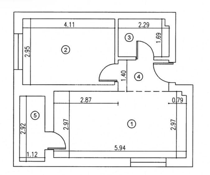
45 mp
Etaj:
1 / 6
An constr.:
2025 (Finalizată)
  • • Comision 0%
  • • Locație aproximativă

Descriere apartament

TVA INCLUS !! Comision 0% Oferta de vanzare apartament cu 2 camere decomandat, situat la etajul 1 al unui bloc nou, ce dispune de lift. Suprafața utilă de aproximativ 50 mp oferă un spațiu generos și eficient compartimentat, ideal pentru un cuplu sau o familie mică. Apartamentul este disponibil pentru mutare imediată și beneficiază de o locație excelentă în zona Militari Residence, într-o zonă liniștită, dar în apropierea tuturor facilităților necesare unei vieți confortabile: - Parc în apropiere - Școală și grădiniță în zonă - Acces rapid la transport public - Mall, magazine și centre comerciale în apropiere Imobilul este situat într-un bloc cu 3 etaje, recent construit, perfect pentru un trai modern. *Caracteristici:* - Suprafață utilă: aproximativ 50 mp - 2 camere decomandate Pentru mai multe detalii sau pentru programarea unei vizionări, nu ezitați să ne contactați!
Citește mai mult Citește mai puțin
Confort 1 Decomandat Nemobilat 1 Balcon / Terasă / Logie Calorifere Centrală proprie

Detalii apartament

ID anunț: XGBO00065 Copiat! 275282794 Copiat!
Actualizat în: 15 Martie 2026
Suprafață construită: 60 mp
Nr. bucătării: 1
Nr. băi: 1
Structură rezistență: Beton
Tip imobil: Bloc de apartamente
Regim înălțime: P+6E

Utilități

Destinație
Rezidențial
Pereți
Faianță Vopsea lavabilă
Podele
Gresie Parchet
Ușă intrare
Metal
Izolații termice
Exterior Interior
Contorizare
Apometre Contor gaz
Facilități imobil
Interfon Lift Videointerfon
Utilități
Curent Apă Canalizare CATV Gaze Telefon
Internet
Cablu
Servicii imobil
Supraveghere video
Amenajare străzi
Iluminat stradal Mijloace de transport în comun Asfaltate
Comision
0%

Disponibilitate proprietate:

Imediat

Puncte de interes

Mijloace transport
bus-station
Drumul Osiei
Stații autobuz aprox. 281 m
trolleybus-station
Stația RATB "Metro Militari"
Stații troleibuz aprox. 413 m
tram-station
S.C. Vest
Stații tramvai aprox. 813 m
metro-station
Metrorex. Stația Preciziei (M3)(1983)
Stații metrou aprox. 836 m
Școală
kindergarten
Grădinița Kid's Club Militari
Gradinițe aprox. 574 m
kindergarten
Kids Club
Gradinițe aprox. 587 m
school
Liceul Tehnologic Petru Poni
Școli aprox. 593 m
school
Grupul Școlar Industrial "Petru Poni" (nr. 7).
Școli aprox. 602 m
Recreere
sports-ground
Teren sportiv
Terenuri sport aprox. 227 m
supermarket
Metro Militari
Supermarket aprox. 291 m
park
Spațiu verde McDonald's
Parcuri aprox. 319 m
mall
Militari Shopping City
Mall aprox. 535 m

Detalii despre preț și costuri

Prețul pe piață

Preț cerut: 66.500 €

Preț min. zonă 56.998 €
Preț max. zonă 190.400 €

82% dintre proprietățile similare ca zonă și nr. camere au prețul cerut mai mare. mai multe...

Bine de știut: prețul unei proprietăți este influențat și de alte caracteristici, cum ar fi: vechime, localizare, vecinătăți, suprafață, compartimentare, amenajări, dotări, etc. mai puțin...

Costuri cu achiziția

Fără credit
4.533 RON
Credit ipotecar
5.813 RON
Noua casă
479 RON+ taxe notariale

i

Costuri adiționale mai puțin știute la achiziție: taxe notariale, comisioane etc.

Proprietăți similare

Apartament cu 2 camere decomandat, mobilat în Militari
65.000 €
București, Militari
2 camere
38 mp
Etaj 3
Apartament cu 2 camere semidecomandat în Militari
65.000 €
București, Militari
2 camere
42 mp
Etaj 2 / 7
Apartament cu 2 camere decomandat în Militari
63.250 €
București, Militari
2 camere
43 mp
Etaj 2 / 6

Detalii de contact

BLACK SWAN ESTATE

Direct Dezvoltator Dezvoltator

BLACK SWAN ESTATE
PRO

Abonează-te la newsletter să fii primul care primește cele mai noi recomandări de proprietăți și sfaturi de la experți.

CONTACT

Creează alertă

Salvează căutarea ca să primești pe email ultimele anunțuri publicate

Apartamente noi cu 2 camere de vânzare în zona Militari, Sector 6