5

Apartament mobilat si utilat in Militari Residence

68.500 €

Militari, București

Nr. cam.:
2
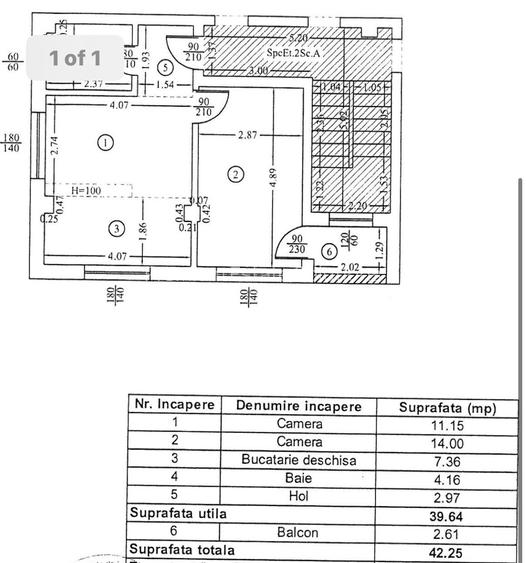
Sup. utilă:
42 mp
Etaj:
2 / 4
An constr.:
2014
  • • Comision 0%
  • • Locație exactă
  • • Vizionare prin apel video

Descriere apartament

Apartament cu 2 camere de vânzare situat în complexul Avangarde Residence, pe Strada Sălciilor nr. 23, în primul rând de blocuri construite, într-o zonă apreciată pentru accesibilitate și infrastructură deja formată. Proprietatea este amplasată la etajul 2 și are o suprafață de 42 mp, fiind potrivită atât pentru locuire personală, cât și pentru investiție. Apartamentul beneficiază de o compartimentare eficientă, spații bine proporționate și lumină naturală, oferind un nivel ridicat de confort. Poziționarea în primul rând de blocuri din complex reprezintă un avantaj important, asigurând acces rapid către principalele artere și facilități din zonă. Zona Militari Residence este foarte bine conectată la transportul public, prin liniile STB 478, 178 și R434. În apropiere se află Auchan Militari și Chiajna Shopping Centre, precum și numeroase facilități comerciale și de recreere: 18GYM, WorldClass, Tucano Coffee, Penny, Lidl, Kaufland, Decathlon, TEDi, JYSK, Sinsay, H&M și multe altele, oferind un stil de viață comod și bine organizat. Apartamentul dispune de contorizare individuală a utilităților, contribuind la costuri reduse de întreținere. Datorită poziționării, suprafeței și cererii constante din zonă, proprietatea reprezintă o oportunitate bună atât pentru locuit, cât și pentru investiție. Preț de vânzare: 68.500 euro comision 0% Telefon:
Citește mai mult Citește mai puțin
Confort 1 Semidecomandat Mobilat 1 Balcon / Terasă / Logie Curte Curte comună Calorifere Centrală proprie Bine întreținut (Bună)

Detalii apartament

ID anunț: XCT300A3G Copiat! 273981612 Copiat!
Actualizat în: 14 Martie 2026
Nr. bucătării: 1
Nr. băi: 1
Structură rezistență: Beton
Tip imobil: Bloc de apartamente
Regim înălțime: P+4E

Utilități

Destinație
Rezidențial Comercial
Jaluzele
Verticale
Pereți
Faianță Vopsea lavabilă Tapet
Podele
Gresie Parchet
Rulouri/Obloane
Aluminiu
Ușă intrare
Metal
Uși interior
Celulare
Izolații termice
Exterior Interior
Ferestre cu geam termopan
Aluminiu
Contorizare
Contor gaz Apometre Contor căldură
Bucătărie
Mobilată Utilată
Electrocasnice
DVD Fier de călcat Cafetieră Uscător păr Prăjitor pâine Hi-Fi Mașină de spălat Sandwich-maker Frigider Cuptor microunde Aragaz Hotă Mașină spălat vase Robot bucătărie Aspirator TV
Diverse
Scară interioară Sistem de alarmă
Facilități imobil
Spații agrement Interfon Lift Acoperiș Videointerfon
Utilități
Gaze CATV Telefon internațional Telefon Curent Canalizare Apă
Internet
Cablu Fibră optică Wireless Dial-up
Servicii imobil
Administrare Menaj Pază Supraveghere video
Amenajare străzi
Betonate Asfaltate Iluminat stradal Mijloace de transport în comun
Comision
0%

Certificat energetic:

Clasa energetică: A

Puncte de interes

Mijloace transport
bus-station
Stația RATB "Cartier Militari"
Stații autobuz aprox. 832 m
bus-station
Stație RATB "Complex Comercial Militari"
Stații autobuz aprox. 1288 m
trolleybus-station
Stația RATB "Metro Militari"
Stații troleibuz aprox. 1667 m
metro-station
Metrorex. Stația Păcii (M3).
Stații metrou aprox. 1987 m
Școală
kindergarten
Kids Club
Gradinițe aprox. 766 m
kindergarten
Grădinița Kid's Club Militari
Gradinițe aprox. 774 m
school
Cladirea scolii nr 1 (en)
Școli aprox. 1406 m
school
Scoala "ALEXANDRU ODOBESCU" Chiajna (en)
Școli aprox. 1420 m
Recreere
supermarket
Penny
Supermarket aprox. 333 m
park
Parc
Parcuri aprox. 733 m
mall
Militari Shopping City
Mall aprox. 1417 m
sports-ground
Teren sportiv
Terenuri sport aprox. 1448 m

Detalii despre preț și costuri

Prețul pe piață

Preț cerut: 68.500 €

Preț min. zonă 56.998 €
Preț max. zonă 190.400 €

76% dintre proprietățile similare ca zonă și nr. camere au prețul cerut mai mare. mai multe...

Bine de știut: prețul unei proprietăți este influențat și de alte caracteristici, cum ar fi: vechime, localizare, vecinătăți, suprafață, compartimentare, amenajări, dotări, etc. mai puțin...

Costuri cu achiziția

Fără credit
4.627 RON
Credit ipotecar
5.923 RON
Noua casă
489 RON+ taxe notariale

i

Costuri adiționale mai puțin știute la achiziție: taxe notariale, comisioane etc.

Proprietăți recomandate

Detalii de contact

Abonează-te la newsletter să fii primul care primește cele mai noi recomandări de proprietăți și sfaturi de la experți.

CONTACT

Creează alertă

Salvează căutarea ca să primești pe email ultimele anunțuri publicate

Apartamente cu 2 camere de vânzare în zona Militari, Sector 6