Apartament 2 Camere Renovat Lux Militari Veteranilor

125.000 €

Militari, București

Nr. cam.:
2
Sup. utilă:
50,02 mp
Etaj:
9
An constr.:
1977
  • • Locație aproximativă
  • • Vizionare prin apel video

Descriere apartament

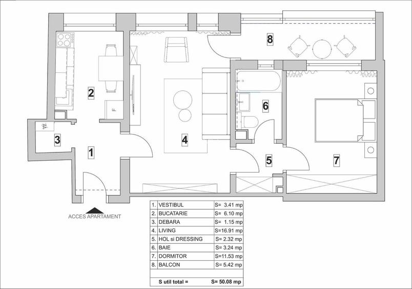
RIMO va propune spre vânzare un apartament de 2 camere complet renovat și mobilat, situat la etajul 9/9, într-un bloc reabilitat, curat și liniștit, la doi pași de Piața Veteranilor. Luminos, orientat sud, cu vedere deschisă și ferit de zgomotul bulevardului, acest apartament îmbină perfect liniștea cu accesul rapid la mijloacele de transport în comun. Practic, ai orașul la picioare… dar fără claxoane sub geam. Amenajat într-un stil modern și confortabil de biroul de arhitectură ARHI DOT DESIGN, imobilul a fost renovat integral în perioada 2025–2026. Instalațiile electrice și sanitare sunt complet refăcute, iar sistemul smart permite controlul iluminatului direct din aplicație sau telecomandă. Radiatoarele sunt noi, iar apartamentul este racordat la termoficarea blocului. Finisajele premium – parchet laminat rezistent la apă Kronospan, gresie FAP, faianță Atlas, uși Porta Doors, obiecte sanitare Ideal Standard și Kolo – completează un spațiu de 50,08 mp utili, gata de mutare. Se vinde complet mobilat și utilat, inclusiv aer condiționat și electrocasnice! Este liber și disponibil imediat. Haideți la vizionare și convingeți-vă!
Citește mai mult Citește mai puțin
Confort lux Semidecomandat Mobilat Lux 1 Balcon / Terasă / Logie Aer condiționat Calorifere Termoficare

Detalii apartament

ID anunț: XDOQ10HOO Copiat! 275225933 Copiat!
Actualizat în: 09 Martie 2026
Nr. bucătării: 1
Nr. băi: 1
Structură rezistență: Beton
Tip imobil: Bloc de apartamente
Regim înălțime: P+9E

Utilități

Destinație
Rezidențial
Pereți
Faianță Vopsea lavabilă
Podele
Gresie Parchet
Ușă intrare
Metal
Uși interior
Lemn
Izolații termice
Exterior
Contorizare
Apometre Contor căldură Contor gaz
Bucătărie
Mobilată Utilată
Electrocasnice
Aragaz Frigider Mașină de spălat TV
Alte spații utile
Debara
Facilități imobil
Acoperiș Lift
Utilități
Curent Apă Canalizare CATV Gaze
Internet
Cablu
Amenajare străzi
Iluminat stradal Mijloace de transport în comun Asfaltate Betonate
Comision
standard

Disponibilitate proprietate:

Imediat

Puncte de interes

Mijloace transport
bus-station
statia RATB Răsăritului: 61, 62, 136, 236, 336
Stații autobuz aprox. 211 m
metro-station
Metrorex. Statia Gorjului (M3).
Stații metrou aprox. 382 m
trolleybus-station
statia Piața Gorjului: 61, 62
Stații troleibuz aprox. 425 m
tram-station
Statia Bd. Uverturii / Pasajul Lujerului, linia 41
Stații tramvai aprox. 704 m
Școală
school
Scoala Generala nr. 156
Școli aprox. 282 m
school
Scoala Nr. 156 Sf. Mare Mucenic Gheorghe
Școli aprox. 289 m
kindergarten
Gradinita nr.250
Gradinițe aprox. 392 m
university
Colegiu Penticostal
Universități aprox. 1155 m
Recreere
restaurant
Restaurant Casa Mino
Restaurant aprox. 110 m
supermarket
Nortia Retail
Supermarket aprox. 192 m
park
Parc
Parcuri aprox. 328 m
sports-ground
Baza Sportiva Givova
Terenuri sport aprox. 1071 m

Detalii despre preț și costuri

Prețul pe piață

Preț cerut: 125.000 €

Preț min. zonă 56.998 €
Preț max. zonă 190.400 €

71% dintre proprietățile similare ca zonă și nr. camere au prețul cerut mai mic. mai multe...

Bine de știut: prețul unei proprietăți este influențat și de alte caracteristici, cum ar fi: vechime, localizare, vecinătăți, suprafață, compartimentare, amenajări, dotări, etc. mai puțin...

Costuri cu achiziția

Fără credit
7.193 RON
Credit ipotecar
8.836 RON
Noua casă
777 RON+ taxe notariale

i

Costuri adiționale mai puțin știute la achiziție: taxe notariale, comisioane etc.

Proprietăți recomandate

Detalii de contact

RIMO

Alina Diciu Real Estate Agent

RIMO
PRO

Abonează-te la newsletter să fii primul care primește cele mai noi recomandări de proprietăți și sfaturi de la experți.

CONTACT

Creează alertă

Salvează căutarea ca să primești pe email ultimele anunțuri publicate

Apartamente cu 2 camere de vânzare în zona Militari, Sector 6