APARTAMENT 2 CAMERE-MODERN-PRELUNGIREA GHENCEA-BLOC NOU-CENTRALA

99.000 €

Prelungirea Ghencea, București

Nr. cam.:
2
Sup. utilă:
65 mp
Etaj:
5 / 6
An constr.:
2022 (Finalizată)
  • • Exclusivitate
  • • Locație exactă

Descriere apartament

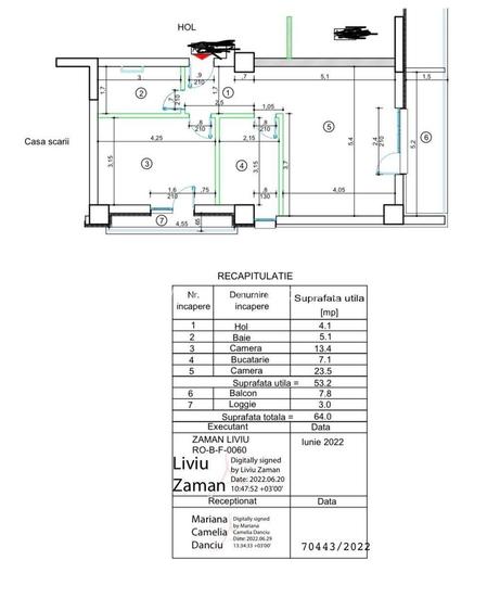
Buna ziua, VIDO PROPERTIES va propune spre achizitie un apartament cu 2 camere, in zona Prelungirea Ghencea! Este situat la etajul 5 al unui imobil cu 6 etaje construit in anul 2022! Compartimentarea interioara este de tip decomandat! Suprafata utila totala a apartamentului este de 65 mp, incluzand cele 2 balcoane, 54 mp fara balcoane! Este impartit in living cu iesire in balcon, dormitor cu iesire in al doilea balcon, bucatarie inchisa, baie si hol de acces. Beneficiaza de centrala termica proprie pe gaz. Apartamentul se ofera spre vanzare mobilat/utilat, asa cum apare in poze! Pretul de tranzactie este de 99.000 Euro, nu se adauga TVA. Disponibil imediat. Ofer si rog seriozitate maxima. Pentru mai multe detalii, va rog sa ma contactati: TELEFON- -NON STOP Multumesc!
Citește mai mult Citește mai puțin
Confort 1 Decomandat 2 Balcoane / Terase / Logii Aer condiționat Calorifere Centrală proprie

Detalii apartament

ID anunț: XB4C100IR Copiat! 264543258 Copiat!
Actualizat în: 06 Februarie 2026
Suprafață construită: 70 mp
Nr. bucătării: 1
Nr. băi: 1
Tip imobil: Bloc de apartamente
Regim înălțime: P+6E

Utilități

Pereți
Faianță Vopsea lavabilă
Podele
Gresie Parchet
Ușă intrare
Metal
Uși interior
Celulare
Ferestre cu geam termopan
Aluminiu
Contorizare
Apometre Contor căldură Contor gaz
Bucătărie
Mobilată Utilată
Electrocasnice
Aragaz Frigider Hotă Mașină de spălat TV
Facilități imobil
Interfon Lift
Utilități
Curent Apă Canalizare CATV Gaze Telefon
Internet
Cablu
Amenajare străzi
Iluminat stradal Mijloace de transport în comun Asfaltate

Certificat energetic:

Clasa energetică: A

Disponibilitate proprietate:

Imediat

Puncte de interes

Mijloace transport
bus-station
Primacom
Stații autobuz aprox. 190 m
bus-station
Ansamblul Primavara
Stații autobuz aprox. 818 m
tram-station
Valea Cascadelor
Stații tramvai aprox. 1617 m
metro-station
Valea Ialomiței (M5)
Stații metrou aprox. 1914 m
Școală
kindergarten
Watoto
Gradinițe aprox. 236 m
school
Scoala PROINGENIO
Școli aprox. 816 m
kindergarten
Gradinita cu program prelungit Butterfly
Gradinițe aprox. 1084 m
school
Scoala Genesis
Școli aprox. 1092 m
Recreere
supermarket
Mega Image
Supermarket aprox. 618 m
park
Parc
Parcuri aprox. 630 m
supermarket
Shop&Go
Supermarket aprox. 721 m
restaurant
Restaurantul Latin
Restaurant aprox. 755 m

Detalii despre preț și costuri

Prețul pe piață

Preț cerut: 99.000 €

Preț min. zonă 61.000 €
Preț max. zonă 125.000 €

61% dintre proprietățile similare ca zonă și nr. camere au prețul cerut mai mare. mai multe...

Bine de știut: prețul unei proprietăți este influențat și de alte caracteristici, cum ar fi: vechime, localizare, vecinătăți, suprafață, compartimentare, amenajări, dotări, etc. mai puțin...

Costuri cu achiziția

Fără credit
6.065 RON
Credit ipotecar
7.598 RON
Noua casă
645 RON+ taxe notariale

i

Costuri adiționale mai puțin știute la achiziție: taxe notariale, comisioane etc.

Proprietăți recomandate

Detalii de contact

VIDO PROPERTIES

Teodor Bondreanu BROKER OWNER

VIDO PROPERTIES
PRO

Abonează-te la newsletter să fii primul care primește cele mai noi recomandări de proprietăți și sfaturi de la experți.

CONTACT

Creează alertă

Salvează căutarea ca să primești pe email ultimele anunțuri publicate

Apartamente noi cu 2 camere de vânzare în zona Prelungirea Ghencea, Sector 6