2 camere Veteranilor-bloc reabilitat | etaj 3 din 4 | loc de parcare adp

86.500 €

Veteranilor, București

Nr. cam.:
2
Sup. utilă:
50 mp
Etaj:
3
An constr.:
1968
  • • Exclusivitate
  • • Locație aproximativă

Descriere apartament

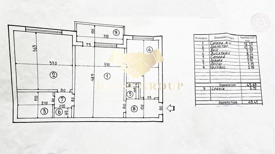
Apartament cu 2 camere pe strada DEALUL TUGULEA, semidecomandat, situat la etajul 3 din 4, intr-un bloc reabilitat termic. Proprietatea necesita renovare, oferind astfel libertatea de a fi amenajata exact dupa gustul viitorului proprietar. Dispune de ferestre termopan si teava de gaz separata, pregatita pentru montarea unei centrale termice proprii. Puncte forte: Bloc reabilitat termic, confort sporit si costuri reduse la intretinere Etaj intermediar – etajul 3 din 4, perfect ca pozitionare Posibilitate de instalare a centralei proprii Acces rapid la multiple mijloace de transport si facilitati Localizare si acces: Apartamentul se afla la doar 5 minute de metroul Lujerului, 3 minute de Piata Veteranilor si de Bulevardul Uverturii, iar la 5 minute se regasesc Cora si statia de tramvai 41 – una dintre cele mai rapide legaturi spre centrul orasului. In plus, Parcul Liniei este la aproximativ 10 minute, ideal pentru plimbari sau activitati in aer liber. Este o alegere ideala pentru un cuplu tanar sau o familie care isi doreste sa traiasca intr-o zona echilibrata, cu acces la toate facilitatile multiple – transport, magazine, piete, scoli si zone verzi – toate aflate la doar cativa pasi de casa.
Citește mai mult Citește mai puțin
Confort 1 Semidecomandat 1 Balcon Termoficare Necesită renovare

Detalii apartament

ID anunț: XC45200VE Copiat! 274971584 Copiat!
Actualizat în: 16 Februarie 2026
Suprafață construită: 55 mp
Nr. bucătării: 1
Nr. băi: 1
Structură rezistență: Cărămidă
Tip imobil: Bloc de apartamente
Regim înălțime: S+P+4E

Utilități

Destinație
Rezidențial
Contorizare
Apometre Contor căldură
Alte spații utile
Debara
Dotări imobil
Interfon
Utilități
Curent Apă Canalizare Gaze CATV
Izolații termice
Exterior
Ferestre cu geam termopan
PVC
Comision
standard

Certificat energetic:

Clasa energetică: A

Disponibilitate proprietate:

imediat

Puncte de interes

Mijloace transport
bus-station
Statie 137, 138 (en)
Stații autobuz aprox. 194 m
tram-station
Romancierilor
Stații tramvai aprox. 217 m
metro-station
Romancierilor (M5)
Stații metrou aprox. 577 m
trolleybus-station
statia Piața Gorjului: 61, 62
Stații troleibuz aprox. 637 m
Școală
school
Colegiul Tehnic de Posta si Telecomunicatii Gheorghe Airinei
Școli aprox. 404 m
school
Coelgiul tehnic de posta si telecomunicatii Gheorghe Airinei
Școli aprox. 415 m
kindergarten
Cresa
Gradinițe aprox. 754 m
university
Colegiu Penticostal
Universități aprox. 1875 m
Recreere
supermarket
Megaimage
Supermarket aprox. 271 m
restaurant
Bella Pizza
Restaurant aprox. 465 m
park
Loc de joaca
Parcuri aprox. 530 m
sports-ground
Baza Sportiva Givova
Terenuri sport aprox. 705 m

Detalii despre preț și costuri

Prețul pe piață

Preț cerut: 86.500 €

Preț min. zonă 56.998 €
Preț max. zonă 190.400 €

71% dintre proprietățile similare ca zonă și nr. camere au prețul cerut mai mare. mai multe...

Bine de știut: prețul unei proprietăți este influențat și de alte caracteristici, cum ar fi: vechime, localizare, vecinătăți, suprafață, compartimentare, amenajări, dotări, etc. mai puțin...

Costuri cu achiziția

Fără credit
5.474 RON
Credit ipotecar
6.911 RON
Noua casă
581 RON+ taxe notariale

i

Costuri adiționale mai puțin știute la achiziție: taxe notariale, comisioane etc.

Proprietăți similare

Apartament cu 2 camere semidecomandat în Veteranilor
85.900 €
București, Veteranilor
2 camere
46 mp
Etaj 3 / 4
Apartament cu 2 camere semidecomandat, mobilat în Veteranilor
95.000 €
București, Veteranilor
2 camere
50 mp
Etaj 9
Apartament cu 2 camere semidecomandat în Veteranilor
85.000 €
București, Veteranilor
2 camere
50 mp
Etaj 3 / 4

Detalii de contact

TRUST GROUP ESTATE

Mihai Vladia Senior Consultant Imobiliar

4.75(12 review-uri)

TRUST GROUP ESTATE
PRO

Abonează-te la newsletter să fii primul care primește cele mai noi recomandări de proprietăți și sfaturi de la experți.

CONTACT

Creează alertă

Salvează căutarea ca să primești pe email ultimele anunțuri publicate

Apartamente cu 2 camere de vânzare în zona Veteranilor, Sector 6