2 camere Veteranilor-bloc reabilitat | etaj 3 din 4 | loc de parcare adp

85.000 €

Veteranilor, București

Nr. cam.:
2
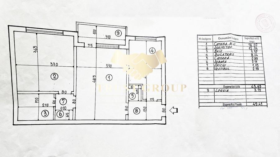
Sup. utilă:
50 mp
Etaj:
3 / 4
An constr.:
1968 (Finalizată)
  • • Comision 0%
  • • Exclusivitate
  • • Locație exactă

Descriere apartament

Apartament cu 2 camere pe strada DEALUL TUGULEA, semidecomandat, situat la etajul 3 din 4, intr-un bloc reabilitat termic. Proprietatea necesita renovare, oferind astfel libertatea de a fi amenajata exact dupa gustul viitorului proprietar. Dispune de ferestre termopan si teava de gaz separata, pregatita pentru montarea unei centrale termice proprii. Puncte forte: Bloc reabilitat termic, confort sporit si costuri reduse la intretinere Etaj intermediar – etajul 3 din 4, perfect ca pozitionare Posibilitate de instalare a centralei proprii Acces rapid la multiple mijloace de transport si facilitati Localizare si acces: Apartamentul se afla la doar 5 minute de metroul Lujerului, 3 minute de Piata Veteranilor si de Bulevardul Uverturii, iar la 5 minute se regasesc Cora si statia de tramvai 41 – una dintre cele mai rapide legaturi spre centrul orasului. In plus, Parcul Liniei este la aproximativ 10 minute, ideal pentru plimbari sau activitati in aer liber. Este o alegere ideala pentru un cuplu tanar sau o familie care isi doreste sa traiasca intr-o zona echilibrata, cu acces la toate facilitatile multiple – transport, magazine, piete, scoli si zone verzi – toate aflate la doar cativa pasi de casa.
Citește mai mult Citește mai puțin
Confort 1 Semidecomandat 1 Balcon Termoficare Necesită renovare

Detalii apartament

ID anunț: XC4520108 Copiat! 274976597 Copiat!
Actualizat în: 16 Februarie 2026
Suprafață construită: 55 mp
Nr. bucătării: 1
Nr. băi: 1
Structură rezistență: Cărămidă
Tip imobil: Bloc de apartamente
Regim înălțime: S+P+4E

Utilități

Destinație
Rezidențial
Contorizare
Apometre Contor căldură
Alte spații utile
Debara
Dotări imobil
Interfon
Utilități
Curent Apă Canalizare Gaze CATV
Izolații termice
Exterior
Ferestre cu geam termopan
PVC

Certificat energetic:

Clasa energetică: A

Disponibilitate proprietate:

imediat

Puncte de interes

Mijloace transport
bus-station
Statia Teatrul Masca, linia 178, 106
Stații autobuz aprox. 166 m
metro-station
Metrorex. Stația Lujerului (M3)(1983)
Stații metrou aprox. 271 m
tram-station
Statia Bd. Uverturii / Pasajul Lujerului, linia 41
Stații tramvai aprox. 322 m
trolleybus-station
Statia RATB Lujerului, linia 61, 62
Stații troleibuz aprox. 502 m
Școală
school
Sala de sport
Școli aprox. 131 m
school
Liceul Economic nr. 5 ” Costin C. Kiritescu ”
Școli aprox. 131 m
kindergarten
Gradinita nr.250
Gradinițe aprox. 182 m
university
Facultatea de Inginerie Electrica
Universități aprox. 1204 m
Recreere
supermarket
Mega Image
Supermarket aprox. 180 m
restaurant
Trenta Pizza
Restaurant aprox. 204 m
park
Parc
Parcuri aprox. 388 m
sports-ground
Teren sportiv
Terenuri sport aprox. 939 m

Detalii despre preț și costuri

Prețul pe piață

Preț cerut: 85.000 €

Preț min. zonă 56.998 €
Preț max. zonă 190.400 €

73% dintre proprietățile similare ca zonă și nr. camere au prețul cerut mai mare. mai multe...

Bine de știut: prețul unei proprietăți este influențat și de alte caracteristici, cum ar fi: vechime, localizare, vecinătăți, suprafață, compartimentare, amenajări, dotări, etc. mai puțin...

Costuri cu achiziția

Fără credit
5.404 RON
Credit ipotecar
6.830 RON
Noua casă
573 RON+ taxe notariale

i

Costuri adiționale mai puțin știute la achiziție: taxe notariale, comisioane etc.

Proprietăți similare

Apartament cu 2 camere semidecomandat în Veteranilor
86.000 €
București, Veteranilor
2 camere
45,69 mp
Etaj 3
Apartament cu 2 camere semidecomandat în Veteranilor
90.000 €
București, Veteranilor
2 camere
50 mp
Etaj 3 / 4
Apartament cu 2 camere semidecomandat în Veteranilor
85.900 €
București, Veteranilor
2 camere
46 mp
Etaj 3 / 4

Detalii de contact

TRUST GROUP ESTATE

Cristian Belei Founder

3.70(16 review-uri)

TRUST GROUP ESTATE
PRO

Abonează-te la newsletter să fii primul care primește cele mai noi recomandări de proprietăți și sfaturi de la experți.

CONTACT

Creează alertă

Salvează căutarea ca să primești pe email ultimele anunțuri publicate

Apartamente cu 2 camere de vânzare în zona Veteranilor, Sector 6