2 camere, 9/9, 50mp, anvelopat-Veteranilor

125.000 €

Veteranilor, București

Nr. cam.:
2
Sup. utilă:
45 mp
Etaj:
9 / 9
An constr.:
1964 (Finalizată)
  • • Locație aproximativă

Descriere apartament

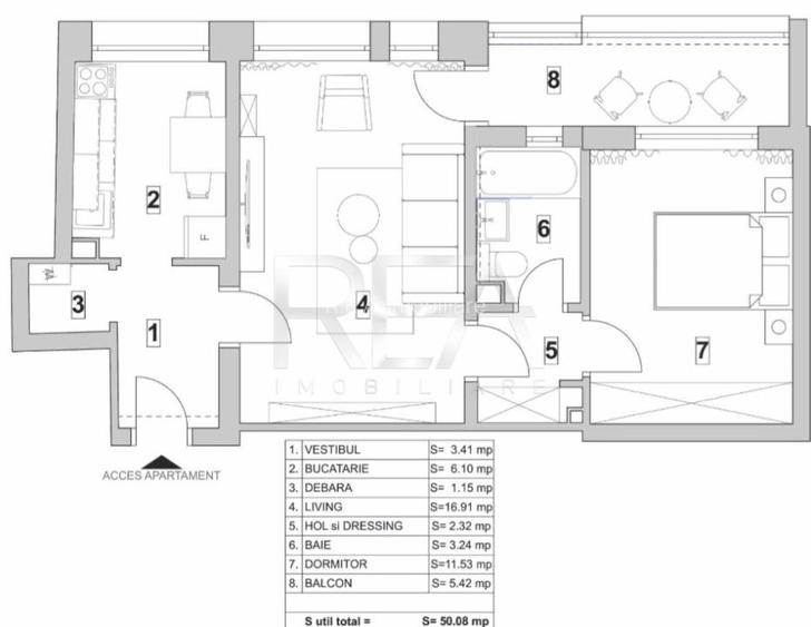
R.E.A. Imobiliare va ofera spre vanzare un apartament cu 2 camere semidecomandat, situat in Militari- Piata Veteranilor, pe Str. Rosia Montana. Imobilul se afla intr.un bloc de apartamente construit in anul 1964, anvelopat, fara risc seismic, la etajul 9/9. Este alcatuit din living, dormitor, bucatarie, baie si balcon. Suprafata totala este de 50 mp, din care suprafata utila este de 45 mp. Apartamentul a fost amenajat intr-un stil modern de catre biroul de arhitectura ARHIDOT DESIGN. Apartamentul a fost complet renovat 2025-2026, s-a schimbat instalatia electrica si sanitara, a fost implementat sistem smart cu intrerupatoare si corpuri de iluminat cu control din aplicatie sau telecomanda, finisaje de cea mai buna calitate, parchet laminat rezistent la apa Kronospan, gresie FAP ,faianta Atlas, usi Porta Doors, obiecte sanitare Ideal Standard si Kolo. Confortul termic este realizat cu ajutorul retelei edilitare de termoficare, dar si cu ajutorul aparatului de aer conditionat. In imediata apropiere se intalnesc puncte comerciale, bancare, farmaceutice, medicale, educationale si de divertisment. Acces facil la mijloacele de transport in comun, 5 minute pana la statiile Stb si metrou . Se accepta toate modalitatiile de plata. Informatiile tehnice au caracter orientativ, acestea fiind preluate de la proprietar. Pentru mai multe detalii si vizionari nu ezitati sa ne contactati, specificand codul P10406.
Citește mai mult Citește mai puțin
Confort 1 Semidecomandat Mobilat Mobilat 1 Balcon / Terasă / Logie Aer condiționat Calorifere Termoficare Renovat

Detalii apartament

ID anunț: XDKS108MO Copiat! 275219802 Copiat!
Actualizat în: 08 Martie 2026
Suprafață construită: 54 mp
Nr. bucătării: 1
Nr. băi: 1
Tip imobil: Bloc de apartamente
Regim înălțime: P+9E

Utilități

Destinație
Rezidențial
Pereți
Vopsea lavabilă Faianță
Podele
Parchet Gresie
Ușă intrare
Metal
Uși interior
Lemn
Izolații termice
Bloc izolat termic
Contorizare
Apometre
Bucătărie
Mobilată Utilată
Electrocasnice
Mașină de spălat Frigider Aragaz TV Cafetieră Cuptor microunde Hotă
Alte spații utile
Debara
Facilități imobil
Interfon Lift
Utilități
Curent Apă Canalizare Gaze
Amenajare străzi
Asfaltate Iluminat stradal Mijloace de transport în comun
Comision
standard

Disponibilitate proprietate:

imediat

Puncte de interes

Mijloace transport
bus-station
Statie 137, 138 (en)
Stații autobuz aprox. 194 m
tram-station
Romancierilor
Stații tramvai aprox. 217 m
metro-station
Romancierilor (M5)
Stații metrou aprox. 577 m
trolleybus-station
statia Piața Gorjului: 61, 62
Stații troleibuz aprox. 637 m
Școală
school
Colegiul Tehnic de Posta si Telecomunicatii Gheorghe Airinei
Școli aprox. 404 m
school
Coelgiul tehnic de posta si telecomunicatii Gheorghe Airinei
Școli aprox. 415 m
kindergarten
Cresa
Gradinițe aprox. 754 m
university
Colegiu Penticostal
Universități aprox. 1875 m
Recreere
supermarket
Megaimage
Supermarket aprox. 271 m
restaurant
Bella Pizza
Restaurant aprox. 465 m
park
Loc de joaca
Parcuri aprox. 530 m
sports-ground
Baza Sportiva Givova
Terenuri sport aprox. 705 m

Detalii despre preț și costuri

Prețul pe piață

Preț cerut: 125.000 €

Preț min. zonă 56.998 €
Preț max. zonă 190.400 €

84% dintre proprietățile similare ca zonă și nr. camere au prețul cerut mai mic. mai multe...

Bine de știut: prețul unei proprietăți este influențat și de alte caracteristici, cum ar fi: vechime, localizare, vecinătăți, suprafață, compartimentare, amenajări, dotări, etc. mai puțin...

Costuri cu achiziția

Fără credit
7.196 RON
Credit ipotecar
8.839 RON
Noua casă
777 RON+ taxe notariale

i

Costuri adiționale mai puțin știute la achiziție: taxe notariale, comisioane etc.

Proprietăți similare

Apartament cu 3 camere semidecomandat în Veteranilor
128.000 €
București, Veteranilor
3 camere
70 mp
Etaj 1
Apartament cu 2 camere în Drumul Taberei
122.900 €
București, Drumul Taberei
2 camere
47 mp
Etaj 8
Apartament cu 3 camere decomandat în Drumul Taberei
133.000 €
București, Drumul Taberei
3 camere
80 mp
Parter / 3

Detalii de contact

R.E.A. Imobiliare

Veronica Ripa Broker

3.56(3 review-uri)

R.E.A. Imobiliare
PRO

Abonează-te la newsletter să fii primul care primește cele mai noi recomandări de proprietăți și sfaturi de la experți.

CONTACT

Creează alertă

Salvează căutarea ca să primești pe email ultimele anunțuri publicate

Apartamente cu 2 camere de vânzare în zona Veteranilor, Sector 6