Apartament 2 camere 46 mp-pod-Șelimbăr, zona Unirii

85.800 €

Șelimbăr, Județul Sibiu

Nr. cam.:
2
Sup. utilă:
45,92 mp
Etaj:
2 / 2
An constr.:
2025 (În construcție)
  • • Comision 0%
  • • Locație aproximativă

Descriere apartament

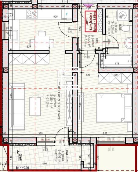
Apartament 2 camere 46 mp-etaj 2 -Șelimbăr, zona Unirii Descoperă confortul unui apartament modern, situat la etajul 2 al unui bloc nou (regim de înălțime P+2E), amplasat într-o zonă liniștită, verde și bine conectată din Șelimbăr – în apropierea centrelor comerciale, a școlilor, grădinițelor și mijloacelor de transport în comun. -Suprafață utilă: 46mp la care se adauga un balcon in suprafata de 6.58 mp. -Compartimentare practică: hol, bucatarie separata, 1 camera , baie și balcon de 6.58 mp, debara. -Apartamentul beneficiază și de un pod generos, în suprafață de aproximativ 46 mp, cu acces direct din hol. -Loc de parcare inclus în preț - Dotări și finisaje: Construcție nouă, cu materiale de calitate superioară Izolație exterioară premium Tâmplărie PVC cu geam tripan (3 foi de sticlă, 7 camere) Centrală termică proprie Spații verzi amenajate, iluminat stradal. -Acces facil către Sibiu și principalele artere din zonă -Avantaje: * Zonă liniștită, aerisită și sigură * Ideal pentru locuință proprie sau investiție * Compartimentare modernă, funcțională * Acces rapid către centrul Sibiului și Promenada Mall -Predare: Primăvara 2026 ***Imaginile sunt cu titlu informativ și aparțin unui apartament similar din cadrul ansamblului . Pret : 85 800 euro - la stadiul de GRI 95 000 euro- la stadiul de CHEIE Sună-ne acum pentru mai multe detalii sau pentru a programa o vizionare!
Citește mai mult Citește mai puțin
Confort 1 Semidecomandat 1 Balcon / Terasă / Logie 1 Parcare

Detalii apartament

ID anunț: XEP4100AC Copiat! 273011296 Copiat!
Actualizat în: 10 Martie 2026
Suprafață construită: 51 mp
Nr. bucătării: 1
Nr. băi: 1
Structură rezistență: Cărămidă
Tip imobil: Bloc de apartamente
Regim înălțime: P+2E

Utilități

Alte spații utile
Debara
Utilități
Curent Apă Canalizare CATV Gaze Telefon
Internet
Cablu
Amenajare străzi
Iluminat stradal Mijloace de transport în comun Asfaltate
Comision
0%

Disponibilitate proprietate:

Imediat

Puncte de interes

Mijloace transport
bus-station
Statia Sibiu Grupa Selimbar
Stații autobuz aprox. 774 m
bus-station
Sibiu-Triaj (Sud)
Stații autobuz aprox. 1674 m
Recreere
cafe
Coffe House
Cafenea aprox. 1889 m
restaurant
Hermania Bistro
Restaurant aprox. 1896 m
bar
Business Cafe
Bar aprox. 1908 m
supermarket
Shopping City Sibiu
Supermarket aprox. 1950 m

Detalii despre preț și costuri

Prețul pe piață

Preț cerut: 85.800 €

Preț min. zonă 76.000 €
Preț max. zonă 135.000 €

64% dintre proprietățile similare ca zonă și nr. camere au prețul cerut mai mare. mai multe...

Bine de știut: prețul unei proprietăți este influențat și de alte caracteristici, cum ar fi: vechime, localizare, vecinătăți, suprafață, compartimentare, amenajări, dotări, etc. mai puțin...

Costuri cu achiziția

Fără credit
5.441 RON
Credit ipotecar
6.873 RON
Noua casă
577 RON+ taxe notariale

i

Costuri adiționale mai puțin știute la achiziție: taxe notariale, comisioane etc.

Proprietăți recomandate

Detalii de contact

Era Property

AUREL Vulcu Consultant imobiliar

Era Property
PRO

Abonează-te la newsletter să fii primul care primește cele mai noi recomandări de proprietăți și sfaturi de la experți.

CONTACT

Creează alertă

Salvează căutarea ca să primești pe email ultimele anunțuri publicate

Apartamente cu 2 camere de vânzare în Șelimbăr, Județul Sibiu