2

Apartament modern 2 camere, pod amenajabil, balcon, parcare inclusa

75.200 €

Șelimbăr, Județul Sibiu

Nr. cam.:
2
Sup. utilă:
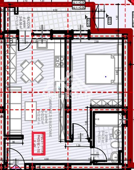
39,52 mp
Etaj:
2 / 2
An constr.:
2025
  • • Locație aproximativă

Descriere apartament

Apartament 2 camere de vânzare – Șelimbăr Localizare excelentă – zonă liniștită, cu spații verzi și iluminat stradal, acces rapid către Shopping City Sibiu, Dedeman și Leroy Merlin. Compartimentare practică și eficientă: Living generos cu bucătărie open-space Dormitor luminos Baie cu geam pentru ventilație naturală Balcon cu spațiu de depozitare închis (ușă termopan, izolat exterior) Loc de parcare inclus Pod cu placă de beton – posibilitate de amenajare Confort și dotări: Încălzire în pardoseală Centrală termică proprie Predare semifinisată Posibilitate de finisare la cheie, la cerere Termen de predare: aprilie 2026 Preț: 75.200 € (TVA inclus) Imaginile sunt cu titlu de prezentare. Ideal atât pentru locuință proprie, cât și pentru investiție Comision 0% Sibiu Estate – Casa ta, povestea noastră!
Citește mai mult Citește mai puțin
Confort 1 Decomandat 1 Balcon / Terasă / Logie Centrală proprie

Detalii apartament

ID anunț: XFOU0005L Copiat! 274325780 Copiat!
Actualizat în: 03 Martie 2026
Nr. bucătării: 1
Nr. băi: 1
Tip imobil: Bloc de apartamente
Regim înălțime: P+2E

Utilități

Destinație
Rezidențial
Ușă intrare
Metal
Ferestre cu geam termopan
PVC
Contorizare
Apometre Contor gaz
Facilități imobil
Acoperiș Interfon
Utilități
Curent Apă Canalizare CATV Gaze
Amenajare străzi
Iluminat stradal Asfaltate

Disponibilitate proprietate:

Imediat

Puncte de interes

Mijloace transport
bus-station
Statia Sibiu Grupa Selimbar
Stații autobuz aprox. 649 m
bus-station
Sibiu-Triaj (Sud)
Stații autobuz aprox. 1136 m
bus-station
Shopping City
Stații autobuz aprox. 1761 m
bus-station
Mobexpert
Stații autobuz aprox. 1939 m
Recreere
sports-ground
Teren sportiv
Terenuri sport aprox. 1699 m
cafe
Coffe House
Cafenea aprox. 1740 m
supermarket
Shopping City Sibiu
Supermarket aprox. 1782 m
park
Parc
Parcuri aprox. 1997 m

Detalii despre preț și costuri

Prețul pe piață

Preț cerut: 75.200 €

Preț min. zonă 76.000 €
Preț max. zonă 135.000 €

i

Proprietate cu prețul cerut în afara intervalului mai multe...

Posibile explicații pentru faptul că prețul proprietății este sub cel minim: imobil cu risc seismic, imobil cu probleme structurale, imobil demolabil, poziționare în altă zonă
Bine de știut: prețul unei proprietăți este influențat și de alte caracteristici, cum ar fi: vechime, localizare, vecinătăți, suprafață, compartimentare, amenajări, dotări, etc.

Costuri cu achiziția

Fără credit
4.942 RON
Credit ipotecar
6.290 RON
Noua casă
523 RON+ taxe notariale

i

Costuri adiționale mai puțin știute la achiziție: taxe notariale, comisioane etc.

Proprietăți recomandate

Detalii de contact

Sibiu Estate

Florin Macaveiu Consilier Imobiliar

Sibiu Estate
PRO

Abonează-te la newsletter să fii primul care primește cele mai noi recomandări de proprietăți și sfaturi de la experți.

CONTACT

Creează alertă

Salvează căutarea ca să primești pe email ultimele anunțuri publicate

Apartamente noi cu 2 camere de vânzare în Șelimbăr, Județul Sibiu