Apartament 3 camere cu gradina proprie 330 mp - SELIMBAR

180.000 €

Șelimbăr, Județul Sibiu

Nr. cam.:
3
Sup. utilă:
79 mp
Etaj:
Parter / 2
An constr.:
2025 (Finalizată)
  • • Locație aproximativă
  • • Vizionare prin apel video

Descriere apartament

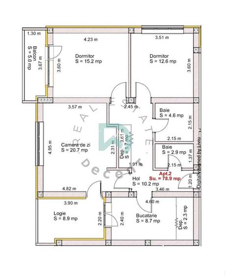
Apartament 3 camere cu grădină proprie 330 mp – Parter, bloc nou – Șelimbăr, zona Pictor Brana | 78,9 mp utili Îți dorești confortul unui apartament la bloc, dar și intimitatea unei grădini proprii? Acest apartament cu 3 camere din Șelimbăr îți oferă exact acest lucru: spațiu bine compartimentat și o curte generoasă de 330 mp. Decent Real Estate Sibiu vă propune spre vânzare un apartament situat la parterul unui bloc nou din Șelimbăr, în zona Pictor Brana, într-un imobil modern cu regim de înălțime P+2E și două scări. Locuința are o suprafață utilă de 78,9 mp și beneficiază de grădină proprie de 330 mp, ideală pentru relaxare, amenajare terasă, spațiu verde sau loc de joacă. Compartimentare: - camera de zi cu acces pe terasă - 2 dormitoare luminoase, unul dintre ele cu acces pe balcon - bucătărie separate cu acces pe terasă - baie principală - baie de serviciu - hol - balcon + terasă - curte proprie 330 mp Apartamentul este întabulat și se predă la stadiul de alb, oferindu-vă libertatea de a-l amenaja după propriul stil și preferințe. Pentru cei care doresc să se mute rapid, există și posibilitatea predării la cheie. Preț: - 180.000 €uro - opțional cost suplimentar pentru predare la cheie Avantaje: - bloc nou, construcție modernă - poziționare la parter – acces facil - curte proprie generoasă - compartimentare practică - zonă în plină dezvoltare, aproape de Sibiu - ideală atât pentru locuit, cât și pentru investiție Zona Pictor Brana din Șelimbăr este una dintre cele mai căutate zone rezidențiale din apropierea Sibiului, oferind acces rapid către oraș, centre comerciale, școli și facilități urbane. Dacă îți dorești o locuință modernă cu grădină proprie, te invităm să programezi o vizionare și să descoperi avantajele acestei proprietăți. Pentru mai multe informații sau programarea unei vizionări, contactează echipa Decent Real Estate Sibiu. ! Imagini cu titlu de prezentare !
Citește mai mult Citește mai puțin
Confort 1 Decomandat 1 Balcon / Terasă / Logie Centrală proprie 1 Parcare

Detalii apartament

ID anunț: XGB600007 Copiat! 275252183 Copiat!
Actualizat în: 13 Martie 2026
Suprafață utilă totală: 79 mp
Suprafață construită: 99 mp
Nr. bucătării: 1
Nr. băi: 2
Structură rezistență: Cărămidă
Tip imobil: Bloc de apartamente
Regim înălțime: P+2E

Utilități

Destinație
Rezidențial
Ușă intrare
Metal
Ferestre cu geam termopan
PVC
Alte spații utile
Terasă
Facilități imobil
Interfon
Comision
2%

Puncte de interes

Mijloace transport
bus-station
Sibiu-Triaj (Sud)
Stații autobuz aprox. 512 m
bus-station
Piata V. Aaron 2
Stații autobuz aprox. 685 m
bus-station
Piata V. Aaron 1
Stații autobuz aprox. 688 m
bus-station
Blocuri Indepententa 2
Stații autobuz aprox. 704 m
Școală
school
Scoala Generala Nr. 24
Școli aprox. 799 m
kindergarten
Gradinita Nr. 14
Gradinițe aprox. 838 m
school
Liceul Energetic
Școli aprox. 1046 m
kindergarten
Gradinita Kristine
Gradinițe aprox. 1863 m
Recreere
park
Parc
Parcuri aprox. 567 m
supermarket
Profi Vasile Aaron
Supermarket aprox. 707 m
sports-ground
Teren sportiv
Terenuri sport aprox. 718 m
bar
Narcisa
Bar aprox. 797 m

Detalii despre preț și costuri

Prețul pe piață

Preț cerut: 180.000 €

Preț min. zonă 99.500 €
Preț max. zonă 184.700 €

89% dintre proprietățile similare ca zonă și nr. camere au prețul cerut mai mic. mai multe...

Bine de știut: prețul unei proprietăți este influențat și de alte caracteristici, cum ar fi: vechime, localizare, vecinătăți, suprafață, compartimentare, amenajări, dotări, etc. mai puțin...

Costuri cu achiziția

Fără credit
27.422 RON
Credit ipotecar
29.299 RON
Noua casă
1.057 RON+ taxe notariale

i

Costuri adiționale mai puțin știute la achiziție: taxe notariale, comisioane etc.

Proprietăți similare

Apartament cu 3 camere semidecomandat în Șelimbăr
169.900 €
Județul Sibiu, Șelimbăr
3 camere
83 mp
Parter
Apartament cu 3 camere decomandat, mobilat în Șelimbăr
177.000 €
Județul Sibiu, Șelimbăr
3 camere
150 mp
Etaj 3 / 3
Apartament cu 3 camere semidecomandat în Șelimbăr
177.000 €
Județul Sibiu, Șelimbăr
3 camere
80,13 mp
Etaj 2 / 2

Detalii de contact

DECENT REAL ESTATE

Bianca Grip Partener Manager

DECENT REAL ESTATE
PRO

Abonează-te la newsletter să fii primul care primește cele mai noi recomandări de proprietăți și sfaturi de la experți.

CONTACT

Creează alertă

Salvează căutarea ca să primești pe email ultimele anunțuri publicate

Apartamente noi cu 3 camere de vânzare în Șelimbăr, Județul Sibiu