Apartament PREMIUM. LA CHEIE + garaj, + boxa, Sibiu

205.000 €

Central, Sibiu

Nr. cam.:
3
Sup. utilă:
66 mp
Etaj:
1 / 3
An constr.:
2023 (Finalizată)
  • • Comision 0%
  • • Locație aproximativă

Descriere apartament

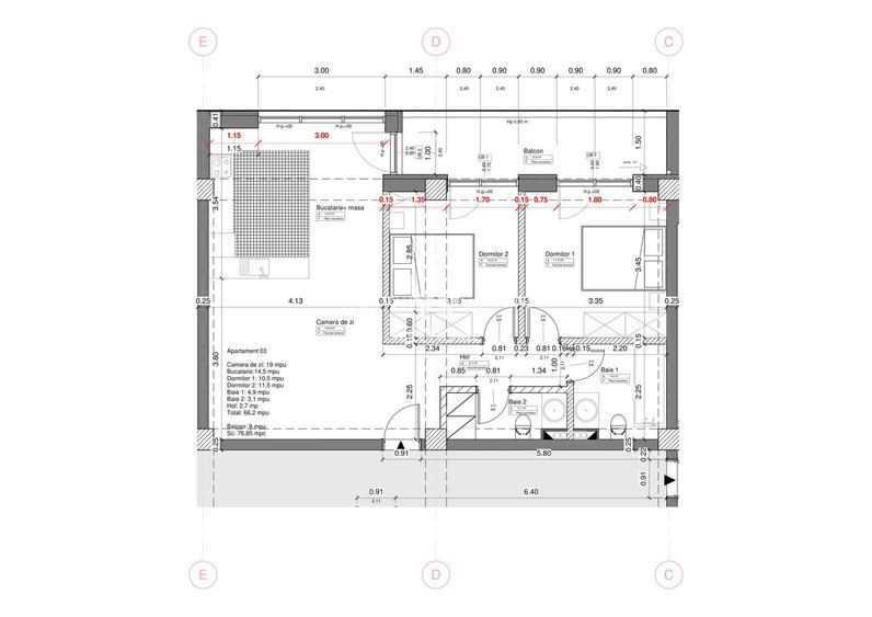
Apartament Premium, cu 2 dormitoare si 2 bai - Sibiu Suprafata utila: 66 mp + balcon 9 mp, etaj 1 Dotari UltraSmart, suprafete vitrate ample, centrala in condensatie, incalzire in pardoseala cu sistem inteligent de control, termostate wireless, detector gaz, jaluzele actionate electric. Compartimentat astfel: Camera de zi 19 mp Bucatarie 14,5 mp Dormitor 1-10,5 mp Dormitor 2-11,5 mp Baie 1-4,9 mp Baie 2-3,1 mp Hol 2,7 mp Total 66,2 mp Balcoane 9 mp S:totala 76,85 mp - Parcare subterana unde sunt alocate si boxe depozitare, liftul fiind accesibil chiar din subsol - Spatii verzi, zone de agrement, parcari vizitatori, sens unic intrare - iesire ansamblu, rampe acces persoane dizabilitati, ascensor 8 persoane, camera administrativa, spatiu pentru biciclete, adapost ALA, videointerfon, supravehere video ansamblu Locuinta se preda la CHEIE, tu vii doar cu mobila! PRET: 205.000 Euro -TVA INCLUS, garaj si boxa depozitare. Detalii si vizionari: Mihai
Citește mai mult Citește mai puțin
Confort 1 Decomandat Nemobilat 1 Balcon / Terasă / Logie Centrală proprie Încălzire prin pardoseală 1 Parcare

Detalii apartament

ID anunț: XB50102Q8 Copiat! 270961205 Copiat!
Actualizat în: 13 Martie 2026
Suprafață construită: 85 mp
Nr. bucătării: 1
Nr. băi: 2
Structură rezistență: Cărămidă
Tip imobil: Bloc de apartamente
Regim înălțime: D+P+3E

Utilități

Destinație
Rezidențial
Pereți
Vopsea lavabilă
Ușă intrare
Metal
Izolații termice
Exterior
Contorizare
Apometre Contor căldură Contor gaz
Diverse
Senzor de fum Sistem de alarmă Telecomandă poartă garaj
Facilități imobil
Lift Spații agrement Videointerfon
Utilități
Curent Apă Canalizare CATV Gaze Telefon
Internet
Cablu Wireless
Servicii imobil
Supraveghere video
Amenajare străzi
Iluminat stradal Mijloace de transport în comun Asfaltate
Comision
0%

Puncte de interes

Mijloace transport
bus-station
Scandia
Stații autobuz aprox. 206 m
bus-station
Alba Iulia
Stații autobuz aprox. 230 m
bus-station
MOL
Stații autobuz aprox. 274 m
bus-station
Tehnica Noua
Stații autobuz aprox. 320 m
Școală
school
Liceul Tehnic Textil
Școli aprox. 258 m
school
Scoala Generala Nr. 15
Școli aprox. 324 m
university
Laboratoare ULBS
Universități aprox. 374 m
kindergarten
Gradinita Nr. 19
Gradinițe aprox. 870 m
Recreere
park
Parc
Parcuri aprox. 117 m
bar
Bar Marian
Bar aprox. 173 m
sports-ground
Teren sportiv
Terenuri sport aprox. 340 m
supermarket
Kaufland
Supermarket aprox. 565 m

Detalii despre preț și costuri

Prețul pe piață

Preț cerut: 205.000 €

Preț min. zonă 93.000 €
Preț max. zonă 255.000 €

97% dintre proprietățile similare ca zonă și nr. camere au prețul cerut mai mic. mai multe...

Bine de știut: prețul unei proprietăți este influențat și de alte caracteristici, cum ar fi: vechime, localizare, vecinătăți, suprafață, compartimentare, amenajări, dotări, etc. mai puțin...

Costuri cu achiziția

Fără credit
9.937 RON
Credit ipotecar
11.919 RON
Noua casă
1.184 RON+ taxe notariale

i

Costuri adiționale mai puțin știute la achiziție: taxe notariale, comisioane etc.

Proprietăți recomandate

Detalii de contact

Welhome Imobiliare

Mihai Grajdan Broker imobiliar

Welhome Imobiliare
PRO

Abonează-te la newsletter să fii primul care primește cele mai noi recomandări de proprietăți și sfaturi de la experți.

CONTACT

Creează alertă

Salvează căutarea ca să primești pe email ultimele anunțuri publicate

Apartamente noi cu 3 camere de vânzare în zona Central, Sibiu