Apartamente 3 camere \ Selimbar \ Sibiu

103.000 €

Mihai Viteazul, Sibiu

Nr. cam.:
2
Sup. utilă:
60,6 mp
Etaj:
6 / 6
An constr.:
2024 (În construcție)
  • • Comision 0%
  • • Locație aproximativă

Descriere apartament

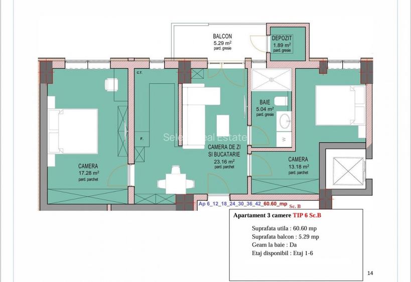
Select imobiliare are placerea de a va propune un nou proiect de apartamente situat in Selimbar Strada Doamna Stanca zona magazinului Dedeman. Imobilele sunt situate la 5 minute de Centrele Comerciale de la Shopping City Sibiu magazinul Lidl, Mega Image si nu departe de Piata Rahovei. Acest ansamblu rezidential reprezinta o oportunitate oferita pentru a locui intr o zona buna care asigura in acelasi timp atat linistea si accesul facil catre mijloacele de transport in comun cat si un pret foarte competitiv cu un randament investitional foarte bun. Blocul de locuinte este edificat in regim de inaltime P+6 avand in componenta sa garsoniere si apartamente de 2 si 3 camere cu balcoane terase (chiar si apartamentele situate la parter) si parcare supraterana/subterana. Fiecare apartament din acest proiect se va preda finisat la cheie si va beneficia de usa metalica la intrare toate utilitatile sapa autonivelanta si elicopterizata centrala proprie in condensatie incalzire in pardoseala geamuri termopan in 6 camere cu 3 foi de sticla gresie faianta parchet usi de interior obiecte sanitare prize si intrerupatoare Standard. Acest Complex Rezidential este ideal atat pentru clientii care vor sa investeasca in Sibiu cu un randament bun si sigur dar mai ales si pentru clientii care doresc sa locuiasca acolo impreuna cu familia. Tipul de apartament propus spre vinzare este cu 3 camere semidecomandat cu predare la cheie si un loc de parcare inclus in pret avand o suprafata utila de 60.60 mp Este compus astfel: - living + bucatarie 23.16 mp, dormitor 17.28 mp, dormitor 13,18 mp, baie 5.04 mp, balcon 5.29 mp, spatiu depozitare din balcon 1.89 mp. Pret apartament La Cheie: 103.000 euro \ TVA inclus Mod si termen de predare: Avans 15.000 euro la antecontract A doua plata va fi dupa 3 luni 15.000 euro Restul platii la finalizarea contractului Predarea apartamentelor se face in Mai 2026 cu Posibilitate de Plata Esalonata ! Buget: - 3000 lei obiectele sanitare - 80 lei \ mp Gresie - Faianta - 60 lei \ mp Parchet - 1000 lei \ buc. Usi de Interior Daca sunteti interesati de anumite tipuri de imobile cum ar fi: apartamente case terenuri spatii comerciale \ industriale \ birouri in diferite zone ale orasului  ( fie vanzari sau inchirieri ) si ofertele noastre vi se par interesante; nu ezitati sa ne contactati \ scrieti pe urmatorul nr. de telefon \ whatsapp:  sau pe site-ul oficial al agentiei      ; doar in acest fel puteti vedea toate ofertele noastre din portofoliul agentiei sau pe care vi le putem procura in urma colaborarii pe care o avem cu alti colegi de breasla si dezvoltatori imobiliari. Departament Marketing si Secretariat pentru vizionari imobiliare:   Departament Financiar Credite si Asigurari - consultanta gratuita. Va multumim ca alegeti Select imobiliare Sibiu !
Citește mai mult Citește mai puțin
Confort 1 Decomandat Nemobilat 1 Balcon / Terasă / Logie Centrală proprie Încălzire prin pardoseală 1 Parcare

Detalii apartament

ID anunț: XB8V1005T Copiat! 257481176 Copiat!
Actualizat în: 04 Iulie 2025
Suprafață construită: 72.72 mp
Nr. bucătării: 1
Nr. băi: 1
Structură rezistență: Cărămidă
Tip imobil: Bloc de apartamente
Regim înălțime: P+6E

Utilități

Pereți
Faianță Vopsea lavabilă
Podele
Gresie Parchet
Ușă intrare
Metal
Uși interior
Celulare Lemn
Izolații termice
Bloc izolat termic Exterior
Ferestre cu geam termopan
PVC
Contorizare
Contor gaz Apometre
Alte spații utile
Debara
Facilități imobil
Lift Interfon
Utilități
Curent Apă Canalizare Gaze CATV
Amenajare străzi
Asfaltate Iluminat stradal

Certificat energetic:

Clasa energetică: A

Disponibilitate proprietate:

imediat

Puncte de interes

Mijloace transport
bus-station
Piata Rahova 2
Stații autobuz aprox. 179 m
bus-station
Piata Rahova 3
Stații autobuz aprox. 301 m
bus-station
Piata Rahova 1
Stații autobuz aprox. 314 m
bus-station
Cedonia
Stații autobuz aprox. 461 m
Școală
school
Scoala generala nr. 21
Școli aprox. 360 m
school
Scoala Generala Nr. 9
Școli aprox. 532 m
kindergarten
Gradinita Nr. 42
Gradinițe aprox. 849 m
university
Facultatea de Stiinte Agroalimentare
Universități aprox. 1109 m
Recreere
supermarket
Lidl
Supermarket aprox. 101 m
sports-ground
Teren sportiv
Terenuri sport aprox. 333 m
restaurant
Korona
Restaurant aprox. 513 m
park
Parc
Parcuri aprox. 834 m

Detalii despre preț și costuri

Prețul pe piață

Preț cerut: 103.000 €

Preț min. zonă 64.000 €
Preț max. zonă 126.500 €

71% dintre proprietățile similare ca zonă și nr. camere au prețul cerut mai mare. mai multe...

Bine de știut: prețul unei proprietăți este influențat și de alte caracteristici, cum ar fi: vechime, localizare, vecinătăți, suprafață, compartimentare, amenajări, dotări, etc. mai puțin...

Costuri cu achiziția

Fără credit
6.254 RON
Credit ipotecar
7.804 RON
Noua casă
665 RON+ taxe notariale

i

Costuri adiționale mai puțin știute la achiziție: taxe notariale, comisioane etc.

Proprietăți recomandate

Detalii de contact

Select Real Estate

Remus Nan Broker imobiliar

Select Real Estate
PRO

Abonează-te la newsletter să fii primul care primește cele mai noi recomandări de proprietăți și sfaturi de la experți.

CONTACT

Creează alertă

Salvează căutarea ca să primești pe email ultimele anunțuri publicate

Apartamente cu 2 camere de vânzare în zona Mihai Viteazul, Sibiu