1

2 CAMERE COSMOPOLIS I PARCARE INCLUSA I BLOC 2026 I PROPRIETAR I com0%

110.000 €

Ștefăneștii de Jos, Județul Ilfov

Nr. cam.:
2
Sup. utilă:
51 mp
Etaj:
2 / 7
An constr.:
2025 (Finalizată)
  • • Comision 0%
  • • Exclusivitate
  • • Locație exactă

Descriere apartament

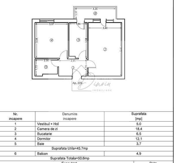
Va ofer spre vanzare apartment cu 2 camere + loc parcare, cu vedere spectaculoasa catre piscina, situat in Complexul Rezidential COSMOPOLIS, in Stefanestii de Jos, langa Tunari, cu acces din Sos. de Centura, in zona de Nord a Bucurestiului. Disponibilitate imediata! Gata de mutare! DIRECT PROPRIETAR Pret achizitie persoana juridica: 110.000 euro cu taxare inversa Pret achizitie persoana fizica: 110.000 euro + tva 21% COMISION agentie= 0% ; DIRECT PROPRIETAR Apartamentul este decomandat, situat la etajul 2/7 intr-un bloc nou construit in 2026, cu suprafata utila de 51 mp (46 mp plus balcon de 5mp), foarte luminos, cu vedere panoramica spectaculoasa catre piscina, cu o compartimentare moderna si eficienta a spatiilor, dupa cum urmeaza: - hol intrare de 5 mp - living foarte luminos de 18,4 mp, cu acces pe balcon - vedere spectaculoasa catre piscina mare - bucatarie inchisa de 6,5 m cu acces catre balcon - dormitor generos de 12 mp - baie spatioasa de 3, 7 mp - loc de parcare suprateran inclus in pret, in fata blocului Dotari si finisaje apartament: - videointerfon - incălzire prin pardoseala; centrală proprie - în condensație - uși interioare din lemn; ușă metalica la intrare - ferestre cu geam termopan -racord mașină spălat - contracte utilități la furnizori; TV & Internet - fibră optică -parchet, gresie și faianță; obiecte sanitare Avantaje Complex Cosmopolis: orasul numit acasa : 16.000 locuitori - siguranța rezidenților; pază 24/24 - acces controlat; supraveghere Video - costuri scăzute de întreținere - multiple opțiuni de relaxare; grad scăzut de poluare Facilitati Complex Cosmopolis: birou impozite și taxe locale Optiuni relaxare - 65 piscine exterioare; 4 parcuri; terenuri de fotbal și tenis; plajă privată pe malul lacului natural din apropiere - sală de fitness; fitness în aer liber; WorldClass (sauna umeda, uscata + piscina interioara) Pentru copii: 4 locuri de joacă Unitati de invatamant si educationale: scoală primară privată: Mark Twain International School = 2 gradinite private; scoala de stat in curand; scoală de talente Transport: asigurat pe baza de abonament Magazine: Carrefour Market, Lidl, Jysk, etc - peste 70 de magazine STRIP MALL Cosmopolis Plaza: restaurante și cafenele Spații servicii: Saloane cosmetice, Farmacie, Veterinar, Curățătorie, ATM, Centru medical Affidea Cosmopolis Biserică ortodoxă; Moschee Service Auto (ITP + Vulcanizare) Spalatorie Auto (in curand) Facilitati locatie: - acces facil la zona din Pipera - acces rapid A3, A0 si centura Bucuresti, DN1 Va invit sa programati o vizionare! Alina Dinoiu Pentru mai multe detalii, va astept aici
Citește mai mult Citește mai puțin
Confort lux Decomandat Nemobilat 1 Balcon / Terasă / Logie Piscină Curte comună Centrală proprie Încălzire prin pardoseală 1 Parcare

Detalii apartament

ID anunț: XFBQ100FT Copiat! 275207543 Copiat!
Actualizat în: 06 Martie 2026
Nr. bucătării: 1
Nr. băi: 1
Structură rezistență: Beton
Tip imobil: Bloc de apartamente
Regim înălțime: P+7E

Utilități

Pereți
Faianță Vopsea lavabilă
Podele
Gresie Parchet
Ușă intrare
Metal
Uși interior
Lemn
Izolații termice
Exterior Interior
Ferestre cu geam termopan
PVC
Contorizare
Apometre Contor căldură Contor gaz
Diverse
Telecomandă poartă acces auto
Facilități imobil
Interfon Lift Spa Spații agrement Videointerfon
Utilități
Curent Apă Canalizare CATV Gaze Telefon
Internet
Cablu
Servicii imobil
Pază Supraveghere video
Amenajare străzi
Iluminat stradal Mijloace de transport în comun Asfaltate
Comision
0%

Disponibilitate proprietate:

Imediat

Puncte de interes

Recreere
sports-ground
Teren sportiv
Terenuri sport aprox. 1420 m
sports-ground
Teren sportiv
Terenuri sport aprox. 1424 m

Detalii despre preț și costuri

Costuri cu achiziția

Fără credit
6.580 RON
Credit ipotecar
8.159 RON
Noua casă
700 RON+ taxe notariale

i

Costuri adiționale mai puțin știute la achiziție: taxe notariale, comisioane etc.

Proprietăți similare

Apartament cu 2 camere decomandat, mobilat în Ștefăneștii de Jos
110.000 €
Județul Ilfov, Ștefăneștii de Jos
2 camere
47 mp
Etaj 4 / 6
Apartament cu 2 camere decomandat în Ștefăneștii de Jos
109.008 €
Județul Ilfov, Ștefăneștii de Jos
2 camere
54 mp
Parter
Apartament cu 2 camere decomandat, mobilat în Ștefăneștii de Jos
120.000 €
Județul Ilfov, Ștefăneștii de Jos
2 camere
38 mp
70 mp teren

Detalii de contact

DINOIU IMOBILIARE

Alina Dinoiu Managing Director

DINOIU IMOBILIARE
PRO

Abonează-te la newsletter să fii primul care primește cele mai noi recomandări de proprietăți și sfaturi de la experți.

CONTACT

Creează alertă

Salvează căutarea ca să primești pe email ultimele anunțuri publicate

Apartamente noi cu 2 camere de vânzare în Ștefăneștii de Jos, Județul Ilfov