0% Comision modern, mobilat și utilat, Parcare proprie Kara Residence -Aradului

129.900 €

Aradului, Timișoara

Nr. cam.:
2
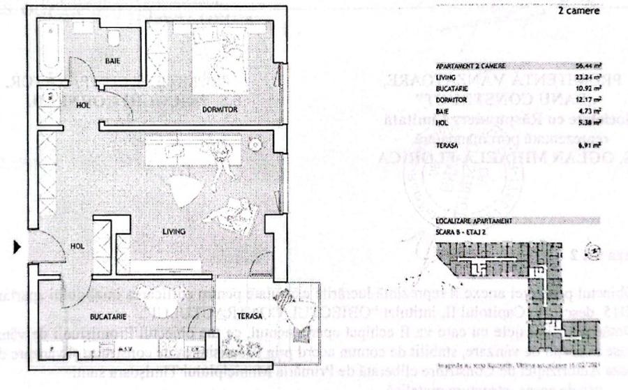
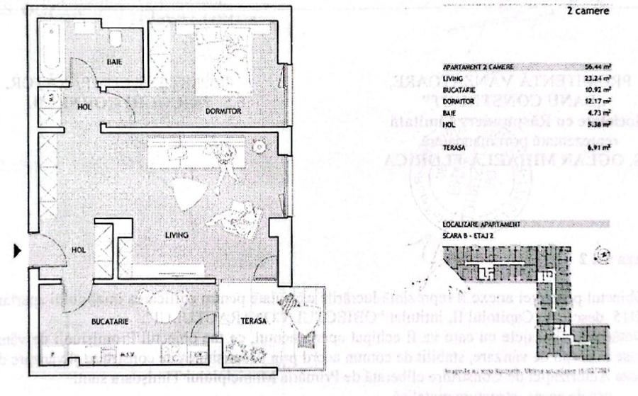
Sup. utilă:
56,44 mp
Etaj:
2 / 5
An constr.:
2022 (Finalizată)
  • • Comision 0%
  • • Exclusivitate
  • • Locație exactă

Descriere apartament

0% Comision Apartament modern, mobilat și utilat, bloc 2022 Parcare proprie Kara Residence (Aradului Lipovei)* Dacă îți dorești un apartament modern, complet mobilat și utilat, în care să te muți imediat, această proprietate este alegerea perfectă , S utila = 56,44 mp + terasa 5,38 mp= 61,82 mp + Loc parcare cu CF Ofer spre vânzare un apartament într-un bloc nou finalizat în 2022, situat în complexul **Kara Residence (Banu Construct), într-una dintre cele mai căutate zone din oraș: Aradului Lipovei. Apartamentul este liber și gata de mutat, fiind ideal atât pentru locuință personală, cât și pentru investiție (Airbnb sau închiriere). Situat la etajul 2, într-un imobil modern cu lift, apartamentul oferă confort și eficiență prin dotări de calitate. Avantaje și dotări: * Apartament complet mobilat și utilat * *Bloc nou finalizat în 2023 * *Etaj 2 cu lift * *Încălzire în pardoseală * *Centrală termică proprie * *Aer condiționat * *Contorizări separate * *Terasă generoasă cu 2 ieșiri * *Loc de parcare propriu cu barieră și telecomandă * Apartament *luminos, bine compartimentat Zona oferă acces rapid către magazine, restaurante, mijloace de transport și principalele puncte de interes ale orașului, fiind o locație foarte apreciată atât pentru locuit, cât și pentru investiții. *Preț: 129.900 euro 0% comision pentru cumpărător. Pentru mai multe informații sau pentru a programa o vizionare, vă stau cu drag la dispoziție.
Citește mai mult Citește mai puțin
Confort 1 Semidecomandat Mobilat Mobilat 1 Balcon / Terasă / Logie Grădină Curte Aer condiționat Centrală proprie Încălzire prin pardoseală 1 Parcare Renovat

Detalii apartament

ID anunț: X8NT001VC Copiat! 275217239 Copiat!
Actualizat în: 07 Martie 2026
Suprafață utilă totală: 61.82 mp
Nr. bucătării: 1
Nr. băi: 1
Structură rezistență: Cărămidă
Tip imobil: Bloc de apartamente
Regim înălțime: P+5E

Utilități

Destinație
Rezidențial
Pereți
Faianță Vopsea lavabilă
Podele
Gresie Parchet
Rulouri/Obloane
PVC
Ușă intrare
Metal
Uși interior
Celulare
Izolații termice
Exterior
Ferestre cu geam termopan
PVC
Contorizare
Contor gaz Apometre
Bucătărie
Mobilată Utilată
Electrocasnice
Cafetieră Mașină de spălat Frigider Cuptor microunde Hotă TV Mașină spălat vase Aragaz
Diverse
Telecomandă poartă acces auto
Alte spații utile
Terasă Debara
Facilități imobil
Spații agrement Lift Interfon
Utilități
Gaze
Internet
Fibră optică
Servicii imobil
Administrare Menaj
Comision
0%

Certificat energetic:

Clasa energetică: A

Puncte de interes

Mijloace transport
trolleybus-station
Statie Ion Ionescu de la Brad T14
Stații troleibuz aprox. 577 m
bus-station
Sf. Apostoli Petru si Pavel
Stații autobuz aprox. 829 m
trolleybus-station
Statie Piata Verde/Liege T17
Stații troleibuz aprox. 1372 m
tram-station
Statie Torontal Tv4, Tv6
Stații tramvai aprox. 1918 m
Școală
kindergarten
Gradinita Winnie The Pooh
Gradinițe aprox. 498 m
kindergarten
Gradinita Bambi
Gradinițe aprox. 694 m
school
Scoala Generala Nr. 7 "Sfanta Maria"
Școli aprox. 714 m
university
Universitatea de Stiinte Agricole si Medicina Veterinara a Banatului
Universități aprox. 1155 m
Recreere
sports-ground
Teren sportiv
Terenuri sport aprox. 358 m
supermarket
Kaufland
Supermarket aprox. 570 m
hypermarket
Decathlon
Hipermarket aprox. 1059 m
mall
Kappa Centrul Comercial
Mall aprox. 1812 m

Detalii despre preț și costuri

Prețul pe piață

Preț cerut: 129.900 €

Preț min. zonă 73.000 €
Preț max. zonă 148.200 €

80% dintre proprietățile similare ca zonă și nr. camere au prețul cerut mai mic. mai multe...

Bine de știut: prețul unei proprietăți este influențat și de alte caracteristici, cum ar fi: vechime, localizare, vecinătăți, suprafață, compartimentare, amenajări, dotări, etc. mai puțin...

Costuri cu achiziția

Fără credit
7.361 RON
Credit ipotecar
9.025 RON
Noua casă
802 RON+ taxe notariale

i

Costuri adiționale mai puțin știute la achiziție: taxe notariale, comisioane etc.

Proprietăți similare

Apartament cu 2 camere, mobilat în Aradului
140.000 €
Timișoara, Aradului
2 camere
53 mp
Etaj 1
Apartament cu 2 camere decomandat în Aradului
119.900 € + TVA
Timișoara, Aradului
2 camere
52 mp
Etaj 1 / 5
Apartament cu 3 camere semidecomandat în Aradului
137.085 € + TVA
Timișoara, Aradului
3 camere
74,1 mp
Etaj 2 / 5

Detalii de contact

CASA FAMILIEI TALE

Petru D consultant imobiliar

CASA FAMILIEI TALE
PRO

Abonează-te la newsletter să fii primul care primește cele mai noi recomandări de proprietăți și sfaturi de la experți.

CONTACT

Creează alertă

Salvează căutarea ca să primești pe email ultimele anunțuri publicate

Apartamente noi cu 2 camere de vânzare în zona Aradului, Timișoara