6

Nou. 62 mp utili. Gradina proprie 22 mp.. 3 parcari acoperite. Zona Braytim.

105.000 €

Braytim, Timișoara

Nr. cam.:
2
Sup. utilă:
62 mp
Etaj:
Parter / 2
An constr.:
2025 (Finalizată)
  • • Locație aproximativă

Descriere apartament

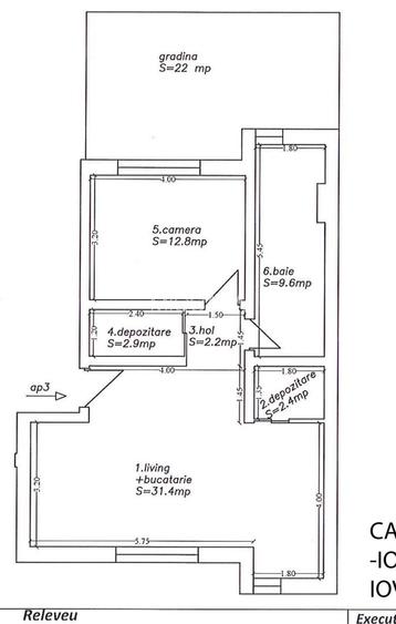
Vand apartament cu 2 camere in bloc nou 2025, disponibil imediat, spatios - 62 mp utili, debara, baie mare cu geam, gradina proprie de 22 mp, 4 locuri de parcare dintre care 3 acoperite, finisat la cheie, incalzire in pardoseala, centrala proprie, bloc integral din caramida, izolat termic, disponibil imediat. Pret 105.000 Eur. Tel.
Citește mai mult Citește mai puțin
Confort 1 Decomandat Grădină Curte 4 Parcări

Detalii apartament

ID anunț: XDF1101A9 Copiat! 270722957 Copiat!
Actualizat în: 23 Ianuarie 2026
Suprafață construită: 85 mp
Nr. bucătării: 1
Nr. băi: 1
Structură rezistență: Beton
Tip imobil: Bloc de apartamente
Regim înălțime: P+2E+M
Nr. terase: 1

Utilități

Destinație
Rezidențial
Pereți
Faianță Vopsea lavabilă
Podele
Gresie Parchet
Ușă intrare
Metal
Uși interior
Celulare
Ferestre cu geam termopan
PVC
Contorizare
Apometre Contor gaz
Alte spații utile
Debara Terasă
Facilități imobil
Acoperiș
Utilități
Curent Apă Canalizare CATV Gaze Telefon
Internet
Cablu
Servicii imobil
Supraveghere video
Amenajare străzi
Iluminat stradal Mijloace de transport în comun Asfaltate
Comision
standard

Vecinătăți:

Vecinătăți [ro].
Shopping :
- Hipermarketuri : Lidl, Carrefour Market
- Magazine alimentare : Profi

Educatie :
- Neghinita Kindergarten Club
- Gradinita lui Goghita
- Scoala Generala Nr. 30
- Grup Scolar de Chimie si Protectia Mediului Azur
- Liceul Teoretic Iris

Spatii recreere :
- Parcul Jecza

Mijloace de transport:
- Autobuze : A 15, A 16, Linia E3
.

Disponibilitate proprietate:

Imediat

Puncte de interes

Mijloace transport
bus-station
Venus
Stații autobuz aprox. 1236 m
tram-station
Statie I.O.T. Tv4
Stații tramvai aprox. 1294 m
trolleybus-station
Statie Sudului bucla T16
Stații troleibuz aprox. 1513 m
train-station
Halta Semenic Hm (en)
Stații tren aprox. 1991 m
Școală
kindergarten
Piticii din Vest
Gradinițe aprox. 1071 m
school
Scoala Generala 20
Școli aprox. 1114 m
kindergarten
Gradinita Program Normal Nr. 6
Gradinițe aprox. 1121 m
university
CENTRU REGIONALDE PREGATIRE PROFESIONALA PENTRU MAGISTRATI, GIROC, tIMISOARA
Universități aprox. 1639 m
Recreere
park
Parcul Ciarda Rosie
Parcuri aprox. 829 m
sports-ground
Arena Ciarda Rosie
Terenuri sport aprox. 959 m
bar
Mateo Cafe
Bar aprox. 1137 m
supermarket
Profi
Supermarket aprox. 1317 m

Detalii despre preț și costuri

Prețul pe piață

Preț cerut: 105.000 €

Preț min. zonă 72.000 €
Preț max. zonă 122.000 €

74% dintre proprietățile similare ca zonă și nr. camere au prețul cerut mai mare. mai multe...

Bine de știut: prețul unei proprietăți este influențat și de alte caracteristici, cum ar fi: vechime, localizare, vecinătăți, suprafață, compartimentare, amenajări, dotări, etc. mai puțin...

Costuri cu achiziția

Fără credit
6.348 RON
Credit ipotecar
7.907 RON
Noua casă
675 RON+ taxe notariale

i

Costuri adiționale mai puțin știute la achiziție: taxe notariale, comisioane etc.

Proprietăți recomandate

Detalii de contact

MIOCASA

Bianca Mioc Consultant imobiliar

MIOCASA
PRO

Abonează-te la newsletter să fii primul care primește cele mai noi recomandări de proprietăți și sfaturi de la experți.

CONTACT

Creează alertă

Salvează căutarea ca să primești pe email ultimele anunțuri publicate

Apartamente noi cu 2 camere de vânzare în zona Braytim, Timișoara