11

GRADINA 50 mp. Aproape de Zone2 si Mega Image. Decomandat.

120.000 €

Braytim, Timișoara

Nr. cam.:
3
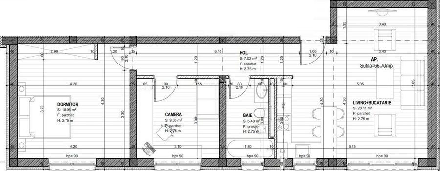
Sup. utilă:
67 mp
Etaj:
Parter / 2
An constr.:
2025 (În construcție)
  • • Locație aproximativă

Descriere apartament

. MIOCASA ofera spre vanzare apartamente cu 2 si 3 camere, situate intr-un proiect rezidential NOU, in zona de Sud a orasului, Braytim-Calea Urseni, la limita dintre Timisoara si Giroc, aproape de centura de Sud a orasalui, de mijloacele de transport in comun si in apropierea a multiple magazine (Mega Image, Profi, brutarie, restaurantul Zone2). Imobilul face parte dintr-un complex rezidential modern, cu mai multe modele de apartamente,. Modele de apartamente diponibile: Parter: - 3 camere, cu suprafata utila de 67 mp + gradina de 50 mp. Avand pretul de 120.000 Eur; - 3 camere, cu suprafata utila de 67 mp + gradina de 105 mp - Vandut; Finisaje: - centrala termica proprie, cu incalzire in pardoseala; - geamuri cu tamplarie PVC si geam tripan Salamander; - aparate de aer conditionat; - instalatie electrica cu prize si intrerupatoare Gewiss; - video interfon, fibra optica si cablu tv; - bransat la toate utilitatile cu contorizari individuale. Constructia are structura din beton, cu ziduri din caramida Porotherm (zidarie exterioara 30 cm), izolatie exterioara cu polistiren 10 cm(EPS 80). Apartamentele sunt cu CF la zi. .
Citește mai mult Citește mai puțin
Confort 1 Decomandat Grădină Curte Aer condiționat Centrală proprie Încălzire prin pardoseală 2 Parcări

Detalii apartament

ID anunț: XDF1100UO Copiat! 241652349 Copiat!
Actualizat în: 09 Februarie 2026
Suprafață construită: 81 mp
Nr. bucătării: 1
Nr. băi: 1
Structură rezistență: Beton
Tip imobil: Bloc de apartamente
Regim înălțime: P+2E

Utilități

Destinație
Rezidențial
Pereți
Faianță Vopsea lavabilă
Podele
Gresie Parchet
Ușă intrare
Metal
Izolații termice
Exterior
Ferestre cu geam termopan
PVC
Contorizare
Apometre Contor gaz
Facilități imobil
Acoperiș Interfon Videointerfon
Utilități
Curent Apă Canalizare CATV Gaze Telefon
Internet
Cablu Wireless
Amenajare străzi
Iluminat stradal Mijloace de transport în comun Asfaltate Betonate Pietruite

Certificat energetic:

Clasa energetică: A

Vecinătăți:

.
Shopping :
- Hipermarketuri : Lidl, Carrefour Market
- Magazine alimentare : Profi

Educatie :
- Neghinita Kindergarten Club
- Gradinita lui Goghita
- Scoala Generala Nr. 25
- Grup Scolar de Chimie si Protectia Mediului Azur
- Liceul Teoretic Iris

Spatii recreere :
- Parcul Jecza

Mijloace de transport:
- Autobuze : Linia E3, Linia 15, Linia 16
.

Disponibilitate proprietate:

Imediat

Puncte de interes

Mijloace transport
tram-station
Statie I.O.T. Tv4
Stații tramvai aprox. 538 m
tram-station
Statie Ciarda Rosie Tv4
Stații tramvai aprox. 666 m
bus-station
Electrotimis
Stații autobuz aprox. 675 m
trolleybus-station
Statie Sudului bucla T16
Stații troleibuz aprox. 1277 m
Școală
school
Campus scolar Colegiul Tehnic Electrotimis
Școli aprox. 399 m
school
Liceul Electrotimiș
Școli aprox. 432 m
kindergarten
Gradinita Program Prelungit nr.38
Gradinițe aprox. 479 m
kindergarten
Gradinita Program Normal Nr. 6
Gradinițe aprox. 553 m
Recreere
sports-ground
Arena Ciarda Rosie
Terenuri sport aprox. 215 m
park
Parcul Ciarda Rosie
Parcuri aprox. 483 m
bar
Mateo Cafe
Bar aprox. 508 m
supermarket
Profi
Supermarket aprox. 606 m

Detalii despre preț și costuri

Prețul pe piață

Preț cerut: 120.000 €

Preț min. zonă 90.000 €
Preț max. zonă 170.000 €

55% dintre proprietățile similare ca zonă și nr. camere au prețul cerut mai mare. mai multe...

Bine de știut: prețul unei proprietăți este influențat și de alte caracteristici, cum ar fi: vechime, localizare, vecinătăți, suprafață, compartimentare, amenajări, dotări, etc. mai puțin...

Costuri cu achiziția

Fără credit
7.022 RON
Credit ipotecar
8.644 RON
Noua casă
751 RON+ taxe notariale

i

Costuri adiționale mai puțin știute la achiziție: taxe notariale, comisioane etc.

Proprietăți recomandate

Detalii de contact

MIOCASA

Mihai-Alin Roman Consultant imobiliar

5.00(6 review-uri)

MIOCASA
PRO

Abonează-te la newsletter să fii primul care primește cele mai noi recomandări de proprietăți și sfaturi de la experți.

CONTACT

Creează alertă

Salvează căutarea ca să primești pe email ultimele anunțuri publicate

Apartamente cu 3 camere de vânzare în zona Braytim, Timișoara