16

Apartament 3 camere, garaj si boxa - zona Centrala-Prefectura

195.000 €

Central, Timișoara

Nr. cam.:
3
Sup. utilă:
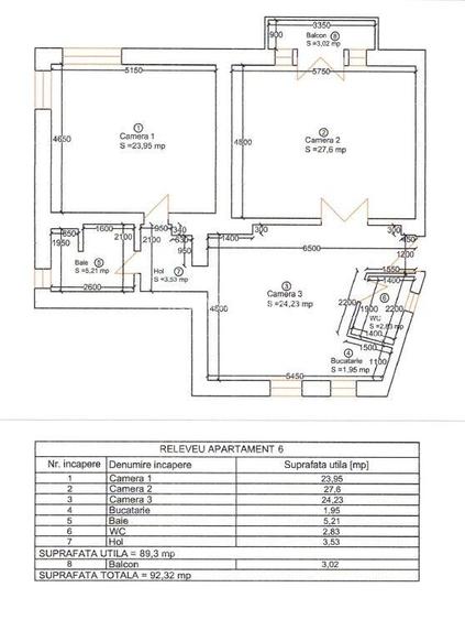
90 mp
Etaj:
2 / 2
An constr.:
1929 (Finalizată)
  • • Comision 0%
  • • Locație aproximativă
  • • Vizionare prin apel video

Descriere apartament

Pastrand aerul boem al cladirilor istorice, apartamentul a fost integral renovat si dispune de o suprafata utila de 95 mp, impreuna cu o boxa si un garaj cu acces auto in curtea interioara a imobilului. Compartimentare interioara: - living open space cu zona de bucatarie - camera cu acces la balcon (deschis) - camera secundata - baie cu cada - baie cu cabina dus - antreu - hol tranzit
Citește mai mult Citește mai puțin
Confort 1 Semidecomandat Parțial mobilat 1 Balcon / Terasă / Logie Aer condiționat Calorifere Centrală proprie 1 Garaj

Detalii apartament

ID anunț: X1BR102KO Copiat! 274420662 Copiat!
Actualizat în: 23 Februarie 2026
Suprafață construită: 115 mp
Nr. bucătării: 1
Nr. băi: 2
Structură rezistență: Cărămidă
Tip imobil: Casă/Vilă
Regim înălțime: D+P+2E

Utilități

Destinație
Rezidențial
Pereți
Faianță Vopsea lavabilă
Podele
Gresie Parchet
Ușă intrare
Lemn
Uși interior
Lemn Sticlă
Ferestre cu geam termopan
PVC
Contorizare
Apometre Contor gaz
Bucătărie
Mobilată Utilată
Electrocasnice
Aragaz Frigider Hotă Mașină de spălat Mașină spălat vase TV
Diverse
Telecomandă poartă acces auto Telecomandă poartă garaj
Alte spații utile
WC Serviciu
Facilități imobil
Acoperiș Interfon
Utilități
Curent Apă Canalizare CATV Gaze Telefon
Internet
Cablu Wireless
Amenajare străzi
Iluminat stradal Mijloace de transport în comun Asfaltate
Comision
0%

Vecinătăți:

Consiliul Judetean-Prefectura, Facultatea de Medicina, Parcul Copiilor, Colegiul Național Pedagogic "Carmen Sylva", Colegiul „C. D. Loga”, Posta Mare, Hotel Continental, Piata Unirii, Bastion

Disponibilitate proprietate:

In baza conventiei dintre parti

Puncte de interes

Mijloace transport
bus-station
Statie Pestalozzi E8
Stații autobuz aprox. 5 m
tram-station
Statie Prefectura Tv1, Tv2, Tv4, Tv5
Stații tramvai aprox. 310 m
trolleybus-station
Statie Bastion T11, T17
Stații troleibuz aprox. 700 m
train-station
Gara de Est
Stații tren aprox. 1415 m
Școală
kindergarten
Gradinita Program Prelungit Nr. 53
Gradinițe aprox. 14 m
school
Liceul Teoretic Jean-Louis Calderon
Școli aprox. 87 m
kindergarten
Gradinita Program Prelungit Nr. 45
Gradinițe aprox. 121 m
university
Facultatea de Economie si de Administrarea a Afacerilor
Universități aprox. 229 m
Recreere
sports-ground
Teren sportiv
Terenuri sport aprox. 46 m
park
Parcul Regina Maria
Parcuri aprox. 161 m
supermarket
Profi City
Supermarket aprox. 521 m
mall
Kappa Centrul Comercial
Mall aprox. 1734 m

Detalii despre preț și costuri

Prețul pe piață

Preț cerut: 195.000 €

Preț min. zonă 95.000 €
Preț max. zonă 336.000 €

55% dintre proprietățile similare ca zonă și nr. camere au prețul cerut mai mare. mai multe...

Bine de știut: prețul unei proprietăți este influențat și de alte caracteristici, cum ar fi: vechime, localizare, vecinătăți, suprafață, compartimentare, amenajări, dotări, etc. mai puțin...

Costuri cu achiziția

Fără credit
9.595 RON
Credit ipotecar
11.535 RON
Noua casă
1.133 RON+ taxe notariale

i

Costuri adiționale mai puțin știute la achiziție: taxe notariale, comisioane etc.

Proprietăți recomandate

Detalii de contact

Abonează-te la newsletter să fii primul care primește cele mai noi recomandări de proprietăți și sfaturi de la experți.

CONTACT

Creează alertă

Salvează căutarea ca să primești pe email ultimele anunțuri publicate

Apartamente cu 3 camere de vânzare în zona Central, Timișoara