Apartament 2 camere, etajul 2, 47mp utili in Dambovita

104.990 €

Dâmbovița, Timișoara

Nr. cam.:
2
Sup. utilă:
47 mp
Etaj:
2 / 2
An constr.:
1978 (Finalizată)
  • • Locație exactă

Descriere apartament

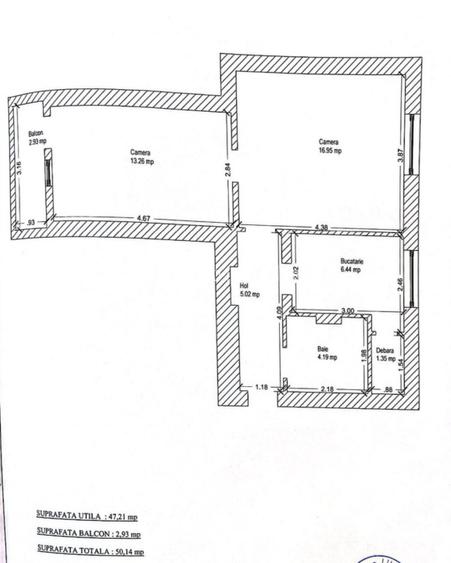
ID: P1989 WestHub Imobiliare va propune spre vanzare un apartament cu 2 camere, 47mp utili, situat la etajul 2, intr-un bloc cu regim de inaltime P+2, anul constructie 1978. Apartamentul dispune de balcon de 2,93mp. Puncte forte : - Pozitionat excelent, atat pentru locuit cat si pentru investitie. -Aproape de mijloacele de transport in comun. -Zona linistita. Detalii tehnice : -Suprafata utila : 47mp -Etaj - 2 -Confort - 1 -Numar holuri - 2 -Numar camere - 2 -Numar bai - 1 -Compartimentare - Semidecomandat -Sistem incalzire - Colterm, calorifere -Stare interior - Buna -Usa intrare - Metal -Podele - Parchet+Gresie -Pereti - Lavabila+Faianta -Ferestre - Termopan nPVC -Usi interior - MDF PRET : 104.990 Euro Pentru mai multe detalii si programarea unei vizionari ne puteti contacta la WestHub Imobiliare. Va asteptam cu drag la o vizionare.
Citește mai mult Citește mai puțin
Confort 1 Nedecomandat Mobilat Mobilat 1 Balcon / Terasă / Logie Aer condiționat Calorifere Termoficare

Detalii apartament

ID anunț: XF581015C Copiat! 274235988 Copiat!
Actualizat în: 17 Ianuarie 2026
Suprafață construită: 50 mp
Nr. bucătării: 1
Nr. băi: 1
Structură rezistență: Cărămidă
Tip imobil: Bloc de apartamente
Regim înălțime: P+2E

Utilități

Destinație
Rezidențial
Pereți
Vopsea lavabilă Faianță
Podele
Parchet Gresie
Ușă intrare
Metal
Uși interior
Celulare Panel
Ferestre cu geam termopan
PVC
Contorizare
Apometre Contor căldură
Bucătărie
Mobilată Utilată
Alte spații utile
Debara
Facilități imobil
Interfon Spații agrement Acoperiș
Utilități
Curent Apă Canalizare CATV Telefon
Amenajare străzi
Asfaltate Iluminat stradal Mijloace de transport în comun
Comision
standard

Vecinătăți:

Lidl, Nora, Parcul Clabucet

Disponibilitate proprietate:

imediat

Puncte de interes

Mijloace transport
bus-station
Mall Sud
Stații autobuz aprox. 327 m
tram-station
Statie Piata Veteranilor Tv7
Stații tramvai aprox. 354 m
bus-station
Piata Veteranilor
Stații autobuz aprox. 361 m
train-station
Timisoara South Railway Station (en)
Stații tren aprox. 1345 m
Școală
kindergarten
Gradinita particulara Minissa
Gradinițe aprox. 234 m
kindergarten
Kinderhaus Minissa
Gradinițe aprox. 433 m
school
Scoala Generala Nr. 27
Școli aprox. 513 m
school
Scoala Gimnaziala nr. 13
Școli aprox. 810 m
Recreere
park
Balta Mica
Parcuri aprox. 120 m
supermarket
Carrefour
Supermarket aprox. 352 m
sports-ground
Teren sportiv
Terenuri sport aprox. 508 m
restaurant
Pizza Hut
Restaurant aprox. 511 m

Detalii despre preț și costuri

Prețul pe piață

Preț cerut: 104.990 €

Preț min. zonă 55.000 €
Preț max. zonă 110.000 €

99% dintre proprietățile similare ca zonă și nr. camere au prețul cerut mai mic. mai multe...

Bine de știut: prețul unei proprietăți este influențat și de alte caracteristici, cum ar fi: vechime, localizare, vecinătăți, suprafață, compartimentare, amenajări, dotări, etc. mai puțin...

Costuri cu achiziția

Fără credit
6.343 RON
Credit ipotecar
7.901 RON
Noua casă
675 RON+ taxe notariale

i

Costuri adiționale mai puțin știute la achiziție: taxe notariale, comisioane etc.

Proprietăți recomandate

Detalii de contact

Abonează-te la newsletter să fii primul care primește cele mai noi recomandări de proprietăți și sfaturi de la experți.

CONTACT

Creează alertă

Salvează căutarea ca să primești pe email ultimele anunțuri publicate

Apartamente cu 2 camere de vânzare în zona Dâmbovița, Timișoara