De vanzare apartament luminos (3,5m inaltime), 2 camere semidecomandat, la etajul 2, suprafata utila 74 mp renovat, aditional 2 spatii de depozitare, unul la etajul 2 altul in pivnita.
Compartimentare:
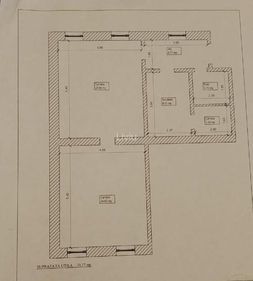
-hol de acces (5,7m²) - geamuri orientate spre Est
-bucatarie (8,5m²)
-camara 1 (3,3m²)
-baie cu cada (3.7m²)
-sufragerie (24,8m²) - geamuri orientate spre Est
-dormitor (24,6m²) - geamuri orientate spre Vest
+camara (~2m²)
+boxa (~6m²)
Utilitati incluse: aparat aer conditionat, masina de spalat vase +rufe, aragaz +hota
Apartament se afla:
- intr-o cladire "monument istoric" (10 proprietari) cu curte comuna, in zona Traian(langa Catedrala Catolica si liceul Shakespear).
- zona ideala pentru familii, in aproapiere de magazine, piata, gradinita /scoala, parc mijloace de transport in comun (tramvai)
##Sistem incalzire -Calorifere si centrala proprie pe gaz / optional Termoficare
Clasa energetica C
Ferestre cu geam termopan - PVC
Usa - din lemn
Podele in camare si hol => parchet nelacuit (necesita reparatii)
in bucatarie => podea de lemn (necesita reparatii)
in baie si camara => gresie
Pereti Vopsea lavabila, Faianta
Utilitati generale: Apa, Canalizare, internet, Curent, Gaz
Contorizare: Contor apa rece/ gaz / curent
##Starea cladirii:
-Acoperisul a fost reparat partial anul trecut, inclusiv jgheaburi noi
-Casa scarii a fost renovata de curand.
-Se strang fonduri pentru renovarea fatadei
##Starea apartamentului:
-Tamplaria este din PVC cu geam termopan a fost montata in 2008.
-Instalatia de apa (inclusiv coloana de apa rece) si canalizare a fost schimbata in 2010
-Instalatia electrica a fost schimbata partial in 2010, pe cupru
-Pereti apartament renovati in 2012
-Instalatia de incalzire, centrala pe gaz, tevi din cupru si calorifere noi montata in 2019
Poze aditionale si video din apartment sunt disponibile dupa o discutie prealabila pe Whatapp(07_70_540_860)
## Nu doresc sa fiu contactat de firme intermediare.##
Proprietate cu prețul cerut în afara intervalului mai multe...
Posibile explicații pentru faptul că prețul proprietății este peste cel maxim: imobil nou cu suprafață mare, are dotări și finisaje de lux.
Bine de știut: prețul unei proprietăți este influențat și de alte caracteristici, cum ar fi: vechime, localizare, vecinătăți, suprafață, compartimentare, amenajări, dotări, etc.
Costuri cu achiziția
Fără credit
8.054 RON
Credit ipotecar
9.803 RON
Noua casă
905 RON+ taxe notariale
i
Costuri adiționale mai puțin știute la achiziție: taxe notariale, comisioane etc.
Sediul central - Timișoara
Bulevardul Victor Babeș nr. 2, 300230, Timișoara, România
Tel: +40.374.40.44.98 / Fax: +40.256.401.179
Email: suport@imobiliare.ro
Luni - Vineri 08:00 - 20:00
Punct de lucru - București: Iride Business Park, Bld. Dimitrie
Pompeiu 9-9A, Clădirea B2B,
020335, Sector 2, București, România
CONTACT
Sediul central - Timișoara
Bulevardul Victor Babeș nr. 2, 300230, Timișoara, România
Tel: +40.374.40.44.98 / Fax: +40.256.401.179
Email: suport@imobiliare.ro
Luni - Vineri 08:00 - 20:00
Punct de lucru - București: Iride Business Park, Bld. Dimitrie
Pompeiu 9-9A, Clădirea B2B,
020335, Sector 2, București, România
Sună acum și cere detalii sau programează o vizionare.
Cere detalii prin email
*
*
*
*
Stații tramvai
Stații autobuz
Stații troleibuz
Stații tren
Școli
Gradinițe
Universități
Supermarket
Mall
Parcări
Piețe publice
Parcuri
Terenuri sport
Farmacie
Spital
Restaurant
Pub
Bar
Cafenea
Bancă
3 August 1919
aprox.
133 m
Statie 3 August 1919 Tv1, Tv2, Tv4, Tv5
aprox.
144 m
Statie 3 August 1919 Tv1, Tv2, Tv4, Tv6
aprox.
147 m
Statie Piata Traian Tv1, Tv2, Tv4, Tv5
aprox.
196 m
Statie Piata Traian Tv1, Tv2, Tv4, Tv6
aprox.
198 m
Statie Badea Cartan Tv1, Tv2
aprox.
564 m
Statie Prefectura Tv1, Tv2, Tv4, Tv5
aprox.
621 m
Statie Prefectura Tv1, Tv2, Tv4, Tv6
aprox.
628 m
Piata Badea Cartan
aprox.
637 m
Statie Sarmisegetuza Tv1, Tv2
aprox.
899 m
Statie Hotel Continental Tv1, Tv2, Tv4, Tv6
aprox.
964 m
Hotel Continental
aprox.
987 m
Banatim
aprox.
1046 m
Statie Banatim Tv5, Tv6 retur
aprox.
1060 m
Statie Banatim Tv4, Tv8
aprox.
1125 m
Statie Fabrica de Bere Tv4, Tv5, Tv6, A21
aprox.
316 m
Statie Jean Louis Calderon E8
aprox.
350 m
Radio Timisoara
aprox.
414 m
Iepurelui
aprox.
441 m
Radio Timisoara
aprox.
466 m
Statie Iepurelui E8, A21
aprox.
472 m
Statie Pestalozzi E8
aprox.
492 m
ILSA
aprox.
508 m
Iepurelui
aprox.
511 m
Pestalozzi
aprox.
546 m
Statie Badea Cartan T11, M35 , M30, E4
aprox.
576 m
Piata Badea Cartan
aprox.
576 m
Baader
aprox.
611 m
Statie Badea Cartan T11, M35, M30, E4
aprox.
616 m
Piata Badea Cartan
aprox.
632 m
Statie Politia Jud. Timis T11, T17
aprox.
526 m
Statie Baader T17
aprox.
611 m
Statie Samuil Micu T11
aprox.
784 m
Statie Bastion T11, T17
aprox.
863 m
Statie Renasterii T11
aprox.
1006 m
Statie Oituz T11, T17
aprox.
1148 m
Statie B-dul Mihai Eminescu T19
aprox.
1192 m
Statie Piata 700 T11, T13, T14, T17, T18
aprox.
1670 m
Statie Piata 700 T11, T14, T18
aprox.
1802 m
Gara de Est
aprox.
1066 m
Timisoara East Railway station area (en)
aprox.
1299 m
Liceul Teoretic William Shakespeare
aprox.
123 m
Centrul de Zi pentru Copii cu Dizabilitati Podul Lung
aprox.
441 m
LICEUL TEORETIC "J.L.CALDERON" TIMISOARA
aprox.
445 m
Liceul Teoretic Jean-Louis Calderon
aprox.
463 m
ȘCOALA GIMNAZIALĂ NR.1
aprox.
502 m
Scoala Gimnaziala nr. 1
aprox.
515 m
Scoala generala nr. 28
aprox.
540 m
Cladire Vest
aprox.
720 m
Scoala cu clasele I-VIII nr. 21 "Vincentiu Babes"
aprox.
728 m
Scoala Gimnaziala nr. 21 Vicentiu Babes
aprox.
729 m
Colegiul National Ana Aslan
aprox.
818 m
Scoala Generala nr. 5
aprox.
848 m
Colegiul Național "Ana Aslana
aprox.
849 m
Scoala Generala nr 16 (Take Ionescu)
aprox.
861 m
Scoala Gimnaziala nr. 16
aprox.
873 m
Gradinita Program Prelungit Nr. 16
aprox.
176 m
Gradinita Program Normal Nr. 5
aprox.
397 m
Gradinita Program Prelungit Nr. 53
aprox.
490 m
Gradinita nr. 22 / Cresa nr. 7
aprox.
530 m
Gradinita Program Prelungit Nr. 22
aprox.
554 m
Gradinita Program Prelungit Nr. 45
aprox.
572 m
Gradinita Program Prelungit Nr. 19
aprox.
660 m
Gradinita Program Prelungit Nr. 48
aprox.
714 m
Gradinita Program Normal Nr. 9
aprox.
769 m
Gradinita Program Prelungit Posta
aprox.
812 m
Gradinita Program Prelungit Nr. 44
aprox.
997 m
Gradinita cu program prelungit nr. 44
aprox.
997 m
Grădinița Program Normal Nr. 16
aprox.
1025 m
Gradinita Program Prelungit Nr. 33
aprox.
1073 m
Gradinita Program Prelungit Nr. 6
aprox.
1150 m
Facultatea de Economie si de Administrarea a Afacerilor
aprox.
387 m
Facultatea de Economie și de Administrare a Afacerilor
aprox.
398 m
Universitatea Mihai Eminescu
aprox.
630 m
Cladire a UMF Timisoara
aprox.
683 m
U.M.F. Catedra de Farmacologie
aprox.
684 m
Centrul de Microchirurgie si Chirurgie Laparoscopica 'Pius Branzeu'
aprox.
698 m
Universitatea Tibiscus
aprox.
699 m
Universitatea de Medicina si Farmacie Victor Babes
aprox.
753 m
Universitatea de Medicina
aprox.
753 m
Universitatea de Medicina si Farmacie Victor Babes
aprox.
958 m
U.M.F. Medicină Dentară
aprox.
972 m
Universitatea Dimitrie Cantemir
aprox.
980 m
Facultatea de Arte Plastice
aprox.
1330 m
Facultatea de Arte
aprox.
1330 m
Facultatea de Chimie Industriala si Ingineria Mediului
aprox.
1419 m
Profi str. Dacilor
aprox.
330 m
Profi
aprox.
351 m
Profi City
aprox.
614 m
Profi
aprox.
690 m
Kaufland
aprox.
744 m
Profi City
aprox.
890 m
Profi
aprox.
1083 m
Profi City Dorobantilor
aprox.
1193 m
Bega Shopping Center
aprox.
1235 m
Carrefour Market
aprox.
1237 m
Carrefour
aprox.
1244 m
Profi City
aprox.
1271 m
Carrefour Market
aprox.
1335 m
Profi
aprox.
1557 m
Kapa Shopping Center
aprox.
1622 m
Kappa Centrul Comercial
aprox.
1622 m
Parcare
aprox.
294 m
Parcare
aprox.
338 m
Parcare
aprox.
348 m
Parcare
aprox.
381 m
Parcare
aprox.
381 m
Parcare
aprox.
381 m
Parcare
aprox.
413 m
Parcare
aprox.
413 m
Parcare
aprox.
445 m
Parcare
aprox.
451 m
Parcare
aprox.
471 m
Parcare privata
aprox.
495 m
Parcare
aprox.
612 m
Parcare
aprox.
625 m
Parcare
aprox.
640 m
Piata Romanilor
aprox.
104 m
Piata Corneliu Micloși
aprox.
133 m
Piata Traian
aprox.
279 m
Piata Aurel Vlaicu
aprox.
320 m
Piata Sarmisegetuza
aprox.
909 m
Piata Tepes Voda
aprox.
1156 m
Piata Leonardo Da Vinci
aprox.
1227 m
Piata Unirii
aprox.
1352 m
Piata General Virgil Economu
aprox.
1377 m
Piata Libertatii
aprox.
1501 m
Piata Mircea Eliade
aprox.
1654 m
Piata Victoriei
aprox.
1731 m
Piata Romanilor
aprox.
117 m
Piata Academician Corneliu Miclosi
aprox.
124 m
Parc
aprox.
159 m
Parc
aprox.
169 m
Parcul Andrei Mocioni
aprox.
215 m
Parcul Regina Maria
aprox.
345 m
Parcul Poporului
aprox.
345 m
Parcul Mocioni
aprox.
389 m
Parc
aprox.
412 m
Parc
aprox.
435 m
Parc
aprox.
503 m
Parc
aprox.
508 m
Parc
aprox.
538 m
Parc
aprox.
587 m
Parc
aprox.
620 m
Teren sportiv
aprox.
491 m
Teren Fotbal
aprox.
498 m
Teren sportiv
aprox.
751 m
Teren sportiv
aprox.
898 m
Teren sportiv
aprox.
909 m
Teren sportiv
aprox.
1035 m
Teren Fotbal
aprox.
1241 m
Teren sportiv
aprox.
1295 m
Teren sportiv
aprox.
1303 m
Teren sportiv
aprox.
1318 m
Teren sportiv
aprox.
1325 m
Teren sportiv
aprox.
1348 m
Teren sportiv
aprox.
1367 m
Teren sportiv
aprox.
1386 m
Teren sportiv
aprox.
1394 m
Kovacs
aprox.
347 m
Farmacie
aprox.
481 m
Farmacia Dona
aprox.
552 m
Farmacia Catena
aprox.
561 m
Farmacie
aprox.
631 m
Farmacia Dona
aprox.
710 m
Remedio
aprox.
994 m
Farmacie
aprox.
1042 m
Farmacie
aprox.
1245 m
Dona
aprox.
1378 m
Farmacia Dona 140
aprox.
1425 m
Dianthus Farmacia
aprox.
1457 m
Sensiblu
aprox.
1549 m
Vlad
aprox.
1631 m
Sensiblu
aprox.
1679 m
Cabinet Radiografie Dentara
aprox.
541 m
Medici's
aprox.
591 m
Cabinet Dr. Iana Elena Cristina
aprox.
592 m
Ambulatoriu Integrat Policlinica 3
aprox.
695 m
Policlinica Sanatatea
aprox.
764 m
Clinica de Oto-Rino-Laringologie
aprox.
857 m
Clinica de Recuperare
aprox.
966 m
Clinica de Chirurgie Orala si Maxilo-Faciala
aprox.
985 m
Policlinica Studenteasca
aprox.
1000 m
Medcom CBS Hospital
aprox.
1080 m
Profilaxis
aprox.
1099 m
Clinica First Medical
aprox.
1132 m
Clinica analize medicale
aprox.
1348 m
Spitalul Municipal Clinicile Noi
aprox.
1555 m
Spitalul Clinic de Boli Infectioase si Pneumoftiziologie Dr. Victor Babes
aprox.
1560 m
Leonardo da Vinci
aprox.
210 m
Pizzeria Mamma Mia
aprox.
407 m
Pizza Nuova Mamma Mia
aprox.
413 m
Curtea Berarilor "La Fabrică"
aprox.
441 m
Carina
aprox.
591 m
Restaurant Dracula
aprox.
615 m
Restaurant "Dracula"
aprox.
637 m
Pizzeria Celentano
aprox.
660 m
Pizzeria Celentano
aprox.
675 m
Valentina
aprox.
676 m
Cofetaria Codrina
aprox.
682 m
Eurohotel
aprox.
703 m
Camelot
aprox.
731 m
Restaurant Camelot
aprox.
732 m
Marele Restaurant Chinezesc
aprox.
754 m
Factory Pub
aprox.
383 m
Wake Up
aprox.
785 m
Porky's
aprox.
804 m
Oxford Pub & Restaurant
aprox.
808 m
Irish Pub
aprox.
1234 m
Drunken Rat
aprox.
1271 m
Habitat
aprox.
1382 m
Grinette
aprox.
1429 m
Jarvis
aprox.
1464 m
Molly Malone's
aprox.
1490 m
Bierhaus
aprox.
1505 m
La Capite
aprox.
1552 m
Rock House
aprox.
1570 m
Bibliotheka 2
aprox.
1575 m
Vineri15
aprox.
1595 m
Orizont Club
aprox.
688 m
WakeUp
aprox.
988 m
Atu
aprox.
1001 m
Club Fratelli
aprox.
1042 m
Bar Davinci
aprox.
1047 m
MGM Bastion
aprox.
1065 m
Curtea Berarilor
aprox.
1173 m
Eclipse
aprox.
1374 m
Enoteca de Savoya
aprox.
1406 m
Mode
aprox.
1425 m
D'arc
aprox.
1434 m
Arqa
aprox.
1436 m
PAGO
aprox.
1459 m
Cafe Colt
aprox.
1483 m
Bunker
aprox.
1497 m
Barista
aprox.
1017 m
Van Graf KFe
aprox.
1272 m
Papillon
aprox.
1341 m
Musetti
aprox.
1360 m
Spirit
aprox.
1376 m
Tucano Coffee Mexico
aprox.
1491 m
WellPlayed Gaming Lounge
aprox.
1515 m
1740 Music Cafe
aprox.
1521 m
Reciproc
aprox.
1564 m
Cuib d'Arte
aprox.
1572 m
Starbucks
aprox.
1656 m
Tempo
aprox.
1680 m
Galto di Bruno
aprox.
1712 m
BiblioTech Cafe
aprox.
1750 m
Millenium Cafe
aprox.
1774 m
CEC Bank
aprox.
601 m
BRD
aprox.
603 m
Intesa San Paolo
aprox.
652 m
ING
aprox.
754 m
Generali Asigurari
aprox.
793 m
Ing Bank
aprox.
802 m
Raiffeisen Bank
aprox.
811 m
EximBank
aprox.
814 m
Banca Transilvania
aprox.
837 m
Banca Transilvania
aprox.
843 m
ING
aprox.
906 m
BRD
aprox.
975 m
Banca Nationala
aprox.
1006 m
BRD
aprox.
1071 m
BRD, sediul principal Timisoara
aprox.
1079 m
La capitolul mijloace de transport în comun, locuitorii acestui cartier timișorean au la dispoziție atât tramvaie (liniile 1, 2, 5, 10), cât și autobuze (liniile 21, 22 și E8). Deși amatorii de ciclism din Fabric nu beneficiază de o rețea de piste dedicate, aceștia au acces facil atât la amenajările existente în zona Cetate (dintre care cea mai apropiată ar fi pe Bulevardul Take Ionescu), în Simion Bărnuțiu-Dorobanților (pe Strada Simion Bărnuțiu) sau în Complex-Stadion (pe Bulevardul Eroilor de la Tisa sau pe Strada Johann Heinrich Pestalozzi).
Din punctul de vedere al oportunităților de educație, Fabric oferă multiple opțiuni locuitorilor săi. Astfel, dintre instituțiile de profil existente în cartier, de menționat ar fi Școala Gimnazială Nr. 1 (amplasată pe Strada Comănești, nr. 3), dar și Școala Gimnazială Nr. 6 (pe Strada Moise Nicoară), care include clase de învățământ preșcolar, primar și gimnazial. Zona este avantajată, însă, atât de proximitatea zonei centrale a orașului, unde se găsesc Universitatea de Medicină și Farmacie "Victor Babeș" și o serie de licee de prestigiu (Colegiul Tehnic "Emanuil Ungureanu", Colegiul Pedagogic "Carmen Sylva", Colegiul Național "Constantin Diaconovici Loga"), cât și de cea a cartierului Complex-Stadion, unde se află Universitatea de Vest, care include peste zece facultăți reputate (precum Arte și Design, Litere, Istorie și Teologie, dar și cea de Matematică și Informatică). Mai jos poți vedea în detaliu ce unități de învățământ există în Fabric:
La fel ca timișorenii din Crișan-Modern și din Complex-Stadion, cei din Fabric au la dispoziție, strict între granițele propriului cartier, doar magazine de mici dimensiuni, de tip supermarket; de menționat la acest capitol ar fi un magazin Profi, amplasat la limita cu zona Cetate, mai exact pe Strada Dacilor, nr. 25. Ca și în alte domenii, locuitorii acestei zone sunt avantajați de proximitatea centrului orașului, care este mult mai ofertant din acest punct de vedere. În Cetate poate fi găsit, astfel, chiar magazinul Bega Shopping Center, localizat în apropiere de Parcul Civic. Pe lângă numeroasele magazine din sfera de fashion (dar nu numai), vizitatorii săi pot găsi aici și un Carrefour Market. În Simion Bărnuțiu-Dorobanților se află și un hipermarket Kaufland (pe Strada Mihail Kogălniceanu, nr. 11-15).
În Fabric, una dintre principalele artere de circulație ar fi Strada Dacilor, care face legătura cu zona Cetate, dar și cu Simion Bărnuțiu-Dorobanților; aceasta se continuă cu Strada Ștefan cel Mare, care ajunge la limita dintre Complex-Stadion și Buziașului (după care se continuă cu Calea Stan Vidrighin). De menționat este și Strada Andrei Șaguna, care se continuă cu Calea Dorobanților în zona ce-i poartă numele. Dat fiind numărul relativ ridicat de clădiri rezidențiale multifamiliale, găsirea unui loc permanent de parcare în Fabric poate fi dificilă uneori "“ în special în vestul cartierului, în apropiere de centru. Despre închirierea unui asemenea spațiu posesorii de autovehicule pot afla mai multe la sediul Primăriei (din zona Cetate, pe Bulevardul Constantin Diaconovici Loga, nr. 1).
Pe lângă parcurile de mici dimensiuni pe care le au la dispoziție în propriul cartier, timișorenii de aici pot ajunge cu ușurință la multitudinea de parcuri existente în zona centrală a orașului, printre care se numără Parcul "Regina Maria", Parcul Rozelor, Parcul Copiilor "Ion Creangă", dar și Parcul Botanic. De asemenea, un centru de interes cu o multitudine de activități culturale și de divertisment au loc la Faber "“ o reconversie a vechii Fabrici Azur, ce schimbă cartierul într-un mod pozitiv. Un avantaj al locuitorilor săi este că în Fabric se găsesc și obiective de interes cultural și turistic, cum ar fi Palatul Nagele (de pe Strada Dacilor, nr. 10), dar și Palatul Mercur (Piața Traian, nr. 4-3). Atractive sunt, desigur, și punctele de interes din aceeași categorie amplasate în zona Cetate, cum ar fi Bastionul Maria Theresia, Palatul Dicasterial, Muzeul de Artă etc. Iubitorii de sport sin această zonă a orașului de pe Bega pot ajunge cu ușurință în Complex-Stadion, unde pot găsi mai multe facilități sportive. Astfel, în partea de sud a cartierului învecinat se găsește Stadionul "Dan Păltinișanu", alături de o serie de terenuri de sport ce aparțin Bazei Sportive Politehnica Nr. 2, dar și de două ștranduri publice. Află, mai jos, ce alte opțiuni de petrecere a timpului liber mai ai în Fabric:
În special datorită vecinătăților sale, locuitorii zonei Fabric se pot considera bine deserviți când vine vorba de sănătate. Astfel, pe lângă cabinetele medicale individuale la care au acces în propriul cartier, aceștia pot ajunge cu ușurință și la spitalele din centrul orașului (Spitalul Clinic Municipal de Urgență Timișoara, Spitalul Militar de Urgență "Dr. Victor Popescu", Spitalul Clinic de Urgență pentru Copii "Louis Țurcanu"). De asemenea, în Simion Bărnuțiu-Dorobanților se află alte două spitale de stat, anume Institutul de Boli Cardiovasculare Timișoara (pe Strada Gheorghe Adam, nr. 13A) și, respectiv, Spitalul Clinic de Boli Infecțioase și Pneumoftiziologie "Dr. Victor Babeș" (pe Strada Gheorghe Adam, nr. 13). La capitolul servicii medicale particulare, de menționat este faptul că în Complex-Stadion se găsește și o clinică din rețeaua Medlife, situată pe Bulevardul Eroilor de la Tisa, nr. 28. De asemenea, în Crișan-Modern se află o unitate medicală privată de dimensiuni mai mari, specializată în tratamente destinate exclusiv copiilor, anume Centrul "Dr. Bacos Cosma" (de pe Strada Frederic Mistral, nr. 22). Pe harta de mai jos găsești localizarea exactă a spitalelor și clinicilor din zonă:
Pe lângă fast food-uri, localuri și pizzerii de cartier, găsim aici restaurante, pizzerii și cafenele la granița cu cartierele învecinate. Între acestea amintim: restaurantul din cadrul Hotelului Vanilla (de pe Bulevardul Eroilor de la Tisa nr. 57), Dinar Restaurant (de pe strada Barbu Iscovescu nr 2) și Restaurantul Merlot (Splaiul Nistrului 1). Cu mașina, cu bicicleta, sau chiar pe jos, poți să ajungi repede în Piața Victoriei, în Piața Sfântul Gheorghe sau Unirii. Aruncă o privire pe hartă și vezi unde vei găsi cel mai apropiat restaurant de viitoarea ta locuință.
În acest cartier găsești un bancomat BRD pe strada Timocului, nr. 2. Totuși, mai multe bancomate și sucursale bancare găsești în zonele învecinate. Consultă harta și află unde sunt localizate și alte bănci sau ATM-uri în zona de care ești interesat.
Înainte să pleci...
Ești sigur că ai văzut și aceste proprietăți?
145.000 €
Timișoara, Fabric
3 camere
66 mp
Etaj 1
145.000 €
Timișoara, Fabric
3 camere
70 mp
Etaj 1
135.000 €
Timișoara, Fabric
2 camere
80,14 mp
Etaj 2
Creează alertă
Salvează căutarea ca să primești pe email ultimele anunțuri publicate
Apartamente cu 2 camere de vânzare în zona Fabric, Timișoara
Cere detalii prin email
*
*
*
*
Detaliile tale de contact vor fi partajate cu Liviu
Statistici proprietate
Apartamente 2 camere de vânzare
- Timișoara
- Zona Fabric
Asigurare de viață/lună Costul este variabil. În funcție de banca aleasă, procentul variază între 0.0259% și 0.035% din soldul creditului.
Costuri cu achiziția9.803 RON
Comision agenție Întreabă agenţia
Onorariu notarial6.907 RON
Taxă întabulare OCPI1.147 RON
Autentificare contract credit1.749 RON
Preț de achiziție764.520 RON
Preț locuință764.520 RON
TVA 0%Inclus în prețul cerut
Preț de achiziție764.520 RON
Preț locuință764.520 RON
TVA 0%
Inclus în prețul cerut
Avans minim158.001 RON
Credit pe 30 de ani606.519 RON
Cost achitat în prima lună
Taxa evaluare imobil(până la)
575 RON
Rata lunară (variabilă)4.262 RON
Depozit colateral12.786 RON
Comision de garantare FNGCIMM64 RON
Asigurare anuală imobil765 RON
Poliță PAD130 RON
Tarif arhivă electronică102 RON
Costuri adiționale905 RON + taxe notariale
Asigurare viață și complexă (opțională)Costul este variabil. În funcție de banca aleasă, procentul variază între 0.0259% și 0.035% din soldul creditului
Onorariu notarialconform tarif notarial
Taxă întabulare OCPI905 RON
i
Toate valorile de mai sus sunt estimative și nu reprezintă în mod obligatoriu costurile exacte pe care le veți primi de la companiile/instituțiile prin care veți încheia tranzacția.