LANDMARK ofera spre vanzare apartament spatios de 80 mp, cu 2 camere decomandat in cladire istorica cu fatada reabilitata , Timisoara Telegrafului - Fabric, situat la etajul 2 din 2 + pod .
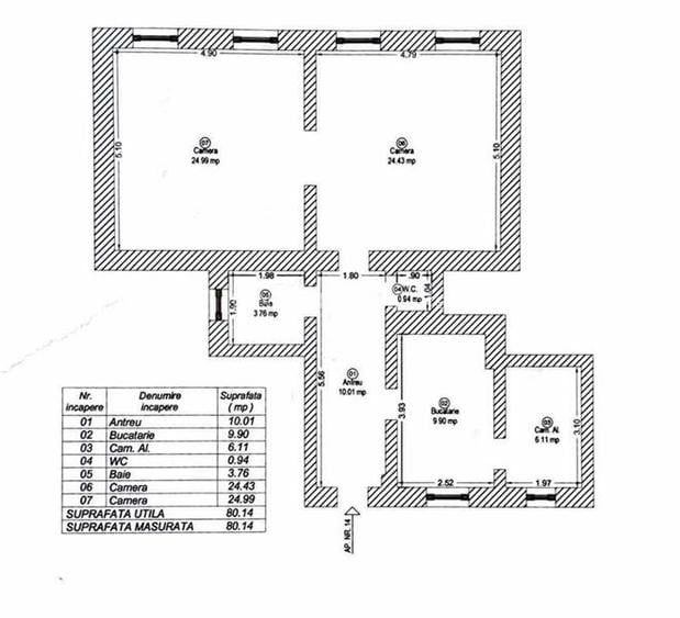
Apartamentul are o suprafata utila de 80.14 mp si este compartimentat in felul urmator: acces hol, zona de luat masa, bucatarie inchisa, baie de servici, baie cu vana si 2 camere mari si luminioase de cate 25 mp fiecare . Fatada cladirii a fost reabilitata in anul 2020, apartamentul in interior in anul 2022 (schimbat sistem electric si sanitar) iar acoperisul reconditionat recent deasupra apartamentului (tigle schimbate< reparat horn, hidroizolatie).
Amenajari interioare: pachet laminat in hol, gresie in bucatarie si bai, parchet din lemn in cele 2 camere. Ferestrele sunt termopan pvc alb, usile interioare lemn, incalzirea se realizeaza cu centrala proprie prin calorifere iar inaltimea camerelor este de circa 3.8 m.. Imobilul se afla in apropiere de tramvai, autobuz, zona comerciala, supermarket, fastfood, trafic pietonal, intersectie circulata, benzinarie, piata, restaurant pub, scoala gradinita .Pretul este de 139000 euro putin negociabil. Comision agentie 3% din pretul final de vanzare. ID intern: 2210651.
58%dintre proprietățile similare ca zonă și nr. camere au prețul cerutmai mare.
mai multe...
Bine de știut: prețul unei proprietăți este influențat și de alte caracteristici, cum ar fi: vechime, localizare, vecinătăți, suprafață, compartimentare, amenajări, dotări, etc.
mai puțin...
Costuri cu achiziția
Fără credit
28.174 RON
Credit ipotecar
29.860 RON
Noua casă
828 RON+ taxe notariale
i
Costuri adiționale mai puțin știute la achiziție: taxe notariale, comisioane etc.
Calculul ipotecarului
Proprietăți recomandate
Pornind de la căutarea ta îți recomandăm următoarele anunțuri
113.000 €
Timișoara, Dorobanților
2 camere
60 mp
Parter / 4
92.900 €
Timișoara, Torontalului
2 camere
52 mp
Etaj 5
98.000 €
Timișoara, Girocului
2 camere
53 mp
Etaj 1 / 3
105.000 €
Timișoara, Centrul Bancar
2 camere
44 mp
Etaj 4 / 4
144.900 €
Timișoara, Neptun
2 camere
80 mp
Etaj 1 / 3
89.800 €
Județul Timiș, Giroc
2 camere
58 mp
Etaj 2
125.000 €
Județul Timiș, Giroc
2 camere
50 mp
Etaj 3
124.900 €
Timișoara, Take Ionescu
2 camere
48 mp
Parter
96.900 €
Județul Timiș, Giroc
2 camere
48 mp
Etaj 3
Detalii de contact
Acestă agenție te poate ajuta să obții o soluție de finanțare potrivită nevoilor tale. Solicită-i informații suplimentare.
Sediul central - Timișoara
Bulevardul Victor Babeș nr. 2, 300230, Timișoara, România
Tel: +40.374.40.44.98 / Fax: +40.256.401.179
Email: suport@imobiliare.ro
Luni - Vineri 08:00 - 20:00
Punct de lucru - București: Iride Business Park, Bld. Dimitrie
Pompeiu 9-9A, Clădirea B2B,
020335, Sector 2, București, România
CONTACT
Sediul central - Timișoara
Bulevardul Victor Babeș nr. 2, 300230, Timișoara, România
Tel: +40.374.40.44.98 / Fax: +40.256.401.179
Email: suport@imobiliare.ro
Luni - Vineri 08:00 - 20:00
Punct de lucru - București: Iride Business Park, Bld. Dimitrie
Pompeiu 9-9A, Clădirea B2B,
020335, Sector 2, București, România
Sună acum și cere detalii sau programează o vizionare.
Cere detalii prin email
*
*
*
*
Stații autobuz
Stații tramvai
Stații troleibuz
Stații tren
Școli
Gradinițe
Universități
Supermarket
Mall
Parcări
Terenuri sport
Parcuri
Piețe publice
Farmacie
Spital
Restaurant
Bar
Pub
Cafenea
Bancă
Telegrafului
aprox.
54 m
Statie Piata Badea Cartan A46
aprox.
143 m
Piata Badea Cartan
aprox.
194 m
Statie Badea Cartan T11, M35, M30, E4
aprox.
196 m
Statie Badea Cartan T11, M35 , M30, E4
aprox.
230 m
Piata Badea Cartan
aprox.
230 m
Gara Timisoara Est
aprox.
266 m
Baader
aprox.
282 m
Samuil Micu
aprox.
310 m
Statie Gara de Est Tv1, Tv2, A46 (en)
aprox.
325 m
Gara Timisoara Est
aprox.
325 m
Samex
aprox.
336 m
Samuil Micu
aprox.
383 m
ILSA
aprox.
408 m
Gara de Est
aprox.
420 m
Piata Badea Cartan
aprox.
153 m
Statie Badea Cartan Tv1, Tv2
aprox.
232 m
Statie Arena Electrica retur Tv1, Tv2
aprox.
731 m
Statie Piata Traian Tv1, Tv2, Tv4, Tv6
aprox.
750 m
Statie Piata Traian Tv1, Tv2, Tv4, Tv5
aprox.
761 m
3 August 1919
aprox.
858 m
Statie 3 August 1919 Tv1, Tv2, Tv4, Tv6
aprox.
862 m
Statie 3 August 1919 Tv1, Tv2, Tv4, Tv5
aprox.
871 m
Statie Sarmisegetuza Tv1, Tv2
aprox.
983 m
UMT
aprox.
995 m
Statie UMT Tv1, Tv2
aprox.
1008 m
Statie General V. Economu Tv1, Tv2
aprox.
1018 m
V. Economu
aprox.
1018 m
Statie Lalelelor Tv1, Tv2
aprox.
1023 m
Lalelelor
aprox.
1028 m
Statie Baader T17
aprox.
282 m
Statie Samuil Micu T11
aprox.
283 m
Statie Politia Jud. Timis T11, T17
aprox.
597 m
Statie Renasterii T11
aprox.
605 m
Statie Bastion T11, T17
aprox.
1146 m
Statie Oituz T11, T17
aprox.
1359 m
Statie B-dul Mihai Eminescu T19
aprox.
1734 m
Statie Arena Aquasport T11
aprox.
1742 m
Statie Cimitirul Eroilor T14
aprox.
1744 m
Statie Piata 700 T11, T13, T14, T17, T18
aprox.
1952 m
Gara de Est
aprox.
368 m
Timisoara East Railway station area (en)
aprox.
509 m
Cladire Vest
aprox.
84 m
Scoala cu clasele I-VIII nr. 21 "Vincentiu Babes"
aprox.
107 m
Scoala Gimnaziala nr. 21 Vicentiu Babes
aprox.
112 m
Colegiul Tehnic Regele Ferdinand I
aprox.
662 m
COLEGIUL TEHNIC "REGELE FERDINAND I " - Grup Scolar Energetic
aprox.
731 m
COLEGIUL TEHNIC "REGELE FERDINAND I "
aprox.
855 m
Grup Scolar Tudor Tanasescu
aprox.
862 m
Liceul Teoretic William Shakespeare
aprox.
899 m
Scoala Generala nr 16 (Take Ionescu)
aprox.
904 m
Scoala Gimnaziala nr. 16
aprox.
907 m
Scoala Generala nr. 5
aprox.
1046 m
Scoala Gimnaziala nr. 5
aprox.
1058 m
ȘCOALA GIMNAZIALĂ NR.1
aprox.
1156 m
Scoala Gimnaziala nr. 1
aprox.
1169 m
LICEUL TEORETIC "J.L.CALDERON" TIMISOARA
aprox.
1202 m
Gradinita Program Prelungit Nr. 48
aprox.
189 m
Gradinita Program Prelungit Nr. 16
aprox.
615 m
Grădinița Program Normal Nr. 16
aprox.
725 m
SoFi Day Care
aprox.
764 m
Gradinita particulara Children Care Center
aprox.
802 m
Gradinita Program Normal Nr. 9
aprox.
829 m
Gradinita nr. 22 / Cresa nr. 7
aprox.
858 m
Gradinita Program Prelungit Nr. 22
aprox.
895 m
Gradinita Program Normal Nr. 5
aprox.
983 m
Gradinita Program Prelungit Nr. 44
aprox.
1066 m
Gradinita cu program prelungit nr. 44
aprox.
1066 m
Gradinita Gimini
aprox.
1127 m
Gradinita Program Prelungit Nr. 53
aprox.
1218 m
Gradinita Program Prelungit Nr. 19
aprox.
1233 m
Gradinita Program Prelungit Nr. 33
aprox.
1263 m
U.M.F. Catedra de Farmacologie
aprox.
1078 m
Cladire a UMF Timisoara
aprox.
1086 m
Centrul de Microchirurgie si Chirurgie Laparoscopica 'Pius Branzeu'
aprox.
1105 m
Universitatea de Medicina si Farmacie Victor Babes
aprox.
1144 m
Universitatea de Medicina
aprox.
1159 m
Universitatea Mihai Eminescu
aprox.
1166 m
Facultatea de Economie si de Administrarea a Afacerilor
aprox.
1172 m
Facultatea de Economie și de Administrare a Afacerilor
aprox.
1183 m
Universitatea de Medicina si Farmacie Victor Babes
aprox.
1392 m
U.M.F. Medicină Dentară
aprox.
1396 m
Universitatea Tibiscus
aprox.
1461 m
Facultatea de Arte Plastice
aprox.
1485 m
Facultatea de Arte
aprox.
1485 m
Universitatea Dimitrie Cantemir
aprox.
1698 m
Facultatea de Muzica
aprox.
1803 m
Kaufland
aprox.
141 m
Profi
aprox.
497 m
Profi str. Dacilor
aprox.
504 m
Profi City
aprox.
662 m
Profi City
aprox.
875 m
Profi
aprox.
992 m
Profi City Dorobantilor
aprox.
1005 m
Profi City
aprox.
1160 m
Kapa Shopping Center
aprox.
1227 m
Minimarket Noroc
aprox.
1255 m
Galeria 1
aprox.
1319 m
Iulius Mall
aprox.
1499 m
Auchan
aprox.
1529 m
Profi City
aprox.
1598 m
Bega Shopping Center
aprox.
1637 m
Kappa Centrul Comercial
aprox.
1227 m
Parcare pentru clienti
aprox.
55 m
Parcare pentru clienti
aprox.
136 m
Parcare
aprox.
351 m
Parcare
aprox.
599 m
Parcare particulara
aprox.
704 m
Parcare
aprox.
718 m
Parcare privata
aprox.
726 m
Parcare
aprox.
808 m
Parcare
aprox.
809 m
Parcare
aprox.
809 m
Parcare
aprox.
810 m
Parcare
aprox.
810 m
Spatiu ideal pentru amenajare parc, parcari, teren fotbal (propunere)
aprox.
872 m
Parcare
aprox.
896 m
Parcare
aprox.
901 m
Teren sportiv
aprox.
99 m
Teren sportiv
aprox.
756 m
Teren sportiv
aprox.
796 m
Teren sportiv
aprox.
831 m
Teren sportiv
aprox.
906 m
Teren sportiv
aprox.
922 m
Teren sportiv
aprox.
923 m
Teren sportiv
aprox.
979 m
Teren Fotbal
aprox.
1183 m
Teren sportiv
aprox.
1231 m
Teren sportiv
aprox.
1433 m
Teren Baschet
aprox.
1451 m
Teren Fotbal
aprox.
1453 m
Teren sportiv
aprox.
1595 m
Teren sportiv
aprox.
1840 m
Parc
aprox.
114 m
Parc pentru copii sub 14 ani
aprox.
137 m
Park (en)
aprox.
611 m
Parc
aprox.
632 m
Parc
aprox.
657 m
Parc
aprox.
706 m
Parc
aprox.
710 m
Parcul Andrei Mocioni
aprox.
716 m
Piata Romanilor
aprox.
777 m
Piata Academician Corneliu Miclosi
aprox.
815 m
Parc
aprox.
830 m
Parc
aprox.
830 m
Parc
aprox.
831 m
Parc
aprox.
840 m
Parc
aprox.
888 m
Piata Traian
aprox.
744 m
Piata Romanilor
aprox.
810 m
Piata Corneliu Micloși
aprox.
828 m
Piata Sarmisegetuza
aprox.
958 m
Piata General Virgil Economu
aprox.
979 m
Piata Aurel Vlaicu
aprox.
1000 m
Piata Tepes Voda
aprox.
1460 m
Piata Unirii
aprox.
1603 m
Piata Libertatii
aprox.
1849 m
Piata Leonardo Da Vinci
aprox.
1921 m
Farmacia Catena
aprox.
231 m
Farmacia Dona
aprox.
243 m
Kovacs
aprox.
566 m
Farmacie
aprox.
668 m
Farmacie
aprox.
682 m
Remedio
aprox.
981 m
Farmacia Dona 140
aprox.
1001 m
Farmacie
aprox.
1045 m
Farmacia Dona
aprox.
1063 m
Sensiblu
aprox.
1111 m
Farmacie
aprox.
1192 m
Farmacie
aprox.
1684 m
Dianthus Farmacia
aprox.
1793 m
Dona
aprox.
1802 m
Vlad
aprox.
1862 m
Cabinet Dr. Iana Elena Cristina
aprox.
309 m
Cabinet Radiografie Dentara
aprox.
354 m
Clinica analize medicale
aprox.
908 m
Spitalul Clinic de Boli Infectioase si Pneumoftiziologie Dr. Victor Babes
aprox.
993 m
Spitalul Victor Babeș
aprox.
1003 m
Medici's
aprox.
1013 m
Spitalul de cardiologie
aprox.
1025 m
Institutul de Boli Cardiovasculare
aprox.
1044 m
Clinica First Medical
aprox.
1164 m
Medcom CBS Hospital
aprox.
1249 m
Clinica de Chirurgie Orala si Maxilo-Faciala
aprox.
1256 m
Centrul Medical DALMED
aprox.
1269 m
Clinica de Oto-Rino-Laringologie
aprox.
1356 m
Ambulatoriu Integrat Policlinica 3
aprox.
1459 m
Policlinica Sanatatea
aprox.
1474 m
Cercul de Foc
aprox.
59 m
Cofetaria Codrina
aprox.
169 m
Marele Restaurant Chinezesc
aprox.
295 m
Boca Junior
aprox.
428 m
Restaurant Dracula
aprox.
618 m
Restaurant "Dracula"
aprox.
644 m
Strelitia
aprox.
651 m
Leonardo da Vinci
aprox.
808 m
Restaurant Burgund
aprox.
814 m
Pizza Nuova Mamma Mia
aprox.
882 m
Pizzeria Mamma Mia
aprox.
900 m
Restaurant UMT
aprox.
930 m
Restaurant Bavaria
aprox.
1010 m
Pensiunea "La Mitica"
aprox.
1068 m
Pizzeria Celentano
aprox.
1093 m
Bar Davinci
aprox.
676 m
Orizont Club
aprox.
1195 m
MGM Bastion
aprox.
1426 m
Curtea Berarilor
aprox.
1560 m
Eclipse
aprox.
1644 m
Mode
aprox.
1647 m
D'arc
aprox.
1650 m
Bunker
aprox.
1699 m
WakeUp
aprox.
1712 m
Enoteca de Savoya
aprox.
1713 m
Atu
aprox.
1729 m
Arqa
aprox.
1730 m
Cafe Colt
aprox.
1732 m
Club Fratelli
aprox.
1739 m
Nouveau
aprox.
1785 m
Factory Pub
aprox.
1088 m
Wake Up
aprox.
1204 m
Drunken Rat
aprox.
1502 m
Irish Pub
aprox.
1549 m
Oxford Pub & Restaurant
aprox.
1578 m
Porky's
aprox.
1587 m
Jarvis
aprox.
1679 m
Grinette
aprox.
1682 m
Bierhaus
aprox.
1706 m
Molly Malone's
aprox.
1748 m
Rock House
aprox.
1792 m
Bibliotheka 2
aprox.
1854 m
Millenium Cafe
aprox.
1181 m
Van Graf KFe
aprox.
1467 m
Papillon
aprox.
1531 m
Starbucks
aprox.
1593 m
Musetti
aprox.
1679 m
Spirit
aprox.
1703 m
1740 Music Cafe
aprox.
1771 m
Barista
aprox.
1773 m
Reciproc
aprox.
1776 m
Cuib d'Arte
aprox.
1783 m
Tucano Coffee Mexico
aprox.
1788 m
WellPlayed Gaming Lounge
aprox.
1814 m
EximBank
aprox.
299 m
CEC Bank
aprox.
618 m
ING
aprox.
729 m
BCR
aprox.
744 m
OTP Bank
aprox.
751 m
BRD
aprox.
790 m
Raiffeisen Bank
aprox.
820 m
Intesa San Paolo
aprox.
880 m
Alpha Bank
aprox.
899 m
Bancpost
aprox.
916 m
Banca Romaneasca
aprox.
932 m
ING
aprox.
949 m
Banca Transilvania
aprox.
968 m
Ing Bank
aprox.
1019 m
Generali Asigurari
aprox.
1063 m
La capitolul mijloace de transport în comun, locuitorii acestui cartier timișorean au la dispoziție atât tramvaie (liniile 1, 2, 5, 10), cât și autobuze (liniile 21, 22 și E8). Deși amatorii de ciclism din Fabric nu beneficiază de o rețea de piste dedicate, aceștia au acces facil atât la amenajările existente în zona Cetate (dintre care cea mai apropiată ar fi pe Bulevardul Take Ionescu), în Simion Bărnuțiu-Dorobanților (pe Strada Simion Bărnuțiu) sau în Complex-Stadion (pe Bulevardul Eroilor de la Tisa sau pe Strada Johann Heinrich Pestalozzi).
Din punctul de vedere al oportunităților de educație, Fabric oferă multiple opțiuni locuitorilor săi. Astfel, dintre instituțiile de profil existente în cartier, de menționat ar fi Școala Gimnazială Nr. 1 (amplasată pe Strada Comănești, nr. 3), dar și Școala Gimnazială Nr. 6 (pe Strada Moise Nicoară), care include clase de învățământ preșcolar, primar și gimnazial. Zona este avantajată, însă, atât de proximitatea zonei centrale a orașului, unde se găsesc Universitatea de Medicină și Farmacie "Victor Babeș" și o serie de licee de prestigiu (Colegiul Tehnic "Emanuil Ungureanu", Colegiul Pedagogic "Carmen Sylva", Colegiul Național "Constantin Diaconovici Loga"), cât și de cea a cartierului Complex-Stadion, unde se află Universitatea de Vest, care include peste zece facultăți reputate (precum Arte și Design, Litere, Istorie și Teologie, dar și cea de Matematică și Informatică). Mai jos poți vedea în detaliu ce unități de învățământ există în Fabric:
La fel ca timișorenii din Crișan-Modern și din Complex-Stadion, cei din Fabric au la dispoziție, strict între granițele propriului cartier, doar magazine de mici dimensiuni, de tip supermarket; de menționat la acest capitol ar fi un magazin Profi, amplasat la limita cu zona Cetate, mai exact pe Strada Dacilor, nr. 25. Ca și în alte domenii, locuitorii acestei zone sunt avantajați de proximitatea centrului orașului, care este mult mai ofertant din acest punct de vedere. În Cetate poate fi găsit, astfel, chiar magazinul Bega Shopping Center, localizat în apropiere de Parcul Civic. Pe lângă numeroasele magazine din sfera de fashion (dar nu numai), vizitatorii săi pot găsi aici și un Carrefour Market. În Simion Bărnuțiu-Dorobanților se află și un hipermarket Kaufland (pe Strada Mihail Kogălniceanu, nr. 11-15).
În Fabric, una dintre principalele artere de circulație ar fi Strada Dacilor, care face legătura cu zona Cetate, dar și cu Simion Bărnuțiu-Dorobanților; aceasta se continuă cu Strada Ștefan cel Mare, care ajunge la limita dintre Complex-Stadion și Buziașului (după care se continuă cu Calea Stan Vidrighin). De menționat este și Strada Andrei Șaguna, care se continuă cu Calea Dorobanților în zona ce-i poartă numele. Dat fiind numărul relativ ridicat de clădiri rezidențiale multifamiliale, găsirea unui loc permanent de parcare în Fabric poate fi dificilă uneori "“ în special în vestul cartierului, în apropiere de centru. Despre închirierea unui asemenea spațiu posesorii de autovehicule pot afla mai multe la sediul Primăriei (din zona Cetate, pe Bulevardul Constantin Diaconovici Loga, nr. 1).
Pe lângă parcurile de mici dimensiuni pe care le au la dispoziție în propriul cartier, timișorenii de aici pot ajunge cu ușurință la multitudinea de parcuri existente în zona centrală a orașului, printre care se numără Parcul "Regina Maria", Parcul Rozelor, Parcul Copiilor "Ion Creangă", dar și Parcul Botanic. De asemenea, un centru de interes cu o multitudine de activități culturale și de divertisment au loc la Faber "“ o reconversie a vechii Fabrici Azur, ce schimbă cartierul într-un mod pozitiv. Un avantaj al locuitorilor săi este că în Fabric se găsesc și obiective de interes cultural și turistic, cum ar fi Palatul Nagele (de pe Strada Dacilor, nr. 10), dar și Palatul Mercur (Piața Traian, nr. 4-3). Atractive sunt, desigur, și punctele de interes din aceeași categorie amplasate în zona Cetate, cum ar fi Bastionul Maria Theresia, Palatul Dicasterial, Muzeul de Artă etc. Iubitorii de sport sin această zonă a orașului de pe Bega pot ajunge cu ușurință în Complex-Stadion, unde pot găsi mai multe facilități sportive. Astfel, în partea de sud a cartierului învecinat se găsește Stadionul "Dan Păltinișanu", alături de o serie de terenuri de sport ce aparțin Bazei Sportive Politehnica Nr. 2, dar și de două ștranduri publice. Află, mai jos, ce alte opțiuni de petrecere a timpului liber mai ai în Fabric:
În special datorită vecinătăților sale, locuitorii zonei Fabric se pot considera bine deserviți când vine vorba de sănătate. Astfel, pe lângă cabinetele medicale individuale la care au acces în propriul cartier, aceștia pot ajunge cu ușurință și la spitalele din centrul orașului (Spitalul Clinic Municipal de Urgență Timișoara, Spitalul Militar de Urgență "Dr. Victor Popescu", Spitalul Clinic de Urgență pentru Copii "Louis Țurcanu"). De asemenea, în Simion Bărnuțiu-Dorobanților se află alte două spitale de stat, anume Institutul de Boli Cardiovasculare Timișoara (pe Strada Gheorghe Adam, nr. 13A) și, respectiv, Spitalul Clinic de Boli Infecțioase și Pneumoftiziologie "Dr. Victor Babeș" (pe Strada Gheorghe Adam, nr. 13). La capitolul servicii medicale particulare, de menționat este faptul că în Complex-Stadion se găsește și o clinică din rețeaua Medlife, situată pe Bulevardul Eroilor de la Tisa, nr. 28. De asemenea, în Crișan-Modern se află o unitate medicală privată de dimensiuni mai mari, specializată în tratamente destinate exclusiv copiilor, anume Centrul "Dr. Bacos Cosma" (de pe Strada Frederic Mistral, nr. 22). Pe harta de mai jos găsești localizarea exactă a spitalelor și clinicilor din zonă:
Pe lângă fast food-uri, localuri și pizzerii de cartier, găsim aici restaurante, pizzerii și cafenele la granița cu cartierele învecinate. Între acestea amintim: restaurantul din cadrul Hotelului Vanilla (de pe Bulevardul Eroilor de la Tisa nr. 57), Dinar Restaurant (de pe strada Barbu Iscovescu nr 2) și Restaurantul Merlot (Splaiul Nistrului 1). Cu mașina, cu bicicleta, sau chiar pe jos, poți să ajungi repede în Piața Victoriei, în Piața Sfântul Gheorghe sau Unirii. Aruncă o privire pe hartă și vezi unde vei găsi cel mai apropiat restaurant de viitoarea ta locuință.
În acest cartier găsești un bancomat BRD pe strada Timocului, nr. 2. Totuși, mai multe bancomate și sucursale bancare găsești în zonele învecinate. Consultă harta și află unde sunt localizate și alte bănci sau ATM-uri în zona de care ești interesat.
Înainte să pleci...
Ești sigur că ai văzut și aceste proprietăți?
113.000 €
Timișoara, Dorobanților
2 camere
60 mp
Parter / 4
92.900 €
Timișoara, Torontalului
2 camere
52 mp
Etaj 5
98.000 €
Timișoara, Girocului
2 camere
53 mp
Etaj 1 / 3
105.000 €
Timișoara, Centrul Bancar
2 camere
44 mp
Etaj 4 / 4
144.900 €
Timișoara, Neptun
2 camere
80 mp
Etaj 1 / 3
89.800 €
Județul Timiș, Giroc
2 camere
58 mp
Etaj 2
Creează alertă
Salvează căutarea ca să primești pe email ultimele anunțuri publicate
Apartamente cu 2 camere de vânzare în zona Fabric, Timișoara
Cere detalii prin email
*
*
*
*
Detaliile tale de contact vor fi partajate cu Landmark Imobiliare
Statistici proprietate
Apartamente 2 camere de vânzare
- Timișoara
- Zona Fabric
Asigurare de viață/lună Costul este variabil. În funcție de banca aleasă, procentul variază între 0.0259% și 0.035% din soldul creditului.
Costuri cu achiziția29.860 RON
Comision agenție 3%20.637 RON
Onorariu notarial6.505 RON
Taxă întabulare OCPI1.032 RON
Autentificare contract credit1.686 RON
Preț de achiziție687.906 RON
Preț locuință687.906 RON
TVA 0%Inclus în prețul cerut
Preț de achiziție687.906 RON
Preț locuință687.906 RON
TVA 0%
Inclus în prețul cerut
Avans minim81.530 RON
Credit pe 30 de ani606.376 RON
Cost achitat în prima lună
Taxa evaluare imobil(până la)
575 RON
Rata lunară (variabilă)4.261 RON
Depozit colateral12.783 RON
Comision de garantare FNGCIMM57 RON
Asigurare anuală imobil688 RON
Poliță PAD130 RON
Tarif arhivă electronică102 RON
Costuri adiționale828 RON + taxe notariale
Asigurare viață și complexă (opțională)Costul este variabil. În funcție de banca aleasă, procentul variază între 0.0259% și 0.035% din soldul creditului
Onorariu notarialconform tarif notarial
Taxă întabulare OCPI828 RON
i
Toate valorile de mai sus sunt estimative și nu reprezintă în mod obligatoriu costurile exacte pe care le veți primi de la companiile/instituțiile prin care veți încheia tranzacția.