Noul Poiect Iris Bucovina .Termen de finalizare 30.03.2027. Dezvoltator.

147.000 €

Torontalului, Timișoara

Nr. cam.:
2
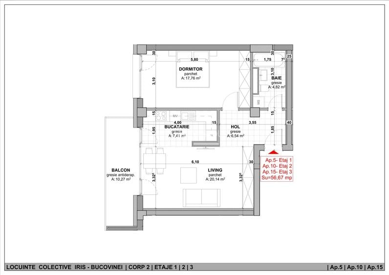
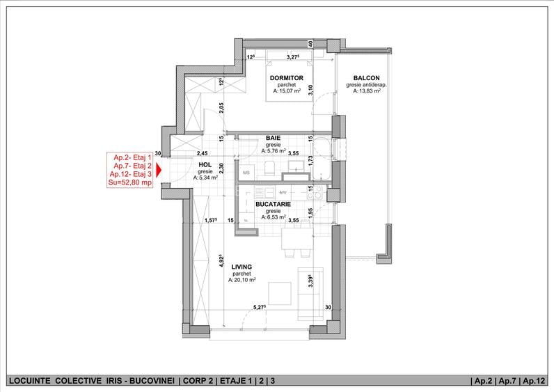
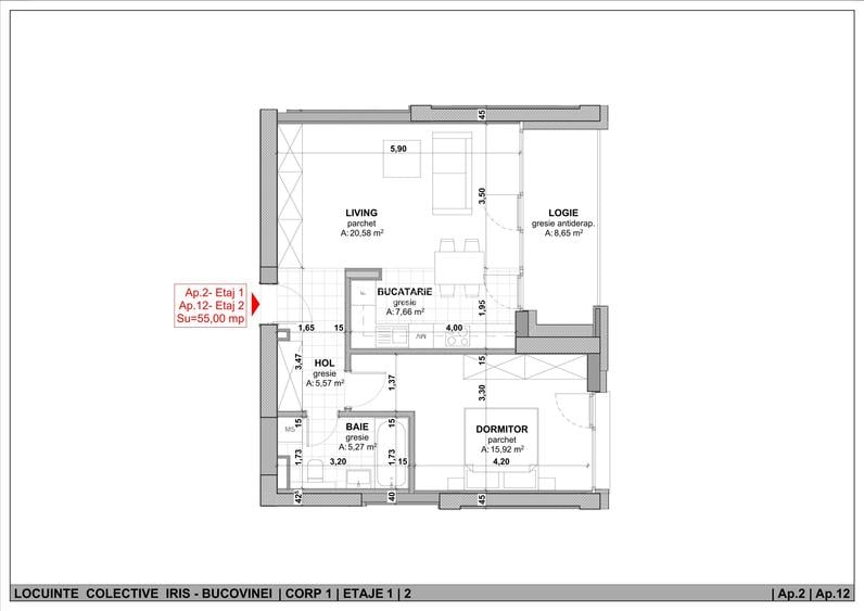
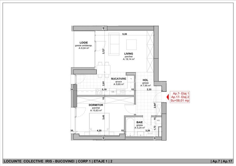
Sup. utilă:
54 mp
Etaj:
3 / 11
An constr.:
2026 (În construcție)
  • • Comision 0%
  • • Locație exactă

Descriere apartament

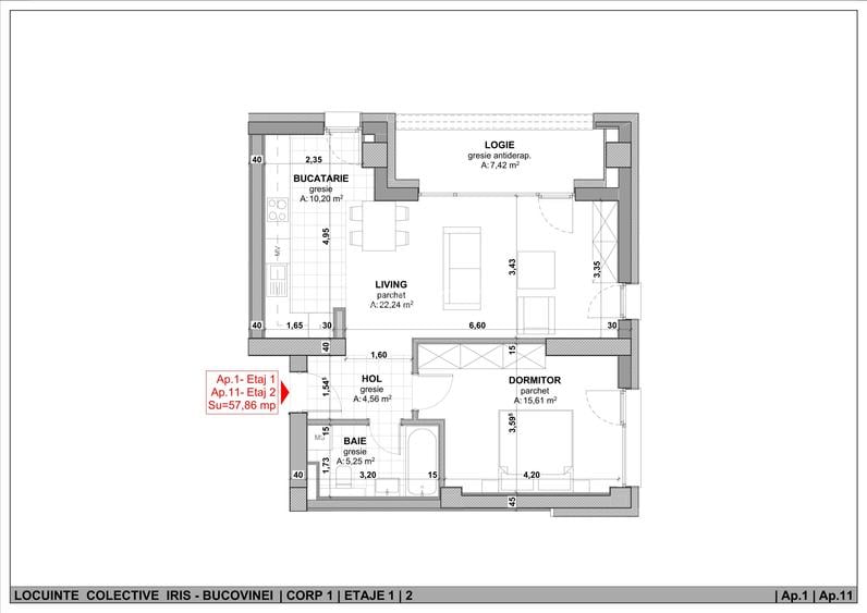
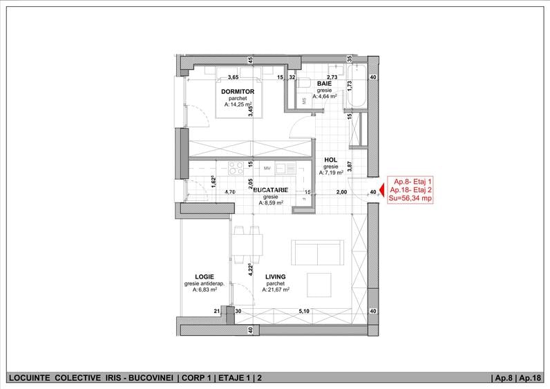
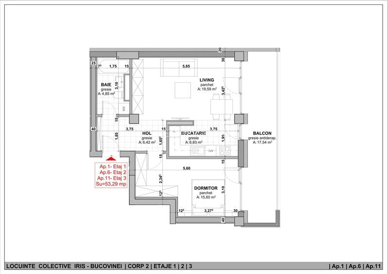
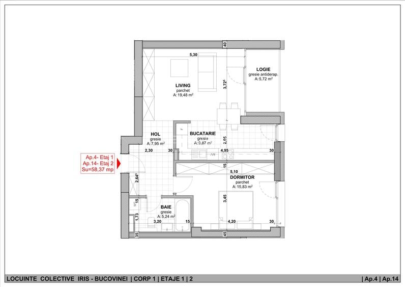
Noul proiect Iris Bucovina dezvoltat de Sedako Group este situat in zona de Nord a Timisoarei. Accesul se va face de pe strada Bucovina la aproximativ 300 m de artera C. Torontalului, de pe Aleea Viilor si de pe strada Aurel Pop. Prima etapa va avea o cladire de P+11 si o cladire de P+3. Vor fi apartamente cu 1 si 2 camere, iar la etajul retras 2 penthouse-uri cu 3 camere. Corpurile de cladire vor avea certificare nZEB, sistemul de producere al energiei fiind format din panouri solare , pompa de caldura si centrala termica. Izolatia exterioara va fi de 20 cm. Apartamentele vor fi dotate cu gresie , faianta , geamuri tripan, aer conditionat, izolatie fonica suplimentara intre apartamente, incalzire in pardoseala, etc. Finisajele interioare (gresie, faianta, parchet) se pot personaliza in functie de momentul achizitiei. Termenul de finalizare este in 30.03.2027. Apartamentele vor avea suprafata utila cuprinsa intre 53 mp utili si 59 mp utili la care se mai adauga unul sau doua balcoane in functie de modelul de apartament. Preturile apartamentelor cu 2 camere sunt cuprinse intre 147.000 euro si 163.000 euro TVA 21 % INCLUS . Apartamentele cu o camera au o suprafata utila de 37 mp + balcon au pretul de 110.000 euro TVA 21 % INCLUS. Persoana de contact: Cernica Vasile
Citește mai mult Citește mai puțin
Confort 1 Decomandat Nemobilat 1 Balcon / Terasă / Logie Aer condiționat Centrală imobil Încălzire prin pardoseală

Detalii apartament

ID anunț: X02K000CL Copiat! 275178188 Copiat!
Actualizat în: 03 Martie 2026
Nr. bucătării: 1
Nr. băi: 1
Structură rezistență: Beton
Tip imobil: Bloc de apartamente
Regim înălțime: S+P+11E

Utilități

Destinație
Rezidențial
Pereți
Faianță Vopsea lavabilă
Podele
Gresie Parchet
Ușă intrare
Metal
Uși interior
Celulare
Izolații termice
Exterior Interior
Ferestre cu geam termopan
PVC
Facilități imobil
Lift Videointerfon
Utilități
CATV Curent Canalizare Apă Telefon
Internet
Fibră optică
Servicii imobil
Administrare Supraveghere video
Amenajare străzi
Asfaltate Iluminat stradal Mijloace de transport în comun
Comision
0%

Certificat energetic:

Clasa energetică: A

Vecinătăți:

Vox Technology, Carrefour, BeFit fitness, 10 minute pana in Piata Uniri, 10 minute Iulius Mall.

Alte detalii despre preț:

Pretul contine TVA 21%

Disponibilitate proprietate:

Martie 2027

Puncte de interes

Mijloace transport
bus-station
statie E6 Statia Torontalului (Liege)
Stații autobuz aprox. 315 m
bus-station
Calea Torontalului
Stații autobuz aprox. 318 m
tram-station
Statie Matei Basarab Tv4, Tv6
Stații tramvai aprox. 512 m
trolleybus-station
Statie Miresei E6
Stații troleibuz aprox. 689 m
Școală
kindergarten
Gradinita Samariteanul Nr. 13
Gradinițe aprox. 401 m
school
Scoala Generala 26
Școli aprox. 683 m
kindergarten
Gradinita Program Prelungit Nr. 37
Gradinițe aprox. 702 m
university
Biblioteca
Universități aprox. 1246 m
Recreere
park
Parcul Ioan Nistor
Parcuri aprox. 336 m
supermarket
Profi City
Supermarket aprox. 471 m
mall
Kappa Centrul Comercial
Mall aprox. 1590 m
hypermarket
Decathlon
Hipermarket aprox. 1891 m

Detalii despre preț și costuri

Prețul pe piață

Preț cerut: 147.000 €

Preț min. zonă 76.700 €
Preț max. zonă 146.000 €

i

Proprietate cu prețul cerut în afara intervalului mai multe...

Posibile explicații pentru faptul că prețul proprietății este peste cel maxim: imobil nou cu suprafață mare, are dotări și finisaje de lux.
Bine de știut: prețul unei proprietăți este influențat și de alte caracteristici, cum ar fi: vechime, localizare, vecinătăți, suprafață, compartimentare, amenajări, dotări, etc.

Costuri cu achiziția

Fără credit
7.951 RON
Credit ipotecar
9.688 RON
Noua casă
889 RON+ taxe notariale

i

Costuri adiționale mai puțin știute la achiziție: taxe notariale, comisioane etc.

Proprietăți similare

Apartament cu 3 camere semidecomandat în Torontalului
138.990 € + TVA
Timișoara, Torontalului
3 camere
70 mp
Etaj 3
Apartament cu 2 camere decomandat, mobilat în Torontalului
144.000 €
Timișoara, Torontalului
2 camere
62 mp
Parter
Apartament cu 2 camere semidecomandat, mobilat în Torontalului
139.900 €
Timișoara, Torontalului
2 camere
53 mp
Etaj 1

Detalii de contact

Abonează-te la newsletter să fii primul care primește cele mai noi recomandări de proprietăți și sfaturi de la experți.

CONTACT

Creează alertă

Salvează căutarea ca să primești pe email ultimele anunțuri publicate

Apartamente cu 2 camere de vânzare în zona Torontalului, Timișoara