6

Ansamblul Rezidential RING. Apartament cu 2 camere, foarte SPATIOS, terasa MARE

132.000 €

Torontalului, Timișoara

Nr. cam.:
2
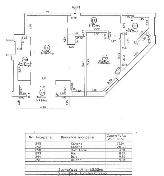
Sup. utilă:
66 mp
Etaj:
5 / 7
An constr.:
2010 (Finalizată)
  • • Locație exactă
  • • Proprietate nelocuită
  • • Vizionare prin apel video

Descriere apartament

Descoperiți confortul și eleganța într-un apartament deosebit, situat la etajul 5 al unui bloc modern cu 7 niveluri, dotat cu lift Schindler. Acest apartament cu 2 camere, cu o suprafață generoasă, oferă posibilitatea de a crea o a treia cameră, adaptându-se perfect nevoilor dumneavoastră. Caracteristici principale: * Spațiu și versatilitate: 2 camere spațioase, cu posibilitatea de transformare în 3 camere, ideal pentru familii sau pentru cei care doresc spațiu suplimentar. * Terasă tip loggie: O terasă mare, perfectă pentru relaxare sau pentru a savura cafeaua de dimineață. * Confort termic și fonic: Bloc cu termoizolație exterioară, clasa energetică A, centrală termică proprie Immergas, aer condiționat Fujitsu și tâmplărie de aluminiu cu geamuri termopan și rulouri exterioare de aluminiu cu barieră termică. * Finisaje de calitate: Baie dotată cu cadă și cabină de duș separată, ușă metalică de înaltă siguranță la intrare. * Facilități moderne: Lift Schindler, loc de parcare inclus. * Apartamentul dispune de 1 loc de parcare în parcarea subterană și posibilitatea a încă 1 loc de parcare în parcarea de la suprafață. * Bonus: Apartamentul se vinde mobilat și utilat la comandă, conform fotografiilor. Beneficii: * Confort sporit și costuri reduse la utilități, datorită termoizolației și centralei termice proprii. * Flexibilitate în amenajare, cu posibilitatea de a crea o a treia cameră. * Spațiu generos și terasă mare, ideale pentru relaxare și socializare. * Finisaje de calitate superioară și dotări moderne. * Apartamentul este gata de a fi locuit imediat. Detalii suplimentare: * Etaj: 5/7 * Lift: Schindler * Încălzire: Centrală termică proprie Immergas * Aer condiționat: Fujitsu * Tâmplărie: Aluminiu cu geamuri termopan și rulouri exterioare de aluminiu cu barieră termică. * Clasa energetică: A Contact: Vă așteptăm cu drag la vizionare pentru a descoperi toate avantajele acestui apartament! Pentru mai multe informații și pentru a programa o vizionare, vă rugăm să ne contactați la
Citește mai mult Citește mai puțin
Confort lux Decomandat Mobilat Parțial mobilat 1 Balcon / Terasă / Logie Curte Aer condiționat Calorifere Centrală proprie 1 Parcare Renovat

Detalii apartament

ID anunț: X0A40005P Copiat! 255602553 Copiat!
Actualizat în: 25 Februarie 2026
Suprafață utilă totală: 75 mp
Nr. bucătării: 1
Nr. băi: 1
Structură rezistență: Beton
Tip imobil: Bloc de apartamente
Regim înălțime: P+7E

Utilități

Destinație
Rezidențial Birouri
Pereți
Faianță Vopsea lavabilă
Podele
Gresie Parchet
Rulouri/Obloane
Aluminiu
Ușă intrare
Metal
Uși interior
Lemn
Izolații termice
Exterior
Ferestre cu geam termopan
Aluminiu
Contorizare
Contor gaz Apometre
Bucătărie
Mobilată Utilată
Electrocasnice
Mașină de spălat Frigider Aragaz Hotă
Diverse
Senzor de fum
Alte spații utile
Terasă
Facilități imobil
Spații agrement Lift Acoperiș Videointerfon
Utilități
Curent Apă Canalizare Gaze CATV Telefon
Internet
Cablu Fibră optică
Servicii imobil
Administrare Supraveghere video
Amenajare străzi
Asfaltate Iluminat stradal Mijloace de transport în comun
Comision
La cerere%

Certificat energetic:

Clasa energetică: A

Vecinătăți:

Torontalului, ansamblul rezidential RING, Lidl, Aradului

Disponibilitate proprietate:

Imediat

Puncte de interes

Mijloace transport
bus-station
U.T.T.
Stații autobuz aprox. 659 m
trolleybus-station
Statie Piata Verde/Liege T17
Stații troleibuz aprox. 905 m
tram-station
Statie Torontal Tv4, Tv6
Stații tramvai aprox. 1245 m
airport
Aeroportul Utilitar Cioca
Aeroporturi aprox. 1892 m
Școală
university
Biblioteca
Universități aprox. 494 m
university
Universitatea de Stiinte Agricole si Medicina Veterinara a Banatului
Universități aprox. 555 m
school
Facultatea de Agronomie
Școli aprox. 563 m
kindergarten
Gradinita Program Prelungit Nr. 37
Gradinițe aprox. 988 m
Recreere
supermarket
Mini-Market
Supermarket aprox. 43 m
park
Parc
Parcuri aprox. 495 m
sports-ground
Teren sportiv
Terenuri sport aprox. 679 m
hypermarket
Decathlon
Hipermarket aprox. 1108 m

Detalii despre preț și costuri

Prețul pe piață

Preț cerut: 132.000 €

Preț min. zonă 76.700 €
Preț max. zonă 146.000 €

56% dintre proprietățile similare ca zonă și nr. camere au prețul cerut mai mare. mai multe...

Bine de știut: prețul unei proprietăți este influențat și de alte caracteristici, cum ar fi: vechime, localizare, vecinătăți, suprafață, compartimentare, amenajări, dotări, etc. mai puțin...

Costuri cu achiziția

Fără credit
7.436 RON
Credit ipotecar
9.109 RON
Noua casă
813 RON+ taxe notariale

i

Costuri adiționale mai puțin știute la achiziție: taxe notariale, comisioane etc.

Proprietăți recomandate

Detalii de contact

RealTrust imobiliare Timisoara

Adrian Costi General Manager RealTrust Imobiliare Timisoara

3.82(4 review-uri)

RealTrust imobiliare Timisoara

Abonează-te la newsletter să fii primul care primește cele mai noi recomandări de proprietăți și sfaturi de la experți.

CONTACT

Creează alertă

Salvează căutarea ca să primești pe email ultimele anunțuri publicate

Apartamente cu 2 camere de vânzare în zona Torontalului, Timișoara