6

Vanzare apartament 4 camere | Unirii Fântâni | 105mp utili | etaj 1|8

388.900 €

Central, București

Nr. cam.:
4
Sup. utilă:
105 mp
Etaj:
1 / 8
An constr.:
1991 (Finalizată)
  • • Locație aproximativă
  • • Vizionare prin apel video

Descriere apartament

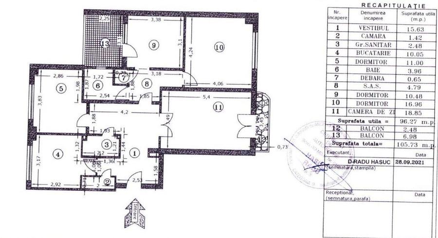
Agentia REfinder va propune spre vanzare un apartament 4 camere, in Piata Unirii, pozitionat cu vedere la Fântâni, bloc 1991, etajul 1 8 , decomandat. Apartamentul se remarca atat prin poziționare, compartimentare, suprafață, cât si prin renovarea modernă, fiind refacut in anul 2023 cu toate instalațiile si finisajele premium. Living generos cu balcon , cu vedere directa spre fântânile mari de la Unirii, oferind in orice timp si anotimp o vedere spectaculoasă. Dormitor matrimonial de 18 mp. Al doilea bacon , situat pe spate, este mare, inchis si încălzit, devenind a 5a camera funcțională. O oază de liniște in mijlocul orașului. Baie cu cadă si baie cu duș. Bucătăria este complet mobilată si utilată ( mobilier pe comandă). Blocul are o scară elegantă, vecini deosebiți si pază permanentă, denotă siguranță si liniște. Am atașat fotografii iar releveul apartamentului vi l oferim la cererea dumneavoastră. Apartamentul este liber, disponibil pentru mutare imediată. Proprietar persoană fizică. Preț vânzare: 387900E Agentia REfinder percepe un comision standard din pretul de vanzare cumparare.
Citește mai mult Citește mai puțin
Confort 1 Decomandat 2 Balcoane / Terase / Logii Termoficare

Detalii apartament

ID anunț: X54H107QS Copiat! 272354351 Copiat!
Actualizat în: 16 Martie 2026
Suprafață utilă totală: 105 mp
Suprafață construită: 110 mp
Nr. băi: 2
Structură rezistență: Beton
Tip imobil: Bloc de apartamente
Regim înălțime: P+8E

Utilități

Destinație
Rezidențial
Bucătărie
Utilată Mobilată
Facilități imobil
Lift Interfon
Comision
3%

Certificat energetic:

Clasa energetică: A

Vecinătăți:

Scoala/gradinita, Centru universitar, Parc, Ultracentral, Hotel, Zona comerciala, Autobuz, Metrou

Puncte de interes

Mijloace transport
bus-station
Capat Piata Unirii 2 linii : 783 (express).
Stații autobuz aprox. 139 m
tram-station
Piata Unirii
Stații tramvai aprox. 152 m
metro-station
Metrorex. Stația Piața Unirii 1 (M1),(M3)(1979)
Stații metrou aprox. 227 m
trolleybus-station
Statia Vasile Parvan 66,70,92
Stații troleibuz aprox. 1781 m
Școală
university
Facultatea de Teologie Ortodoxa
Universități aprox. 74 m
school
Elohim Academi
Școli aprox. 151 m
university
Academia de Studii Economice: Facultatea de Management - Administratie Publica
Universități aprox. 165 m
kindergarten
Cresa Micii Poznasi
Gradinițe aprox. 192 m
Recreere
public-square
Piata Bibescu
Piețe publice aprox. 31 m
park
Piata Bibescu
Parcuri aprox. 31 m
supermarket
Mega Image
Supermarket aprox. 285 m
mall
Bucharest, Calea Vitan nr. 8, Bl V51, near VITAN Mall
Mall aprox. 1818 m

Detalii despre preț și costuri

Prețul pe piață

Preț cerut: 388.900 €

Preț min. zonă 106.998 €
Preț max. zonă 449.000 €

96% dintre proprietățile similare ca zonă și nr. camere au prețul cerut mai mic. mai multe...

Bine de știut: prețul unei proprietăți este influențat și de alte caracteristici, cum ar fi: vechime, localizare, vecinătăți, suprafață, compartimentare, amenajări, dotări, etc. mai puțin...

Costuri cu achiziția

Fără credit
75.692 RON
Credit ipotecar
78.455 RON
Noua casă
2.121 RON+ taxe notariale

i

Costuri adiționale mai puțin știute la achiziție: taxe notariale, comisioane etc.

Proprietăți recomandate

Detalii de contact

Refinder Elite

Ioana Manea Broker imobiliar

4.00(5 review-uri)

Refinder Elite
PRO

Abonează-te la newsletter să fii primul care primește cele mai noi recomandări de proprietăți și sfaturi de la experți.

CONTACT

Creează alertă

Salvează căutarea ca să primești pe email ultimele anunțuri publicate

Apartamente cu 4+ camere de vânzare în zona Central, Ultracentral