Apartament de 4 camere Victoriei cu terasa

569.900 €

Central, București

Nr. cam.:
4
Sup. utilă:
146 mp
Etaj:
Parter / 5
An constr.:
2009 (Finalizată)
  • • Locație aproximativă
  • • Vizionare prin apel video

Descriere apartament

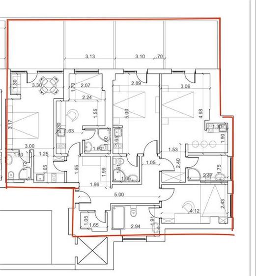
ID intern: 365037 Va propunem spre vanzare un apartament cu 4 camere, decomandat, confort lux, situat in zona Piata Victoriei, reper Calea Victoriei, intr-un imobil construit in anul 2009, disponibil la parter din 5, cu o suprafata de 146 mp, cu doua bai, terasa de 43 mp, bucatarie. Apartamentrul dispune, daca se doreste, de doua boxe la pretul de 8000 euro bucata si doua locuri de parcare subterane la 25000 euro loc si adapost ALA. Se gaseste la 3 minute de statia de metrou Victoriei. Imobilul este situat ultracentral, in apropiere de toate punctele de interes, piata, statie STB, scoli, gradinita. Vizionarea acestui imobil se face doar în baza semnării unui acord de vizionare conform codului civil, art 2.096-2.102 . Acordam indrumare in vederea acordarii unui credit bancar (BRD, FIRST BANK, ALPHA BANK, PATRIA BANK, BANCA TRANSILVANIA) Se percepe comision 3%. Politica agentiei este de a optimiza negocierea pretului in raport cu comisionul.
Citește mai mult Citește mai puțin
Confort lux Decomandat Aer condiționat Centrală proprie 2 Parcări

Detalii apartament

ID anunț: X9I6200HU Copiat! 274974265 Copiat!
Actualizat în: 16 Februarie 2026
Suprafață utilă totală: 146 mp
Suprafață construită: 170 mp
Nr. băi: 2
Structură rezistență: Altele
Tip imobil: Bloc de apartamente
Regim înălțime: P+5E

Utilități

Destinație
Birouri
Pereți
Faianță Vopsea lavabilă
Podele
Parchet Gresie
Ușă intrare
Metal
Izolații termice
Exterior
Ferestre cu geam termopan
PVC
Dotări imobil
Lift
Utilități
Apă Curent Gaze Canalizare CATV
Acces internet
Cablu Fibră optică Wireless
Servicii imobil
Menaj Administrare
Amenajare străzi
Asfaltate
Comision
3%

Certificat energetic:

Clasa energetică: A

Vecinătăți:

Scoala/gradinita, Centru universitar, Restaurant/pub, Mall, Parc, Ultracentral, Hotel, Piata, Benzinarie, Trafic Pietonal, Fastfood, Cinema, Supermarket, Banca, Zona comerciala, Autobuz, Metrou

Puncte de interes

Mijloace transport
bus-station
Statia RATB linia 300,381,783
Stații autobuz aprox. 193 m
metro-station
Metrorex. Piata Victoriei 1/2 (M1) , (M2)
Stații metrou aprox. 229 m
tram-station
Piata Victoriei
Stații tramvai aprox. 351 m
trolleybus-station
Statia Piata Romana linii : 79,86
Stații troleibuz aprox. 774 m
Școală
school
Liceu - Scoala Europeana Bucuresti
Școli aprox. 173 m
school
Liceul George Enescu
Școli aprox. 259 m
university
SNSPA
Universități aprox. 447 m
kindergarten
Gradinita nr. 2
Gradinițe aprox. 687 m
Recreere
park
Parcul Nicolae Iorga
Parcuri aprox. 366 m
sports-ground
Teren sportiv
Terenuri sport aprox. 513 m
supermarket
Mega Image
Supermarket aprox. 719 m
mall
"METROPLIS CENTER"
Mall aprox. 779 m

Detalii despre preț și costuri

Prețul pe piață

Preț cerut: 569.900 €

Preț min. zonă 106.998 €
Preț max. zonă 449.000 €

i

Proprietate cu prețul cerut în afara intervalului mai multe...

Posibile explicații pentru faptul că prețul proprietății este peste cel maxim: imobil nou cu suprafață mare, are dotări și finisaje de lux.
Bine de știut: prețul unei proprietăți este influențat și de alte caracteristici, cum ar fi: vechime, localizare, vecinătăți, suprafață, compartimentare, amenajări, dotări, etc.

Costuri cu achiziția

Fără credit
109.553 RON
Credit ipotecar
113.084 RON
Noua casă
3.043 RON+ taxe notariale

i

Costuri adiționale mai puțin știute la achiziție: taxe notariale, comisioane etc.

Proprietăți recomandate

Detalii de contact

CR Imobiliare

Marius Mandica Broker imobiliar

5.00(3 review-uri)

CR Imobiliare
PRO

Abonează-te la newsletter să fii primul care primește cele mai noi recomandări de proprietăți și sfaturi de la experți.

CONTACT

Creează alertă

Salvează căutarea ca să primești pe email ultimele anunțuri publicate

Apartamente cu 4+ camere de vânzare în zona Central, Ultracentral