Prin locația extrem de dorită și designul său unic, este una dintre cele mai bune cladiri rezidentiale tip boutique noi din București. Proiectat si implementat de AND Biroul de Arhitectura, una dintre cele mai cunoscute firme de arhitectura din Romania, pentru un dezvoltator extrem de serios, cu capital strain-roman; cladirea se remarca prin materiale de constructie de cea mai inalta calitate, definite printr-un design de inalt rafinament estetic si finisaje din gama premium, toate reunite in sufletul cultural si istoric al Bucurestiului.
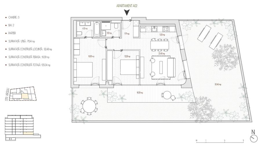
Acest tip de apartament se situează doar pe parterul construcției. Această unitate dispune de o grădină generoasă de peste 90 mp si, include și un loc de parcare exterior in imediata apropiere a grădinii.
Imobilul boutique este situat intr-o poztie ultracentrala, cu acces rapid catre toate zonele de interes ale orasului, dipune de un numar total limitat de apartamente create la cele mai inalte standarde de calitate-pret, care se refelecta in rafinamentul si functionalitatea spatilor destinate locuirii. La subsolul cladirii exista si spatii de parcare care se pot achizitiona impreuna cu apartamentul. Imobilul este finalizat, o parte din cladire fiind deja locuita, in timp ce apartamentele ramase disponibile isi asteapta locatarii. In imediata vecinatate se gasesc Parcul Cismigiu, scoli, gradinite, restaurante, cafenele, supermarketuri, mijloace de transport in comun.
Proprietate cu prețul cerut în afara intervalului mai multe...
Posibile explicații pentru faptul că prețul proprietății este peste cel maxim: imobil nou cu suprafață mare, are dotări și finisaje de lux.
Bine de știut: prețul unei proprietăți este influențat și de alte caracteristici, cum ar fi: vechime, localizare, vecinătăți, suprafață, compartimentare, amenajări, dotări, etc.
Costuri cu achiziția
Fără credit
19.316 RON
Credit ipotecar
22.458 RON
Noua casă
2.577 RON+ taxe notariale
i
Costuri adiționale mai puțin știute la achiziție: taxe notariale, comisioane etc.
Calculul ipotecarului
Proprietăți recomandate
Pornind de la căutarea ta îți recomandăm următoarele anunțuri
Sediul central - Timișoara
Bulevardul Victor Babeș nr. 2, 300230, Timișoara, România
Tel: +40.374.40.44.98 / Fax: +40.256.401.179
Email: suport@imobiliare.ro
Luni - Vineri 08:00 - 20:00
Punct de lucru - București: Iride Business Park, Bld. Dimitrie
Pompeiu 9-9A, Clădirea B2B,
020335, Sector 2, București, România
CONTACT
Sediul central - Timișoara
Bulevardul Victor Babeș nr. 2, 300230, Timișoara, România
Tel: +40.374.40.44.98 / Fax: +40.256.401.179
Email: suport@imobiliare.ro
Luni - Vineri 08:00 - 20:00
Punct de lucru - București: Iride Business Park, Bld. Dimitrie
Pompeiu 9-9A, Clădirea B2B,
020335, Sector 2, București, România
Statie Gara Basarab 133, 178, 282, 105, 123, 162, 780
aprox.
1612 m
Statie Soseaua Nicolae Titulescu 65, 97, 86
aprox.
1634 m
Metrorex. Stația Eroilor (M1),(M3)(1979)
aprox.
833 m
Eroilor
aprox.
833 m
Acces Stația Eroilor (M3).
aprox.
867 m
Metrorex. Statia de Gara de Nord
aprox.
875 m
Metrorex. Stația Izvor (M1),(M3)(1979)
aprox.
900 m
Metrorex. Statia Izvor (M1) , (M3).
aprox.
907 m
Metrorex. Stația Gara de Nord
aprox.
925 m
Izvor
aprox.
931 m
Metrorex. Statia Izvor (M1) , (M3).
aprox.
940 m
Gara de Nord 1
aprox.
973 m
Metrorex. Stația Gara de Nord 1 (M1)(1987)
aprox.
996 m
Metrorex. Stația Gara de Nord 2 (M4)(2000)
aprox.
1166 m
Metrorex. Stația Piața Romană (M2)(1988)
aprox.
1276 m
Piata Romana (M2)
aprox.
1276 m
Statia Metrou Piata Romana(M2)Metrorex
aprox.
1281 m
Vechea "Gara a Targovistei" astazi parte din Gara de Nord
aprox.
1014 m
Gara Bucuresti Nord
aprox.
1197 m
Gara Basarab
aprox.
1831 m
Fosta Gara Regala Cotroceni (en)
aprox.
1995 m
Gradinita MAPN
aprox.
108 m
Gradinita Smiley
aprox.
236 m
Gradinita nr. 248
aprox.
403 m
Gradinita Nr. 78 Miguel de Cervantes
aprox.
414 m
Gradinita nr. 73
aprox.
702 m
Gradinita Olga Gudynn
aprox.
897 m
Gradinita MAPN nr.1
aprox.
931 m
Gradinita de copii nr. 285
aprox.
933 m
Gradinita Madeleine
aprox.
1014 m
Gradinita Zum-zum
aprox.
1137 m
Gradinita nr. 116
aprox.
1153 m
Gradinita Dreams World
aprox.
1236 m
Gradinita nr. 206
aprox.
1310 m
Gradinita nr. 271
aprox.
1312 m
Gradinita nr. 112
aprox.
1353 m
Liceul "Nicolae Tonitza"
aprox.
178 m
Scoala de Muzica Nr.3
aprox.
264 m
Liceul Cervantes
aprox.
334 m
Credis - Academia CISCO Credis (en)
aprox.
547 m
Scoala speciala nr. 10
aprox.
559 m
Scoala Nr. 118 Vasile Alecsandri
aprox.
594 m
Colegiul National Sfantul Sava
aprox.
598 m
Scoala special nr. 10
aprox.
620 m
Liceul Bulgar Hristo Botev
aprox.
639 m
Scoala Nr. 1 Sfintii Voievozi
aprox.
711 m
Fostul Liceu de Arte Plastice Nicolae Tonitza - Sediul
aprox.
722 m
Colegiul Tehnic de Arhitectură și Lucrări Publice Ioan N. Socolescu
aprox.
758 m
Clubul Sportiv Scolar nr.5
aprox.
838 m
Club Sportiv nr. 5
aprox.
869 m
Fostul Liceu de Arte Plastice Nicolae Tonitza - Local Cursuri
aprox.
879 m
UTCB - Facultatea de Utilaj Tehnologic pentru Constructii
aprox.
404 m
Facultatea de Utilaj Tehnologic (UTCB)
aprox.
443 m
Facultatea de Medicina Dentara
aprox.
486 m
Rectoratul Universitatii din București și sediul Facultății de Drept
aprox.
544 m
Rectoratul Univ. Bucuresti
aprox.
544 m
Camin C
aprox.
547 m
Facultatea de Stiinte Politice
aprox.
557 m
Clinica de Protetica si Ocluzologie si Clinica de Pedodontie
aprox.
571 m
Universitatea Nationala de Muzica Conservator
aprox.
590 m
Universitatea Nationala de Muzica Bucuresti
aprox.
590 m
Camin B
aprox.
591 m
Camin A
aprox.
622 m
FADD Facultatea de Arte Decorative si Design
aprox.
632 m
Universitatea Nationala de Arte Bucuresti (facultatea de arte decorative si design)
aprox.
635 m
Universitatea Nationala de Arte (sculptura)
aprox.
674 m
Mega Image Brezoianu
aprox.
749 m
Mega Image Elisabeta Non-Stop
aprox.
755 m
Shop & Go - Mega Image
aprox.
934 m
Mega Image Amzei Non-Stop
aprox.
1024 m
Ami Non-Stop
aprox.
1047 m
Mega Image
aprox.
1095 m
Nik Non-Stop
aprox.
1096 m
Mega Image Magheru
aprox.
1195 m
Mega Image
aprox.
1255 m
Economat
aprox.
1258 m
ilanplant
aprox.
1291 m
Mag.Victoria
aprox.
1321 m
Mega Image Rosetti Non-Stop
aprox.
1334 m
Mega Image
aprox.
1372 m
Pravalia Maestrului
aprox.
1434 m
Intrarea in caminele C si D din grozavesti
aprox.
1615 m
"METROPLIS CENTER"
aprox.
1756 m
Parcare
aprox.
562 m
Parcare
aprox.
574 m
Parcare privata
aprox.
596 m
Parcare
aprox.
597 m
Parcare
aprox.
605 m
Parcare
aprox.
630 m
Parcare
aprox.
645 m
Parcare
aprox.
658 m
Parcare
aprox.
736 m
Parcare
aprox.
743 m
Parcare
aprox.
749 m
Parcare
aprox.
759 m
Parcare
aprox.
775 m
Parcare
aprox.
815 m
Parcare
aprox.
822 m
Piata Emil Cioran (Vergilius) (en)
aprox.
195 m
Piata Revolutiei
aprox.
1121 m
Piața Drapelului (Tricolorului)
aprox.
1261 m
Piața Romană
aprox.
1304 m
Piata Natiunilor Unite
aprox.
1514 m
Piața Constituției
aprox.
1549 m
Piata Universitatii
aprox.
1577 m
Piața Eroilor
aprox.
1593 m
Piata Arsenalului
aprox.
1687 m
Piata Roma
aprox.
1813 m
Piata Rosetti
aprox.
1871 m
Piața Sfântul Anton
aprox.
1884 m
Piata Timpului
aprox.
1932 m
Teren sportiv
aprox.
310 m
teren tenis
aprox.
393 m
Baza sportiva Universitatea Bucuresti
aprox.
444 m
Teren sportiv
aprox.
655 m
Teren sportiv
aprox.
748 m
Teren sportiv
aprox.
823 m
Teren sportiv
aprox.
881 m
Teren sportiv
aprox.
890 m
Teren sportiv
aprox.
1017 m
Teren sportiv
aprox.
1061 m
Teren sportiv
aprox.
1104 m
Teren sportiv
aprox.
1113 m
Teren sportiv
aprox.
1118 m
Teren sportiv
aprox.
1119 m
Teren sportiv
aprox.
1160 m
Parcul Luigi Cazzavillan
aprox.
371 m
Luigi Cazzavillan
aprox.
371 m
Parculet
aprox.
410 m
Parc
aprox.
410 m
Loc de Joaca
aprox.
431 m
Parc
aprox.
502 m
Parc
aprox.
504 m
Parc
aprox.
513 m
Parcul Tosca
aprox.
554 m
Loc de joaca
aprox.
589 m
Parcul Cismigiu
aprox.
620 m
Parcul Cismigiu
aprox.
627 m
Parcul Venus
aprox.
669 m
Parcul Operei
aprox.
669 m
Parc
aprox.
676 m
BellaDonna
aprox.
186 m
Sensiblu
aprox.
191 m
Farmaplus
aprox.
195 m
Farmacia Help Net
aprox.
214 m
Farmacia Sfanta Ecaterina
aprox.
409 m
Farmaciile 2NA
aprox.
645 m
Farmacia Apoteca 1
aprox.
664 m
Farmalex Total
aprox.
709 m
Catena
aprox.
728 m
Farmaplus
aprox.
753 m
Plafar
aprox.
817 m
Urgent Farm
aprox.
822 m
3F Farmacie Farmec Frumusete
aprox.
824 m
Farmacia Catena
aprox.
855 m
Help Net Farma
aprox.
895 m
Clinica ORL Dr. Mocanu
aprox.
251 m
Spitalul Clinic de Chirurgie Oro-Maxilo-Faciala
aprox.
509 m
Spitalul Carol Davila de urologie
aprox.
707 m
Spitalul Clinic de Nefrologie Dr. Carol Davila
aprox.
707 m
Cabinet Medical
aprox.
721 m
Sectia de Dermatovenerologie (en)
aprox.
728 m
Spitalul clinic de nefrologie "Dr. Carol Davila"
aprox.
734 m
oncologie, medicala III, endocrine
aprox.
758 m
Institutul Victor Babes
aprox.
761 m
Clinica Universitara de Medicina Interna si Gastroenterologie (en)
aprox.
782 m
Regina Maria - clinica pentru copii
aprox.
811 m
cardio, pneumo
aprox.
831 m
Institutul national de medicina aeronautica si spatiala - INMAS
aprox.
832 m
Institutul National de Medicina Aeronautica si Spatiala
aprox.
840 m
"Carol Davila"Military Hospital (en)
aprox.
890 m
Stuf Vama Veche
aprox.
156 m
Letters Bar
aprox.
440 m
Marvin bar&more
aprox.
857 m
A1
aprox.
863 m
Caffe No. 35
aprox.
1006 m
LondonPhone
aprox.
1019 m
Gambrinus
aprox.
1064 m
El Bistro
aprox.
1119 m
Fratelli Espresso Bar
aprox.
1153 m
Energiea
aprox.
1169 m
Control Club
aprox.
1175 m
Interbelic Victoria
aprox.
1289 m
Frame
aprox.
1319 m
Yellow Bar
aprox.
1340 m
Opium Stage Club
aprox.
1381 m
Bouche Bee
aprox.
236 m
Caffeine & Latte
aprox.
373 m
Ramayana Cafe
aprox.
471 m
J'ai Bistrot
aprox.
565 m
Dante Cafe
aprox.
633 m
Kafeterya Cafe
aprox.
809 m
Dolce Baccio
aprox.
818 m
Roland 1811 cafe
aprox.
825 m
Sufrageria cu Jocuri
aprox.
894 m
Nana
aprox.
1110 m
Camera din Fata
aprox.
1138 m
Mara Mura
aprox.
1145 m
Venchi 1878
aprox.
1153 m
Zvon Caffe
aprox.
1197 m
Origo
aprox.
1201 m
Bodega Espaniola Alioli
aprox.
244 m
Tasty Fish
aprox.
256 m
Restaurant Libanez Tulin (en)
aprox.
259 m
Tasty Fish
aprox.
264 m
Tulin
aprox.
270 m
Maxim
aprox.
294 m
BALKAN
aprox.
308 m
Codrul Cosminului
aprox.
321 m
Restaurant CAREDY
aprox.
327 m
plantersclub (en)
aprox.
355 m
Caffe & Latte (restaurant,bar,cafe)
aprox.
365 m
Fast food
aprox.
374 m
Classic
aprox.
379 m
Bistro de la Joie
aprox.
403 m
Hotel *** TRIANON
aprox.
406 m
James Joyce's Pub & Restaurant
aprox.
831 m
Le Cafe Inmedio
aprox.
1049 m
Nexus Gamers Pub
aprox.
1109 m
Club Expirat and Other Side
aprox.
1163 m
Question Mark Social Club
aprox.
1242 m
Coloseum
aprox.
1303 m
Taverna Bradet
aprox.
1326 m
Edgar`s Pub
aprox.
1339 m
Charlatans Irish Pub
aprox.
1392 m
The Dubliner
aprox.
1456 m
OLD NICK PUB
aprox.
1484 m
D`eight Pub
aprox.
1488 m
Filos Pub
aprox.
1538 m
Charme
aprox.
1580 m
Vault
aprox.
1580 m
Banca Transilvania - Ag. Stirbei Voda
aprox.
210 m
Raiffeisen Bank
aprox.
212 m
Banca Transilvania
aprox.
214 m
Banca Raiffaisen
aprox.
234 m
Emporki Bank
aprox.
249 m
BRD Stirbei Voda
aprox.
266 m
Banca BRD
aprox.
274 m
ING Stirbei Voda
aprox.
297 m
Intesa Sanpaolo Bank
aprox.
309 m
Agentia ING Stirbei Voda
aprox.
313 m
CEC BANK
aprox.
327 m
CEC Bank
aprox.
327 m
Banca Intensa Sanpaulo
aprox.
339 m
Piraeus Bank
aprox.
440 m
Banca Comerciala Feroviara
aprox.
447 m
Fiind o zonă ultracentrală, aceasta oferă numeroase opțiuni de călătorie cu mijloacele de transport în comun, și este bine conectată cu restul orașului. Ai, în primul rând, la dispoziție stațiile de metrou Piața Victoriei, Piața Romană și Universitate. Astfel, te vei putea deplasa rapid prin oraș, evitând aglomerația de la suprafață. Toate acestea sunt situate pe magistrala 2 care traversează Bucureștiul de la nord la sud. În plus, de la Piața Victoriei vei putea lua metroul și pe magistrala 1 pentru a ajunge, de exemplu, în cartierul Pantelimon sau în zona Eroilor. Prin Piața Universității urmează să treacă și magistrala 5 care va lega cartierele Drumul Taberei și Pantelimon. Până acum, s-au deschis însă doar stațiile de metrou aflate în zona Drumul Taberei. Alte mijloace de transport în comun care ar putea să-ți fie de ajutor atunci când te vei muta în această zonă sunt autobuzele 300 și 381. Primul face legătura dintre Piața Romană și Piața Victoriei continuându-și apoi traseul de-a lungul Bulevardului Ion Mihalache, iar cel de-al doilea conectează Piața Victoriei cu zona Tineretului și cu cartierul Berceni. De pe Bulevardul Regina Elisabeta vei putea lua troleibuzul 90 pentru a ajunge în Drumul Taberei sau în zona Arenei Naționale, iar în fața Spitalului Colțea vei găsi stația autobuzului 381 care merge în cartierul Berceni. Iar dacă preferi să te deplasezi pe două roți, vei avea la dispoziție una dintre pistele speciale destinate bicicliștilor pe Calea Victoriei. Aceasta îți va oferi, în plus, oportunitatea ideală de a admira arhitectura deosebită a clădirilor aflate de o parte și de alta a uneia dintre cele mai frumoase străzi din București. Consultă harta pentru a afla unde sunt localizate stațiile mijloacelor de transport în comun.
În această zonă găsim sediul central al Universității din București și cel al Academiei de Studii Economice din București (ASE), unele dintre cele mai prestigioase instituții de învățământ superior din România. Tot aici se află și sediile mai multor facultăți. Ai și alte instituții de învățământ cu renume la doi pași de casă, precum precum Colegiul Național "Sfântul Sava", Colegiul Național "Gheorghe Lazăr", Liceul Teoretic Bulgar "Hristo Botev" și Universitatea Națională de Muzică. De menționat este și Căminul Moxa, aflat în zona Calea Victoriei, în care sunt cazați unii dintre studenții ASE. Consultă harta de mai jos pentru a vedea și celelalte unități de învățământ din zonă.
În această parte a orașului vei găsi numeroase reprezentanțe ale unor branduri de lux. Cele mai multe magazine alimentare din zonă au dimensiuni reduse. Pentru cumpărături îți recomandăm Piața Amzei, aflată la doi pași de Romană și modernizată recent. Aici găsești, pe lângă comercianți de unde poți cumpăra legume și fructe și câteva magazine cu preparate proaspete de la burgeri, la pâine artizanală sau înghețată. Centrul Vechi găzduiește, totodată, reprezentanțe ale unor retaileri de modă. Tot aici găsești și librăria Cărturești Carusel, una dintre cele mai frumoase din oraș. O librărie Cărturești deschisă într-o altă clădire deosebită poate fi găsită și în apropiere de Piața Romană. Un spațiu comercial cu renume este Magazinul Victoria, un monument istoric al orașului. Magazinul București, amplasat la intersecția străzilor I.C. Brătianu și Lipscani a fost reconstruit recent cu o investiție substanțială. Ai în apropiere magazinul Cocor, centrul comercial Unirea Shopping City și un hipermarket Carrefour. Cu mașina sau metroul poți să ajungi destul de repede la mall-ul AFI Cotroceni. Consultă harta și vezi ce magazine vei avea în apropierea noii tale case.
Aceasta este una dintre cele mai aglomerate zone din București la orele de vârf. Aici găsești însă și unele dintre puținele parcări subterane din Capitală. Chiar vis-a-vis de Universitatea București ai intrarea într-o astfel de parcare cu peste 400 de locuri. O parcare destul de încăpătoare poate fi găsită și în Piața Victoriei. Atenție, însă, această zonă se poate aglomera nu doar din cauza traficului, ci și din cauza diverselor manifestări sau proteste care se organizează, de obicei, în fața Palatului Victoria, sediul Guvernului României. Dacă te hotărăști să te muți în zonă, atunci îți recomandăm să te interesezi de posibilitatea închirierii unui loc de parcare pentru mașina ta. Poți face acest lucru apelând la Serviciul Parcaje al ADP Sector 1. Consultă harta pentru a afla unde găsești și alte parcări în zona Victoriei-Romană-Universitate.
Zona Victoriei - Romană - Universitate este un epicentru cultural al Capitalei și oferă numeroase opțiuni de petrecere a timpului liber. Aici vei găsi numeroase muzee impresionante pe care le poți vizita în timpul liber (Muzeul Național de Istorie Naturală "Grigore Antipa", Muzeul Țăranului Român, Muzeul Național George Enescu, etc), vei putea participa la evenimentele în aer liber desfășurate pe Calea Victoriei sau în Piața George Enescu sau vei putea merge la un spectacol organizat pe scena Ateneului Român sau pe cea a Teatrului Notarra. Nu rata nici o vizită la Teatrul Național "I.L. Caragiale" și la Muzeul Național de Artă al României. Observatorul Astronomic Amiral Vasile Urseanu te așteaptă cu o experiență extrem de educativă care va fi, cu siguranță, apreciată de micuțul tău. Dacă îți place să ieși la o cafea în timpul liber alături de prietenii tăi, atunci în această zonă vei putea alege dintr-o multitudine de restaurante, terase și pub-uri. Nu lipsesc nici skybar-urile, care îți oferă priveliști de excepție de la înălțime. Cele câteva parcuri din zona Victorieim - Romană - Universitate au dimensiuni destul de reduse, dar sunt frumos îngrijite. Printre acestea amintim Parcul Ateneului și Parcul Nicolae Iorga. Dacă preferi plimbările lungi în weekend, atunci vei avea la dispoziție în apropiere parcurile Kiseleff și Cișmigiu. Nu uita, de asemenea, că te vei afla la doi pași de Centrul Vechi al Capitalei, dar și că vei putea să faci o plimbare cu bicicleta pe Calea Victoriei. În condiții normale, se organizează periodic evenimente în centrul orașului, atât în cadrul Sălii Palatului, cât și în aer liber în Piața Revoluției. În Piața Universității sunt organizate, totodată, diferite târguri și concerte. Vezi pe hartă mai multe puncte de interes din zona Victoriei-Romană-Universitate.
Chiar la Piața Universității se află principala unitate sanitară din zonă. Este vorba despre Spitalul Clinic Colțea, primul înființat în București. În zona Victoriei - Romană - Universitate vei întâlni mai multe clinici private, precum Policlinica Enescu din cadrul rețelei de sănătate Regina Maria și Spitalul Clinic Sanador. La doi pași de Piața Romană se află Spitalul Clinic de Urgențe Oftalmologice, cel mai mare din România cu o astfel de specializare. Consultă harta pentru a afla ce clinici private ai în apropierea casei, dacă te muți în această parte a orașului.
Găsești numeroase restaurante, terase și cafenele potrivite pentru toate gusturile în Centrul Vechi al orașului, pe Calea Victoriei sau în zona din spatele Ateneului Român. Câteva fast food-uri ai la dispoziție în Unirea Shopping Center. Nu foarte departe, în zona Romană, ai și alte opțiuni. Află de pe hartă unde găsești cel mai apropiat restaurant de noua ta casă.
Sucursale ale diferitelor bănci sunt dispuse de-a lungul principalelor artere de circulație sau în marile intersecții din zonă. Un BRD, spre exemplu, găsești chiar lângă Cercul Militar Național. Pe Bulevardul Nicolae Bălcescu o sucursală Banca Transilvania și ING Bank. La doi pași de Piața Universității se află și Palatul Băncii Naționale a României. Consultă harta pentru mai multe detalii.
Înainte să pleci...
Ești sigur că ai văzut și aceste proprietăți?
400.000 € + TVA
București, Știrbei Vodă
3 camere
86 mp
Parter
999.000 €
București, Cișmigiu
4 camere
162,42 mp
Etaj 4 / 4
999.999 €
București, Cișmigiu
4 camere
165 mp
Etaj 4
350.000 €
București, Cișmigiu
3 camere
92,3 mp
Etaj 1 / 2
1.100.000 €
București, Cișmigiu
5 camere
160 mp
Etaj 5 / 5
1.189.000 €
București, Cișmigiu
5 camere
300 mp
Etaj 6
Creează alertă
Salvează căutarea ca să primești pe email ultimele anunțuri publicate
Apartamente noi cu 3 camere de vânzare în zona Cișmigiu, Ultracentral
Cere detalii prin email
*
*
*
*
Detaliile tale de contact vor fi partajate cu Regatta
Statistici proprietate
Apartamente 3 camere de vânzare
- București
- Zona Cișmigiu
Asigurare de viață/lună Costul este variabil. În funcție de banca aleasă, procentul variază între 0.0259% și 0.035% din soldul creditului.
Costuri cu achiziția22.458 RON
Comision agenție Întreabă agenţia
Onorariu notarial15.661 RON
Taxă întabulare OCPI3.655 RON
Autentificare contract credit3.142 RON
Preț de achiziție2.436.542 RON
Preț locuință2.013.670 RON
TVA 21%422.871 RON
Preț de achiziție2.436.542 RON
Preț locuință2.013.670 RON
TVA 21%
422.871 RON
Avans minim1.829.891 RON
Credit pe 30 de ani606.650 RON
Cost achitat în prima lună
Taxa evaluare imobil(până la)
575 RON
Rata lunară (variabilă)4.263 RON
Depozit colateral12.789 RON
Comision de garantare FNGCIMM203 RON
Asigurare anuală imobil2.437 RON
Poliță PAD130 RON
Tarif arhivă electronică102 RON
Costuri adiționale2.577 RON + taxe notariale
Asigurare viață și complexă (opțională)Costul este variabil. În funcție de banca aleasă, procentul variază între 0.0259% și 0.035% din soldul creditului
Onorariu notarialconform tarif notarial
Taxă întabulare OCPI2.577 RON
i
Toate valorile de mai sus sunt estimative și nu reprezintă în mod obligatoriu costurile exacte pe care le veți primi de la companiile/instituțiile prin care veți încheia tranzacția.