Cabinet Imobiliar Bucharest va propune spre vanzare un apartament de 4 camere, recent renovat, cu vedere catre Parc Cismigiu.
Detalii apartament
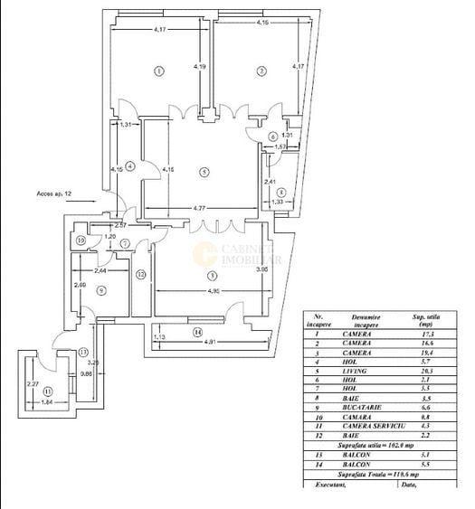
- Suprafata utila: 102 mp
- Suprafata totala: 111 mp
- Etaj 1/7
- Incalzire: Centrala termica proprie
-Renovat recent
-Instalatii sanitare si electrice schimbate.
Detalii imobil:
- R2
- An constructie: 1947
Localizare:
- Parc Cismigiu
*** la cerere se poate pune la dispozitie si expertiza tehnica ****
Vizionarea se face doar pe baza semnării unui contract de vizionare, în conformitate cu dispozițiile Codului Civil (art. 1169) privind libertatea contractuală
Pentru detalii si programarea unei vizionari, contactati Cabinet Imobiliar Bucharest!
81%dintre proprietățile similare ca zonă și nr. camere au prețul cerutmai mare.
mai multe...
Bine de știut: prețul unei proprietăți este influențat și de alte caracteristici, cum ar fi: vechime, localizare, vecinătăți, suprafață, compartimentare, amenajări, dotări, etc.
mai puțin...
Costuri cu achiziția
Fără credit
9.944 RON
Credit ipotecar
11.927 RON
Noua casă
1.185 RON+ taxe notariale
i
Costuri adiționale mai puțin știute la achiziție: taxe notariale, comisioane etc.
Sediul central - Timișoara
Bulevardul Victor Babeș nr. 2, 300230, Timișoara, România
Tel: +40.374.40.44.98 / Fax: +40.256.401.179
Email: suport@imobiliare.ro
Luni - Vineri 08:00 - 20:00
Punct de lucru - București: Iride Business Park, Bld. Dimitrie
Pompeiu 9-9A, Clădirea B2B,
020335, Sector 2, București, România
CONTACT
Sediul central - Timișoara
Bulevardul Victor Babeș nr. 2, 300230, Timișoara, România
Tel: +40.374.40.44.98 / Fax: +40.256.401.179
Email: suport@imobiliare.ro
Luni - Vineri 08:00 - 20:00
Punct de lucru - București: Iride Business Park, Bld. Dimitrie
Pompeiu 9-9A, Clădirea B2B,
020335, Sector 2, București, România
Stația RATB Facultatea De Drept, linii: 61, 69, 90, 91, 122, 137, 138, 268, 336, 601.
aprox.
690 m
Statia Vasile Parvan 66,70,92
aprox.
390 m
Statia Facultatea de Drept, linia 61,69,90,91
aprox.
564 m
Statia Piata Operei, linia 61,69,90,91
aprox.
976 m
Statia Stirbei Voda, linia 96
aprox.
1085 m
statia RATB Eroilor: 69, 96
aprox.
1147 m
Statia Piata Romana linii : 79,86
aprox.
1281 m
Statia Pod Cotroceni, linia 93, 62, 96
aprox.
1385 m
Statia Calea Dorobantilor; Liniile:79, 86,
aprox.
1430 m
Metrorex. Stația Izvor (M1),(M3)(1979)
aprox.
508 m
Metrorex. Statia Izvor (M1) , (M3).
aprox.
526 m
Izvor
aprox.
529 m
Metrorex. Statia Izvor (M1) , (M3).
aprox.
540 m
Metrorex. Stația Eroilor (M1),(M3)(1979)
aprox.
1022 m
Eroilor
aprox.
1022 m
Acces Stația Eroilor (M3).
aprox.
1094 m
Metrorex. Stația Universitate (M2)(1987)
aprox.
1094 m
Statia Metrou Piata Universitatii(M2)Metrorex
aprox.
1125 m
Statia Metrou Piata Romana(M2)Metrorex
aprox.
1151 m
Metrorex. Stația Piața Romană (M2)(1988)
aprox.
1160 m
Piata Romana (M2)
aprox.
1160 m
Statia Metrou Piata Universitatii(M2)Metrorex
aprox.
1162 m
Universitate (M2)
aprox.
1168 m
Statia Metrou Piata Romana(M2)Metrorex
aprox.
1197 m
Mircea Vulcanescu
aprox.
845 m
Buzesti
aprox.
1076 m
Piata Buzesti
aprox.
1263 m
Doctor Felix
aprox.
1358 m
Piata Sf. Gheorghe
aprox.
1373 m
Piata Sf. Gheorghe
aprox.
1493 m
Gara de Nord
aprox.
1493 m
Piata Unirii
aprox.
1558 m
Piata Victoriei
aprox.
1587 m
Bd. Hristo Botev
aprox.
1593 m
Hristo Botev
aprox.
1600 m
11 Iunie
aprox.
1601 m
Patriarhia Romana
aprox.
1650 m
Statia Batistei; Linia: 5, 16
aprox.
1657 m
Pasaj Victoria
aprox.
1682 m
Vechea "Gara a Targovistei" astazi parte din Gara de Nord
aprox.
1460 m
Gara Bucuresti Nord
aprox.
1645 m
Clinica de Protetica si Ocluzologie si Clinica de Pedodontie
aprox.
198 m
Facultatea de Sociologie și Asistență Socială
aprox.
264 m
Facultatea de Sociologie si Asistenta Sociala
aprox.
277 m
Facultatea de Medicina Dentara
aprox.
294 m
Universitatea Nationala de Muzica Conservator
aprox.
297 m
Universitatea Nationala de Muzica Bucuresti
aprox.
297 m
Facultatea de Stiinte Politice
aprox.
390 m
Universitatea din Bucuresti
aprox.
418 m
UTCB - Facultatea de Utilaj Tehnologic pentru Constructii
aprox.
488 m
Rectoratul Universitatii din București și sediul Facultății de Drept
aprox.
542 m
Rectoratul Univ. Bucuresti
aprox.
542 m
Facultatea de Utilaj Tehnologic (UTCB)
aprox.
548 m
Camin C
aprox.
628 m
Universitatea Nationala de Arte (facultatea de Arte Plastice si Facultatea de Istoria si Teoria Artei)
aprox.
640 m
Universitatea Nationala de Arte
aprox.
640 m
Gradinita nr. 248
aprox.
211 m
Gradinita Nr. 78 Miguel de Cervantes
aprox.
216 m
Gradinita MAPN
aprox.
359 m
Gradinita nr. 73
aprox.
442 m
Gradinita Smiley
aprox.
674 m
Gradinita nr. 116
aprox.
1042 m
Gradinita Olga Gudynn
aprox.
1047 m
Gradinita nr. 203 program prelungit
aprox.
1234 m
Gradinita nr.203 (fosta Clementa)
aprox.
1242 m
Gradinita nr.4 "Lizuca"
aprox.
1308 m
Gradinita MAPN nr.1
aprox.
1340 m
Gradinita de copii nr. 285
aprox.
1380 m
Gradinita Madeleine
aprox.
1458 m
Gradinita Prikindel
aprox.
1511 m
Ioanid
aprox.
1536 m
Liceul Cervantes
aprox.
329 m
Scoala Nr. 118 Vasile Alecsandri
aprox.
384 m
Colegiul National Sfantul Sava
aprox.
454 m
Liceul "Nicolae Tonitza"
aprox.
473 m
Scoala speciala nr. 10
aprox.
499 m
Scoala special nr. 10
aprox.
583 m
Institutul Cervantes
aprox.
625 m
Credis - Academia CISCO Credis (en)
aprox.
628 m
Scoala de Muzica Nr.3
aprox.
636 m
Fostul Liceu de Arte Plastice Nicolae Tonitza - Sediul
aprox.
644 m
Scoala Generala Nr. 5 Corneliu M. Popescu
aprox.
783 m
Ateneul roman, Bucuresti
aprox.
855 m
Liceul Bulgar Hristo Botev
aprox.
954 m
Colegiul Tehnic de Arhitectură și Lucrări Publice Ioan N. Socolescu
aprox.
1085 m
Colegiul German Goethe
aprox.
1092 m
Mega Image Elisabeta Non-Stop
aprox.
337 m
Mega Image Brezoianu
aprox.
397 m
Mag.Victoria
aprox.
872 m
Mega Image Amzei Non-Stop
aprox.
889 m
Nik Non-Stop
aprox.
956 m
Mega Image Magheru
aprox.
1001 m
ilanplant
aprox.
1030 m
Mega Image Rosetti Non-Stop
aprox.
1036 m
Pravalia Maestrului
aprox.
1060 m
Mega Image
aprox.
1219 m
Bacania Coco
aprox.
1278 m
Carrefour Express
aprox.
1337 m
Shop & Go - Mega Image
aprox.
1384 m
dm
aprox.
1406 m
Economat
aprox.
1411 m
"METROPLIS CENTER"
aprox.
1803 m
Parcare cu plata
aprox.
416 m
Parcare
aprox.
450 m
Parcare
aprox.
479 m
Parcare privata
aprox.
496 m
Parcare
aprox.
509 m
Parcare
aprox.
524 m
Parcare
aprox.
531 m
Parcare
aprox.
535 m
Parcare
aprox.
590 m
Parcare
aprox.
596 m
Parcare
aprox.
605 m
Parcare
aprox.
638 m
Parcare
aprox.
669 m
Parcare
aprox.
676 m
Parcare
aprox.
691 m
Loc de Joaca
aprox.
147 m
Parcul Cismigiu
aprox.
182 m
Parcul Cismigiu
aprox.
189 m
Loc de joaca
aprox.
304 m
Parculet
aprox.
367 m
Parc
aprox.
367 m
Parc
aprox.
384 m
Piata Walter Maracineanu
aprox.
408 m
Entrace
aprox.
438 m
Miniparc
aprox.
440 m
Parcul Tosca
aprox.
461 m
Parc
aprox.
536 m
Parcul Luigi Cazzavillan
aprox.
562 m
Luigi Cazzavillan
aprox.
562 m
Parc
aprox.
633 m
Teren sportiv
aprox.
233 m
Baza sportiva Universitatea Bucuresti
aprox.
424 m
teren tenis
aprox.
442 m
Teren sportiv
aprox.
519 m
Teren sportiv
aprox.
606 m
Teren sportiv
aprox.
953 m
Teren sportiv
aprox.
1003 m
Teren sportiv
aprox.
1071 m
Teren sportiv
aprox.
1082 m
Teren sportiv
aprox.
1088 m
Teren sportiv
aprox.
1093 m
Teren sportiv
aprox.
1099 m
Teren sportiv
aprox.
1109 m
Teren sportiv
aprox.
1130 m
Teren sportiv
aprox.
1147 m
Piata Emil Cioran (Vergilius) (en)
aprox.
641 m
Piata Revolutiei
aprox.
776 m
Piața Drapelului (Tricolorului)
aprox.
823 m
Piata Natiunilor Unite
aprox.
1077 m
Piata Universitatii
aprox.
1167 m
Piața Constituției
aprox.
1175 m
Piața Romană
aprox.
1254 m
Piata Roma
aprox.
1367 m
Piața Sfântul Anton
aprox.
1434 m
Piata Rosetti
aprox.
1471 m
Piata Timpului
aprox.
1484 m
Piata Arsenalului
aprox.
1583 m
Piata Bibescu
aprox.
1680 m
Piața Eroilor
aprox.
1762 m
Piața Regina Maria
aprox.
1794 m
Farmacia Sfanta Ecaterina
aprox.
71 m
Plafar
aprox.
426 m
Urgent Farm
aprox.
427 m
Catena
aprox.
457 m
Farmaciile 2NA
aprox.
489 m
Farmacia Reteta
aprox.
589 m
BellaDonna
aprox.
604 m
Farmaplus
aprox.
607 m
Sibpharmed
aprox.
623 m
Sensiblu
aprox.
640 m
Farmacia Help Net
aprox.
651 m
SensiBlu
aprox.
655 m
3F Farmacie Farmec Frumusete
aprox.
762 m
Farmacia Academia
aprox.
797 m
Farmacia Dona 6
aprox.
908 m
Clinica ORL Dr. Mocanu
aprox.
303 m
Spitalul Clinic de Chirurgie Oro-Maxilo-Faciala
aprox.
304 m
Institutul Victor Babes
aprox.
667 m
Policlinica Ministerului de Interne
aprox.
779 m
Spitalul Carol Davila de urologie
aprox.
784 m
Spitalul Clinic de Nefrologie Dr. Carol Davila
aprox.
784 m
Spitalul clinic de nefrologie "Dr. Carol Davila"
aprox.
827 m
Regina Maria - clinica pentru copii
aprox.
871 m
Centrul Medical Unirea sediul Enescu
aprox.
900 m
Centrul Medical Unirea Enescu
aprox.
931 m
Spitalul Clinic Prof. Dr. Doc Ovidiu Marina
aprox.
1101 m
Institutul National de Recuperare
aprox.
1102 m
Cabinet Medical
aprox.
1171 m
Sectia de Dermatovenerologie (en)
aprox.
1177 m
oncologie, medicala III, endocrine
aprox.
1205 m
Bistro de la Joie
aprox.
79 m
Classic
aprox.
81 m
Fast food
aprox.
86 m
Caffe & Latte (restaurant,bar,cafe)
aprox.
89 m
Hotel *** TRIANON
aprox.
90 m
Restaurant Monte Carlo (en)
aprox.
112 m
Restaurant Monte Carlo
aprox.
112 m
Hotel Epoque *****
aprox.
125 m
Tulin
aprox.
218 m
Restaurant Libanez Tulin (en)
aprox.
232 m
plantersclub (en)
aprox.
294 m
ADAGIO
aprox.
294 m
Shaorma
aprox.
296 m
Bodega Espaniola Alioli
aprox.
316 m
Restaurant Excalibur - Locul Cavalerilor
aprox.
361 m
Caffeine & Latte
aprox.
91 m
Bouche Bee
aprox.
309 m
Dolce Baccio
aprox.
387 m
Kafeterya Cafe
aprox.
390 m
Dante Cafe
aprox.
596 m
Nana
aprox.
710 m
Origo
aprox.
751 m
J'ai Bistrot
aprox.
825 m
Cafeneaua Arhitectilor
aprox.
871 m
Mara Mura
aprox.
888 m
Zvon Caffe
aprox.
894 m
Demmers Teahouse
aprox.
915 m
Roland 1811 cafe
aprox.
916 m
Ramayana Cafe
aprox.
920 m
Vol Cafe
aprox.
938 m
Letters Bar
aprox.
320 m
Stuf Vama Veche
aprox.
523 m
LondonPhone
aprox.
572 m
Gambrinus
aprox.
616 m
Energiea
aprox.
720 m
Control Club
aprox.
742 m
A1
aprox.
771 m
Interbelic Victoria
aprox.
839 m
Fratelli Espresso Bar
aprox.
872 m
Yellow Bar
aprox.
913 m
Opium Stage Club
aprox.
933 m
Beer o'clock
aprox.
947 m
Marvin bar&more
aprox.
976 m
Laboratorul de Cocktailuri
aprox.
1130 m
La Comedie
aprox.
1132 m
James Joyce's Pub & Restaurant
aprox.
416 m
Nexus Gamers Pub
aprox.
662 m
Club Expirat and Other Side
aprox.
714 m
Question Mark Social Club
aprox.
829 m
Coloseum
aprox.
892 m
Edgar`s Pub
aprox.
915 m
Charlatans Irish Pub
aprox.
958 m
D`eight Pub
aprox.
1042 m
Charme
aprox.
1130 m
Vault
aprox.
1132 m
Beraria Smardan
aprox.
1143 m
The Gin Factory
aprox.
1145 m
Bastards
aprox.
1150 m
Oktoberfest 3
aprox.
1163 m
St. Patrick
aprox.
1169 m
Bancomat BRD
aprox.
304 m
Piraeus Bank Romania - Agentia Kogalniceanu
aprox.
308 m
Bank Piraeus
aprox.
319 m
Banca Pireusbank
aprox.
319 m
BRD Piata Mihail Kogalniceanu
aprox.
362 m
BRD AGENTIA PIATA MIHAIL KOGALNICEANU
aprox.
385 m
Emporki Bank
aprox.
452 m
Banca Carpatica
aprox.
501 m
Banca Carpatica
aprox.
501 m
Alpha Bank
aprox.
502 m
Marfin Bank
aprox.
603 m
MARFIN BANK
aprox.
607 m
Banca Transilvania
aprox.
613 m
Banca Transilvania - Ag. Stirbei Voda
aprox.
621 m
PIRAEUS BANK
aprox.
632 m
Fiind o zonă ultracentrală, aceasta oferă numeroase opțiuni de călătorie cu mijloacele de transport în comun, și este bine conectată cu restul orașului. Ai, în primul rând, la dispoziție stațiile de metrou Piața Victoriei, Piața Romană și Universitate. Astfel, te vei putea deplasa rapid prin oraș, evitând aglomerația de la suprafață. Toate acestea sunt situate pe magistrala 2 care traversează Bucureștiul de la nord la sud. În plus, de la Piața Victoriei vei putea lua metroul și pe magistrala 1 pentru a ajunge, de exemplu, în cartierul Pantelimon sau în zona Eroilor. Prin Piața Universității urmează să treacă și magistrala 5 care va lega cartierele Drumul Taberei și Pantelimon. Până acum, s-au deschis însă doar stațiile de metrou aflate în zona Drumul Taberei. Alte mijloace de transport în comun care ar putea să-ți fie de ajutor atunci când te vei muta în această zonă sunt autobuzele 300 și 381. Primul face legătura dintre Piața Romană și Piața Victoriei continuându-și apoi traseul de-a lungul Bulevardului Ion Mihalache, iar cel de-al doilea conectează Piața Victoriei cu zona Tineretului și cu cartierul Berceni. De pe Bulevardul Regina Elisabeta vei putea lua troleibuzul 90 pentru a ajunge în Drumul Taberei sau în zona Arenei Naționale, iar în fața Spitalului Colțea vei găsi stația autobuzului 381 care merge în cartierul Berceni. Iar dacă preferi să te deplasezi pe două roți, vei avea la dispoziție una dintre pistele speciale destinate bicicliștilor pe Calea Victoriei. Aceasta îți va oferi, în plus, oportunitatea ideală de a admira arhitectura deosebită a clădirilor aflate de o parte și de alta a uneia dintre cele mai frumoase străzi din București. Consultă harta pentru a afla unde sunt localizate stațiile mijloacelor de transport în comun.
În această zonă găsim sediul central al Universității din București și cel al Academiei de Studii Economice din București (ASE), unele dintre cele mai prestigioase instituții de învățământ superior din România. Tot aici se află și sediile mai multor facultăți. Ai și alte instituții de învățământ cu renume la doi pași de casă, precum precum Colegiul Național "Sfântul Sava", Colegiul Național "Gheorghe Lazăr", Liceul Teoretic Bulgar "Hristo Botev" și Universitatea Națională de Muzică. De menționat este și Căminul Moxa, aflat în zona Calea Victoriei, în care sunt cazați unii dintre studenții ASE. Consultă harta de mai jos pentru a vedea și celelalte unități de învățământ din zonă.
În această parte a orașului vei găsi numeroase reprezentanțe ale unor branduri de lux. Cele mai multe magazine alimentare din zonă au dimensiuni reduse. Pentru cumpărături îți recomandăm Piața Amzei, aflată la doi pași de Romană și modernizată recent. Aici găsești, pe lângă comercianți de unde poți cumpăra legume și fructe și câteva magazine cu preparate proaspete de la burgeri, la pâine artizanală sau înghețată. Centrul Vechi găzduiește, totodată, reprezentanțe ale unor retaileri de modă. Tot aici găsești și librăria Cărturești Carusel, una dintre cele mai frumoase din oraș. O librărie Cărturești deschisă într-o altă clădire deosebită poate fi găsită și în apropiere de Piața Romană. Un spațiu comercial cu renume este Magazinul Victoria, un monument istoric al orașului. Magazinul București, amplasat la intersecția străzilor I.C. Brătianu și Lipscani a fost reconstruit recent cu o investiție substanțială. Ai în apropiere magazinul Cocor, centrul comercial Unirea Shopping City și un hipermarket Carrefour. Cu mașina sau metroul poți să ajungi destul de repede la mall-ul AFI Cotroceni. Consultă harta și vezi ce magazine vei avea în apropierea noii tale case.
Aceasta este una dintre cele mai aglomerate zone din București la orele de vârf. Aici găsești însă și unele dintre puținele parcări subterane din Capitală. Chiar vis-a-vis de Universitatea București ai intrarea într-o astfel de parcare cu peste 400 de locuri. O parcare destul de încăpătoare poate fi găsită și în Piața Victoriei. Atenție, însă, această zonă se poate aglomera nu doar din cauza traficului, ci și din cauza diverselor manifestări sau proteste care se organizează, de obicei, în fața Palatului Victoria, sediul Guvernului României. Dacă te hotărăști să te muți în zonă, atunci îți recomandăm să te interesezi de posibilitatea închirierii unui loc de parcare pentru mașina ta. Poți face acest lucru apelând la Serviciul Parcaje al ADP Sector 1. Consultă harta pentru a afla unde găsești și alte parcări în zona Victoriei-Romană-Universitate.
Zona Victoriei - Romană - Universitate este un epicentru cultural al Capitalei și oferă numeroase opțiuni de petrecere a timpului liber. Aici vei găsi numeroase muzee impresionante pe care le poți vizita în timpul liber (Muzeul Național de Istorie Naturală "Grigore Antipa", Muzeul Țăranului Român, Muzeul Național George Enescu, etc), vei putea participa la evenimentele în aer liber desfășurate pe Calea Victoriei sau în Piața George Enescu sau vei putea merge la un spectacol organizat pe scena Ateneului Român sau pe cea a Teatrului Notarra. Nu rata nici o vizită la Teatrul Național "I.L. Caragiale" și la Muzeul Național de Artă al României. Observatorul Astronomic Amiral Vasile Urseanu te așteaptă cu o experiență extrem de educativă care va fi, cu siguranță, apreciată de micuțul tău. Dacă îți place să ieși la o cafea în timpul liber alături de prietenii tăi, atunci în această zonă vei putea alege dintr-o multitudine de restaurante, terase și pub-uri. Nu lipsesc nici skybar-urile, care îți oferă priveliști de excepție de la înălțime. Cele câteva parcuri din zona Victorieim - Romană - Universitate au dimensiuni destul de reduse, dar sunt frumos îngrijite. Printre acestea amintim Parcul Ateneului și Parcul Nicolae Iorga. Dacă preferi plimbările lungi în weekend, atunci vei avea la dispoziție în apropiere parcurile Kiseleff și Cișmigiu. Nu uita, de asemenea, că te vei afla la doi pași de Centrul Vechi al Capitalei, dar și că vei putea să faci o plimbare cu bicicleta pe Calea Victoriei. În condiții normale, se organizează periodic evenimente în centrul orașului, atât în cadrul Sălii Palatului, cât și în aer liber în Piața Revoluției. În Piața Universității sunt organizate, totodată, diferite târguri și concerte. Vezi pe hartă mai multe puncte de interes din zona Victoriei-Romană-Universitate.
Chiar la Piața Universității se află principala unitate sanitară din zonă. Este vorba despre Spitalul Clinic Colțea, primul înființat în București. În zona Victoriei - Romană - Universitate vei întâlni mai multe clinici private, precum Policlinica Enescu din cadrul rețelei de sănătate Regina Maria și Spitalul Clinic Sanador. La doi pași de Piața Romană se află Spitalul Clinic de Urgențe Oftalmologice, cel mai mare din România cu o astfel de specializare. Consultă harta pentru a afla ce clinici private ai în apropierea casei, dacă te muți în această parte a orașului.
Găsești numeroase restaurante, terase și cafenele potrivite pentru toate gusturile în Centrul Vechi al orașului, pe Calea Victoriei sau în zona din spatele Ateneului Român. Câteva fast food-uri ai la dispoziție în Unirea Shopping Center. Nu foarte departe, în zona Romană, ai și alte opțiuni. Află de pe hartă unde găsești cel mai apropiat restaurant de noua ta casă.
Sucursale ale diferitelor bănci sunt dispuse de-a lungul principalelor artere de circulație sau în marile intersecții din zonă. Un BRD, spre exemplu, găsești chiar lângă Cercul Militar Național. Pe Bulevardul Nicolae Bălcescu o sucursală Banca Transilvania și ING Bank. La doi pași de Piața Universității se află și Palatul Băncii Naționale a României. Consultă harta pentru mai multe detalii.
Înainte să pleci...
Ești sigur că ai văzut și aceste proprietăți?
199.000 €
București, Cișmigiu
2 camere
45 mp
Etaj 4
199.000 €
București, Cișmigiu
2 camere
57,4 mp
Etaj 6
205.000 €
București, Cișmigiu
2 camere
50 mp
Etaj 6
Creează alertă
Salvează căutarea ca să primești pe email ultimele anunțuri publicate
Apartamente cu 4+ camere de vânzare în zona Cișmigiu, Ultracentral
Cere detalii prin email
*
*
*
*
Detaliile tale de contact vor fi partajate cu Cabinet Imobiliar Bucharest
Statistici proprietate
Apartamente 4 camere de vânzare
- București
- Zona Cișmigiu
Asigurare de viață/lună Costul este variabil. În funcție de banca aleasă, procentul variază între 0.0259% și 0.035% din soldul creditului.
Costuri cu achiziția11.927 RON
Comision agenție Întreabă agenţia
Onorariu notarial8.376 RON
Taxă întabulare OCPI1.568 RON
Autentificare contract credit1.983 RON
Preț de achiziție1.045.069 RON
Preț locuință1.045.069 RON
TVA 0%Inclus în prețul cerut
Preț de achiziție1.045.069 RON
Preț locuință1.045.069 RON
TVA 0%
Inclus în prețul cerut
Avans minim438.419 RON
Credit pe 30 de ani606.650 RON
Cost achitat în prima lună
Taxa evaluare imobil(până la)
575 RON
Rata lunară (variabilă)4.263 RON
Depozit colateral12.789 RON
Comision de garantare FNGCIMM87 RON
Asigurare anuală imobil1.045 RON
Poliță PAD130 RON
Tarif arhivă electronică102 RON
Costuri adiționale1.185 RON + taxe notariale
Asigurare viață și complexă (opțională)Costul este variabil. În funcție de banca aleasă, procentul variază între 0.0259% și 0.035% din soldul creditului
Onorariu notarialconform tarif notarial
Taxă întabulare OCPI1.185 RON
i
Toate valorile de mai sus sunt estimative și nu reprezintă în mod obligatoriu costurile exacte pe care le veți primi de la companiile/instituțiile prin care veți încheia tranzacția.