Birou, 143.31 mp în Exterior Est

1.300 € + TVA / lună
9.07 € + TVA / mp / lună

Exterior Est, Cluj-Napoca

Sup. utilă / mp. utili:
143,31 mp
Tip prop.:
Clădire de birouri
  • • Locație aproximativă

Descriere spațiu comercial

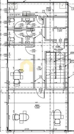
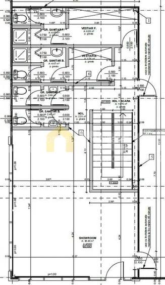
Spatiu de birouri de inchiriat Spatiul face parte dintr-o constructie noua (depozit), insa beneficiaza de intrare separata si este complet independent din punct de vedere al fluxului de acces. Este ideal pentru companii care au nevoie de un sediu reprezentativ, showroom sau birouri operationale intr-o zona logistica. Caracteristici principale: Stare: Spatiul este nou, la prima inchiriere, finisat la standarde moderne. Suprafata utila totala: 143,31 m² (dispus pe Parter si Etaj). Parter: Zona generoasa de Showroom / Open-space (aprox. 38 mp), hol acces, scara interioara si grupuri sanitare multiple (inclusiv vestiare). Etaj: Doua zone de birouri luminoase, oficiu (chicineta) / loc de luat masa si grupuri sanitare suplimentare. Lumina naturala: Ferestre mari pe ambele niveluri, oferind un mediu de lucru productiv si luminos. Finisaje si Dotari: Tavan casetat cu iluminat LED integrat. Pardoseli din gresie de trafic intens. Grupuri sanitare complet utilate. Incalzire eficienta si compartimentare moderna. Avantaje locatie: Acces facil din drumul principal in Sannicoara cat si din centura. Intrare complet independenta fata de activitatea depozitului. Proximitate fata de centura Valcele-Apahida si aeroport. . Nr grupuri sanitare: 6 Nr incaperi: 7 Utilitati - Utilitati generale (Curent,Apa,Canalizare) Finisaje - Izolatii termice (Exterior); Podele (Parchet); Iluminat (Lampi,Spoturi) pret inchiriere: 1300 moneda inchiriere: EUR Disponibilitate proprietate: imediat
Citește mai mult Citește mai puțin
Nemobilat 15 Parcări

Detalii spațiu comercial

ID anunț: XBOO140D3 Copiat! 274418037 Copiat!
Actualizat în: 02 Martie 2026
Suprafață utilă: 143.31 mp
Etaj: Parter
Regim înălțime: P

Utilități

Utilități
Curent Apă Canalizare
Podele
Parchet
Izolații termice
Exterior
Comision
50%+TVA

Subspații disponibile

Chirie / u.m. / lună:
9.07 EUR/mp (total: 1300 EUR/lună) + TVA, Comision 50% cumpărător
Suprafață disponibilă:
143.31
Disponibilitate spațiu:
închiriat
Etaj:
Parter

Puncte de interes

Mijloace transport
bus-station
Statia Emil Racovita, Linia 38
Stații autobuz aprox. 121 m
bus-station
Emil Racovita
Stații autobuz aprox. 155 m
tram-station
Horea
Stații tramvai aprox. 493 m
train-station
Gara Cluj-Napoca
Stații tren aprox. 833 m
Școală
kindergarten
Cresa si Gradinita Heidi
Gradinițe aprox. 79 m
kindergarten
Gradinita Daisy
Gradinițe aprox. 251 m
school
Liceul Teologic Emanuel
Școli aprox. 274 m
university
Facultatea de litere
Universități aprox. 398 m
Recreere
supermarket
La Doi Pasi
Supermarket aprox. 179 m
park
Parc
Parcuri aprox. 218 m
sports-ground
CFR 1907 Cluj
Terenuri sport aprox. 281 m
public-square
Piata Garii-RailwayStation Square (en)
Piețe publice aprox. 757 m

Proprietăți recomandate

Detalii de contact

Connect Imobiliare

Adina Cretu Broker Imobiliar

Connect Imobiliare
PRO

Abonează-te la newsletter să fii primul care primește cele mai noi recomandări de proprietăți și sfaturi de la experți.

CONTACT

Creează alertă

Salvează căutarea ca să primești pe email ultimele anunțuri publicate

Birouri de închiriat în zona Exterior Est, Cluj-Napoca