Bd. Mamaia, spatiu birouri 193 mp., cladire reprezentativa

1.900 € / lună
9.84 € / mp / lună

Delfinariu, Constanța

Sup. utilă / mp. utili:
193 mp
Tip prop.:
Clădire de birouri
An constr.:
2011 (Finalizată)
  • • Locație aproximativă

Descriere spațiu comercial

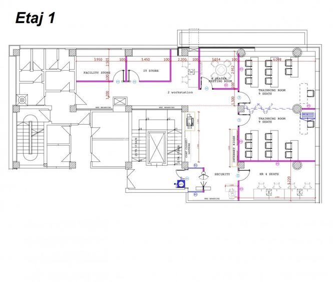
Agentia Zig-Zag va ofera spre inchiriere spatii IDEAL BIROURI , cu suprafete cuprinse intre 190 mp. – 384 mp. cu posibilitate de recompartimentare sau revenire la forma open space . Suprafetele generoase si compartimentarile difeite ale fiecarui etaj permit organizarea eficientă în funcție de nevoile specifice fiecarui tip de business si reprezinta o oportunitate excelentă pentru cei care caută un mediu profesional cu acces ușor și vizibilitate sporită care se preteaza pentru activități din sectorul financiar, IT, consultanță, vânzări, diverse activități comerciale sau servicii. Imobilul, usor reperabil si cu acces facil catre mijloacele de transport in comun, este situata in zona centrala a Constantei, pe un bulevard principal traficat intens. Este ideal pentru companiile care doresc un sediu reprezentativ si imagine puternica. Beneficiaza de facilitate specific clasei A: - autorizatie ISU; - fatada cu perete cortina din sticla exterior; - tamplarie din aluminiu SCHUCO; - ventiloconvectoare etc. - spatiile sunt compartimentate cu pereti vitrati si este racordat la standardele tehnice internationale. Amenajarile se ridica la standardele specific clasei A: - pardoseli in offices mochetate; - sisteme flexibilitate pentru instalatie de computer si telefonie (voce/date); - placaje marmura in lobbies si zonele de acces - tavane incorporand corpuri de iluminat, ventilatie, detector fum si instalatii de aer conditionat; - incalzirea: prin sisteme de aer conditionat duale cald/rece si incalzire centralizata pe gaze naturale; - ascensor; - posibilitate servicii receptie-front desk 24 din 24 ore. Etajul 1 - suprafata utila 192, 25 mp. compartimentata in sala conferinte, 3 birouri, 2 grupuri sanitare; Etajul 4 - suprafata utila 343.04 mp. compartimentata in openspace foarte generos, 5 birouri, oficiu (bucatarie/sala de mese), camera tehnica (server), 2 grupuri sanitare (4 posturi – femei/barbati); Etajul 5- suprafata utila 348.24 mp. compartimentata in openspace foarte generos, 4 birouri, oficiu (bucatarie/sala de mese), 2 grupuri sanitare (4 posturi – femei/barbati); Se poate inchiria in varianta ne/mobilat, in functie de necesitatile clientului. La pretul afisat se aduaga costurile de mentenanta - 0,5 euro/mp. +TVA ( paza 24/24, front office, curatenie spatii comune, mentenanta lift, hidrofor, chiller etc). Proprietar persoana juridica ( pret +TVA).
Citește mai mult Citește mai puțin
Ventiloconvectoare Zonă de litoral

Detalii spațiu comercial

ID anunț: XECR1408B Copiat! 235412005 Copiat!
Actualizat în: 03 Martie 2026
Suprafață utilă: 193 mp
Etaj: Etaj 1
Stadiu construcție: Finalizată

Utilități

Utilități
Curent Apă Canalizare

Puncte de interes

Mijloace transport
bus-station
Statie Delfinariu, Linia 40, 40C, 102
Stații autobuz aprox. 50 m
bus-station
Delfinariu 102N
Stații autobuz aprox. 83 m
bus-station
Delfinariu [102P
Stații autobuz aprox. 120 m
bus-station
Facultativa 102N
Stații autobuz aprox. 242 m
Școală
school
Liceul Energetic
Școli aprox. 461 m
school
Colegiul Tehnic Energetic Constanta
Școli aprox. 462 m
kindergarten
Gradinita Nr. 45
Gradinițe aprox. 581 m
university
Universitatea Spiru Haret
Universități aprox. 1110 m
Recreere
supermarket
China Mall Duo-Duo
Supermarket aprox. 102 m
park
The Natural Science Park (en)
Parcuri aprox. 246 m
sports-ground
Teren sportiv
Terenuri sport aprox. 496 m
public-square
Piața Chiliei
Piețe publice aprox. 1248 m

Proprietăți recomandate

Detalii de contact

ZIG ZAG INTERMED

Oana Barbieru

4.80(5 review-uri)

ZIG ZAG INTERMED
PRO

Abonează-te la newsletter să fii primul care primește cele mai noi recomandări de proprietăți și sfaturi de la experți.

CONTACT

Creează alertă

Salvează căutarea ca să primești pe email ultimele anunțuri publicate

Birouri cu 3 camere de închiriat în zona Delfinariu, Constanța