Ultracentral-Bdul Mamaia, spatiu pretabil multiple activitati

756 € / lună
9 € / mp / lună

Ultracentral, Constanța

Sup. utilă / mp. utili:
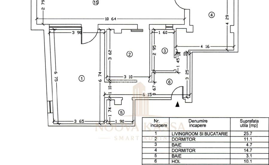
84 mp
Tip prop.:
Clădire de birouri
Niv.:
3
  • • Locație exactă

Descriere spațiu comercial

Situat pe Bulevardul Mamaia, in zona centrala a orasului, spatiul se preteaza multiplelor activitati de genul : cabinete, birouri, etc
Citește mai mult Citește mai puțin
Zonă de litoral

Detalii spațiu comercial

ID anunț: XE490402E Copiat! 55479433 Copiat!
Actualizat în: 09 Martie 2026
Clasă birouri: A
Regim înălțime: P+3E

Utilități

Comision
50%

Subspații disponibile

Chirie / u.m. / lună:
9 EUR/mp (total: 756 EUR/lună) + alte cheltuieli, Comision 50% cumpărător
Suprafață disponibilă:
84
Disponibilitate spațiu:
imediat

Puncte de interes

Mijloace transport
bus-station
Colegiul Constantin Bratescu [5-40
Stații autobuz aprox. 46 m
bus-station
Statia Constantin Brătescu; Linia 40,40C,43
Stații autobuz aprox. 176 m
train-station
Gara CFR Constanta(1960)
Stații tren aprox. 1852 m
train-station
Gara Constanța(1960)
Stații tren aprox. 1898 m
Școală
school
colegiul national pedagogic" ctin bratescu"
Școli aprox. 110 m
kindergarten
Gradinita Casuta Magicienilor
Gradinițe aprox. 114 m
school
Centrul Cultural Judetean "Teodor t. Burada"
Școli aprox. 209 m
university
Universitatea de Marina Constanta
Universități aprox. 476 m
Recreere
park
Parcul Teatrului
Parcuri aprox. 409 m
supermarket
Tomis Mall
Supermarket aprox. 474 m
sports-ground
Teren sportiv
Terenuri sport aprox. 556 m
public-square
Piața Chiliei
Piețe publice aprox. 1288 m

Proprietăți recomandate

Detalii de contact

Abonează-te la newsletter să fii primul care primește cele mai noi recomandări de proprietăți și sfaturi de la experți.

CONTACT

Creează alertă

Salvează căutarea ca să primești pe email ultimele anunțuri publicate

Birouri de închiriat în zona Ultracentral, Constanța