2

SPATIU DE BIROURI IN ZONA KISELEFF – AVIATORILOR!

2.850 € / lună
21.10 € / mp / lună

Aviatorilor, București

Sup. utilă / mp. utili:
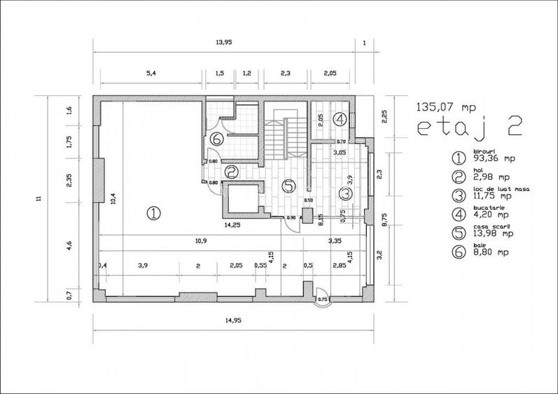
135,07 mp
Tip prop.:
Clădire de birouri
Niv.:
5
An constr.:
1997 (Există)
  • • Exclusivitate
  • • Locație exactă

Descriere spațiu comercial

SPAȚIU DE BIROU DE INCHIRIAT – ETAJUL 2 Kiseleff / Aviatorilor – Str. Emanoil Porumbaru Un spatiu de birouri pozitionat intr-o zona emblematica a Bucurestiului, dedicat companiilor care cauta liniste, eficienta si un mediu de lucru bine organizat, intr-un cadru premium. Video de prezentare disponibil! Locatie premium – Kiseleff / Aviatorilor Strada Emanoil Porumbaru, zona selecta, cu acces rapid catre: Metrou Aviatorilor (M2) – 170 m Parcul Herastrau / Regele Mihai I Bd. Kiseleff, Piata Charles de Gaulle, Primaverii, Calea Victoriei Centre de business si ambasade Zona de nord si Aeroport Spatiul oferit spre inchiriere – ETAJUL 2 Etajul 2 este ideal pentru echipe operationale si activitati care necesita concentrare, oferind un cadru de lucru aerisit si bine iluminat. Suprafete: Suprafata totala: 135,07 mp Suprafata utila: 121 mp (fara casa scarii) Compartimentare: mix de open-space si birouri individuale / posibilitate de sali de sedinta / spatii de lucru flexibile, usor de adaptat nevoilor chiriasului Spatiul beneficiaza de iluminare naturala excelenta pe tot parcursul zilei, datorita ferestrelor ample, oferind un confort ridicat pentru echipe. Acces prin casa scarii si lift. Disponibilitate: IMEDIATĂ Dotari si infrastructura tehnica Cladire termoizolata / lift modern Climatizare centralizata + aer proaspat Control acces + CCTV Panouri fotovoltaice + panouri solare + generator Sistem anti-incendiu, centrala gaz premium Infrastructura IT enterprise Spatii de depozitare Garaj + locuri de parcare in fata cladirii Avantaje cheie Zona ultracentrala si linistita Spatiu eficient, bine compartimentat Iluminare naturala foarte buna Costuri reduse de operare Ideal pentru: IT & Software | Consultanta | Arhitectura & Design | Agentii creative | Companii corporate Va invitam la vizionare! Broker dedicat – Florin Toma | Nr grupuri sanitare: 1 Suprafata construita: 150 mp Nr garaje: 1 Nr incaperi: 3 Utilitati - Sistem incalzire (Centrala proprie,Calorifere); Climatizare (Aer conditionat,Ventiloconvectoare); Utilitati generale (Curent,Curent trifazic,Apa,Canalizare,Gaz,CATV) Finisaje - Izolatii termice (Exterior,Interior,Bloc izolat termic); Podele (Gresie,Marmura,Parchet); Iluminat (Lampi,Spoturi,Aplice,Exterior cladire,Lumina naturala); Ferestre cu geam termopan (PVC) Dotari - Contorizare (Apometre,Contor caldura,Contor gaz); Dotari imobil (Curte comuna,Video interfon) Alte caracteristici - Alte spatii utile (Spatiu depozitare,Anexe,Dependinte,Parcare proprie,Parcare acoperita,Spatiu verde amenajat) pret inchiriere: 2850 moneda inchiriere: EUR Disponibilitate proprietate: imediat
Citește mai mult Citește mai puțin
Parțial mobilat Curte comună Aer condiționat Ventiloconvectoare Calorifere Centrală proprie 1 Parcare 1 Garaj

Detalii spațiu comercial

ID anunț: X9MI14018 Copiat! 274774948 Copiat!
Actualizat în: 04 Februarie 2026
Suprafață utilă: 135.07 mp
Etaj: Etaj 2 / 5
Clasă birouri: B
Regim înălțime: D+P+5E
Structură rezistență: Cărămidă
Stadiu construcție: Există

Utilități

Contorizare
Apometre Contor căldură Contor gaz
Alte spații utile
Spațiu depozitare Anexe Dependințe
Facilități imobil
Videointerfon
Utilități
Curent Apă Canalizare Gaze Curent trifazic CATV
Podele
Parchet Gresie Marmură
Izolații termice
Exterior Interior Bloc izolat termic
Ferestre cu geam termopan
PVC
Comision
standard

Vecinătăți:

HERASTRAU, KISELEFF, METROU, CHARLES DE GAULLE, CENTRU BUSINESS, ARCUL DE TRIUMF,

Subspații disponibile

Chirie / u.m. / lună:
21.1 EUR/mp (total: 2850 EUR/lună), Comision: standard
Suprafață disponibilă:
135.07
Disponibilitate spațiu:
închiriat
Etaj:
Etaj 2 / 5

Puncte de interes

Mijloace transport
metro-station
Piata Aviatorilor (M2)
Stații metrou aprox. 222 m
bus-station
Statia Piata Charlles de Gaulle linii : 131,282,301,330,331,335.
Stații autobuz aprox. 340 m
tram-station
Statie Tramvai 41 - Casin
Stații tramvai aprox. 806 m
trolleybus-station
Statie Soseaua Nicolae Titulescu 65, 97, 86
Stații troleibuz aprox. 1964 m
Școală
school
Scoala ambasadei Federatiei Ruse
Școli aprox. 192 m
kindergarten
Gradinita cu program normal ""Ge Ce Pic Englishkinder"
Gradinițe aprox. 235 m
school
Gradinita de copii nr.52
Școli aprox. 263 m
university
Universitatea De Stiinte Agronomice Si Medical Veterinare
Universități aprox. 1208 m
Recreere
sports-ground
Skatepark 1
Terenuri sport aprox. 215 m
park
Piața Charles de Gaulle.
Parcuri aprox. 237 m
supermarket
Mega Image
Supermarket aprox. 379 m
mall
"METROPLIS CENTER"
Mall aprox. 1782 m

Proprietăți recomandate

Detalii de contact

Abonează-te la newsletter să fii primul care primește cele mai noi recomandări de proprietăți și sfaturi de la experți.

CONTACT

Creează alertă

Salvează căutarea ca să primești pe email ultimele anunțuri publicate

Birouri de închiriat în zona Aviatorilor, Sector 1