Apartament nemobilat 3 camere Dorobanti M261

700 € / lună
8.43 € / mp / lună

Dorobanți, București

Sup. utilă / mp. utili:
83 mp
Tip prop.:
Bloc de apartamente
Niv.:
3
  • • Locație aproximativă

Descriere spațiu comercial

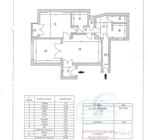
**Apartament 3 camere, 83 mp utili, Dorobanți – Etaj 3/3+Mansarda, APARTAMENTUL VA FI ZUGRĂVIT Și IGIENIZAT Pretabil prentru locuit si pentru activități comerciale, firme, birouri, cabinet, salon, sala de cursuri, Vă prezentăm spre închiriere un apartament elegant cu 3 camere, situat într-una dintre cele mai exclusiviste zone ale Capitalei – **Dorobanți**, cu **vedere directă către Calea Dorobanților**. 📍 **Detalii generale:** * Suprafață utilă: **83 mp** * Compartimentare: **decomandat/circular** – ideal pentru confort și flexibilitate în amenajare * Etaj: **3 din 3**, deasupra aflându-se **mansarda** * Clădire solidă, construită în **1939**, cu **tavane înalte** și **camere generoase**, specifice arhitecturii interbelice 🛋️ **Configurație apartament:** * **Living spațios** și luminos * **2 dormitoare** confortabile * **Bucătărie separată**, cu spațiu suficient pentru zona de gătit și depozitare * **2 băi** * **2 balcoane** – perfecte pentru relaxare sau spațiu de depozitare suplimentar ** 1 boxă la subsol de 6 mp * **Centrală termică proprie** – eficiență și costuri de întreținere reduse * **Vedere liberă** către Calea Dorobanților – un plus de valoare și lumină naturală 📍 **Localizare excelentă:** Situat în imediata apropiere a cafenelelor de lux, restaurantelor, pieței Dorobanți, școlilor și mijloacelor de transport, acest apartament este ideal atât pentru rezidență, cât și pentru investiție. NU ESTE INCADRAT IN NICI O CLASA DE RISC SAU URGENTA Vecinatati Floreasca, Capitale, Stefan cel Mare, Iancu de Hunedoara, Polona, Victoriei, Barbu Vacarescu, Aviatorilor, Primaverii, Kiseleff, Dacia, Eminescu, Liceul Caragiale
Citește mai mult Citește mai puțin

Detalii spațiu comercial

ID anunț: XE0M1402O Copiat! 275170788 Copiat!
Actualizat în: 02 Martie 2026
Suprafață utilă: 83 mp
Regim înălțime: P+3E+M
Stadiu construcție: Există

Utilități

Utilități
Curent Apă Canalizare
Comision
standard

Disponibilitate proprietate:

Imediat

Puncte de interes

Mijloace transport
tram-station
Roma
Stații tramvai aprox. 272 m
bus-station
Statia Liceul Ion Luca Caragiale, linia 131, 182, 330, 331, 335, N113, 301
Stații autobuz aprox. 406 m
metro-station
Metrou Victoriei - iesire Aviatorilor
Stații metrou aprox. 517 m
trolleybus-station
Statia Piata Romana linii : 79,86
Stații troleibuz aprox. 940 m
Școală
school
Liceul Nicolae Tonitza
Școli aprox. 173 m
school
Badulescu Aurelia (en)
Școli aprox. 387 m
kindergarten
Gradinita de copii nr.251
Gradinițe aprox. 441 m
university
SNSPA
Universități aprox. 532 m
Recreere
sports-ground
Teren sportiv
Terenuri sport aprox. 78 m
park
Parc
Parcuri aprox. 221 m
mall
"METROPLIS CENTER"
Mall aprox. 461 m
supermarket
Mega Image - IANCU DE HUNEDOARA
Supermarket aprox. 480 m

Proprietăți similare

Birou, 50 mp în Dorobanți
700 € / lună
București, Dorobanți
50 mp utili
Bloc de apartamente
P+4E
Birou, 50 mp în Dorobanți
700 € / lună
București, Dorobanți
50 mp utili
Bloc de apartamente
P+3E
Birou, 60 mp în Floreasca
750 € / lună
București, Floreasca
60 mp utili
Bloc de apartamente
P+3E

Detalii de contact

GMC Imobiliare

GMC Imobiliare Manager

5.00(5 review-uri)

GMC Imobiliare
PRO

Abonează-te la newsletter să fii primul care primește cele mai noi recomandări de proprietăți și sfaturi de la experți.

CONTACT

Creează alertă

Salvează căutarea ca să primești pe email ultimele anunțuri publicate

Birouri de închiriat în zona Dorobanți, Sector 1