ID Anunt : P226927
Agenția Residenza oferă spre închiriere un spațiu de birouri cu suprafața totală de 81 mp utili, situat în zona Nicolae Grigorescu, cu acces din Strada Gospodăriei, la aproximativ 7 minute de mers pe jos până la stația de metrou Nicolae Grigorescu.
Spațiul este amplasat la etajul 2, este singur pe etaj, iar celelalte spații din clădire sunt ocupate exclusiv de firme, oferind un mediu profesional și liniștit.
Posibiliate montare centrala pe gaze daca se doreste pana acum nu a fost nevoie.
Imobil 2022 , spatiul fiind renovat 2025.
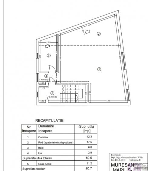
Compartimentare:
open space generos de aproximativ 45 mp
+ inca 2 camere mai mici fata de RLV ul pus la poza 6 ( circa 8 mp fiecare )
grup sanitar
Spațiul se predă exact ca în poze, este contorizat separat și se pretează pentru diverse activități: birouri, servicii, activități creative, consultanță sau alte funcțiuni comerciale.
Contractul de închiriere se înregistrează la ANAF.
Comision agenție: 50% dintr-o lună de chirie.
Pentru mai multe detalii și programarea unei vizionări, vă invităm să îl contactați pe
Agent: Alexandru Groapa
Sediul central - Timișoara
Bulevardul Victor Babeș nr. 2, 300230, Timișoara, România
Tel: +40.374.40.44.98 / Fax: +40.256.401.179
Email: suport@imobiliare.ro
Luni - Vineri 08:00 - 20:00
Punct de lucru - București: Iride Business Park, Bld. Dimitrie
Pompeiu 9-9A, Clădirea B2B,
020335, Sector 2, București, România
CONTACT
Sediul central - Timișoara
Bulevardul Victor Babeș nr. 2, 300230, Timișoara, România
Tel: +40.374.40.44.98 / Fax: +40.256.401.179
Email: suport@imobiliare.ro
Luni - Vineri 08:00 - 20:00
Punct de lucru - București: Iride Business Park, Bld. Dimitrie
Pompeiu 9-9A, Clădirea B2B,
020335, Sector 2, București, România
statie tramvai -23, 27 si 40 - PIATA TRAPEZULUI / Bd. 1 Decembrie 1918
aprox.
796 m
Statia Oficiul Postal 72 linia N103,40
aprox.
993 m
statia Fizicienilor, linia 330, N103, 23, 27.
aprox.
1043 m
Statia Splaiul Unirii 749, linia 223
aprox.
1088 m
Statia C.E.T. Sud Vitan, linia 135, 223, 202, 102, 123
aprox.
1116 m
Intrarea Serelor
aprox.
1137 m
Complex Auto Splaiul Unirii
aprox.
1142 m
Statia CET Sud, linia 123,135
aprox.
1191 m
Statia Icemenerg, linia 123
aprox.
1252 m
Statia Sc. Utilaj Transport, linia 102
aprox.
1264 m
Statia Nicolae Grigorescu 2, LiniaM3
aprox.
553 m
Metrorex. Stația Nicolae Grigorescu 1 /2(M1),(M3)(1981)
aprox.
582 m
Metrorex. Stația 1 Decembrie 1918 (M3) Lift
aprox.
771 m
Metrorex. Stația 1 Decembrie 1918(M3)(2008)
aprox.
861 m
Metrorex.Statia Titan (M1)
aprox.
1829 m
Metrorex.Stația Titan (M1)(1981)
aprox.
1941 m
Scoala Generala cu clasele I-VIII, nr. 92
aprox.
464 m
Scoala de soferi Ilioara
aprox.
469 m
Scoala Generala nr.92
aprox.
469 m
Scoala generala nr 112 "Titan"
aprox.
641 m
Scoala Generala nr 112
aprox.
665 m
Școala Generală nr. 89 - "Nicolae Labis"
aprox.
737 m
Scoala cu Clasele I-VIII Nr. 20 "Simion Mehedinti"
aprox.
884 m
Colegiul tehnic de chimie "Costin Nenitescu"
aprox.
992 m
Liceul Dante Aligheri
aprox.
1039 m
Liceul Teoretic "Dante Alighieri"
aprox.
1050 m
Scoala Nr. 200
aprox.
1240 m
Scoala Generala nr. 200
aprox.
1240 m
Liceul Teoretic "Decebal"
aprox.
1342 m
Scoala Generala nr. 54 (en)
aprox.
1344 m
Scoala Nr. 149
aprox.
1352 m
Gradinita (en)
aprox.
652 m
Gradinita Nr. 66
aprox.
662 m
Gradinita
aprox.
665 m
Gradinita nr.71
aprox.
712 m
Gradinita de copii nr. 211
aprox.
777 m
Gradinita nr. 211
aprox.
777 m
Gradinita numarul 23
aprox.
781 m
Gradinita de copii nr. 196
aprox.
887 m
Gradinita nr. 240
aprox.
977 m
Gradinita de copii nr.241 "Pestisorul de aur"
aprox.
996 m
Gradinita de copii nr 196
aprox.
1059 m
Gradinita 196
aprox.
1066 m
Gradinita de copii nr. 196
aprox.
1066 m
Gradinita Nr. 71
aprox.
1089 m
Gradinita de copii nr.240
aprox.
1092 m
Universitatea "Gheorghe Cristea"
aprox.
1564 m
BI & DI
aprox.
371 m
Profi
aprox.
415 m
Profi
aprox.
441 m
Profi
aprox.
529 m
Mega Image
aprox.
814 m
BILLA - Titan
aprox.
947 m
Galeriile comerciale Petaluda
aprox.
1088 m
Supermarket
aprox.
1088 m
Mega Image
aprox.
1091 m
Lidl Fizicienilor
aprox.
1163 m
Lidl
aprox.
1201 m
Profi
aprox.
1402 m
Shop&Go Nicolae Grigorescu 20
aprox.
1426 m
Penny
aprox.
1434 m
Mega Image
aprox.
1575 m
Parcare
aprox.
232 m
Parcare
aprox.
236 m
Parcare
aprox.
240 m
Parcare
aprox.
245 m
Parcare
aprox.
273 m
Parcare
aprox.
280 m
Parcare
aprox.
286 m
Parcare
aprox.
289 m
Parcare
aprox.
301 m
Parcare
aprox.
307 m
Parcare
aprox.
353 m
Parcare
aprox.
366 m
Parcare
aprox.
370 m
Parcare
aprox.
382 m
Parcare
aprox.
430 m
Parc
aprox.
237 m
Loc de Joaca
aprox.
388 m
Parc
aprox.
450 m
Livada
aprox.
459 m
Părculeț
aprox.
507 m
Parc
aprox.
573 m
Park (en)
aprox.
583 m
Parc
aprox.
597 m
Parc
aprox.
605 m
Parc
aprox.
627 m
Playground (en)
aprox.
694 m
Parc
aprox.
694 m
Parc
aprox.
700 m
Parc
aprox.
707 m
Parc
aprox.
708 m
Teren sportiv
aprox.
529 m
Teren sportiv
aprox.
555 m
Teren sportiv
aprox.
1042 m
Teren sportiv
aprox.
1050 m
Teren de Sport
aprox.
1064 m
Teren Sintetic
aprox.
1180 m
Teren sportiv
aprox.
1245 m
Teren sportiv
aprox.
1245 m
Teren sportiv
aprox.
1252 m
Teren sportiv
aprox.
1277 m
Teren sportiv
aprox.
1277 m
Teren sportiv
aprox.
1304 m
Teren sportiv
aprox.
1325 m
Teren sportiv
aprox.
1335 m
Teren sportiv
aprox.
1367 m
Policlinica veterinara
aprox.
396 m
Spital de Recuperare pentru copii cu handicap neuromotor
aprox.
775 m
Dispensar
aprox.
1144 m
Spitalul de Psihiatrie "Dr. Constantin Gorgoș"
aprox.
1350 m
Titan neuro-clinic
aprox.
1671 m
Hiperclinica Medlife Titan
aprox.
1751 m
Policlinica Med Life
aprox.
1765 m
Hyperclinica Medlife
aprox.
1776 m
Sensiblu
aprox.
435 m
Farmacia City +
aprox.
460 m
Sensiblu
aprox.
533 m
Farmacia Belladona Non-Stop
aprox.
539 m
Farmacia Remedio
aprox.
553 m
Farmacia Minerva
aprox.
565 m
Beta Farmaceutica
aprox.
583 m
Farmacia Catena
aprox.
583 m
Farmacia Sante
aprox.
583 m
Plafar
aprox.
603 m
Farmacia Dona 187
aprox.
606 m
Catena
aprox.
630 m
Dona
aprox.
630 m
Centrofarm
aprox.
646 m
Catena Farmacie
aprox.
756 m
New York Pizza
aprox.
486 m
Shaorma Non-Stop
aprox.
518 m
McChiken
aprox.
539 m
Fornetti
aprox.
561 m
Shaorma Salajan
aprox.
617 m
Restaurant Pizzerie
aprox.
617 m
Casa di Angelo
aprox.
621 m
Shaorma Trapezului (Non-Stop)
aprox.
748 m
Terasa Cara (en)
aprox.
815 m
Terasa Cara
aprox.
815 m
Cetatea Berarilor
aprox.
1065 m
Savi
aprox.
1137 m
Trattoria Verdi
aprox.
1188 m
L'Incontro (en)
aprox.
1194 m
Cantina Verde
aprox.
1198 m
Alexa
aprox.
629 m
La Bodega
aprox.
747 m
Bistro Burghez
aprox.
776 m
Gnome Bar
aprox.
1905 m
Asa Cafe
aprox.
1304 m
BRD
aprox.
437 m
ING Office Theodor Pallady
aprox.
443 m
UniCredit Tiriac - Grigorescu Branch (en)
aprox.
448 m
Pireus Bank
aprox.
450 m
Garanti Bank
aprox.
452 m
UniCredit Bank - Ag. Nicolae Grigorescu
aprox.
459 m
BancPost Salajan
aprox.
462 m
Banca Transilvania - Ag. Pallady
aprox.
524 m
Raifeissen Bank - Agentia Titan
aprox.
561 m
Millenium Bank
aprox.
572 m
CEC Bank
aprox.
624 m
B.R.D.
aprox.
629 m
Alpha Bank - Pallady
aprox.
631 m
BCR Pallady
aprox.
637 m
OTP BANK
aprox.
824 m
Dacă te muți în zona Titan Parc - Grigorescu și preferi să călătorești cu metroul spre birou, atunci îți recomandăm să te orientezi spre blocurile aflate în apropierea intersecției dintre Strada Liviu Rebreanu și Bulevardul Nicolae Grigorescu. Aici găsești stația de metrou Titan de unde poți ajunge în 10-15 minute la Piața Unirii, fără să fie nevoie să schimbi magistrala. Dacă lucrezi în zona de nord a orașului, de la Piața Unirii ai legătură cu magistrala M2 care te va transporta rapid până în Pipera, evitând astfel traficul de la orele de vârf. În cazul în care alegi o garsonieră sau un apartament în zona mall-ului ParkLake Shopping Center, vei ajunge pe jos în doar câteva minute la stația de metrou Dristor, iar dacă ești interesat, mai degrabă, de locuințele din apropierea Pieței Titan vei putea lua metroul de la stația Nicolae Grigorescu. Pe arterele principale ai la dispoziție și mai multe tramvaie și autobuze. Printre acestea amintim autobuzul 311 care are capătul la Piața Rosetti, la doi pași de km 0 al Capitalei, și tramvaiul 27 care ajunge în zona Parcului Carol I, a Patriarhiei Române și la Piața Unirii. Consultă harta pentru a afla unde sunt poziționate stațiile mijloacelor de transport în comun din zona Titan Parc.
Zona Titan Parc - Grigorescu este ideală pentru familiile cu copii având în vedere faptul că aici găsim atât grădinițe, cât și școli gimnaziale și chiar și Liceul Teoretic "Dante Alighieri". Acesta din urmă are clase bilingve cu predare în limba italiană. În plus, dispune de o sală de sport și de un bazin de înot. Vezi aici care sunt cele mai apropiate unități de învățământ în zona în care îți cauți noua locuință.
Locuitorii din această zonă își fac cumpărăturile în mall-ul ParkLake Shopping Center, care include un hipermarket Carrefour, sau de la Piețele Titan, Matei Ambrozie și Râmnicu Sărat. Dacă te muți aici, ai la dispoziție și Complexul Comercial Galeriile Titan, care a fost modernizat cu câțiva ani în urmă și se află în imediata vecinătate a stației de metrou Titan. Poți să ajungi destul de ușor cu mașina și la hipermarketul Auchan Vitan și la Piața Bobocica, ambele situate la intersecția dintre Bulevardul Râmnicu Sărat, Calea Vitan și Bulevardul Energeticienilor. La fel, în câteva minute poți să ajungi la magazinul Lidl de pe Strada Fizicienilor sau la complexul comercial de pe Șoseaua Mihai Bravu, unde găsești un magazin Kaufland, pet shop-uri Maxi Pet și Animax, alături de alți retaileri. Găsești pe hartă poziționarea piețelor și centrelor comerciale unde îți poți face cumpărăturile dacă locuiești în zona Titan Parc - Grigorescu.
Dacă te muți în această zonă și te gândești deja la ce vei face cu mașina, atunci îți recomandăm să verifici la Direcția Generală Impozite și Taxe Locale Sector 3 dacă ai posibilitatea de a închiria un loc de parcare pentru a evita eventualele probleme cu care ai putea să te confrunți. Încearcă să eviți Bulevardul Camil Ressu la orele de vârf, dacă te deplasezi cu mașina prin oraș. Traficul ajunge să fie destul de îngreunat. Aruncă o privire pe hartă și vezi unde găsești principalele parcări din zonă.
Zona Titan Parc - Grigorescu este ideală dacă ești o persoană foarte activă, punând la dispoziția locuitorilor numeroase opțiuni de petrecere a timpului liber. Poți merge dimineața la alergat în Parcul Alexandru Ioan Cuza, unul dintre cele mai mari din Capitală, cu o suprafață de circa 85 de hectare, sau poți face plimbări lungi aici în weekend. Ai copii? Aceștia vor fi cu siguranță încântați să hrănească rațele de pe Lacului Titan. După mergi în ParkLake Shopping Center pentru cumpărături, la masă sau pentru alte activități, Intri direct din parc. Tot prin Parcul Alexandru Ioan Cuza (fostul Titan sau IOR) te poți plimba și cu bicicleta. Iarna poți să te dai cu patinele pe gheață, în zonele special amenajate. Ai la dispoziție Complexul Comercial Galeriile Titan, modernizat cu câțiva ani în urmă, chiar lângă parc, iar vara poți face o baie în water park-ul aflat vis-a-vis de Piața Titan. Află, mai jos, ce alte opțiuni de petrecere a timpului liber ai dacă locuiești în această zonă.
Vrei să te muți în zona Titan Parc - Grigorescu și nu știi care sunt cele mai apropiate unități sanitare? La intersecția Bulevardului Nicolae Grigorescu cu Strada Liviu Rebreanu găsești Hyperclinica MedLife Titan. Nu departe de aceasta se află și Policlinica Titan. Află de pe hartă cum ajungi aici. Găsești și alte clinici private din apropiere.
Ai câteva restaurante și fast food-uri de-a lungul Bulevardului Nicolae Grigorescu și oricând te poți opri în drum spre casă la mall-ul ParkLake care include un food court cu mâncare potrivită pentru toate gusturile. Alte fast food-uri mai găsești în zona Dristor, la intersecția dintre Șoseaua Mihai Bravu, Calea Dudești și Bulevardul Camil Ressu. Pentru că ai la dispoziție mai multe stații de metrou, poți să ajungi ușor la terasele, restaurantele și cafenelele din centru. Aruncă o privire pe hartă și vezi unde poți să mănânci în oraș, dacă te muți în zona Titan Parc - Grigorescu.
Găsești cele mai multe sucursale bancare și ATM-uri în apropiere de Piața Titan și de stația de metrou Titan. Consultă harta pentru mai multe detalii.
Înainte să pleci...
Ești sigur că ai văzut și aceste proprietăți?
650 € / lună
București, P-ța Alba Iulia
70 mp utili
Clădire de birouri
P+3E
750 € / lună
București, Calea Călărașilor
95 mp utili
Clădire de birouri
P+7E
680 € / lună
București, P-ța Alba Iulia
80 mp utili
Casă/Vilă
2E
900 € / lună
București, Theodor Pallady
100 mp utili
Clădire de birouri
2010
900 € / lună
București, P-ța Alba Iulia
82 mp utili
Casă/Vilă
1E
998 € / lună
București, P-ța Alba Iulia
70 mp utili
Clădire mixtă
2E
Creează alertă
Salvează căutarea ca să primești pe email ultimele anunțuri publicate
Birouri cu 3 camere de închiriat în zona Nicolae Grigorescu, Sector 3
Cere detalii prin email
*
*
*
*
Detaliile tale de contact vor fi partajate cu Residenza