Cladirea de birouri construita in 2013 pastrand elementele arhitecturale neoclasice particulare arterei localizate in proximitatea Pietei Unirii - zona Mosilor Vechi, oferta posibilitatea acomodarii unui sediu de companie sau activitati cu public.
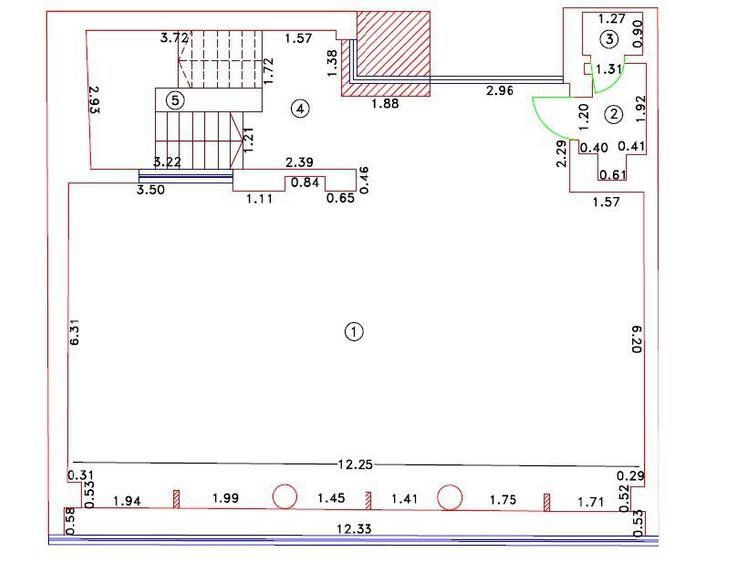
Spatiu disponibil: etaj 5: 97mp compus din spatiu deschis, toaleta, bucatarie. Posibila reconfigurare in functie de tipul activitatii. Inaltimea spatiului variaza intre 2.4 si 1.7m.
Suplimentar: subsol - pretabil depozitare, disponibil in functie de solicitare.
Pretul chiriei pentru mansarda este de 950 eur/ luna + TVA, suplimentar se vor achita utilitatile, contract salubrizare si cota mentenanta lift.
Cladirea dispune de climatizare (unitati split A/C, incalzire centrala), lift, acces card si interfon, retea date, performanta energetica ridicata. Parcare libera in vecinatatea cladirii sau in cadrul Cocor Parking: 90 eur/ luna/ unitate +TVA (1 minut mers de proprietate).
Accesul catre servicii transport se face rapid, distanta de mers pentru statie STB/ Metrou: 2/ 3 min ([M] Unirii).
Utilitati contorizate separat/ pro-rata, costurile fiind disponibile pentru evaluare.
Consultanta oferita pe intregul parcurs al procesului de relocare/ acomodare birou (analiza comparativa oferte, vizionari, clauze contractuale, servicii suport) este gratuita.
Sediul central - Timișoara
Bulevardul Victor Babeș nr. 2, 300230, Timișoara, România
Tel: +40.374.40.44.98 / Fax: +40.256.401.179
Email: suport@imobiliare.ro
Luni - Vineri 08:00 - 20:00
Punct de lucru - București: Iride Business Park, Bld. Dimitrie
Pompeiu 9-9A, Clădirea B2B,
020335, Sector 2, București, România
CONTACT
Sediul central - Timișoara
Bulevardul Victor Babeș nr. 2, 300230, Timișoara, România
Tel: +40.374.40.44.98 / Fax: +40.256.401.179
Email: suport@imobiliare.ro
Luni - Vineri 08:00 - 20:00
Punct de lucru - București: Iride Business Park, Bld. Dimitrie
Pompeiu 9-9A, Clădirea B2B,
020335, Sector 2, București, România
Scoala cu clasele I-VIII, Nr. 73 Barbu Stefanescu Delavrancea
aprox.
609 m
Colegiul National "Matei Basarab"
aprox.
724 m
Goethe Institut (en)
aprox.
728 m
Amfiteatrul Sahia
aprox.
783 m
Grup Școlar "Dragomir Hurmuzescu"
aprox.
821 m
Elohim Academi
aprox.
825 m
Liceul Teoretic "Ion Creanga" (en)
aprox.
830 m
Schiller Institut
aprox.
851 m
Institutul Bancar Român
aprox.
474 m
Facultatea de Chimie
aprox.
564 m
Facultatea de Istorie
aprox.
590 m
Facultatea de Stiinte
aprox.
603 m
Facultatea de litere (en)
aprox.
608 m
Facultatea de Limbi si Literaturi Straine
aprox.
631 m
Facultatea de Matematica-Informatica
aprox.
649 m
UAUIM -Universitatea de Arhitectura si Urbanism Ion Mincu
aprox.
676 m
Facultatea de Teologie Ortodoxa
aprox.
685 m
Academia de Studii Economice
aprox.
745 m
Academia de Studii Economice: Facultatea de Management - Administratie Publica
aprox.
746 m
Facultatea de Farmacie
aprox.
865 m
Facultatea de Farmacie/Pharmacy Faculty
aprox.
867 m
Palatul Fundației Universitare "Carol I"
aprox.
1133 m
Facultatea de Stiinte Politice
aprox.
1220 m
Gradinita Prikindel
aprox.
721 m
Cresa Micii Poznasi
aprox.
765 m
Gradinita nr.4 "Lizuca"
aprox.
838 m
Gradinita nr.192, "Pisicile Aristocrate"
aprox.
865 m
Gradinita nr. 192 (Pisicile aristocrate)
aprox.
878 m
Gradinita Barba Cot
aprox.
890 m
Gradinita nr.203 (fosta Clementa)
aprox.
1145 m
Gradinita nr. 203 program prelungit
aprox.
1169 m
Gradinita de Copii nr.30 "Copiii soarelui
aprox.
1245 m
Gradinita Magica
aprox.
1334 m
Gradinita nr.224, "Vestitorii Primaverii"
aprox.
1351 m
Gradinita nr. 224
aprox.
1359 m
Gradinita "Scufita Rosie"
aprox.
1419 m
Gradinita numarul 257
aprox.
1431 m
Gradinita nr. 73
aprox.
1512 m
Cocor
aprox.
63 m
BILLA - Cocor
aprox.
74 m
Carrefour Unirii Non-Stop
aprox.
253 m
Km 0
aprox.
263 m
Mega Image
aprox.
264 m
Carrefour Unirii
aprox.
264 m
dm
aprox.
280 m
Mag.Victoria
aprox.
636 m
Carrefour Express
aprox.
681 m
Mega Image Paleologu
aprox.
809 m
Mega Image
aprox.
827 m
Pravalia Maestrului
aprox.
841 m
Mega Image
aprox.
870 m
ClicMarket
aprox.
990 m
MGV Supermarket Zeno
aprox.
1071 m
Bucharest, Calea Vitan nr. 8, Bl V51, near VITAN Mall
aprox.
1798 m
Parcare
aprox.
63 m
Parcare
aprox.
91 m
Parcare cu plata
aprox.
99 m
Parcare privata
aprox.
123 m
Parcare cu plata
aprox.
128 m
Parcare
aprox.
265 m
Parcare
aprox.
313 m
Parcare privata
aprox.
316 m
Parcare
aprox.
330 m
Parcare
aprox.
334 m
Parcare
aprox.
353 m
Parcare
aprox.
360 m
Parcare
aprox.
371 m
Parcare
aprox.
420 m
Parcare
aprox.
424 m
Piata Timpului
aprox.
34 m
Piata Roma
aprox.
137 m
Piața Sfântul Anton
aprox.
183 m
Piata Universitatii
aprox.
590 m
Piata Rosetti
aprox.
615 m
Piata Bibescu
aprox.
647 m
Piata Natiunilor Unite
aprox.
667 m
Piața Drapelului (Tricolorului)
aprox.
701 m
Piata Revolutiei
aprox.
1066 m
Piata Bucur
aprox.
1083 m
Piața Constituției
aprox.
1096 m
Piata Latina
aprox.
1111 m
Piața Regina Maria
aprox.
1533 m
Piața Romană
aprox.
1897 m
Parc
aprox.
185 m
Parcul Sf. Gheorghe
aprox.
194 m
Sfantul Gheorghe
aprox.
205 m
Parc
aprox.
211 m
Parc
aprox.
276 m
Parc
aprox.
278 m
Parc
aprox.
279 m
Parc
aprox.
331 m
Parc
aprox.
347 m
Parcul Unirii
aprox.
368 m
Piata Unirii
aprox.
368 m
Parc
aprox.
375 m
Parc
aprox.
377 m
Parc
aprox.
401 m
Parc
aprox.
403 m
Teren sportiv
aprox.
568 m
Teren sportiv
aprox.
757 m
Teren sportiv
aprox.
1092 m
Teren sportiv
aprox.
1288 m
Teren sportiv
aprox.
1667 m
Teren sportiv
aprox.
1772 m
Teren sportiv
aprox.
1773 m
Baza sportiva Universitatea Bucuresti
aprox.
1782 m
Teren sportiv
aprox.
1797 m
Teren sportiv
aprox.
1828 m
teren tenis
aprox.
1838 m
Teren sportiv
aprox.
1867 m
Teren sportiv
aprox.
1876 m
Farmacia Dona 19
aprox.
143 m
Simidon
aprox.
160 m
Farmacia Dona
aprox.
162 m
Sensiblu
aprox.
259 m
General Smart Farm
aprox.
319 m
Sensiblu
aprox.
345 m
Farmacon CO Impex
aprox.
376 m
Plafar
aprox.
380 m
Centro Farm
aprox.
384 m
Farmacia 48
aprox.
397 m
Farmacia Coltea
aprox.
418 m
Farmacia Belladonna 54
aprox.
423 m
Farmacia 2NA
aprox.
487 m
Gema Farm Impex
aprox.
538 m
Reteta
aprox.
560 m
Centru medical MEDSANA
aprox.
282 m
MediDent
aprox.
321 m
Medident Dental X-ray
aprox.
345 m
Art Implant
aprox.
389 m
Spitalul Colțea
aprox.
397 m
WORLD CLINIC - O viata fara alergii ! (en)
aprox.
449 m
Spitalul Clinic Prof. Dr. Doc Ovidiu Marina
aprox.
459 m
Institutul National de Recuperare
aprox.
466 m
Clinica de Stomatologie
aprox.
585 m
Medlife Unirii
aprox.
726 m
Spectrum Clinique - Clinica de Oftalmologie
aprox.
732 m
Spitalul Prof. Dr. C. Angelescu
aprox.
763 m
Cabinet stomatologic (en)
aprox.
769 m
Spitalul Prof. Dr. C-Tin Angelescu
aprox.
773 m
Policlinica Ministerului de Interne
aprox.
813 m
Kulturhaus
aprox.
49 m
Mojo
aprox.
153 m
Elephant Pub
aprox.
160 m
Offside Pub
aprox.
168 m
Atelierul Mecanic
aprox.
177 m
Half Time
aprox.
179 m
Fire Club
aprox.
194 m
Manasia Hub
aprox.
200 m
Legacy
aprox.
217 m
100 de beri
aprox.
220 m
Pebeo
aprox.
227 m
Gang Lads
aprox.
236 m
Mike`s Pub
aprox.
243 m
Geobar
aprox.
243 m
Beer o'clock
aprox.
246 m
Subway Cocor
aprox.
81 m
Lunch Time
aprox.
95 m
Li-Wu Vietnamese Restaurant
aprox.
110 m
Art Cafe (en)
aprox.
127 m
Lacrimi si Sfinti
aprox.
128 m
Fast Food
aprox.
154 m
Latin Pizza
aprox.
157 m
The Gang Underground Club
aprox.
164 m
Pitta Fan
aprox.
165 m
Vecchio 1812
aprox.
175 m
BORSALINO
aprox.
183 m
Bazaar
aprox.
190 m
La Mama
aprox.
194 m
Corks
aprox.
195 m
Curtea Voievozilor
aprox.
198 m
ART Cafe
aprox.
138 m
Tucano Cofee
aprox.
158 m
Testa Rossa Caffebar
aprox.
202 m
La delicii
aprox.
228 m
Iguana Cafe
aprox.
234 m
Bruno wine and coffe shop
aprox.
236 m
The Urbanist
aprox.
247 m
DDB caffe
aprox.
248 m
Starbucks
aprox.
261 m
Coco Bongo
aprox.
262 m
Godot
aprox.
281 m
La Muse
aprox.
284 m
Bistro Latina
aprox.
287 m
Simbio
aprox.
299 m
Deko Cafe
aprox.
299 m
Sankt Petersburg Pub
aprox.
145 m
City Grill Covaci
aprox.
149 m
Vecchio
aprox.
161 m
Harley
aprox.
182 m
The Elbow Room
aprox.
183 m
Up Club
aprox.
198 m
1974 Niste Domni si Fiii
aprox.
204 m
Network Lounge
aprox.
209 m
Beraria Bavareza Fritz
aprox.
220 m
Roter Heller
aprox.
220 m
Galliano Club
aprox.
234 m
Absinteria Sixtina
aprox.
236 m
The Glam Club
aprox.
247 m
Pure
aprox.
251 m
Chat noir
aprox.
262 m
Banca Transilvania
aprox.
133 m
Unicredit Èširiac Bank
aprox.
133 m
Raiffeisen Bank
aprox.
136 m
Banca Transilvania - Ag. Lipscani
aprox.
153 m
BRD Unirii
aprox.
155 m
Banc Post / BRD
aprox.
155 m
ING Self Bank
aprox.
155 m
Banca Transilvania - Ag. Bratianu
aprox.
157 m
Banca Transilvania - Ag. Coposu
aprox.
169 m
Garanti Bank
aprox.
173 m
ING Unirii
aprox.
185 m
Magazin Intersport
aprox.
185 m
Sucursala Raiffeisen Bank
aprox.
185 m
Raiffeisen Bank
aprox.
185 m
BCR
aprox.
192 m
Stațiile de metrou aflate chiar în "inima" acestei zone, în Piața Unirii, îți oferă posibilitatea de a călători rapid, evitând aglomerația din trafic. Stația Piața Unirii 1 oferă conexiuni la magistrala M1 Dristor - Pantelimon și la magistrala M3 Preciziei - Anghel Saligny. Aceasta este conectată de stația Piața Unirii 2, aflată pe magistrala M2 Berceni - Pipera printr-un pasaj. Astfel, poți ajunge chiar și în mai puțin de 10 minute în zona Politehnică sau la Piața Victoriei și în circa 15 minute în Pipera, unul dintre principalii poli de business ai orașului. Cu autobuzul 104 poți ajunge în cartierul Pantelimon, iar cu tramvaiul 47 în cartierul Rahova. Consultă harta pentru a localiza stațiile mijloacelor de transport în comun.
Printre unitățile de învățământ din această zonă se numără Colegiul Național "Mihai Eminescu", Colegiul Național "Ion Creangă", Colegiul Național de Arte "Dinu Lipatti" și Facultatea de Teologie Ortodoxă "Justinian Patriarhul". Tot aici își are sediul și Institutul Bancar Român care ajută la specializarea personalului din sectorul financiar-bancar. Ajungi foarte repede din Piața Unirii, chiar și pe jos, la Palatul Universității care găzduiește sediile mai multor facultăți. Găsește pe hartă și cele mai apropiate grădinițe, școli și licee de viitoarea ta locuință.
Dacă te vei muta în această zonă, vei avea la doi pași de casă centrul comercial Unirea Shopping Center, care găzduiește, printre altele, magazinele mai multor branduri de modă. În spatele acestuia vei găsi un hipermarket Carrefour. Diverse magazine pot fi găsite și în Centrul Vechi. Pe Strada Lipscani poți să vizitezi una dintre cele mai frumoase librării din Capitală, Cărturești Carusel. Magazin Cocor, care a fost modernizat recent, poate fi și el o alternativă. În imediata sa vecinătate se află și noul magazin București. Pentru mai multe opțiuni, poți merge la București Mall, cel mai apropiat centru comercial de acest tip. Consultă harta pentru a vedea ce alte opțiuni ai în zona Unirii și în împrejurimi.
Lângă Centrul Comercial Unirea Shopping Center vei găsi o parcare supraterană unde îți poți lăsa mașina contra-cost. Dacă te gândești să te muți în zona Piața Unirii îți amintim, de asemenea, că traficul pe Bulevardul Unirii este destul de îngreunat la orele de vârf. Nu uita, totodată, că traficul rutier este închis uneori în Piața Constituției pentru organizarea unor evenimente și concerte. Pentru închirierea unui loc de parcare în apropierea locuinței de care ești interesat va trebui să apelezi la reprezentanții autorităților locale de pe sectorului în care se află aceasta (Direcția Generală Impozite și Taxe Locale Sector 3, Direcția Mobilitate Urbană Sector 4, Serviciul Parcaje Scop Reședință Sector 5). Consultă harta pentru a localiza mai ușor principalele parcări din zona Unirii.
Dacă decizi să te muți într-o locuință în zona Unirii, atunci vei avea la dispoziție numeroase opțiuni de petrecere a timpului liber. Chiar în Piața Unirii vei găsi unul dintre binecunoscutele obiective ale orașului, Hanul lui Manuc. Construit în 1808 acesta a fost renovat în urmă cu câțiva ani și găzduiește, în prezent, mai multe cafenele, restaurante și mici magazine. Acesta se află chiar la marginea Centrului Vechi al Capitalei, principalul punct de atracție pentru iubitorii vieții de noapte. Tot aici găsești și câteva obiective turistice importante - Palatul Voievodal Curtea Veche, Palatul BNR, Muzeul Național de Istorie a României și Muzeul Municipal București. Parcurile Izvor și Unirii sunt principalele spații verzi din această zonă. Nu trebuie să uiți însă că nu va trebui să mergi mult pentru a ajunge și la Grădina Cișmigiu sau în Parcul Tineretului. Poți merge, totodată, la un spectacol la Teatrul Evreiesc de Stat sau poți participa la evenimentele și la concertele care se organizează periodic în Piața Constituției de lângă Palatul Parlamentului. Poți lua parte la diverse evenimente și vizitând Biblioteca Națională a României, o altă clădire reprezentativă din această zonă. Ajungi foarte ușor, pe jos sau cu metroul, la Teatrul Național București în fața căruia găsești și un mic parc. Iar dacă toate acestea nu sunt de ajuns, atunci o plimbare pe Calea Victoriei și o vizită la numeroasele obiective de interes aflate de-a lungul ei cu siguranță te vor satisface. Cea mai bună parte este că această arteră de circulație se închide circulației rutiere uneori și devine strict pietonală. În plus, aici ai la dispoziție una dintre puținele piste dedicate bicicliștilor din oraș. Consultă harta pentru a vedea ce alte opțiuni de petrecere a timpului liber vei avea odată ce te vei muta în zona Unirii.
Dacă te vei muta în această zonă, vei putea apela în caz de nevoie la câteva clinici private. Printre acestea amintim Hiperclinica MedLife Unirii, clinica de stomatologie DentaLife și Medas Unirea. Unele dintre cele mai apropiate spitale la care vei avea acces vor fi Spitalul Cinic Colțea din Piața Universității și Spitalul Clinic Prof. Dr. Theodor Burghele, aflat în apropierea Palatului Parlamentului. Vezi pe hartă ce alte unități medicale se află în zona Unirii și în vecinătatea sa.
Centrul Vechi îți oferă numeroase opțiuni la acest capitol, iar câteva fast food-uri ai la dispoziție la parterul centrului comercial Unirea Shopping Center, situat chiar în Piața Unirii. Găsești câteva terase și pe malul Dâmboviței, lângă Biblioteca Națională a României. Dacă vrei să schimbi peisajul, poți să ajungi destul de repede cu mașina sau cu mijloacele de transport în comun la București Mall sau poți încerca una dintre numeroasele terase din Piața Alba Iulia sau de pe Bulevardul Decebal. Mai mult, ai relativ aproape și Calea Victoriei, perfectă pentru promenadă, dar și pentru un popas la restaurant. Consultă harta și află care sunt cele mai apropiate localuri de viitoarea ta locuință.
Găsești mai multe ATM-uri și sucursale bancare în Piața Unirii, unele dintre ele chiar în incinta complexului comercial Unirea Shopping Center. Vezi care este cel mai potrivit pentru tine de pe hartă.
Înainte să pleci...
Ești sigur că ai văzut și aceste proprietăți?
418 - 1.147 € / lună
București, P-ța Unirii
100 mp utili
Clădire de birouri
10E
950 € / lună
București, P-ța Unirii
70 mp utili
Clădire de birouri
8E
850 € / lună
București, Unirii
90 mp utili
Clădire de birouri
900 € / lună
București, Universitate
100 mp utili
Clădire de birouri
7E
902 € / lună
București, Universitate
96 mp utili
Clădire de birouri
418 - 1.080 € / lună
București, Unirii
100 mp utili
Clădire de birouri
10E
Creează alertă
Salvează căutarea ca să primești pe email ultimele anunțuri publicate
Birouri cu 2 camere de închiriat în zona P-ța Unirii, Sector 3
Cere detalii prin email
*
*
*
*
Detaliile tale de contact vor fi partajate cu Art Biro