8

Popa Soare 9, Unirii - comision 0%, reprezentam proprietarul!

20.000 € + TVA / lună
19.34 € + TVA / mp / lună

Unirii, București

Sup. utilă / mp. utili:
1.034 mp
Tip prop.:
Casă/Vilă
Niv.:
1
An constr.:
2021 (În construcție)
  • • Comision 0%
  • • Locație exactă

Descriere spațiu comercial

Spatii de birouri de inchiriat in sectorul 3, la 90 de metri de Calea Calarasilor, in zona cuprinsa intre Piata Unirii (900 metri) si Hala Traian (600 metri). Cladirea este situata la 500 de metri de Bulevardul Carol I – Bursa de Valori Bucuresti, respectiv 1 km de Piata Universitatii. Vecinatatile cladirii includ imobile istorice cu destinatie rezidentiala sau comerciala (birouri, restaurante), institutii (Inspectoratul de Stat in Constructii), cladiri de birouri etc. Accesul cu automobilul se realizeaza usor din marile bulevarde ale zonei (Calea Calarasilor, Bulevardul Carol I), venind dinspre Piata Unirii, Piata Universitatii, inelul median Mihai Bravu etc. Zona este deservita de linii de tramvai si autobuz, cu statii amplasate la 2-5 minute de mers de cladire. Cea mai apropiata statie de metrou este la Piata Unirii, fiind accesibila in 10-12 minute de mers. Popa Soare 9 este o cladire istorica, reconsolidata si refacuta pe exterior, disponibila spre folosinta in termen de aproximativ 3 luni de la data semnarii contractului de inchiriere. Cladirea este desfasurata pe subsol, parter, etaj 1 si mansarda, avand o suprafata utila totala de 1.034 m2, cu aproximativ 320-350 m2 pe etaj. Layout-ul interior este prevazut sa includa zone compartimentate si zone deschise, conform partitiilor disponibile in planurile de nivel ale cladirii.
Citește mai mult Citește mai puțin

Detalii spațiu comercial

ID anunț: X5F8040TJ Copiat! 1136532 Copiat!
Actualizat în: 12 Septembrie 2025
Nume proprietate: Popa Soare 9
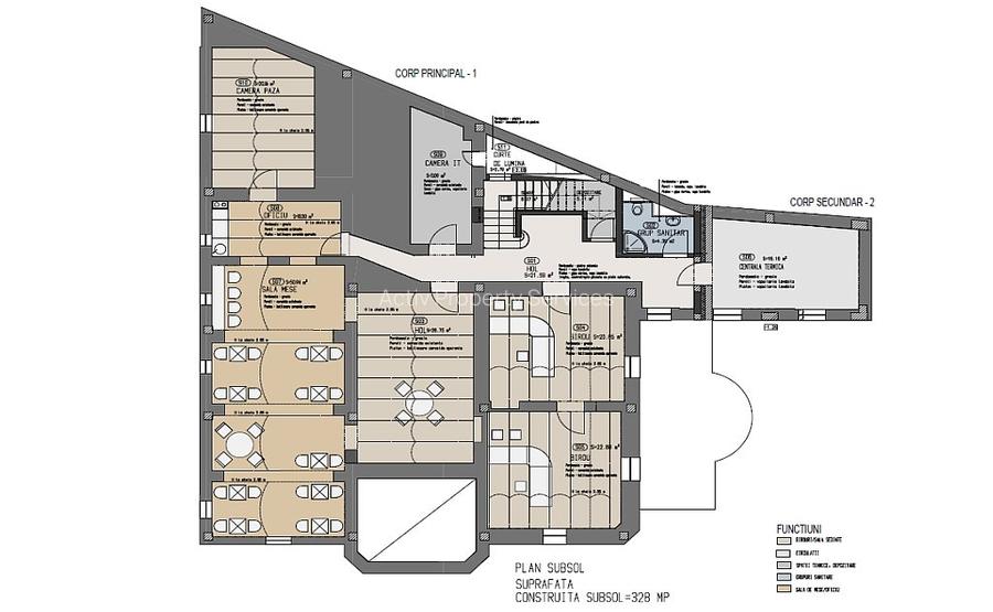
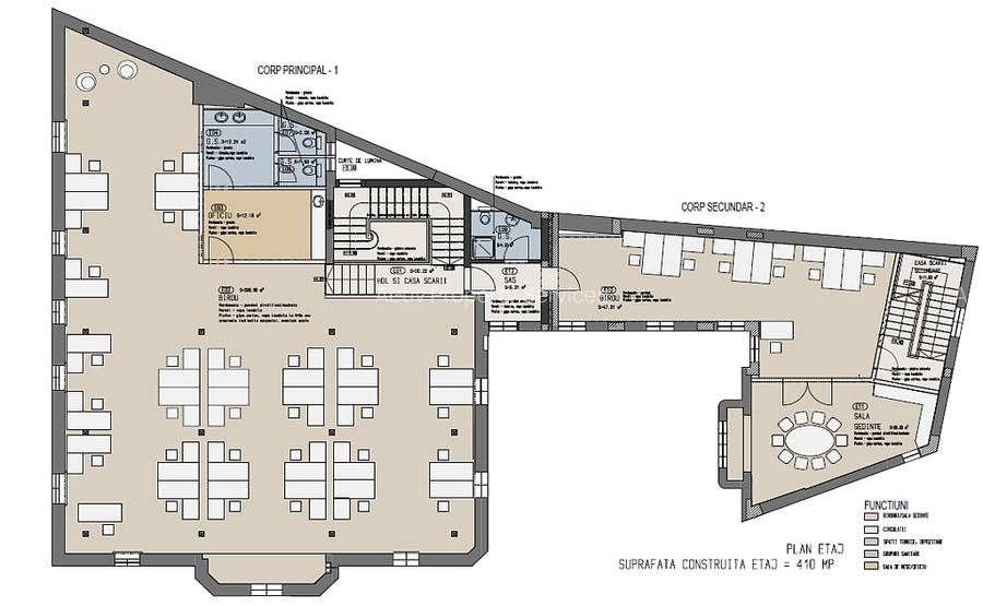
Regim înălțime: 1S+P+1E+M
Stadiu construcție: În construcție

Utilități

Comision
0%

Vecinătăți:

Calea Calarasilor
Piata Unirii
Hala Traian

Alte detalii:

Spatii de birouri de inchiriat in sectorul 3, la 90 de metri de Calea Calarasilor, in zona cuprinsa intre Piata Unirii (900 metri) si Hala Traian (600 metri).

Cladirea este situata la 500 de metri de Bulevardul Carol I – Bursa de Valori Bucuresti, respectiv 1 km de Piata Universitatii.

Vecinatatile cladirii includ imobile istorice cu destinatie rezidentiala sau comerciala (birouri, restaurante), institutii (Inspectoratul de Stat in Constructii), cladiri de birouri etc.

Accesul cu automobilul se realizeaza usor din marile bulevarde ale zonei (Calea Calarasilor, Bulevardul Carol I), venind dinspre Piata Unirii, Piata Universitatii, inelul median Mihai Bravu etc.

Zona este deservita de linii de tramvai si autobuz, cu statii amplasate la 2-5 minute de mers de cladire. Cea mai apropiata statie de metrou este la Piata Unirii, fiind accesibila in 10-12 minute de mers.

Popa Soare 9 este o cladire istorica, reconsolidata si refacuta pe exterior, disponibila spre folosinta in termen de aproximativ 3 luni de la data semnarii contractului de inchiriere.

Cladirea este desfasurata pe subsol, parter, etaj 1 si mansarda, avand o suprafata utila totala de 1.034 m2, cu aproximativ 320-350 m2 pe etaj.

Layout-ul interior este prevazut sa includa zone compartimentate si zone deschise, conform partitiilor disponibile in planurile de nivel ale cladirii.

Subspații disponibile

Spatiu de inchiriat

Mai multe detalii despre aceasta oferta in link-ul de mai jos: spatii-de-birouri.ro/inchiriere-vanzare/bucuresti-popa-soare-9 Pe platforma SPATII-DE-BIROURI.RO gasiti peste 400 de cladiri de birouri din Bucuresti, cu toate informatiile actualizate si comision 0% (reprezentam proprietarii).

Chirie / u.m. / lună:
19.34236 EUR/mp (total: 20000.00024 EUR/lună) + TVA, Comision 0% cumpărător
Suprafață disponibilă:
1034
Disponibilitate spațiu:
imediat
Posibilitate parcare:
Da

Puncte de interes

Mijloace transport
tram-station
Alexandru Sihleanu
Stații tramvai aprox. 104 m
bus-station
Bd. Carol I
Stații autobuz aprox. 405 m
metro-station
Universitate (M2)
Stații metrou aprox. 849 m
trolleybus-station
Statia Foisorul de Foc linii : 79,86
Stații troleibuz aprox. 992 m
Școală
school
Grupul Scolar Industrial Unirea
Școli aprox. 142 m
school
Grupul Scolar Industrial Unirea (en)
Școli aprox. 144 m
university
Facultatea de Stiinte Politice
Universități aprox. 506 m
kindergarten
Gradinita Magica
Gradinițe aprox. 600 m
Recreere
park
Parc
Parcuri aprox. 155 m
supermarket
Mega Image Paleologu
Supermarket aprox. 353 m
sports-ground
Teren sportiv
Terenuri sport aprox. 365 m
mall
Bucharest, Calea Vitan nr. 8, Bl V51, near VITAN Mall
Mall aprox. 1543 m

Proprietăți recomandate

Detalii de contact

Activ Property Services

Departament Birouri

5.00(3 review-uri)

Activ Property Services
PRO

Abonează-te la newsletter să fii primul care primește cele mai noi recomandări de proprietăți și sfaturi de la experți.

CONTACT

Creează alertă

Salvează căutarea ca să primești pe email ultimele anunțuri publicate

Birouri de închiriat în zona Unirii, Sector 3