Imobil cu functiune birouri amplasat in zona Timpuri Noi - Tineretului, ofera conditii optime de acomodare companiilor ce vizeaza zona centrala a orasului. Gradul sporit de luminozitate naturala, echipamentele moderne, facilitatile accesibile in proximitatea cladirii ofera un plus de confort angajatului.
Spatiul disponibil: parter: 182mp - spatiu preponderent deschis, flexibil la recompartimentare, avand potential atat pentru activitate cu public, showroom sau birou;
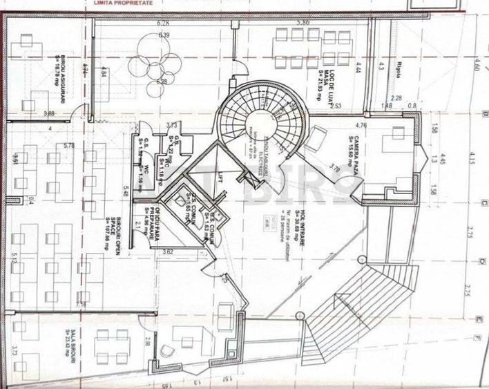
- suplimentar: etaj 4 - 202mp format din spatiu deschis, 3 partitii, bucatarie si 2 grupuri sanitare (conform schita atasata). Se preda igienizat, cu retea date si rack server, bucatarie mobilata, jaluzele.
Pretul chiriei este de 13 euro/mp (incluzand 2 locuri parcare/ nivel), se adauga costuri administrative, consum utilitati. Se poate inchiria cu sau fara TVA.
Cladirea dispune de: climatizare prin ventiloconvectoare, lift, paza, administratie, receptie, parcare securizata. Multiple solutii de parcare 'libera' in vecinatatea imobilului.
Accesul catre servicii transport se face rapid, distanta mers statie STB/ Metrou: 1/ 5 min ([M] Timpuri Noi).
Costurile administrative includ utilitatile.
Consultanta oferita pe intregul parcurs al procesului de relocare/ acomodare birou (analiza comparativa oferte, vizionari, clauze contractuale, servicii suport) este gratuita.
Sediul central - Timișoara
Bulevardul Victor Babeș nr. 2, 300230, Timișoara, România
Tel: +40.374.40.44.98 / Fax: +40.256.401.179
Email: suport@imobiliare.ro
Luni - Vineri 08:00 - 20:00
Punct de lucru - București: Iride Business Park, Bld. Dimitrie
Pompeiu 9-9A, Clădirea B2B,
020335, Sector 2, București, România
CONTACT
Sediul central - Timișoara
Bulevardul Victor Babeș nr. 2, 300230, Timișoara, România
Tel: +40.374.40.44.98 / Fax: +40.256.401.179
Email: suport@imobiliare.ro
Luni - Vineri 08:00 - 20:00
Punct de lucru - București: Iride Business Park, Bld. Dimitrie
Pompeiu 9-9A, Clădirea B2B,
020335, Sector 2, București, România
Sună acum și cere detalii sau programează o vizionare.
Cere detalii prin email
*
*
*
*
Stații autobuz
Stații tramvai
Stații metrou
Școli
Gradinițe
Universități
Supermarket
Parcări
Parcuri
Terenuri sport
Spital
Farmacie
Bar
Restaurant
Bancă
Intrarea Serelor
aprox.
63 m
Statia Splaiul Unirii 749, linia 223
aprox.
85 m
Complex Auto Splaiul Unirii
aprox.
174 m
Splaiul Unirii 749
aprox.
618 m
Statia Intrarea serelor, linia 223
aprox.
983 m
Statia Sere, linia 223
aprox.
1015 m
Statia C.E.T. Sud Vitan, linia 135, 223, 202, 102, 123
aprox.
1165 m
Statia CET Sud, linia 123,135
aprox.
1247 m
Statia I. N. M. B., linia 181
aprox.
1286 m
Statia Icemenerg, linia 123
aprox.
1391 m
Statia Cartier Vitan-Barzesti, linia 181, 202
aprox.
1516 m
Statie RATB: 102, 181
aprox.
1519 m
Stația "Sere" (102, 181)
aprox.
1553 m
Statia Complex Comercial Vitan-Barzesti / Sere, linia 181, 202
aprox.
1554 m
Statia Dumbrava Noua, Liniile N111, N103, 23, 27
aprox.
1616 m
Dumbrava Noua
aprox.
1616 m
Piata Titan
aprox.
1651 m
Bd. 1 Decembrie 1918
aprox.
1668 m
Piata Titan
aprox.
1675 m
Ilioara
aprox.
1738 m
statie tramvai -23, 27 si 40 - ozana
aprox.
1800 m
Ozana
aprox.
1808 m
Fizicienilor
aprox.
1953 m
Metrorex. Stația 1 Decembrie 1918 (M3) Lift
aprox.
1636 m
Statia Nicolae Grigorescu 2, LiniaM3
aprox.
1685 m
Metrorex. Stația 1 Decembrie 1918(M3)(2008)
aprox.
1703 m
Metrorex. Stația Nicolae Grigorescu 1 /2(M1),(M3)(1981)
aprox.
1708 m
Liceul Teologic Adventist Stefan Demetrescu
aprox.
1388 m
Liceul Teologic Adventist "Stefan Demetrescu"
aprox.
1402 m
Scoala de soferi Ilioara
aprox.
1409 m
Scoala Generala cu clasele I-VIII, nr. 92
aprox.
1467 m
Scoala Generala nr.92
aprox.
1477 m
Scoala cu Clasele I-VIII Nr. 20 "Simion Mehedinti"
aprox.
1546 m
Liceul Teoretic "Decebal"
aprox.
1627 m
Colegiul tehnic de chimie "Costin Nenitescu"
aprox.
1697 m
Scoala generala nr 112 "Titan"
aprox.
1800 m
Scoala Generala nr 112
aprox.
1823 m
Grup scolar de constructii-montaj "Elie Radu"
aprox.
1835 m
Școala Generală nr. 89 - "Nicolae Labis"
aprox.
1855 m
Grupul Scolar de Constructii-Montaj "Elie Radu"
aprox.
1857 m
Gradinita de copii nr. 211
aprox.
1544 m
Gradinita nr. 211
aprox.
1544 m
Gradinita (en)
aprox.
1801 m
Gradinita Nr. 66
aprox.
1812 m
Gradinita
aprox.
1814 m
Gradinita numarul 23
aprox.
1822 m
Gradinita nr.71
aprox.
1822 m
Gradinita Nr 24
aprox.
1887 m
Gradinita 255
aprox.
1938 m
Gradinita de copii nr. 196
aprox.
1958 m
Gradinita nr. 255
aprox.
1963 m
Gradinita de copii nr 196
aprox.
1982 m
Gradinita 196
aprox.
1986 m
Gradinita de copii nr. 196
aprox.
1986 m
Universitatea "Gheorghe Cristea"
aprox.
1790 m
DOMO
aprox.
1209 m
Carrefour Vitantis
aprox.
1227 m
BI & DI
aprox.
1534 m
Profi
aprox.
1580 m
Profi
aprox.
1609 m
Profi
aprox.
1695 m
Mega Image
aprox.
1705 m
Lidl
aprox.
1766 m
Galeriile comerciale Petaluda
aprox.
1771 m
Mega Image
aprox.
1787 m
Lidl Fizicienilor
aprox.
1803 m
Lidl Popesti-Leordeni
aprox.
1922 m
Parcare
aprox.
752 m
Parcare
aprox.
1186 m
Parcare
aprox.
1286 m
Parcare
aprox.
1348 m
Parcare
aprox.
1368 m
Parcare
aprox.
1379 m
Parcare
aprox.
1389 m
Parcare
aprox.
1394 m
Parcare
aprox.
1395 m
Parcare
aprox.
1400 m
Parcare
aprox.
1404 m
Parcare
aprox.
1409 m
Parcare
aprox.
1410 m
Parcare
aprox.
1429 m
Parcare
aprox.
1452 m
Livada
aprox.
718 m
Parc
aprox.
1089 m
Parc
aprox.
1299 m
Parc
aprox.
1355 m
Parc
aprox.
1389 m
Parc
aprox.
1399 m
Parc (en)
aprox.
1410 m
Loc de Joaca
aprox.
1529 m
Părculeț
aprox.
1590 m
Parc
aprox.
1700 m
Parc
aprox.
1709 m
Parc
aprox.
1725 m
Parc
aprox.
1732 m
Parc
aprox.
1733 m
Park (en)
aprox.
1743 m
Teren sportiv
aprox.
1290 m
Teren sportiv
aprox.
1296 m
Sud Arena Tennis
aprox.
1453 m
Sud Arena
aprox.
1471 m
Teren sportiv
aprox.
1982 m
Policlinica veterinara
aprox.
1294 m
Spital de Recuperare pentru copii cu handicap neuromotor
aprox.
1375 m
Spitalul Clinic de Urgenta Sfantul Ioan
aprox.
1648 m
Spitalul Sf. Ioan
aprox.
1680 m
Dispensar
aprox.
1989 m
Farmacia Dona 187
aprox.
1376 m
Catena
aprox.
1417 m
Dona
aprox.
1426 m
Misfil Development
aprox.
1473 m
CENTROFARM VITANTIS
aprox.
1510 m
Sensiblu
aprox.
1602 m
Catena Farmacie
aprox.
1627 m
Farmacia City +
aprox.
1628 m
Centrofarm
aprox.
1644 m
Beta Farmaceutica
aprox.
1656 m
Farmacia Center
aprox.
1689 m
Sensiblu
aprox.
1701 m
Farmacia Belladona Non-Stop
aprox.
1707 m
Farmacia Remedio
aprox.
1721 m
Farmacia Nadine
aprox.
1725 m
Bistro Burghez
aprox.
1152 m
Alexa
aprox.
1737 m
La Bodega
aprox.
1772 m
Shaorma Trapezului (Non-Stop)
aprox.
1623 m
New York Pizza
aprox.
1642 m
Restaurant Pizzerie
aprox.
1659 m
Shaorma Non-Stop
aprox.
1684 m
Casa di Angelo
aprox.
1686 m
McChiken
aprox.
1707 m
Fornetti
aprox.
1729 m
Shaorma Salajan
aprox.
1786 m
Terasa Cara (en)
aprox.
1981 m
Terasa Cara
aprox.
1982 m
Cetatea Berarilor
aprox.
1995 m
BRD Carrefour Vitan
aprox.
1271 m
B.R.D.
aprox.
1398 m
BRD
aprox.
1604 m
ING Office Theodor Pallady
aprox.
1611 m
UniCredit Tiriac - Grigorescu Branch (en)
aprox.
1616 m
Pireus Bank
aprox.
1618 m
Garanti Bank
aprox.
1620 m
BancPost Salajan
aprox.
1621 m
UniCredit Bank - Ag. Nicolae Grigorescu
aprox.
1627 m
Alpha Bank - Pallady
aprox.
1644 m
CEC Bank
aprox.
1655 m
BCR Pallady
aprox.
1661 m
Banca Transilvania - Ag. Pallady
aprox.
1692 m
Raifeissen Bank - Agentia Titan
aprox.
1729 m
OTP BANK
aprox.
1738 m
Dacă te vei muta în acest cartier, vei avea la dispoziție două stații de metrou care îți vor face călătoriile prin oraș mult mai ușoare și mai rapide. Este vorba despre Tineretului, stație situată pe magistrala 2 Berceni - Pipera, și despre Timpuri Noi, de unde poți lua metroul atât pentru a te deplasa pe ruta magistralei 1 Dristor - Pantelimon, cât și pe M2 Preciziei - Anghel Saligny. De la Tineretului ajungi, de exemplu, la Piața Universității în 5 minute și în Pipera în circa 15 minute. Alte mijloace de transport în comun care traversează zona de care ești interesat sunt tramvaiul 19, cu care poți să mergi către sud-estul orașului (Titan - Pallady), autobuzul 133 care îți oferă o legătură directă cu Piața Romană și troleibuzul 74 care ajunge la Piața Unirii.
Trei universități private își au sediul în această zonă, în imediata vecinătate a stației de metrou Timpuri Noi. Este vorba despre Universitatea "Titu Maiorescu", Universitatea "Nicolae Titulescu" și Universitatea Creștină "Dimitrie Cantemir". Alături de acestea este situat și Căminul Studențesc "Nicolae Titulescu". Unul dintre cele mai renumite licee din București poate fi găsit tot în această zonă. Colegiul Național "Gheorghe Șincai" se află lângă stația de metrou Tineretului. Caută pe hartă care vor fi cele mai apropiate instituții de învățământ de viitoarea ta locuință.
Multe dintre blocurile din această zonă dispun de spații comerciale la parter, deci chiar și atunci când vrei să faci doar câteva cumpărături rapide vei avea destul de multe opțiuni în apropiere. Poți cumpăra fructe și legume din Piața Norilor, aflată la doi pași de stația de metrou Tineretului, sau din Piața Timpuri Noi, situată lângă clădirea Universității "Titu Maiorescu". În vecinătatea acesteia vei găsi și un supermarket Profi. Chiar lângă Pasajul Mihai Bravu vei avea la dispoziție un magazin Lidl. Ajungi, totodată, rapid din zona Tineretului - Timpuri Noi la trei mall-uri: Sun Plaza, București Mall și ParkLake. La fel, în doar câteva minute ești cu mașina în centru. Consultă harta și vezi unde găsești cel mai apropiat magazin de viitoarea ta locuință.
O parcare publică cu câteva sute de locuri, dar și stații de încărcare pentru autovehiculele electrice este amplasată chiar lângă Palatul Național al Copiilor. Tot în apropiere, lângă Sala Polivalentă, ai câteva locuri de parcare la dispoziție, dacă ajungi la parc cu mașina. Îți recomandăm, totodată, să apelezi la Direcția Mobilitate Urbană Sector 4 dacă vei dori să închiriezi un loc de parcare în apropierea viitoarei tale locuințe. Un alt lucru pe care e bine să îl știi este că intersecția dintre Calea Șerban Vodă și bulevardele Tineretului, Gheorghe Șincai și Dimitrie Cantemir este una dintre cele mai aglomerate din zonă, în special la orele de vârf.
Zona Tineretului-Timpuri Noi îți oferă numeroase opțiuni de petrecere a timpului liber și poate fi ideală dacă ai copii. Vei avea la doi pași de casă Parcul Tineretului unde aceștia se pot plimba cu rolele sau cu bicicleta. Îi poți duce, totodată, la joacă în spațiile special amenajate pentru ei din Orășelul Copiilor. În zonă vei găsi un club cu terenuri de tenis, restaurant și piscină aflat vis-a-vis de Sala Polivalentă unde sunt organizate periodic târguri și diferite evenimente culturale și sportive. Palatul Național al Copiilor trebuie menționat fiind reprezentativ pentru acest cartier. Aici îți poți înscrie micuțul la diferite cluburi. În incinta sa funcționează și Teatrul Stela Popescu, iar lângă el, spre Pasajul Mihai Bravu vei găsi Parcul Lumea Copiilor. Acesta din urmă cuprinde mai multe terenuri sportive și chiar și o pistă de karting. Parcul Carol se află și el în apropiere. Aici vei găsi Arenele Romane, unde se organizează periodic concerte. Ajungi foarte rapid și în Parcul Natural Văcărești, dacă vrei să evadezi în natură câteva ore sau să te plimbi cu bicicleta. În zona Tineretului ai la dispoziție câteva restaurante și cafenele, iar pentru mai multă diversitate poți oricând să dai o fugă în Centrul Vechi al orașului. Dacă te vei muta aici, vei ajunge rapid la trei mall-uri - Sun Plaza, București Mall, ParkLake - și la centrul comercial Unirea Shopping Center. Află unde sunt localizate toate acestea de pe hartă.
La doi pași de Bulevardului Mărășești este localizată Maternitatea Bucur, iar unul dintre cele mai apropiate spitale private la care vei avea acces dacă te muți în zona Tineretului - Timpuri Noi este Monza Metropolitan Hospital de pe Calea Șerban Vodă. Institutul de Pneumologie Marius Nasta IV și Policlinica cu Plată nr. 3 pot fi găsite și ele în vecinătatea Parcului Tineretului. Consultă harta pentru a vedea ce alte unități sanitare sunt disponibile în zonă și în apropiere.
Ai la dispoziție câteva restaurante și terase pe principalele artere de circulație din zonă. Pe Bulevardul Dimitrie Cantemir găsești o cofetărie și una dintre cele mai apreciate shaormerii din oraș, pe Bulevardul Gheorghe Șincai o serie de cafenele, iar pe Calea Văcărești câteva restaurante. Poți lua o gustare și în cadrul proiectului dezvoltat de Vastit vis-a-vis de stația de metrou Timpuri Noi. Alte câteva opțiuni găsești și pe Strada Nerva Traian din apropiere. Mici terase pot fi găsite și în zona parcurilor la care ai acces în apropierea casei tale, iar dacă ai poftă de fast food poți să mergi la drive through-ul McDonald"™s situat lângă intrarea în Orășelul Copiilor sau la food court-ul din Sun Plaza. Ajungi în doar câteva minute cu mașina și la mall-urile ParkLake sau București Mall pentru o sesiune de shopping urmată de o gustare, iar dacă vrei mai multă diversitate poți să mergi, chiar și cu mijloacele de transport în comun, până în centrul orașului. Durează foarte puțin și vei găsi cu siguranță ceva pe gustul tău. Consultă harta și află ce restaurante, terase și fast food-uri ai lângă viitoarea ta locuință din zona Tineretului - Timpuri Noi.
Ai la dispoziție mai multe ATM-uri și sucursale bancare în intersecția aflată lângă Colegiul Național "Gh. Șincai" - ING, BRD, Raiffeisen Bank. La doi pași găsești și o Banca Transilvania. Consultă pe hartă și află unde se află cel mai apropiat bancomat de locuința ta.
Înainte să pleci...
Ești sigur că ai văzut și aceste proprietăți?
3.000 € / lună
București, Timpuri Noi
200 mp utili
Clădire de birouri
P+5E
3.905 € / lună
București, Cotroceni
355 mp utili
Clădire de birouri
9E
6.625 € / lună
București, Aviatorilor
265 mp utili
Clădire de birouri
2005
3.420 € / lună
București, Eminescu
323,2 mp utili
Casă/Vilă
1E
950 € / lună
București, 13 Septembrie
100 mp utili
Clădire mixtă
9E
3.370 € / lună
București, Timpuri Noi
212 mp utili
1950 (Există)
Creează alertă
Salvează căutarea ca să primești pe email ultimele anunțuri publicate
Birouri de închiriat în zona Timpuri Noi, Sector 4
Cere detalii prin email
*
*
*
*
Detaliile tale de contact vor fi partajate cu Art Biro