Cladire de birouri I 12 camere I Parcare I Calea Dumbravii

3.950 € / lună
14.11 € / mp / lună

Calea Dumbrăvii, Sibiu

Sup. utilă / mp. utili:
280 mp
Niv.:
1
An constr.:
2008 (Există)
  • • Locație aproximativă

Descriere spațiu comercial

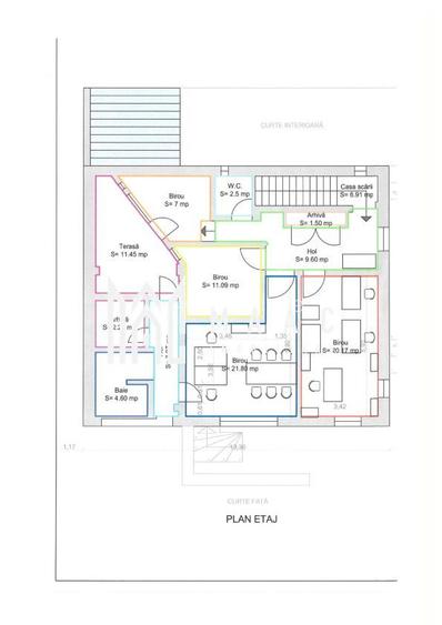
MAAC IMOBILIARE ofera, spre închiriere, o clădire de birouri cu poziționare și configurare ideală pentru activități corporate, concepută pentru a susține eficient operațiuni de business, servicii profesionale și activități administrative de nivel înalt. Asezata pe un teren de cca 420mp, cladirea, cu amprenta la sol de 160mp, are o compartimentare inteligentă, adaptabilă diverselor structuri organizaționale, oferind un echilibru optim între spații individuale, zone de colaborare și facilități comune. La parter- 6 birouri, baie, hol de acces, casa scarii; la etaj-4 birouri, 2 bai, 2 spatii de arhivare, terasa; subsol-sala conferinte, spatiu relaxare, bucatarie cu loc de luat masa, spatii arhivare, depozitare. Incalzirea- centrala termica pe gaz, calorifere. Instalatie de aer conditionat. In curte pot fi parcate 6 masini. In spatele imobilului, curte-zonă de relaxare pentru angajați / spațiu informal de networking. La parter-configurație flexibilă, ușor de personalizat- funcție de nevoile chiriașului. Spații bine proporționate, luminoase și eficiente operațional Proprietatea oferă stabilitate contractuală, fiind disponibilă pentru închiriere pe termen lung (ideal-minim 5 ani) Confera o imagine profesională, potrivită pentru companii care își doresc un spațiu reprezentativ. Destinații ideale: ✔ Sediu companie / headquarter ✔ Firmă de consultanță, avocatură, audit ✔ IT, software, digital services ✔ Educație corporate, training, coaching ✔ Servicii profesionale, administrative sau financiare Proprietatea se adresează exclusiv chiriașilor care caută continuitate, stabilitate și un spațiu aliniat standardelor inalte, într-un cadru profesional și bine organizat; oferă stabilitate contractuală, fiind disponibilă pentru închiriere pe termen lung (ideal-minim 5 ani) Predarea - fara mobila. Se inchiriaza de pe persoana fizica. Se percepe garantie in cuantumul a 3 chirii lunare. Pentru mai multe detalii precizati telefonic ca ati vazut anuntul cu ID:CP2882384
Citește mai mult Citește mai puțin
6 Parcări

Detalii spațiu comercial

ID anunț: XCSI1409Q Copiat! 274364814 Copiat!
Actualizat în: 22 Ianuarie 2026
Suprafață utilă: 310 mp
Clasă birouri: A
Regim înălțime: S+P+1E
Stadiu construcție: Există

Utilități

Destinație
Birouri Comercial
Utilități
Curent Apă Canalizare

Disponibilitate proprietate:

Imediat

Puncte de interes

Mijloace transport
bus-station
A. Saguna
Stații autobuz aprox. 216 m
bus-station
Nufarul
Stații autobuz aprox. 286 m
bus-station
Casa Armatei
Stații autobuz aprox. 289 m
bus-station
Teatru
Stații autobuz aprox. 297 m
Școală
school
Scoala speciala
Școli aprox. 146 m
school
Scoala Generala Nr. 15
Școli aprox. 216 m
university
Laboratoare ULBS
Universități aprox. 308 m
kindergarten
Gradinita Kristine
Gradinițe aprox. 1180 m
Recreere
park
Parcul Astra
Parcuri aprox. 70 m
restaurant
Unicum
Restaurant aprox. 127 m
sports-ground
Teren sportiv
Terenuri sport aprox. 188 m
supermarket
BILLA Balcescu
Supermarket aprox. 222 m

Proprietăți similare

Birou, 275 mp în Ultracentral
3.850 € / lună
Sibiu, Ultracentral
275 mp utili
Clădire de birouri
P+2E
Birou, de 325 mp, în Industrial Est
3.900 € / lună
Sibiu, Industrial Est
325 mp utili
Clădire de birouri
1980 (Există)
Birou, 500 mp în Aeroport
4.000 € / lună
Sibiu, Aeroport
1.105 mp utili
Clădire mixtă
P+2E

Detalii de contact

Abonează-te la newsletter să fii primul care primește cele mai noi recomandări de proprietăți și sfaturi de la experți.

CONTACT

Creează alertă

Salvează căutarea ca să primești pe email ultimele anunțuri publicate

Birouri cu 4+ camere de închiriat în zona Calea Dumbrăvii, Sibiu