LANDMARK ofera spre inchiriere o cladire de birouri situata in zona istorica IOSEFIN pe malul raului Bega, vedere deosebita, la o distanta de aprovimativ 1500 m fata de centrul orasului.
Regimul de inaltime este S+P+4E cu urmatoarea compartimentare :
Subsol = 287 mp utili, compus din parcare auto 8 locuri , centrala termica, spatii depozitare, grup sanitar
Parter = 102 mp utili,, compus din hol acces, receptie, lift, casa scarii, spatii birouri , camera tehnica, curte privata cu acces controlat, parcare auto 4 locuri.
Etajele 1,2,3 = 260 mp utili nivel, compuse din spatii birouri open space, grupuri sanitare, oficiu, lift, casa scarii
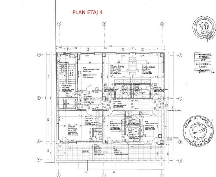
Etaj 4 = 192 mp utili - compus din sala consiliu, oficiu, grupuri sanitare, 3 camere regim hotelier cu baie proprie , terasa deschisa 42 mp
Cladirea dispune de centrala proprie pe gaz, sistem de ventilatie si aer conditionat, fatada de sticla, acces auto automatizat
In proximitate se afla multiple mijloace de transport, tramvai, autobuz, zona comerciala, Gara de Nord.
Pretul chiriei solicitat de proprietar este de 10 Euro mp + TVA . ID intern 210642
Sediul central - Timișoara
Bulevardul Victor Babeș nr. 2, 300230, Timișoara, România
Tel: +40.374.40.44.98 / Fax: +40.256.401.179
Email: suport@imobiliare.ro
Luni - Vineri 08:00 - 20:00
Punct de lucru - București: Iride Business Park, Bld. Dimitrie
Pompeiu 9-9A, Clădirea B2B,
020335, Sector 2, București, România
CONTACT
Sediul central - Timișoara
Bulevardul Victor Babeș nr. 2, 300230, Timișoara, România
Tel: +40.374.40.44.98 / Fax: +40.256.401.179
Email: suport@imobiliare.ro
Luni - Vineri 08:00 - 20:00
Punct de lucru - București: Iride Business Park, Bld. Dimitrie
Pompeiu 9-9A, Clădirea B2B,
020335, Sector 2, București, România
Sună acum și cere detalii sau programează o vizionare.
Cere detalii prin email
*
*
*
*
Stații autobuz
Stații tramvai
Stații tren
Stații troleibuz
Școli
Gradinițe
Universități
Supermarket
Parcări
Piețe publice
Terenuri sport
Parcuri
Spital
Farmacie
Restaurant
Cafenea
Pub
Bar
Bancă
Statie Mocioni E7, A33, A32, M36
aprox.
110 m
Piata Sinaia
aprox.
110 m
Piata Mocioni
aprox.
185 m
Statie Mocioni E7, A33, M36, A 32, E5
aprox.
217 m
Statie Brancoveanu E7, A33, E8, M36, E5
aprox.
273 m
C. Brancoveanu
aprox.
273 m
Nicolae Titulescu
aprox.
372 m
Statie Brancoveanu A32
aprox.
373 m
C. Brancoveanu
aprox.
386 m
Statie Brancoveanu E7, A33, E5, M36
aprox.
399 m
Jiul
aprox.
546 m
Autogara Alfa Star
aprox.
574 m
Statie autobus A3, E1
aprox.
578 m
Autogara Autotim
aprox.
604 m
Statia iuliu Maniu E1, A3 (en)
aprox.
604 m
Statie Mocioni Tv2, Tv1, Tv8
aprox.
136 m
Statie Regele Carol I Tv2, Tv1, Tv8
aprox.
143 m
Regele Carol I
aprox.
150 m
Piata Sinaia
aprox.
155 m
Piata Mocioni
aprox.
160 m
Statie Regele Carol I Tv1, Tv8
aprox.
205 m
Statie Regele Carol I Tv2, Tv7
aprox.
258 m
Sfanta Maria
aprox.
464 m
Statie Piata Maria Tv2, Tv1, Tv7, Tv8
aprox.
477 m
Sfanta Maria
aprox.
509 m
Statie Piata Maria Tv5, Tv8
aprox.
515 m
Statie Tv6, Tv 1, Tv2
aprox.
554 m
Iuliu Maniu
aprox.
561 m
Statie Iuliu Maniu T2, T7
aprox.
612 m
Parc Carmen Sylva
aprox.
664 m
Gara de Nord
aprox.
724 m
Terminal RESITA
aprox.
776 m
Timisoara North railway station area (en)
aprox.
984 m
Statie Pop de Basesti T11, T14, T18
aprox.
933 m
Statie Piata Regina Maria T11, T14, T18
aprox.
965 m
Statie Pop de Basesti T11, T14, T18
aprox.
970 m
Statie Ghe. Baritiu T11, T14
aprox.
1158 m
Statie Gelu T18
aprox.
1367 m
Statie Piata 700 T11, T14, T18
aprox.
1407 m
Statie Piata 700 T11, T13, T14, T17, T18
aprox.
1489 m
Statie B-dul Mihai Eminescu T19
aprox.
1652 m
Statie Solventul T18
aprox.
1823 m
Colegiul National Banatean
aprox.
113 m
Colegiul Tehnic de Vest
aprox.
128 m
COLEGIUL NATIONAL BANATEAN si LICEU TEORETIC "DOSITEI OBRADOVICI"
aprox.
134 m
Liceul de Arte Plastice
aprox.
161 m
Liceul Teoretic Dositei Obradovici
aprox.
165 m
LICEUL TEOLOGIC BAPTIST
aprox.
352 m
Scoala Generala Nr.12
aprox.
357 m
Scoala de Surdomuti Gheorghe Atanasiu
aprox.
483 m
Liceul Tehnologic Special Gheorghe Atanasiu
aprox.
508 m
COLEGIUL ECONOMIC "FRANCESCO SAVERIO NITTI"
aprox.
694 m
Colegiul Economic Francesco Saverio Nitti
aprox.
707 m
Liceul Teoretic Grigore Moisil
aprox.
903 m
Welding Faculty (en)
aprox.
905 m
Scoala Generala Numarul 22 Timisoara - Doja (en)
aprox.
917 m
"Traian Vuia" Technical University Timisoara - Faculty of Mechanics (en)
aprox.
958 m
Gradinita Program Prelungit Nr. 14
aprox.
195 m
Gradinita Program Prelungit Nr. 21
aprox.
227 m
Gradinita Program Normal Nr. 17
aprox.
274 m
Gradinita Notre Dame
aprox.
275 m
Gradinita cu program normal nr. 10
aprox.
547 m
Gradinita Program Prelungit C.F.R.
aprox.
655 m
Gradinita Program Saptamanal Nr. 1
aprox.
706 m
Gradinita nr. 31
aprox.
732 m
Gradinita Program Prelungit Nr. 31
aprox.
765 m
Gradinita Bunul Pastor
aprox.
941 m
Gradinita Baby's Land
aprox.
1044 m
Gradinita Program Normal Nr. 7
aprox.
1129 m
Gradinita Best Kids
aprox.
1152 m
Gradinita Montessori
aprox.
1181 m
Gradinita Program Normal Nr. 8
aprox.
1185 m
ELIM Evanghelical Theological Seminary (en)
aprox.
371 m
Universitatea de Medicina si Farmacie Vicotr Babes
aprox.
592 m
Universitatea de Medicina si Farmacie Victor Babes
aprox.
597 m
Univ. Politehnica - Fac. de Management in Productie si Transporturi
aprox.
685 m
Technical University Timisoara -"R" building (en)
aprox.
693 m
Facultatea de Management in Productie si Transporturi
aprox.
701 m
Academia Romana - filiala Timisoara
aprox.
880 m
Facultatea de Mecanica
aprox.
966 m
Corpul B (en)
aprox.
980 m
Facultatea de Electronica si Telecomunicatii
aprox.
1032 m
SPM (en)
aprox.
1035 m
Facultatea de Mecanica
aprox.
1045 m
Corpul A (en)
aprox.
1049 m
UPT Electro
aprox.
1056 m
Corpul D (en)
aprox.
1064 m
Profi Piata Sinaia
aprox.
119 m
Profi City
aprox.
473 m
Kaufland
aprox.
708 m
Profi City
aprox.
751 m
Lidl
aprox.
1233 m
Lidl Budai Deleanu
aprox.
1240 m
Materna-Modern
aprox.
1279 m
Carrefour Market
aprox.
1394 m
Profi City
aprox.
1405 m
Carrefour Market
aprox.
1432 m
Billa
aprox.
1441 m
Profi Sagului
aprox.
1447 m
Profi
aprox.
1447 m
Billa
aprox.
1558 m
DM
aprox.
1586 m
Parcare privata
aprox.
371 m
Parcare
aprox.
380 m
Parcare
aprox.
411 m
Parcare
aprox.
470 m
Parcare privata
aprox.
489 m
Parcare privata
aprox.
546 m
Parcare
aprox.
587 m
Parcare
aprox.
638 m
Parcare
aprox.
669 m
Parcare pentru clienti cu plata
aprox.
691 m
Parcare pentru clienti
aprox.
741 m
Parcare
aprox.
765 m
Parcare
aprox.
786 m
Parcare
aprox.
807 m
Parcare
aprox.
864 m
Piata Sinaia
aprox.
169 m
Piața Maria
aprox.
496 m
Piata Victoriei
aprox.
1170 m
Piata Mircea Eliade
aprox.
1378 m
Piata Libertatii
aprox.
1518 m
Piata Leonardo Da Vinci
aprox.
1750 m
Piata Unirii
aprox.
1801 m
Piata Tepes Voda
aprox.
1896 m
Piata Aron Cotrus
aprox.
1967 m
Teren sportiv
aprox.
270 m
Teren sportiv
aprox.
483 m
Teren sportiv
aprox.
658 m
Teren sportiv
aprox.
812 m
Teren sportiv
aprox.
927 m
Teren sportiv
aprox.
1120 m
Teren sportiv
aprox.
1131 m
Teren sportiv
aprox.
1137 m
Teren sportiv
aprox.
1137 m
Stadion Stiinta
aprox.
1144 m
Teren sportiv
aprox.
1164 m
Teren sportiv
aprox.
1205 m
Teren sportiv
aprox.
1206 m
Teren sportiv
aprox.
1206 m
Teren sportiv
aprox.
1213 m
Parcul Gheorghe Doja
aprox.
603 m
Parcul Gheorghe Doja
aprox.
617 m
Parcul Carmen Sylva
aprox.
772 m
Parcul Doina
aprox.
772 m
Parcul Alpinet
aprox.
793 m
Parcul Alpinet
aprox.
800 m
Parc
aprox.
815 m
Parcul Central
aprox.
831 m
Parcul Central Anton von Scudier
aprox.
831 m
sk8 park
aprox.
833 m
Parcul Catedralei
aprox.
897 m
Parcul Catedralei
aprox.
897 m
Parc Mecanică (en)
aprox.
1043 m
Parc UPT
aprox.
1043 m
Parc
aprox.
1049 m
Spitalul de Obstetrica si Ginecologie
aprox.
64 m
Odobescu Maternity (en)
aprox.
100 m
Maternitate Spital Odobescu
aprox.
109 m
Policlinica Vacarescu
aprox.
440 m
Clinica de Psihiatrie
aprox.
454 m
Neuromed
aprox.
519 m
Spitalul CFR timisoara
aprox.
533 m
Spitalul Clinic Cai Ferate
aprox.
545 m
Policlinica C.F.R.
aprox.
717 m
Spitalul de neurospihiatrie infantila
aprox.
771 m
Policlinica Nr. 3
aprox.
891 m
Clinica de Neonatologie - Prematuri
aprox.
1002 m
Spitalul Clinic de Urgenta pentru Copii Louis Turcanu
aprox.
1092 m
Louis Èšurcanu Hospital (en)
aprox.
1101 m
Policlinica de Copii
aprox.
1118 m
Sf. Maria
aprox.
434 m
Vlad
aprox.
624 m
Mihai Viteazul
aprox.
903 m
Sensiblu
aprox.
1133 m
Sensiblu
aprox.
1143 m
Farmado
aprox.
1173 m
Richter
aprox.
1340 m
Farmacia Dona
aprox.
1398 m
Farmacia DONA
aprox.
1421 m
Dianthus Farmacia
aprox.
1577 m
Vlad
aprox.
1621 m
Kastel Daro Tim - Chimicale si sticlarie laborator
aprox.
1730 m
Farmacia Dona
aprox.
1842 m
Farmacia Richter
aprox.
1870 m
Farmacia Granathalma
aprox.
1940 m
Casa Bunicii 2
aprox.
209 m
Pizza + restaurant "La maria" (en)
aprox.
463 m
BIOfresh
aprox.
470 m
Los Toreros (en)
aprox.
521 m
Intim
aprox.
546 m
EXCELSIOR
aprox.
558 m
"3+1" pizza restaurant (en)
aprox.
560 m
Pizza 3+1 (en)
aprox.
566 m
Restaurant/Pizza Bistra
aprox.
567 m
Fast Food Sultan
aprox.
596 m
Restaurant Casa del Sole
aprox.
618 m
Porto Arte
aprox.
728 m
Taco Loco (en)
aprox.
732 m
Flora
aprox.
761 m
Flora Restaurant (en)
aprox.
767 m
COPA Caffe
aprox.
210 m
Viniloteca
aprox.
538 m
Terasa D'Arc
aprox.
987 m
Massimo
aprox.
1119 m
BiblioTech Cafe
aprox.
1194 m
Galto di Bruno
aprox.
1214 m
Tempo
aprox.
1220 m
Orlovi
aprox.
1285 m
Starbucks
aprox.
1314 m
WellPlayed Gaming Lounge
aprox.
1585 m
Tucano Coffee Mexico
aprox.
1608 m
Spirit
aprox.
1663 m
1740 Music Cafe
aprox.
1666 m
Musetti
aprox.
1690 m
Cuib d'Arte
aprox.
1702 m
Daos Club
aprox.
591 m
Caffe Tim Nord
aprox.
746 m
Orlovi
aprox.
1287 m
Vineri15
aprox.
1321 m
La Capite
aprox.
1369 m
Beraria 700
aprox.
1427 m
Habitat
aprox.
1533 m
Casino El Dorado
aprox.
1563 m
Bibliotheka 2
aprox.
1572 m
Molly Malone's
aprox.
1677 m
Rock House
aprox.
1683 m
Grinette
aprox.
1733 m
Bierhaus
aprox.
1769 m
Jarvis
aprox.
1775 m
Irish Pub
aprox.
1809 m
Manufactura
aprox.
730 m
Amore
aprox.
854 m
Scart Loc Lejer
aprox.
876 m
Zanoni
aprox.
884 m
Swiss House Club
aprox.
1073 m
Freshious
aprox.
1379 m
Art Club Cafe
aprox.
1449 m
Alt Club
aprox.
1454 m
DUGA CLUB
aprox.
1458 m
Nouveau
aprox.
1657 m
Arqa
aprox.
1661 m
Enoteca de Savoya
aprox.
1665 m
Cafe Colt
aprox.
1699 m
Eclipse
aprox.
1752 m
Bunker
aprox.
1774 m
Banca Romaneasca
aprox.
223 m
BCR
aprox.
467 m
Intesa Sao Paolo Bank
aprox.
499 m
ING Bank
aprox.
564 m
Banca Transilvania
aprox.
573 m
BCR
aprox.
631 m
Raiffeisen Bank
aprox.
655 m
BCR
aprox.
743 m
UniCredit Bank
aprox.
769 m
Piraeus Bank
aprox.
786 m
ING
aprox.
827 m
BRD
aprox.
833 m
Banca Transilvania
aprox.
991 m
UniCredit Bank
aprox.
1053 m
BCR
aprox.
1183 m
Datorită apropierii de zona centrală a orașului, timișorenii din Iosefin au la dispoziție o multitudine de mijloace de transport în comun; printre acestea se numără atât tramvaie (liniile 1, 2, 7, 8, care ajung toate la Regele Carol/Piața Iosefin), cât și autobuze (printre care 3 și E1, care circulă pe Bulevardul Iuliu Maniu). Spre deosebire de amatorii de ciclism din alte zone timișorene, cei din Iosefin au acces la mai multe piste special amenajate chiar în interiorul cartierului (pe Bulevardul General Ion Dragalina, pe Bulevardul Regele Carol I și pe Bulevardul Iuliu Maniu); aceștia beneficiază, în plus, de un acces facil și la pistele din zona Cetate.
Printre instituțiile de învățământ demne de menționat din cartier se numără Colegiul Național Bănățean (de pe Bulevardul 16 Decembrie 1989, nr. 26), ce oferă cursuri pentru ciclul primar, gimnazial și liceal, Liceul Teoretic "Bela Bartok" (de pe Bulevardul General Ion Dragalina, nr. 11A), dar și Liceul Teoretic "Dositei Obradovici" (tot pe Bulevardul General Ion Dragalina, nr. 6).
În materie de cumpărături, timișorenii din Iosefin nu au la dispoziție în propriul cartier nicio unitate comercială de dimensiuni mai mari, cum ar fi un mall sau un hipermarket. Aceștia sunt deserviți, însă, de o serie de magazine de dimensiuni mai mici, printre care se numără și un Profi (Pe Bulevardul Regele Carol I, nr. 1); de menționat ar fi, desigur, și Piața Iosefin, de pe Strada Iancu Văcărescu. Locuitorii cartierului beneficiază, în plus, de avantajul accesului rapid către zona centrală, unde poate fi găsit Bega Shopping Center (pe Strada Proclamația de la Timișoara), dar și către Dâmbovița, unde se află mallul Shopping City Timișoara. Situat, pe Calea Șagului, nr. 100, acesta include, pe lângă numeroasele magazine de îmbrăcăminte, încălțăminte etc., și un hipermarket Carrefour. De asemenea, în apropiere se găsește și un magazin de bricolaj din rețeaua Dedeman.
Posesorii de autovehicule interesați de închirierea unui loc de parcare de la autoritățile locale pot afla mai multe despre această chestiune la sediul Primăriei Timișoarei din zona centrală a orașului (de pe Bulevardul Constantin Diaconovici Loga, nr. 1).
Deși Iosefin nu este lipsit de spații verzi, locuitorii săi nu au la dispoziție, strict între granițele cartierului, niciun parc în adevăratul sens al cuvântului. Cu toate acestea, timișorenii din această parte a orașului beneficiază de accesul facil către centru, zona Cetate putând fi considerată, pe drept cuvânt, cea mai "bogată" în asemenea amenajări. De menționat este că cel mai apropiat parc, anume Parcul Catedralei, este amplasat chiar lângă limita cu Iosefin. Deși nu atât de mult ca centrul orașului, Iosefinul se distinge și prin obiectivele sale culturale. De menționat la acest capitol este Palatul Ancora (de pe Strada General Ion Dragalina, nr. 24), dar și palatul Karl Weisz (amplasat pe aceeași stradă, dar la nr. 27). Realizate la începutul secolului XX, ambele construcții se impun prin valoarea arhitecturală și istorică.
O veste bună dacă te gândești să te muți aici este că, și la capitolul servicii medicale, zona Iosefin stă destul de bine. Astfel, aici poți găsi, pe lângă o serie de cabinete particulare cu specializări diverse, și un centru medical de mari dimensiuni, anume o clinică MedLife. Amplasată pe Bulevardul General Ion Dragalina (nr. 37A), aceasta este cea de-a doua unitate MedLife ca dimensiuni din Timișoara. De menționat este că în Iosefin se află și Clinica de Psihiatrie "Eduard Pamfil" Timișoara, amplasată pe Strada Iancu Văcărescu, nr. 21. Locuitorii cartierului beneficiază, desigur, și de proximitatea zonei Cetate, unde se găsesc mai multe instituții medicale de stat, printre acestea numărându-se Spitalul Clinic Municipal de Urgență sau Spitalul Militar de Urgență. Pe harta de mai jos găsești localizarea exactă a spitalelor și clinicilor din zonă:
Pe lângă fast food-urile de cartier și pizzeriile cu tradiție, între care amintim pizzeria La Maria (de pe strada Strada Emanoil Gojdu 6), care este una dintre pizzeriile cu tradiție din zonă. În cazul în care preferați preparatele bucătăriei tradiționale românești, aveți posibilitatea să degustați o gamă diversificată la restaurantul Nora (de pe strada Bulevardul Dâmbovița 40). De asemenea, datorită vecinătății cartierului cu zona centrală, veți putea ajunge foarte ușor în Piața Unirii, unde se află mai multe localuri, cafenele și restaurante. Dacă veți locui în acest cartier, aveți avantajul accesului rapid către Dâmbovița, unde se află mallul Shopping City Timișoara.
Găsim sucursale ale băncilor ING, Banca Transilvania, dar și BRD, în apropierea Gării de Nord, pe strada Gării. Pe lângă acestea, mai regăsim în zonă un bancomat BRD pe Bulevardul Regele Carol I, nr. 28, un ATM de OTP găsim în Piața Alexandru Mocioni, nr. 8, și chiar unul de Euronet - pe Strada 16 dec. 1989, nr. 16. Având în vedere proximitatea cartierului față de Shopping City Mall (de pe Calea Șagului nr 100), dar și apropierea de zona centrală (Piața Victoriei), poți alege să te deplasezi spre aceste zone pentru a găsi și alte bancomate sau sucursale bancare. Consultă harta și află unde sunt localizate și alte bănci sau ATM-uri în zona de care ești interesat.
Înainte să pleci...
Ești sigur că ai văzut și aceste proprietăți?
2.688 € / lună
Timișoara, Central
336 mp utili
Clădire de birouri
11E
23.874 € / lună
Timișoara, Complex Studențesc
4.000 mp utili
Clădire de birouri
P+8E
4.333 € / lună
Timișoara, Central
321 mp utili
Clădire de birouri
6E
6.780 € / lună
Timișoara, Central
500 mp utili
Clădire de birouri
15E
1.600 € / lună
Timișoara, Fabric
200 mp utili
Clădire de birouri
4E
2.790 € / lună
Timișoara, Central
200 mp utili
Clădire de birouri
11E
Creează alertă
Salvează căutarea ca să primești pe email ultimele anunțuri publicate
Birouri cu 4+ camere de închiriat în zona Iosefin, Timișoara
Cere detalii prin email
*
*
*
*
Detaliile tale de contact vor fi partajate cu Landmark Imobiliare