Spatiu versatil pentru birou, activitati comerciale, showroom – de inchiriat in zona Stirbei Voda Parcul Cismigiu
Va propunem spre inchiriere un spatiu situat la parter, cu curte, ideal pentru birouri, activitati de tip showroom sau cursuri, amplasat excelent, in apropierea Parcului Cismigiu si a sediului DNA.
Proprietatea beneficiaza de accese separat, a fost recent renovata atat la exterior (inclusiv fatada si hidroizolatia), cat si la interior, si dispune de o curte amenajata cu travertin.
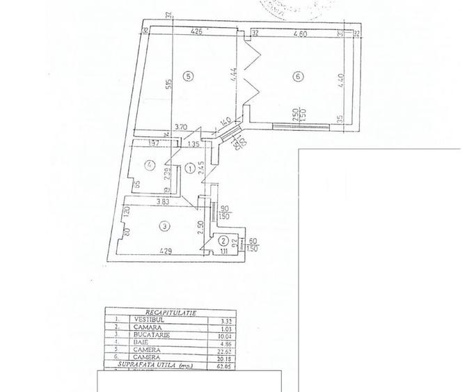
Compartimentare functionala:
-hol acces;
-camera tehnica birou receptie de 10 mp;
- grup sanitar;
- doua incaperi de 22 mp si 20 mp, ce pot fi zona de birouri, showroom etc.
Suprafata utila este de aproximativ 62 mp, completata de o curte de 50 mp.
Disponibil imediat. Pentru mai multe detalii sau programarea unei vizionari, va stam cu placere la dispozitie.
Sediul central - Timișoara
Bulevardul Victor Babeș nr. 2, 300230, Timișoara, România
Tel: +40.374.40.44.98 / Fax: +40.256.401.179
Email: suport@imobiliare.ro
Luni - Vineri 08:00 - 20:00
Punct de lucru - București: Iride Business Park, Bld. Dimitrie
Pompeiu 9-9A, Clădirea B2B,
020335, Sector 2, București, România
CONTACT
Sediul central - Timișoara
Bulevardul Victor Babeș nr. 2, 300230, Timișoara, România
Tel: +40.374.40.44.98 / Fax: +40.256.401.179
Email: suport@imobiliare.ro
Luni - Vineri 08:00 - 20:00
Punct de lucru - București: Iride Business Park, Bld. Dimitrie
Pompeiu 9-9A, Clădirea B2B,
020335, Sector 2, București, România
Statia Piata Operei, linia 104,122,137,236,268,336,601
aprox.
773 m
Mircea Vulcanescu
aprox.
401 m
Buzesti
aprox.
655 m
Piata Buzesti
aprox.
879 m
Doctor Felix
aprox.
972 m
Gara de Nord
aprox.
1053 m
Piata Victoriei
aprox.
1249 m
Dr. Felix
aprox.
1338 m
Piata Victoriei
aprox.
1349 m
Dr. Constantin Caracas
aprox.
1464 m
Pasaj Victoria
aprox.
1470 m
Dr. Constantin Caracas
aprox.
1542 m
Statia Banu Manta, linia 34,42,46
aprox.
1586 m
Roma
aprox.
1604 m
Pasajul Basarab
aprox.
1610 m
Statie tramvai 34,46 - Roma
aprox.
1616 m
Statia Vasile Parvan 66,70,92
aprox.
519 m
Statia Facultatea de Drept, linia 61,69,90,91
aprox.
666 m
Statia Stirbei Voda, linia 96
aprox.
877 m
Statia Piata Operei, linia 61,69,90,91
aprox.
889 m
statia RATB Eroilor: 69, 96
aprox.
983 m
Statia Pod Cotroceni, linia 93, 62, 96
aprox.
1076 m
Statia Piata Romana linii : 79,86
aprox.
1278 m
Statia Calea Dorobantilor; Liniile:79, 86,
aprox.
1460 m
Statie Gara Basarab 133, 178, 282, 105, 123, 162, 780
aprox.
1616 m
Statie Soseaua Nicolae Titulescu 65, 97, 86
aprox.
1631 m
Metrorex. Statia de Gara de Nord
aprox.
861 m
Metrorex. Stația Eroilor (M1),(M3)(1979)
aprox.
892 m
Eroilor
aprox.
892 m
Metrorex. Stația Gara de Nord
aprox.
911 m
Metrorex. Stația Izvor (M1),(M3)(1979)
aprox.
917 m
Acces Stația Eroilor (M3).
aprox.
925 m
Metrorex. Statia Izvor (M1) , (M3).
aprox.
926 m
Izvor
aprox.
946 m
Metrorex. Statia Izvor (M1) , (M3).
aprox.
956 m
Gara de Nord 1
aprox.
963 m
Metrorex. Stația Gara de Nord 1 (M1)(1987)
aprox.
986 m
Metrorex. Stația Gara de Nord 2 (M4)(2000)
aprox.
1163 m
Metrorex. Stația Piața Romană (M2)(1988)
aprox.
1219 m
Piata Romana (M2)
aprox.
1219 m
Statia Metrou Piata Romana(M2)Metrorex
aprox.
1226 m
Vechea "Gara a Targovistei" astazi parte din Gara de Nord
aprox.
1014 m
Gara Bucuresti Nord
aprox.
1199 m
Gara Basarab
aprox.
1833 m
Liceul "Nicolae Tonitza"
aprox.
119 m
Scoala de Muzica Nr.3
aprox.
318 m
Liceul Cervantes
aprox.
375 m
Scoala speciala nr. 10
aprox.
506 m
Colegiul National Sfantul Sava
aprox.
550 m
Scoala Nr. 118 Vasile Alecsandri
aprox.
552 m
Scoala special nr. 10
aprox.
564 m
Liceul Bulgar Hristo Botev
aprox.
593 m
Credis - Academia CISCO Credis (en)
aprox.
603 m
Fostul Liceu de Arte Plastice Nicolae Tonitza - Sediul
aprox.
668 m
Scoala Nr. 1 Sfintii Voievozi
aprox.
697 m
Colegiul Tehnic de Arhitectură și Lucrări Publice Ioan N. Socolescu
aprox.
716 m
Liceul de muzică George Enescu
aprox.
838 m
Liceul George Enescu
aprox.
840 m
Clubul Sportiv Scolar nr.5
aprox.
870 m
Gradinita MAPN
aprox.
141 m
Gradinita Smiley
aprox.
228 m
Gradinita nr. 248
aprox.
429 m
Gradinita Nr. 78 Miguel de Cervantes
aprox.
439 m
Gradinita nr. 73
aprox.
734 m
Gradinita de copii nr. 285
aprox.
949 m
Gradinita Olga Gudynn
aprox.
957 m
Gradinita MAPN nr.1
aprox.
967 m
Gradinita Madeleine
aprox.
1034 m
Gradinita nr. 116
aprox.
1097 m
Gradinita Zum-zum
aprox.
1151 m
Gradinita Dreams World
aprox.
1251 m
Gradinita nr. 206
aprox.
1291 m
Gradinita nr. 112
aprox.
1332 m
Gradinita nr. 271
aprox.
1369 m
UTCB - Facultatea de Utilaj Tehnologic pentru Constructii
aprox.
457 m
Facultatea de Utilaj Tehnologic (UTCB)
aprox.
499 m
Facultatea de Stiinte Politice
aprox.
513 m
Facultatea de Medicina Dentara
aprox.
518 m
Universitatea Nationala de Muzica Conservator
aprox.
557 m
Universitatea Nationala de Muzica Bucuresti
aprox.
557 m
FADD Facultatea de Arte Decorative si Design
aprox.
576 m
Universitatea Nationala de Arte Bucuresti (facultatea de arte decorative si design)
aprox.
579 m
Clinica de Protetica si Ocluzologie si Clinica de Pedodontie
aprox.
585 m
Rectoratul Universitatii din București și sediul Facultății de Drept
aprox.
595 m
Rectoratul Univ. Bucuresti
aprox.
595 m
Camin C
aprox.
603 m
Universitatea Nationala de Arte (sculptura)
aprox.
616 m
Universitatea Nationala de Arte (facultatea de Arte Plastice si Facultatea de Istoria si Teoria Artei)
aprox.
643 m
Universitatea Nationala de Arte
aprox.
643 m
Mega Image Brezoianu
aprox.
719 m
Mega Image Elisabeta Non-Stop
aprox.
765 m
Shop & Go - Mega Image
aprox.
943 m
Mega Image Amzei Non-Stop
aprox.
970 m
Nik Non-Stop
aprox.
1041 m
Ami Non-Stop
aprox.
1043 m
Mega Image
aprox.
1080 m
Mega Image Magheru
aprox.
1144 m
ilanplant
aprox.
1245 m
Mega Image Rosetti Non-Stop
aprox.
1291 m
Mag.Victoria
aprox.
1314 m
Mega Image
aprox.
1314 m
Economat
aprox.
1317 m
Mega Image
aprox.
1341 m
Pravalia Maestrului
aprox.
1400 m
Intrarea in caminele C si D din grozavesti
aprox.
1645 m
"METROPLIS CENTER"
aprox.
1697 m
Parcare
aprox.
539 m
Parcare privata
aprox.
545 m
Parcare
aprox.
559 m
Parcare
aprox.
569 m
Parcare
aprox.
586 m
Parcare
aprox.
596 m
Parcare
aprox.
611 m
Parcare
aprox.
626 m
Parcare
aprox.
690 m
Parcare
aprox.
726 m
Parcare
aprox.
740 m
Parcare
aprox.
750 m
Parcare
aprox.
767 m
Parcare
aprox.
776 m
Parcare
aprox.
801 m
Piata Emil Cioran (Vergilius) (en)
aprox.
221 m
Piata Revolutiei
aprox.
1085 m
Piața Drapelului (Tricolorului)
aprox.
1244 m
Piața Romană
aprox.
1246 m
Piata Natiunilor Unite
aprox.
1521 m
Piata Universitatii
aprox.
1551 m
Piața Constituției
aprox.
1572 m
Piața Eroilor
aprox.
1651 m
Piata Arsenalului
aprox.
1739 m
Piata Roma
aprox.
1800 m
Piata Rosetti
aprox.
1842 m
Piața Sfântul Anton
aprox.
1877 m
Piata Timpului
aprox.
1921 m
Teren sportiv
aprox.
279 m
teren tenis
aprox.
443 m
Baza sportiva Universitatea Bucuresti
aprox.
491 m
Teren sportiv
aprox.
607 m
Teren sportiv
aprox.
709 m
Teren sportiv
aprox.
882 m
Teren sportiv
aprox.
903 m
Teren sportiv
aprox.
949 m
Teren sportiv
aprox.
1030 m
Teren sportiv
aprox.
1105 m
Teren sportiv
aprox.
1159 m
Teren sportiv
aprox.
1168 m
Teren sportiv
aprox.
1174 m
Teren sportiv
aprox.
1174 m
Teren sportiv
aprox.
1215 m
Parcul Luigi Cazzavillan
aprox.
312 m
Luigi Cazzavillan
aprox.
312 m
Loc de Joaca
aprox.
408 m
Parculet
aprox.
453 m
Parc
aprox.
453 m
Parc
aprox.
553 m
Parc
aprox.
557 m
Parc
aprox.
559 m
Parcul Tosca
aprox.
599 m
Parcul Cismigiu
aprox.
609 m
Loc de joaca
aprox.
615 m
Parcul Cismigiu
aprox.
615 m
Parc
aprox.
685 m
Loc de joaca
aprox.
685 m
Parc
aprox.
723 m
Sensiblu
aprox.
211 m
BellaDonna
aprox.
232 m
Farmaplus
aprox.
243 m
Farmacia Help Net
aprox.
250 m
Farmacia Sfanta Ecaterina
aprox.
414 m
Farmacia Apoteca 1
aprox.
656 m
Farmaciile 2NA
aprox.
686 m
Catena
aprox.
688 m
Farmalex Total
aprox.
700 m
Farmaplus
aprox.
762 m
3F Farmacie Farmec Frumusete
aprox.
768 m
Plafar
aprox.
833 m
Urgent Farm
aprox.
837 m
Farmacia Catena
aprox.
894 m
Help Net Farma
aprox.
904 m
Clinica ORL Dr. Mocanu
aprox.
213 m
Spitalul Clinic de Chirurgie Oro-Maxilo-Faciala
aprox.
541 m
Spitalul Carol Davila de urologie
aprox.
648 m
Spitalul Clinic de Nefrologie Dr. Carol Davila
aprox.
648 m
Spitalul clinic de nefrologie "Dr. Carol Davila"
aprox.
674 m
Cabinet Medical
aprox.
730 m
Sectia de Dermatovenerologie (en)
aprox.
742 m
oncologie, medicala III, endocrine
aprox.
774 m
Clinica Universitara de Medicina Interna si Gastroenterologie (en)
aprox.
802 m
Institutul Victor Babes
aprox.
809 m
cardio, pneumo
aprox.
853 m
Institutul national de medicina aeronautica si spatiala - INMAS
aprox.
862 m
Regina Maria - clinica pentru copii
aprox.
868 m
Institutul National de Medicina Aeronautica si Spatiala
aprox.
870 m
"Carol Davila"Military Hospital (en)
aprox.
916 m
Bouche Bee
aprox.
197 m
Caffeine & Latte
aprox.
364 m
Ramayana Cafe
aprox.
477 m
J'ai Bistrot
aprox.
512 m
Dante Cafe
aprox.
683 m
Kafeterya Cafe
aprox.
819 m
Dolce Baccio
aprox.
825 m
Sufrageria cu Jocuri
aprox.
855 m
Roland 1811 cafe
aprox.
883 m
Nana
aprox.
1083 m
Camera din Fata
aprox.
1084 m
Mara Mura
aprox.
1099 m
Venchi 1878
aprox.
1099 m
Zvon Caffe
aprox.
1155 m
Cafeneaua Arhitectilor
aprox.
1167 m
Tasty Fish
aprox.
203 m
Bodega Espaniola Alioli
aprox.
203 m
Tasty Fish
aprox.
211 m
Restaurant Libanez Tulin (en)
aprox.
236 m
Maxim
aprox.
240 m
Tulin
aprox.
249 m
plantersclub (en)
aprox.
314 m
BALKAN
aprox.
326 m
Caffe & Latte (restaurant,bar,cafe)
aprox.
359 m
Codrul Cosminului
aprox.
362 m
Classic
aprox.
371 m
Fast food
aprox.
378 m
Restaurant CAREDY
aprox.
382 m
Bistro de la Joie
aprox.
410 m
Hotel *** TRIANON
aprox.
414 m
Stuf Vama Veche
aprox.
215 m
Letters Bar
aprox.
477 m
A1
aprox.
808 m
Marvin bar&more
aprox.
916 m
LondonPhone
aprox.
1009 m
Gambrinus
aprox.
1055 m
Caffe No. 35
aprox.
1064 m
El Bistro
aprox.
1064 m
Fratelli Espresso Bar
aprox.
1109 m
Control Club
aprox.
1157 m
Energiea
aprox.
1166 m
Frame
aprox.
1263 m
Interbelic Victoria
aprox.
1283 m
Yellow Bar
aprox.
1319 m
Opium Stage Club
aprox.
1371 m
James Joyce's Pub & Restaurant
aprox.
810 m
Le Cafe Inmedio
aprox.
1004 m
Nexus Gamers Pub
aprox.
1100 m
Club Expirat and Other Side
aprox.
1160 m
Question Mark Social Club
aprox.
1218 m
Coloseum
aprox.
1277 m
Edgar`s Pub
aprox.
1317 m
Charlatans Irish Pub
aprox.
1374 m
Taverna Bradet
aprox.
1384 m
OLD NICK PUB
aprox.
1430 m
The Dubliner
aprox.
1431 m
D`eight Pub
aprox.
1488 m
Filos Pub
aprox.
1570 m
Vault
aprox.
1571 m
Charme
aprox.
1573 m
Raiffeisen Bank
aprox.
250 m
Banca Transilvania - Ag. Stirbei Voda
aprox.
258 m
Banca Transilvania
aprox.
264 m
Banca Raiffaisen
aprox.
275 m
Emporki Bank
aprox.
304 m
BRD Stirbei Voda
aprox.
312 m
Banca BRD
aprox.
320 m
ING Stirbei Voda
aprox.
351 m
Intesa Sanpaolo Bank
aprox.
363 m
Agentia ING Stirbei Voda
aprox.
368 m
CEC BANK
aprox.
377 m
CEC Bank
aprox.
377 m
Banca Intensa Sanpaulo
aprox.
394 m
Banca Comerciala Feroviara
aprox.
405 m
Banca Comerciala Feroviara
aprox.
415 m
Fiind o zonă ultracentrală, aceasta oferă numeroase opțiuni de călătorie cu mijloacele de transport în comun, și este bine conectată cu restul orașului. Ai, în primul rând, la dispoziție stațiile de metrou Piața Victoriei, Piața Romană și Universitate. Astfel, te vei putea deplasa rapid prin oraș, evitând aglomerația de la suprafață. Toate acestea sunt situate pe magistrala 2 care traversează Bucureștiul de la nord la sud. În plus, de la Piața Victoriei vei putea lua metroul și pe magistrala 1 pentru a ajunge, de exemplu, în cartierul Pantelimon sau în zona Eroilor. Prin Piața Universității urmează să treacă și magistrala 5 care va lega cartierele Drumul Taberei și Pantelimon. Până acum, s-au deschis însă doar stațiile de metrou aflate în zona Drumul Taberei. Alte mijloace de transport în comun care ar putea să-ți fie de ajutor atunci când te vei muta în această zonă sunt autobuzele 300 și 381. Primul face legătura dintre Piața Romană și Piața Victoriei continuându-și apoi traseul de-a lungul Bulevardului Ion Mihalache, iar cel de-al doilea conectează Piața Victoriei cu zona Tineretului și cu cartierul Berceni. De pe Bulevardul Regina Elisabeta vei putea lua troleibuzul 90 pentru a ajunge în Drumul Taberei sau în zona Arenei Naționale, iar în fața Spitalului Colțea vei găsi stația autobuzului 381 care merge în cartierul Berceni. Iar dacă preferi să te deplasezi pe două roți, vei avea la dispoziție una dintre pistele speciale destinate bicicliștilor pe Calea Victoriei. Aceasta îți va oferi, în plus, oportunitatea ideală de a admira arhitectura deosebită a clădirilor aflate de o parte și de alta a uneia dintre cele mai frumoase străzi din București. Consultă harta pentru a afla unde sunt localizate stațiile mijloacelor de transport în comun.
În această zonă găsim sediul central al Universității din București și cel al Academiei de Studii Economice din București (ASE), unele dintre cele mai prestigioase instituții de învățământ superior din România. Tot aici se află și sediile mai multor facultăți. Ai și alte instituții de învățământ cu renume la doi pași de casă, precum precum Colegiul Național "Sfântul Sava", Colegiul Național "Gheorghe Lazăr", Liceul Teoretic Bulgar "Hristo Botev" și Universitatea Națională de Muzică. De menționat este și Căminul Moxa, aflat în zona Calea Victoriei, în care sunt cazați unii dintre studenții ASE. Consultă harta de mai jos pentru a vedea și celelalte unități de învățământ din zonă.
În această parte a orașului vei găsi numeroase reprezentanțe ale unor branduri de lux. Cele mai multe magazine alimentare din zonă au dimensiuni reduse. Pentru cumpărături îți recomandăm Piața Amzei, aflată la doi pași de Romană și modernizată recent. Aici găsești, pe lângă comercianți de unde poți cumpăra legume și fructe și câteva magazine cu preparate proaspete de la burgeri, la pâine artizanală sau înghețată. Centrul Vechi găzduiește, totodată, reprezentanțe ale unor retaileri de modă. Tot aici găsești și librăria Cărturești Carusel, una dintre cele mai frumoase din oraș. O librărie Cărturești deschisă într-o altă clădire deosebită poate fi găsită și în apropiere de Piața Romană. Un spațiu comercial cu renume este Magazinul Victoria, un monument istoric al orașului. Magazinul București, amplasat la intersecția străzilor I.C. Brătianu și Lipscani a fost reconstruit recent cu o investiție substanțială. Ai în apropiere magazinul Cocor, centrul comercial Unirea Shopping City și un hipermarket Carrefour. Cu mașina sau metroul poți să ajungi destul de repede la mall-ul AFI Cotroceni. Consultă harta și vezi ce magazine vei avea în apropierea noii tale case.
Aceasta este una dintre cele mai aglomerate zone din București la orele de vârf. Aici găsești însă și unele dintre puținele parcări subterane din Capitală. Chiar vis-a-vis de Universitatea București ai intrarea într-o astfel de parcare cu peste 400 de locuri. O parcare destul de încăpătoare poate fi găsită și în Piața Victoriei. Atenție, însă, această zonă se poate aglomera nu doar din cauza traficului, ci și din cauza diverselor manifestări sau proteste care se organizează, de obicei, în fața Palatului Victoria, sediul Guvernului României. Dacă te hotărăști să te muți în zonă, atunci îți recomandăm să te interesezi de posibilitatea închirierii unui loc de parcare pentru mașina ta. Poți face acest lucru apelând la Serviciul Parcaje al ADP Sector 1. Consultă harta pentru a afla unde găsești și alte parcări în zona Victoriei-Romană-Universitate.
Zona Victoriei - Romană - Universitate este un epicentru cultural al Capitalei și oferă numeroase opțiuni de petrecere a timpului liber. Aici vei găsi numeroase muzee impresionante pe care le poți vizita în timpul liber (Muzeul Național de Istorie Naturală "Grigore Antipa", Muzeul Țăranului Român, Muzeul Național George Enescu, etc), vei putea participa la evenimentele în aer liber desfășurate pe Calea Victoriei sau în Piața George Enescu sau vei putea merge la un spectacol organizat pe scena Ateneului Român sau pe cea a Teatrului Notarra. Nu rata nici o vizită la Teatrul Național "I.L. Caragiale" și la Muzeul Național de Artă al României. Observatorul Astronomic Amiral Vasile Urseanu te așteaptă cu o experiență extrem de educativă care va fi, cu siguranță, apreciată de micuțul tău. Dacă îți place să ieși la o cafea în timpul liber alături de prietenii tăi, atunci în această zonă vei putea alege dintr-o multitudine de restaurante, terase și pub-uri. Nu lipsesc nici skybar-urile, care îți oferă priveliști de excepție de la înălțime. Cele câteva parcuri din zona Victorieim - Romană - Universitate au dimensiuni destul de reduse, dar sunt frumos îngrijite. Printre acestea amintim Parcul Ateneului și Parcul Nicolae Iorga. Dacă preferi plimbările lungi în weekend, atunci vei avea la dispoziție în apropiere parcurile Kiseleff și Cișmigiu. Nu uita, de asemenea, că te vei afla la doi pași de Centrul Vechi al Capitalei, dar și că vei putea să faci o plimbare cu bicicleta pe Calea Victoriei. În condiții normale, se organizează periodic evenimente în centrul orașului, atât în cadrul Sălii Palatului, cât și în aer liber în Piața Revoluției. În Piața Universității sunt organizate, totodată, diferite târguri și concerte. Vezi pe hartă mai multe puncte de interes din zona Victoriei-Romană-Universitate.
Chiar la Piața Universității se află principala unitate sanitară din zonă. Este vorba despre Spitalul Clinic Colțea, primul înființat în București. În zona Victoriei - Romană - Universitate vei întâlni mai multe clinici private, precum Policlinica Enescu din cadrul rețelei de sănătate Regina Maria și Spitalul Clinic Sanador. La doi pași de Piața Romană se află Spitalul Clinic de Urgențe Oftalmologice, cel mai mare din România cu o astfel de specializare. Consultă harta pentru a afla ce clinici private ai în apropierea casei, dacă te muți în această parte a orașului.
Găsești numeroase restaurante, terase și cafenele potrivite pentru toate gusturile în Centrul Vechi al orașului, pe Calea Victoriei sau în zona din spatele Ateneului Român. Câteva fast food-uri ai la dispoziție în Unirea Shopping Center. Nu foarte departe, în zona Romană, ai și alte opțiuni. Află de pe hartă unde găsești cel mai apropiat restaurant de noua ta casă.
Sucursale ale diferitelor bănci sunt dispuse de-a lungul principalelor artere de circulație sau în marile intersecții din zonă. Un BRD, spre exemplu, găsești chiar lângă Cercul Militar Național. Pe Bulevardul Nicolae Bălcescu o sucursală Banca Transilvania și ING Bank. La doi pași de Piața Universității se află și Palatul Băncii Naționale a României. Consultă harta pentru mai multe detalii.
Înainte să pleci...
Ești sigur că ai văzut și aceste proprietăți?
1.001 € / lună
București, Cișmigiu
85,7 mp utili
Clădire de birouri
1E
1.087 € / lună
București, Ultracentral
100 mp utili
Bloc de apartamente
8E
5.100 RON / lună
București, Romană
60 mp utili
Clădire de birouri
6E
Creează alertă
Salvează căutarea ca să primești pe email ultimele anunțuri publicate
Birouri cu 3 camere de închiriat în zona Cișmigiu, Ultracentral
Cere detalii prin email
*
*
*
*
Detaliile tale de contact vor fi partajate cu Leader Estate