Casa 5 camere de vanzare in Chinteni

197.000 €

Chinteni, Județul Cluj

Nr. cam.:
5
Sup. utilă:
119 mp
Sup. teren:
375 mp
  • • Locație aproximativă

Descriere casă

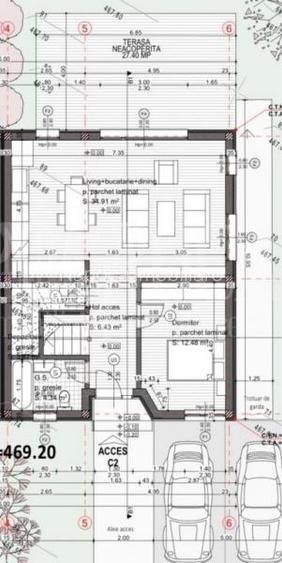
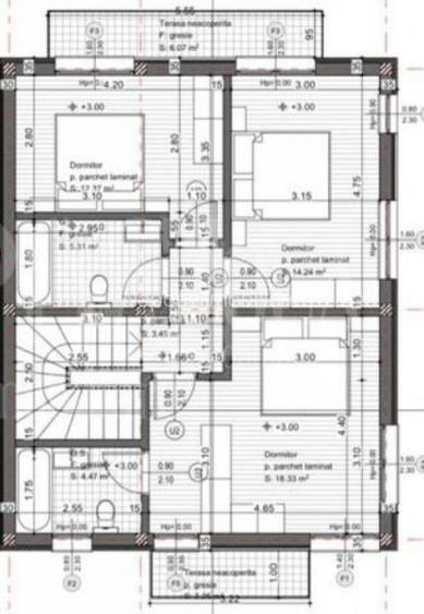
Casa tip duplex de vanzare in Chinteni! Ansamblu rezidential nou, acces privat! Descoperiti o locuinta moderna si spatioasa, situata intr-un ansamblu rezidential recent construit, cu acces privat, la doar 12 km de centrul orasului Cluj-Napoca (aproximativ 25 de minute cu masina). Proprietatea imbina linistea unei zone rezidentiale cu accesibilitatea catre mijloace de transport in comun, magazine si punctele de interes ale orasului. Detalii proprietate -Suprafata utila: 119 mp -Teren: 375 mp -Locuri de parcare: 2 -Front: 12 mp Compartimentare -Parter: dormitor, baie, living open-space cu bucatarie si iesire pe terasa, spatiu pentru depozitare/debara -Etaj: 3 dormitoare (fiecare cu acces pe balcon), unul cu baie proprie + o baie suplimentara -Pod: spatiu pentru depozitare suplimentara Specificatii tehnice Constructie realizata in 2024, din caramida cu pereti dubli si izolatie, ce asigura confort termic si eficienta energetica ridicata. Casa este luminoasa, bine pozitionata si proiectata pentru confortul unei familii moderne. Avantaje principale -Ansamblu rezidential nou, cu acces privat -Doar 12 km de Cluj-Napoca -Compartimentare practica: 4 dormitoare si 3 bai -Balcoane la fiecare dormitor de la etaj -Curte generoasa de 375 mp -2 locuri de parcare incluse -Constructie noua, pereti dubli si izolatie -Pret fara TVA Aceasta casa tip duplex reprezinta alegerea ideala pentru cei care isi doresc un camin modern, intr-o zona linistita, dar cu acces rapid la oras. Pentru mai multe detalii sau pentru programarea unei vizionari, va stam cu drag la dispozitie. Echipa Napoca Imobiliare ID oferta: 155816
Citește mai mult Citește mai puțin
2 Parcări Zonă de deal / munte Zonă rurală

Detalii casă

ID anunț: X57Q112HI Copiat! 269852049 Copiat!
Actualizat în: 24 Septembrie 2025
Suprafață construită: 140 mp
Nr. bucătării: 1
Nr. băi: 3
Nr. balcoane / Terase / Logii: 2
Nr. terase: 1
Front stradal: 12 m
Învelitoare acoperiș: Țiglă
An construcție: 2025
Regim înălțime: P

Utilități

Utilități
Curent Apă Canalizare Gaze
Internet
Fibră optică
Ușă intrare
PVC
Ferestre cu geam termopan
PVC
Amenajare străzi
Mijloace de transport în comun Iluminat stradal
Comision
2% + TVA

Puncte de interes

Mijloace transport
bus-station
M-Chinteni
Stații autobuz aprox. 204 m
bus-station
M-Chinteni V
Stații autobuz aprox. 204 m
bus-station
M-Chinteni E
Stații autobuz aprox. 212 m
bus-station
M-Chinteni Lac
Stații autobuz aprox. 212 m

Detalii despre preț și costuri

Costuri cu achiziția

Fără credit
9.663 RON
Credit ipotecar
11.612 RON
Noua casă
1.143 RON+ taxe notariale

i

Costuri adiționale mai puțin știute la achiziție: taxe notariale, comisioane etc.

Proprietăți recomandate

Detalii de contact

Napoca Imobiliare

Admin

3.44(14 review-uri)

Napoca Imobiliare
PRO

Abonează-te la newsletter să fii primul care primește cele mai noi recomandări de proprietăți și sfaturi de la experți.

CONTACT

Creează alertă

Salvează căutarea ca să primești pe email ultimele anunțuri publicate

Case și vile cu 4+ camere de vânzare în Chinteni, Județul Cluj