Casa tip Duplex cu teren de 250 mp in Dambul Rotund!
Va propunem spre vanzare o casa individuala alipita, situata in cartierul Dambul Rotund intr-o zona linistita, de case unifamiliale. Imobilul este construit pe un teren de 250 mp cu suprafata utila de 160 mp fiind compartimentata astfel:
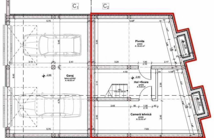
La demisol se afla o camera tehnica si un spatiu de depozitare (de 20 mp).
La parter avem un living generos cu acces in curte si o bucatarie cu loc de luat masa, o baie.
La etaj avem doua dormitoare deservite de o baie si un dormitor matrimonial cu baie proprie.
Podul de asemenea are o inaltime care ii permite transformarea in spatiu de depozitare.
Casa se preda la stadiul de semifinisat avand toate instalatiile sanitare si electrice trase pe pozitii, sistemul termic de incalzire este cu centrala termica proprie si incalzire in pardoseala.
Imobilul se vinde de pe perosana fizica iar pretul afisat nu este purtator de TVA.
Proprietatea mai dispune si de 2 locuri de parcare.
Pentru o vizionare, alte detalii si raspunsuri la intrebari, nu ezitati a ne contacta!
Echipa Napoca Imobiliare
ID oferta: 153493
Sediul central - Timișoara
Bulevardul Victor Babeș nr. 2, 300230, Timișoara, România
Tel: +40.374.40.44.98 / Fax: +40.256.401.179
Email: suport@imobiliare.ro
Luni - Vineri 08:00 - 20:00
Punct de lucru - București: Iride Business Park, Bld. Dimitrie
Pompeiu 9-9A, Clădirea B2B,
020335, Sector 2, București, România
CONTACT
Sediul central - Timișoara
Bulevardul Victor Babeș nr. 2, 300230, Timișoara, România
Tel: +40.374.40.44.98 / Fax: +40.256.401.179
Email: suport@imobiliare.ro
Luni - Vineri 08:00 - 20:00
Punct de lucru - București: Iride Business Park, Bld. Dimitrie
Pompeiu 9-9A, Clădirea B2B,
020335, Sector 2, București, România
Sună acum și cere detalii sau programează o vizionare.
Cere detalii prin email
*
*
*
*
Stații autobuz
Stații tren
Stații tramvai
Gradinițe
Școli
Supermarket
Parcări
Terenuri sport
Parcuri
Piețe publice
Farmacie
Restaurant
Bar
Bancă
Fagaras
aprox.
1069 m
Statia Fagaras, Linia 31
aprox.
1076 m
Trandafirilor
aprox.
1087 m
Statia Trandafirilor, Linia 31
aprox.
1097 m
Statia FIMARO, Linia 31
aprox.
1185 m
Livezeni
aprox.
1187 m
Soarelui
aprox.
1204 m
Maramuresului
aprox.
1226 m
Senina Nord
aprox.
1251 m
Autogara
aprox.
1269 m
Statia Senina, Linia 39
aprox.
1270 m
Senina Sud
aprox.
1271 m
Statia Autogara 2, Linia 31, 39
aprox.
1283 m
Autogara
aprox.
1375 m
Giordano Bruno
aprox.
1402 m
Gara Cluj-Napoca
aprox.
1896 m
Gara Noua / "Gara de scurt parcurs"
aprox.
1972 m
Statia P-ta Garii 2 TRV, Linia 100, 102, 31
aprox.
1915 m
Piata Garii
aprox.
1919 m
Piata Garii
aprox.
1964 m
Grăd.Neghinițăstr. 1
aprox.
772 m
Grăd.Neghiniță
aprox.
1155 m
Gradinita Neghinita
aprox.
1571 m
Grăd.Bambi str.5
aprox.
1952 m
Grăd.Neghinițăstr. 2
aprox.
1988 m
Colegiul Național George Barițiu
aprox.
948 m
Scoala generala nr. 7 / Emil Isac
aprox.
991 m
Scoala Generala si Liceul Waldorf
aprox.
1142 m
Școala de Agenți de Poliție "Septimiu Mureșan" Cluj Napoca
aprox.
1173 m
Lidl
aprox.
1681 m
Parcare
aprox.
1385 m
Parcare pentru clienti cu plata
aprox.
1639 m
Parcare pentru clienti
aprox.
1673 m
Parcare
aprox.
1923 m
Parcare
aprox.
1938 m
Parcare
aprox.
1980 m
Teren sportiv
aprox.
948 m
Teren sportiv
aprox.
958 m
Teren sportiv
aprox.
991 m
Teren sportiv
aprox.
1140 m
Teren sportiv
aprox.
1182 m
Fabrica de Sport
aprox.
1565 m
CFR 1907 Cluj
aprox.
1910 m
Parcul CFR
aprox.
1565 m
Parc
aprox.
1585 m
Parc
aprox.
1626 m
Pădurea Orașului (Lomb)
aprox.
1991 m
Piata Garii-RailwayStation Square (en)
aprox.
1912 m
Farmacia Catena
aprox.
1897 m
Restaurant
aprox.
1117 m
suson farm (en)
aprox.
1433 m
Ilinca
aprox.
1733 m
Restaurant Autoservire
aprox.
1888 m
Mama Manu
aprox.
1897 m
Simigerie
aprox.
1953 m
Pralina Fresh Fast-food
aprox.
1968 m
Autoservire Horea 89
aprox.
1983 m
Bar
aprox.
1883 m
Banca Transilvania
aprox.
1244 m
Banca Transilvania
aprox.
1254 m
BRD
aprox.
1394 m
BRD
aprox.
1394 m
BRD
aprox.
1903 m
Printre principalele artere care străbat această zonă a Clujului se numără, în partea de sud, strada Septimiu Mureșan (aceasta merge, pe bună parte din lungimea sa, paralel cu râul Nadăș); în centrul cartierului se află Strada Dâmbul Rotund "“ de unde îi vine, de fapt, și numele; în nord, Strada Gheorghe Sion și Strada Viile Dâmbul Rotund marchează, practic, limita nordică a cartierului. Comparativ cu alte zone ale Clujului, Dâmbul Rotund este, pe alocuri, destul de deficitar în ceea ce privește infrastructura rutieră. Deși este deservit, ca și alte zone clujene, de o serie de mijloace de transport în comun, zona de nord a cartierului ar necesita extinderea liniilor parcurse de acestea. Dacă vrei să cumperi o proprietate aici, interesează-te, așadar, ce distanță ai de parcurs până la cele mai apropiate stații.
Dacă ești părinte "“ sau deocamdată doar îți dorești să devii "“, cu siguranță că, atunci când vine vorba de alegerea unei locuințe, un aspect important la care te gândești este reprezentat de oportunitățile de educație disponibile într-o zonă sau alta. În această privință, poți să stai liniștit: în Dâmbul Rotund se găsesc, ca și în celelalte subdiviziuni ale orașului de pe Someș, mai multe unități de învățământ. O școală cu tradiție din cartier este Școala Gimnazială "Emil Isac", situată chiar în apropiere de Strada Dâmbul Rotund, din zona centrală. În ceea ce privește oportunitățile de continuare a studiilor după liceu, de menționat este Școala de Agenți de Poliție "Septimiu Mureșan" "“ localizată în zona de sud a cartierului, dar dincolo de cursul râului Nadăș.
Ca și în Gruia, în Dâmbul Rotund nu există, momentan, un mall și nici un hipermarket (lucru cât se poate de firesc, de altfel, ținând cont de faptul că este vorba de un cartier mărginaș și cu o densitate a populației relativ redusă). Locuitorii acestei zone nu sunt, însă, lipsiți de alternative când vine vorba de cumpărături "“ astfel, pentru nevoile de zi cu zi există o serie de magazine de dimensiuni mai reduse, dintre care unele afiliate unor rețele internaționale. Chiar dacă nu strict între granițele cartierului, opțiuni există și pentru aceia care sunt pasionați de shopping. Fără prea mare efort, aceștia pot ajunge rapid în zona Centrală a orașului, unde pot vizita numeroasele magazine existente în materie de fashion (și nu numai).
Dacă ai "“ sau intenționezi să-ți achiziționezi "“ o mașină, parcarea nu ar trebui să reprezinte, în mod normal, o problemă, dată fiind densitatea redusă a populației din acest cartier. Dacă dorești, totuși, să închiriezi un spațiu al tău de la autoritățile locale, te poți interesa la sediul central al Primăriei Clujului (amplasat pe Strada Moților, nr. 3).
Spre deosebire de locuitorii altor zone ale Clujului, cei din Dâmbul Rotund nu au la dispoziție un parc în toată puterea cuvântului, cartierul fiind, în general, deficitar și la capitolul locuri de joacă pentru copii. Totuși, având în vedere multitudinea zonelor verzi, poți spera să găsești câteva trasee bune de plimbare. Dacă ești pasionat de sport, iar mersul pe jos și joggingul nu sunt suficiente pentru tine, în Dâmbul Rotund găsești o oportunitate importantă, cunoscută localnicilor sub numele "Fabrica de Sport". Amplasat în sudul cartierului, în fosta zonă industrială, acesta este considerat a fi unul dintre cele mai moderne complexuri sportive din oraș, fiind deschis atât amatorilor de fotbal, cât și celor de fitness, aerobic, kickboxing etc.
Dacă te gândești să te muți în Dâmbul Rotund, poate că vei fi dezamăgit să afli că aici nu există niciun spital de stat. Nu e cazul, însă, să te descurajezi: având în vedere proximitatea față de Centru, pentru serviciile medicale de urgență poți ajunge rapid la multitudinea de spitale care se găsesc în "inima" orașului: Spitalul Clinic Județean de Urgență Cluj-Napoca, Spitalul Clinic Municipal Cluj-Napoca, Spitalul Universitar C.F. Cluj-Napoca etc. Nu sunt de neglijat, desigur, nici cele câteva cabinete medicale particulare ce pot fi găsite în cartier "“ pe acest segment vei găsi atât câteva opțiuni în materie de medicină de familie, cât și în ceea ce privește anumite servicii medicale de specialitate (stomatologie, spre exemplu).
În afară de câteva fast food-uri de cartier, locuitorii cartierului Dâmbul Rotund beneficiază, în apropierea casei, și de câteva oportunități demne de luat în seamă la capitolul restaurante. De menționat este restaurantul "Stejarul", amplasat pe Strada Corneliu Coposu, nr. 95, ce dispune de terasă și oferă și servicii de livrare la domiciliu, dar și restaurantul "Fabrica", de pe Strada Tudor Vladimirescu, nr. 22, unde pot fi organizate și evenimente. Pentru a beneficia de o gamă mai largă de opțiuni pentru ieșirile în oraș cu prietenii, locuitorii acestui cartier au la dispoziție, desigur, și zona Centrală.
Dacă ai nevoie să efectuezi o operațiune bancară, trebuie să știi că strict între granițele acestui cartier nu prea ai opțiuni la acest capitol. Cu toate acestea, imediat sub limita sudică a cartierului, la granița dintre Gruia și zona Centrală (reprezentată de Strada Horea), se găsesc trei sucursale bancare: una din rețeaua BCR, o Banca Transilvania, alături de un sediu Raiffeisen Bank. Consultă harta și află unde sunt localizate și alte bănci sau ATM-uri în cartierul Dâmbul Rotund:
Înainte să pleci...
Ești sigur că ai văzut și aceste proprietăți?
330.000 €
Cluj-Napoca, Dâmbul Rotund
4 camere
231 mp
160 mp teren
369.999 €
Cluj-Napoca, Dâmbul Rotund
4 camere
156 mp
235 mp teren
325.000 €
Cluj-Napoca, Dâmbul Rotund
4 camere
134 mp
300 mp teren
370.000 €
Cluj-Napoca, Dâmbul Rotund
5 camere
170 mp
700 mp teren
325.000 €
Cluj-Napoca, Iris
4 camere
135 mp
250 mp teren
359.000 €
Cluj-Napoca, Dâmbul Rotund
5 camere
195 mp
445 mp teren
Creează alertă
Salvează căutarea ca să primești pe email ultimele anunțuri publicate
Case și vile cu 4+ camere de vânzare în zona Dâmbul Rotund, Cluj-Napoca
Cere detalii prin email
*
*
*
*
Detaliile tale de contact vor fi partajate cu Napoca Imobiliare
Preț total1.823.490 RON (357.961 €)
Costuri cu achiziția15.085 RON
Preț de achiziție1.808.405 RON
Costuri cu achiziția15.085 RON
Comision agenție Întreabă agenţia
Onorariu notarial12.372 RON
Taxă înscriere OCPI2.713 RON
Preț de achiziție1.808.405 RON
Preț locuință1.808.405 RON
TVA 0%Inclus în prețul cerut
Cost total292.555 RON (57.430 €)
Avans (15%)271.261 RON
Cost achitat în prima lună3.590 RON
Costuri cu achiziția17.704 RON
Cost achitat în prima lună3.590 RON
Comision analiză dosar
400 RON - 900 RON
Taxă evaluare imobil(până la)
900 RON
Rata lunară (variabilă)8.056 RON
Asigurare anuală imobil1.808 RON
Arhivă electronică102 RON
Poliță PAD130 RON
Asigurare de viață/lună Costul este variabil. În funcție de banca aleasă, procentul variază între 0.0259% și 0.035% din soldul creditului.
Costuri cu achiziția17.704 RON
Comision agenție Întreabă agenţia
Onorariu notarial12.372 RON
Taxă întabulare OCPI2.713 RON
Autentificare contract credit2.619 RON
Preț de achiziție1.808.405 RON
Preț locuință1.808.405 RON
TVA 0%Inclus în prețul cerut
Preț de achiziție1.808.405 RON
Preț locuință1.808.405 RON
TVA 0%
Inclus în prețul cerut
Avans minim1.202.208 RON
Credit pe 30 de ani606.198 RON
Cost achitat în prima lună
Taxa evaluare imobil(până la)
900 RON
Rata lunară (variabilă)4.259 RON
Depozit colateral12.777 RON
Comision de garantare FNGCIMM151 RON
Asigurare anuală imobil1.808 RON
Poliță PAD130 RON
Tarif arhivă electronică102 RON
Costuri adiționale1.948 RON + taxe notariale
Asigurare viață și complexă (opțională)Costul este variabil. În funcție de banca aleasă, procentul variază între 0.0259% și 0.035% din soldul creditului
Onorariu notarialconform tarif notarial
Taxă întabulare OCPI1.948 RON
i
Toate valorile de mai sus sunt estimative și nu reprezintă în mod obligatoriu costurile exacte pe care le veți primi de la companiile/instituțiile prin care veți încheia tranzacția.