1

Casa 4 camere de vanzare in Someseni, Cluj Napoca

315.000 €

Someșeni, Cluj-Napoca

Nr. cam.:
4
Sup. utilă:
119 mp
Sup. teren:
220 mp
  • • Locație aproximativă

Descriere casă

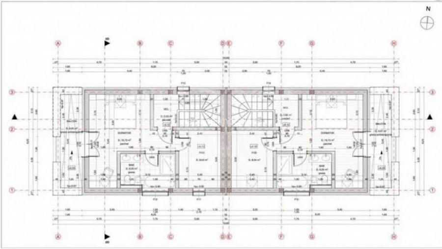
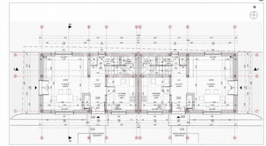
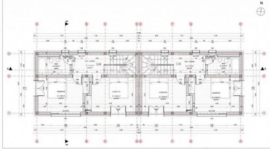
Casa cu 4 camere si teren in Someseni! Va propunem spre vanzare casa tip duplex, situata intr-o zona aerisita si acces facil spre toate punctele de interes ale orasului. Este o constructie din caramida, edificata pe 3 niveluri, cu suprafata utila de 119 mp si urmatoarea compartimentare: Parter: - 1 living; - 1 bucatarie; - 1 baie de serviciu; - 1 hol de acces. Etaj: - 2 dormitoare; - 1 baie; - 1 hol. Mansarda: - 1 dormitor cu iesire pe balcon: - 2 camera birou; - 1 hol de acces; Casa se vinde semifinisata la interior, cu peretii tencuiti si gletuiti, instalatii trase pe pozitii, sape turnate, ferestrele si usile exterioare sunt din PVC tip termopan de ultima generatie, iar la exterior peretii sunt izolati cu polistiren de 15 cm si finisati cu tencuiala decorativa si caramida aparenta. Confortul termic este asigurat de centrala termica pe gaz si instalatie in pardoseala. Terenul in suprafata de 220 mp, este imprejmuit pe toate laturile, iar la intrare sunt amenajate doua locuri de parcare. Dispune de toate utilitatile si are disponibilitate imediata la vanzare. Avand in vedere arhitectura si compartimentarea, precum si calitatea materialelor, recomandam aceasta proprietate unei familii tinere si nu numai. Imobilul se vinde de pe Societate Comerciala, asadar la pret se adauga TVA conform legilor in vigoare. Pentru mai multe detalii sau pentru programarea unei vizionari, va stam cu drag la dispozitie, Echipa Napoca Imobiliare! ID oferta: 118804
Citește mai mult Citește mai puțin
Centrală proprie 2 Parcări

Detalii casă

ID anunț: X57Q111F1 Copiat! 13964824 Copiat!
Actualizat în: 14 August 2025
Suprafață construită: 150 mp
Nr. bucătării: 1
Nr. băi: 3
Nr. balcoane / Terase / Logii: 1
Front stradal: 16 m
Învelitoare acoperiș: Tabla
An construcție: 2022
Regim înălțime: P

Utilități

Utilități
Curent Apă Canalizare Gaze CATV
Internet
Cablu Fibră optică
Ușă intrare
PVC
Ferestre cu geam termopan
PVC
Amenajare străzi
Mijloace de transport în comun Iluminat stradal
Comision
2% + TVA

Puncte de interes

Mijloace transport
bus-station
Plevnei Sud
Stații autobuz aprox. 264 m
bus-station
Plevnei Nord
Stații autobuz aprox. 266 m
tram-station
Termorom Nord
Stații tramvai aprox. 715 m
tram-station
Termorom Sud
Stații tramvai aprox. 727 m
Școală
kindergarten
Grăd.Lizuca
Gradinițe aprox. 715 m
university
UT Facultatea de Mecanica
Universități aprox. 873 m
kindergarten
Grăd.Lizuca str. 2
Gradinițe aprox. 1032 m
school
Scoala Speciala de Meserii
Școli aprox. 1170 m
Recreere
park
Parc
Parcuri aprox. 679 m
sports-ground
Teren sportiv
Terenuri sport aprox. 736 m
public-square
Piata Ira
Piețe publice aprox. 846 m
supermarket
Profi
Supermarket aprox. 979 m

Detalii despre preț și costuri

Costuri cu achiziția

Fără credit
13.721 RON
Credit ipotecar
16.171 RON
Noua casă
1.746 RON+ taxe notariale

i

Costuri adiționale mai puțin știute la achiziție: taxe notariale, comisioane etc.

Proprietăți recomandate

Detalii de contact

Napoca Imobiliare

Admin

3.44(14 review-uri)

Napoca Imobiliare
PRO

Abonează-te la newsletter să fii primul care primește cele mai noi recomandări de proprietăți și sfaturi de la experți.

CONTACT

Creează alertă

Salvează căutarea ca să primești pe email ultimele anunțuri publicate

Case și vile cu 4+ camere de vânzare în zona Someșeni, Cluj-Napoca