Case in constructie , P+E , zona Catargiu - Poligon

152.470 € + TVA

Lascăr Catargiu, Craiova

Nr. cam.:
3
Sup. utilă:
115,5 mp
Sup. teren:
100 mp
Tip prop.:
Înșiruită
  • • Locație aproximativă

Descriere casă

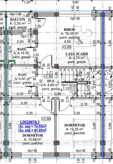
Blitz va ofera oportunitatea de achizitie direct din stadiu de proiect a unei case moderne ce va face parte dintr-un complex de case insiruite intr-o zona zona ce va forma o comunitate privata. Casele vor avea o suprafata utila de 115,5 mp organizate pe plan parter + etaj gandite intr-un stil mediteranean si compartimentate dupa cum urmeaza: Parter : hol, casa scarii, grup sanitar, living si bucatarie inchisa; Etaj : hol, 2 dormitoare, un birou si alte 2 grupuri sanitare si un balcon; Construite pe o structura de beton si BCA YTONG si o izolatie exterioara de polistiren expandat EPS 80 , o fac o alegere excelenta din punct de vedere termic si fonic. Acoperisul este din tabla LINDAB faltuita. De asemenea, peretii comuni vor fi izolati cu vata bazaltica pentru un plus de intimitate si confort. Imobilele vor dispune de incalzire in pardoseala, iar pentru o metoda alternativa , dar si pentru a crea un spatiu intim, acestea vor beneficia si de un semineu pe lemne. De asemenea, fiecare casa va dispune de 2 locuri de parcare. Avand in proximitate Spitalul Judetean, Facultatea de Medicina, dar si Parcul ,,Nicolae Romanescu'' , o face o alegere ideala pentru o familie, fiind situate departe de agitatia bulevardului, dar aproape de toate punctele de interes Casele vor fi predate la cheie, avand ca termen de finalizare IUNIE 2027. La pretul afisat se adauga TVA de 21%, iar avansul minim este de 30%. Pentru detalii suplimentare, nu ezitati sa ne contactati! Cod oferta / ID BLITZ: P157424
Citește mai mult Citește mai puțin
Nemobilat Încălzire prin pardoseală 2 Parcări 2 Parcări / Garaje / Parcări subterane

Detalii casă

ID anunț: X3SH11BGU Copiat! 275241171 Copiat!
Actualizat în: 10 Martie 2026
Nr. bucătării: 1
Nr. băi: 3
Front stradal: 7 m
An construcție: 2027 (Proiect)
Structură rezistență: BCA
Regim înălțime: P+1E

Utilități

Utilități
Curent Apă Canalizare Gaze
Diverse
Șemineu
Ușă intrare
Metal
Izolații termice
Exterior Interior
Ferestre cu geam termopan
PVC
Comision
%

Disponibilitate proprietate:

imediat

Puncte de interes

Mijloace transport
bus-station
Drumul Fabricii
Stații autobuz aprox. 1235 m
bus-station
Aprozar
Stații autobuz aprox. 1248 m
bus-station
Spitalul nr. 1
Stații autobuz aprox. 1423 m
airport
Aeroclubul Balta-Verde
Aeroporturi aprox. 1900 m
Școală
school
Scoala Speciala Sfantul Vasile
Școli aprox. 1074 m
school
Gradinita Micul Print
Școli aprox. 1223 m
kindergarten
Gradinita Micul Print
Gradinițe aprox. 1232 m
university
Facultatea de Medicina
Universități aprox. 1398 m
Recreere
park
Parc
Parcuri aprox. 885 m
supermarket
Pelendava
Supermarket aprox. 1392 m
restaurant
Covrigi Speciali
Restaurant aprox. 1424 m
sports-ground
Teren sportiv
Terenuri sport aprox. 1461 m

Detalii despre preț și costuri

Costuri cu achiziția

Fără credit
9.236 RON
Credit ipotecar
11.132 RON
Noua casă
1.080 RON+ taxe notariale

i

Costuri adiționale mai puțin știute la achiziție: taxe notariale, comisioane etc.

Proprietăți similare

Casă cu 5 camere în Romanești
157.000 €
Craiova, Romanești
5 camere
170 mp
504 mp teren
Casă cu 4 camere în Bariera Vâlcii
165.000 €
Craiova, Bariera Vâlcii
4 camere
110 mp
356 mp teren

Detalii de contact

Abonează-te la newsletter să fii primul care primește cele mai noi recomandări de proprietăți și sfaturi de la experți.

CONTACT

Creează alertă

Salvează căutarea ca să primești pe email ultimele anunțuri publicate

Case și vile cu 3 camere de vânzare în zona Lascăr Catargiu, Craiova