Casa 4 camere de vanzare in Sat Tauti, Floresti

231.000 €

Florești, Județul Cluj

Nr. cam.:
4
Sup. utilă:
120 mp
Sup. teren:
300 mp
  • • Locație aproximativă

Descriere casă

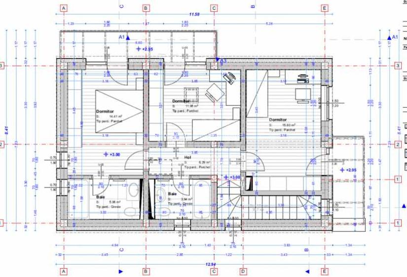
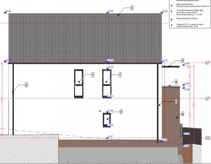
Casa individuala P+E cu 4 camere, teren 300 mp, zona Tauti! Va oferim spre vanzare o casa individuala cu regim de inaltime parter + etaj situat intr-o zona linistita a comunei Floresti, sat Tauti! Casa are suprafata utila de 120 mp, fiind structurat pe cele 2 niveluri, astfel: - parter: living open space cu bucatarie, baie, spatiu depozitare, casa scarii, acces terasa; - etaj; dormitor matrimonial cu baie proprie, 2 dormitoare, baie, hol; Suprafata de teren este de 300 mp cu loc de parcare amenajat si terasa, precum si bazin pentru retentia apei pentru intretinerea gradinii. Duplexul se preda la stadiul de semifinisat, avand fundatie de beton si zidarie de caramida, izolatie de polistiren de 15 cm, tamplarie Salamander cu 3 foi de sticla, incalzire in pardoseala, fatade placate cu caramida aparenta. La pretul afisat se adauga TVA. Pentru mai multe informatii sau programarea unei vizionari, va stam cu drag la dispozitie! Echipa Napoca Imobiliare ID oferta: 155036
Citește mai mult Citește mai puțin
Centrală proprie 1 Parcare

Detalii casă

ID anunț: X57Q112DI Copiat! 268874769 Copiat!
Actualizat în: 01 Septembrie 2025
Suprafață construită: 180 mp
Nr. bucătării: 1
Nr. băi: 3
Nr. terase: 1
Front stradal: 7 m
Învelitoare acoperiș: Tabla
An construcție: 2025
Regim înălțime: P

Utilități

Utilități
Curent Apă Gaze CATV Telefon
Internet
Cablu Fibră optică Wireless
Ușă intrare
PVC
Ferestre cu geam termopan
PVC
Amenajare străzi
Mijloace de transport în comun Iluminat stradal
Comision
2% + TVA

Puncte de interes

Școală
school
Scoala generala
Școli aprox. 587 m

Detalii despre preț și costuri

Costuri cu achiziția

Fără credit
10.836 RON
Credit ipotecar
12.930 RON
Noua casă
1.318 RON+ taxe notariale

i

Costuri adiționale mai puțin știute la achiziție: taxe notariale, comisioane etc.

Proprietăți recomandate

Detalii de contact

Napoca Imobiliare

Admin

3.44(14 review-uri)

Napoca Imobiliare
PRO

Abonează-te la newsletter să fii primul care primește cele mai noi recomandări de proprietăți și sfaturi de la experți.

CONTACT

Creează alertă

Salvează căutarea ca să primești pe email ultimele anunțuri publicate

Case și vile cu 4+ camere de vânzare în Florești, Județul Cluj