Casa 4 camere de vanzare in Nicolae Iorga Oradea, Oradea

270.000 €

Dealuri Oradea, Oradea

Nr. cam.:
4
Sup. utilă:
105 mp
Sup. teren:
340 mp
  • • Locație aproximativă

Descriere casă

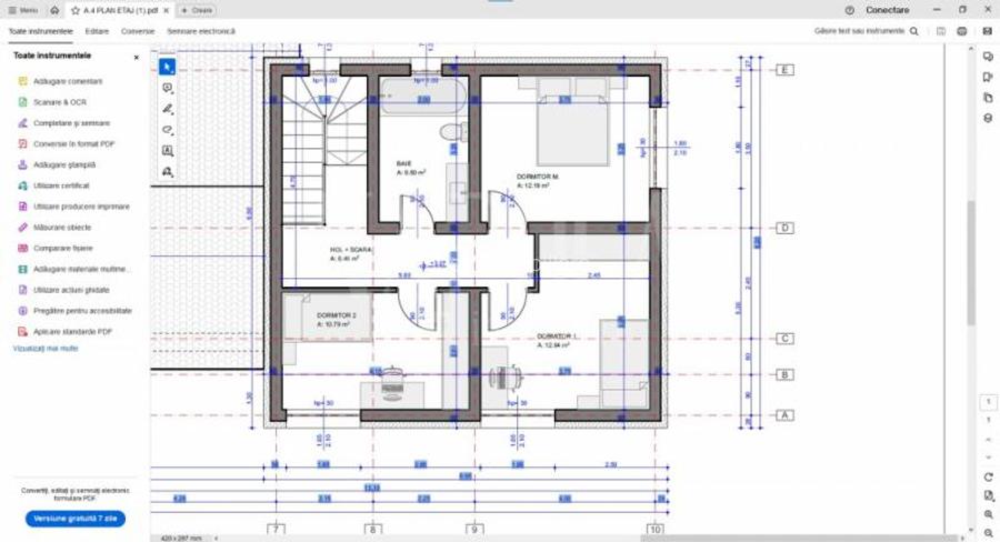
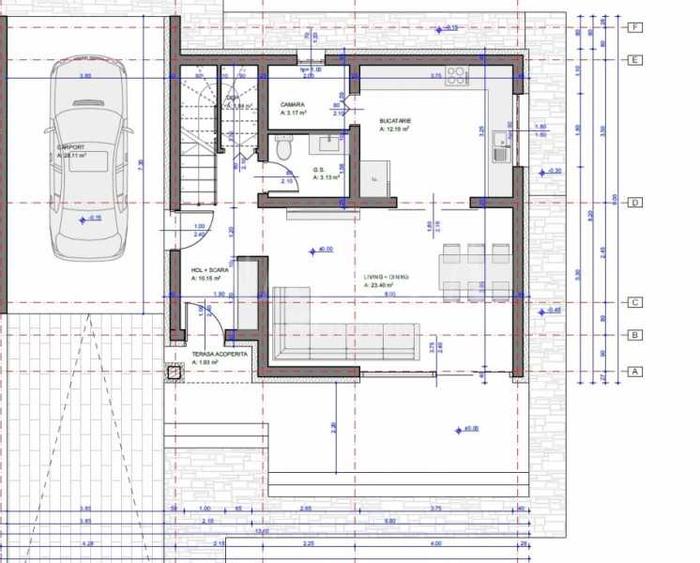
Casa individuala cu 4 camere si panorama in zona Dealuri Oradea! Va prezentam spre vanzare o casa individuala cu 4 camere si o panorama superba, intr-o zona exclusivista din Oradea. Dispusa pe un teren de 370 mp, locuinta are un regim de inaltime de P+1E si suprafata utila de 105 mp, fiind structurata astfel: La parter: - 1 living cu zona de dining; - 1 bucatarie; - 1 baie; - 1 spatiu de depozitare; - 1 terasa; - 1 hol cu acces si din garaj. La etaj: - 1 dormitor matrimonial cu acces pe balcon; - 2 dormitoare; - 1 baie. Confortul termic este asigurat prin centrala proprie pe gaz, cu incalzire prin pardoseala. Casa momentan se finiseaza, viitorul proprietar are posibilitatea de a alege parchetul, gresia, faianta si usile dupa propriul gust. Pozele sunt doar orientative pentru finisajele propuse. Pentru mai multe informatii si programarea unei vizionari, va stam cu drag la dispozitie, Echipa Napoca Imobiliare! ID oferta: 141021
Citește mai mult Citește mai puțin
1 Garaj

Detalii casă

ID anunț: X57Q112J5 Copiat! 270718746 Copiat!
Actualizat în: 08 Octombrie 2025
Suprafață construită: 208 mp
Nr. bucătării: 1
Nr. băi: 2
Nr. balcoane / Terase / Logii: 1
Nr. terase: 1
Front stradal: 15 m
Învelitoare acoperiș: Țiglă
An construcție: 2024
Regim înălțime: P

Utilități

Pereți
Faianță Vopsea lavabilă
Ușă intrare
PVC Parchet
Uși interior
Lemn
Ferestre cu geam termopan
PVC
Utilități
Curent Curent trifazic Apă Canalizare Gaze CATV Telefon
Internet
Cablu Fibră optică Wireless
Comision
2% + TVA

Detalii despre preț și costuri

Costuri cu achiziția

Fără credit
12.174 RON
Credit ipotecar
14.433 RON
Noua casă
1.516 RON+ taxe notariale

i

Costuri adiționale mai puțin știute la achiziție: taxe notariale, comisioane etc.

Proprietăți recomandate

Detalii de contact

Napoca Imobiliare

Admin

3.47(13 review-uri)

Napoca Imobiliare
PRO

Abonează-te la newsletter să fii primul care primește cele mai noi recomandări de proprietăți și sfaturi de la experți.

CONTACT

Creează alertă

Salvează căutarea ca să primești pe email ultimele anunțuri publicate

Case și vile cu 4+ camere de vânzare în zona Dealuri Oradea, Oradea